Скачать Типовой проект 902-9-6 Альбом I. Архитектурно-строительная часть (стены панельные)Дата актуализации: 10.08.2017 Типовой проект 902-9-6
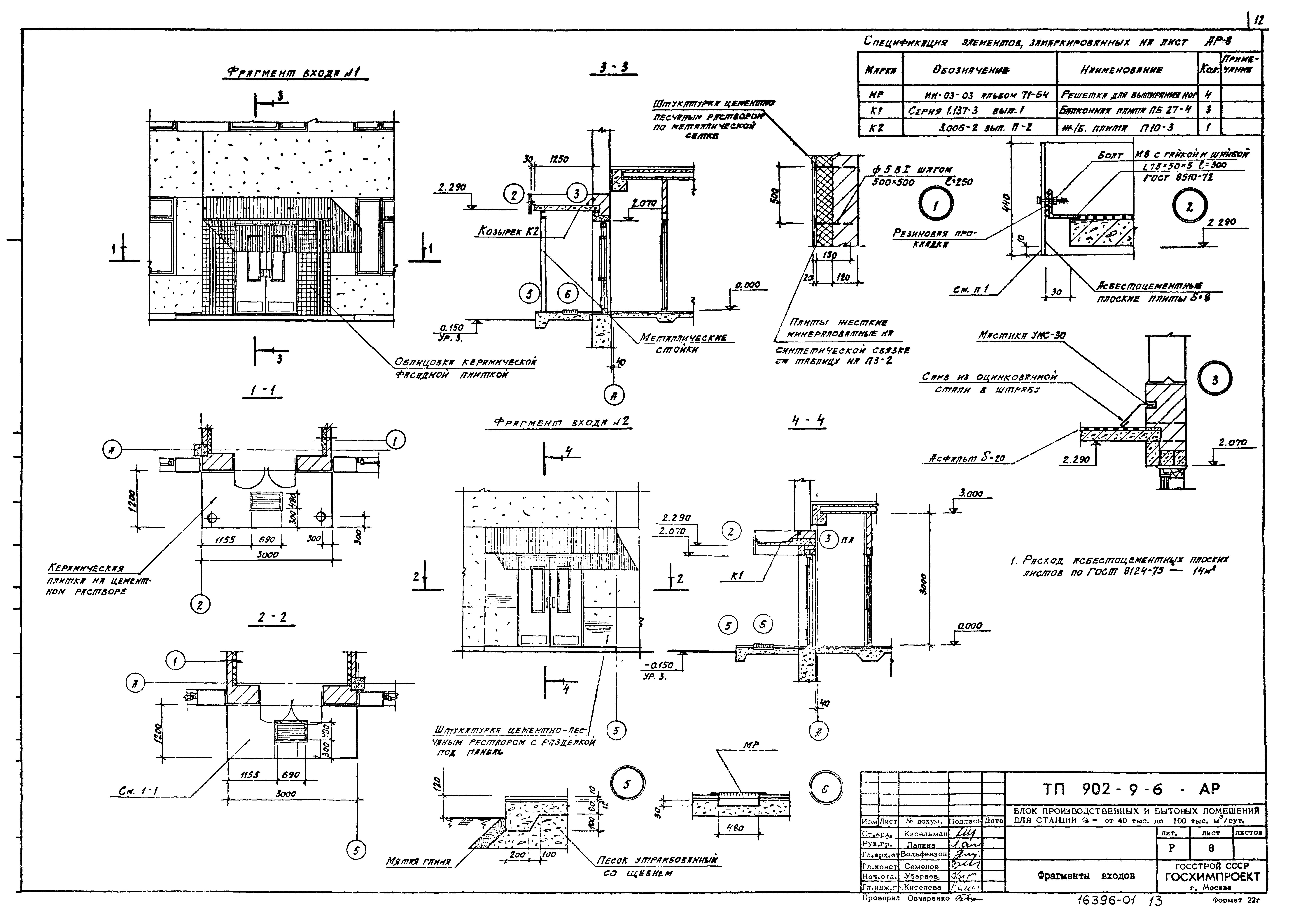
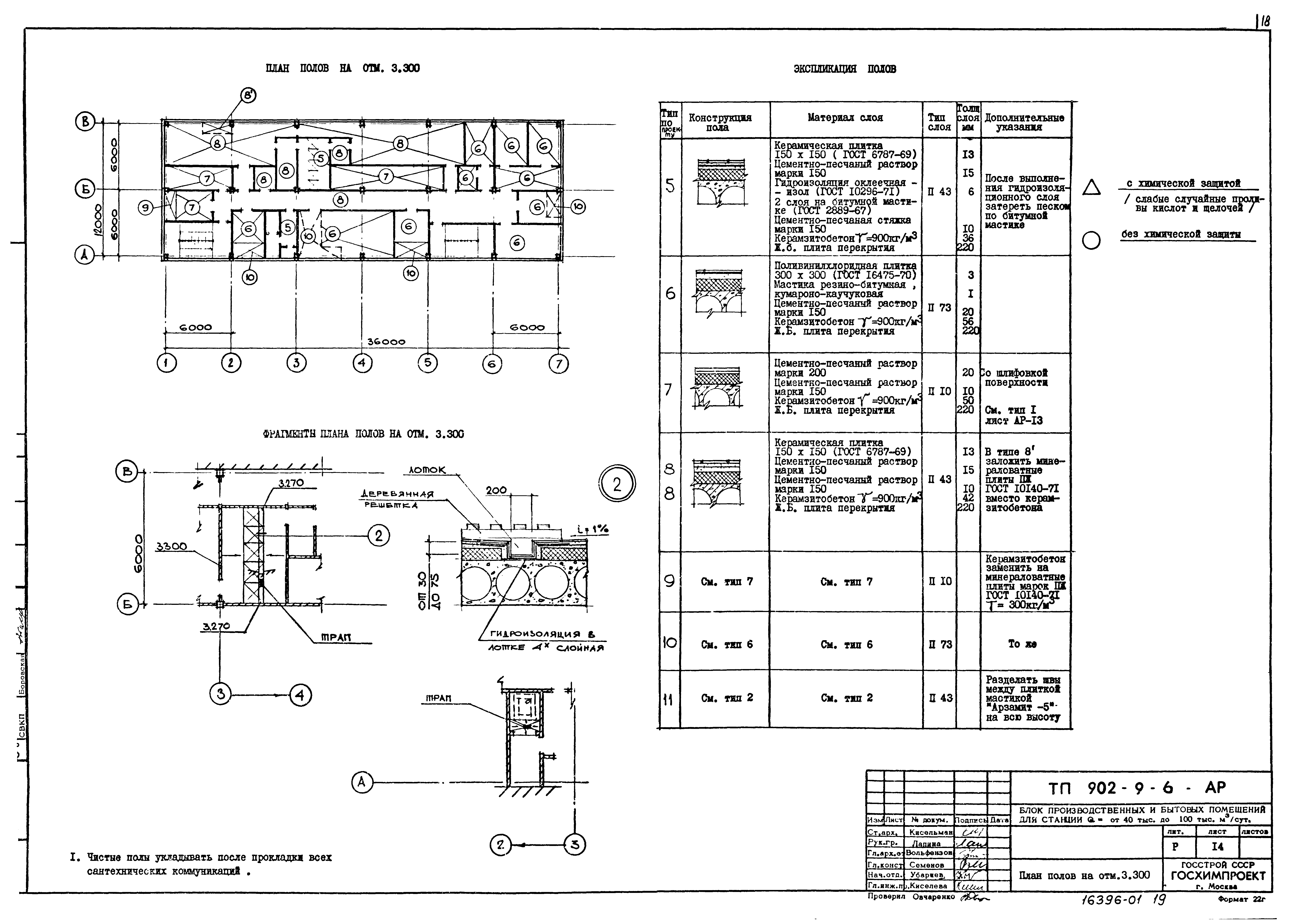
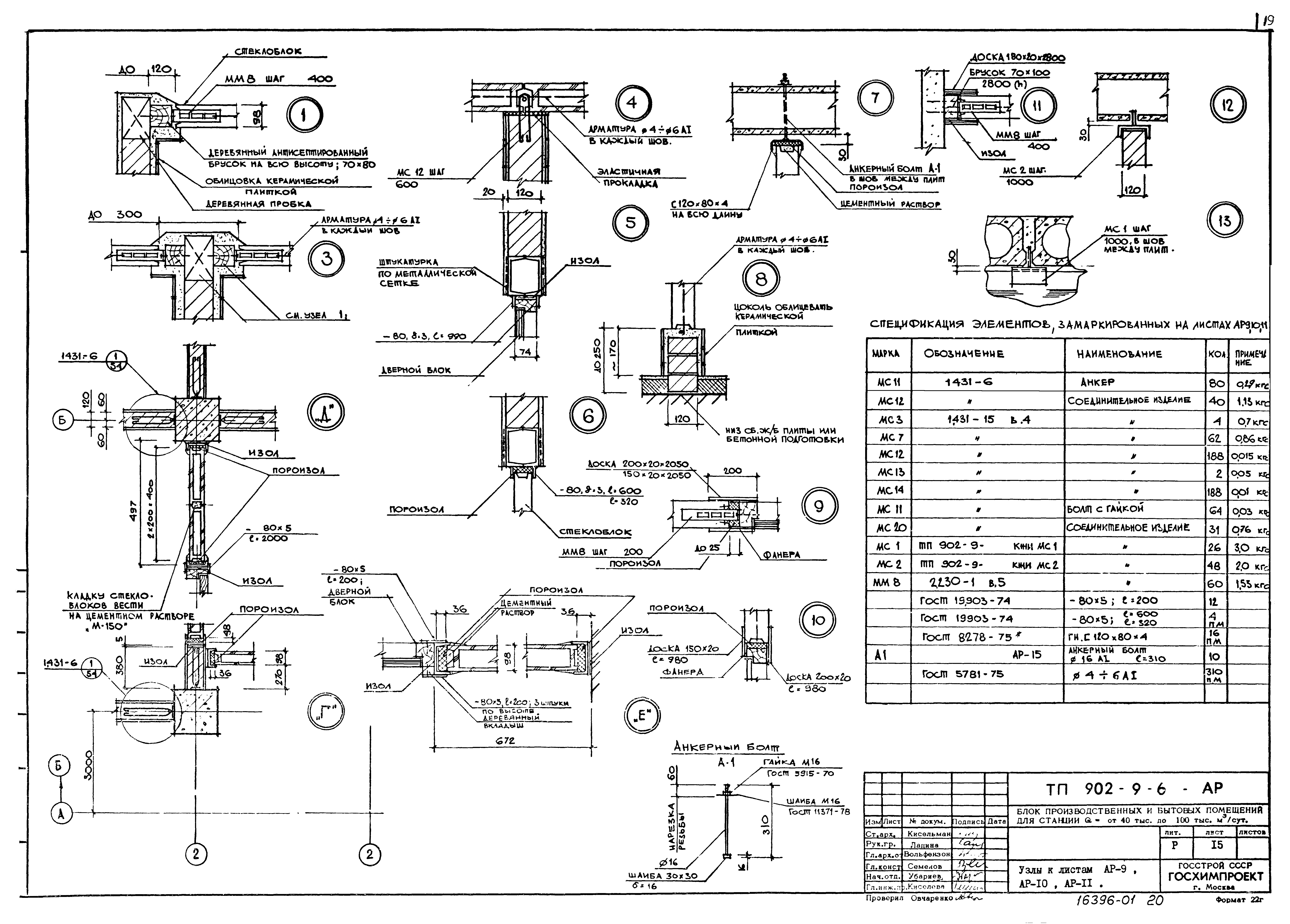
Альбом I. Архитектурно-строительная часть (стены панельные)Обозначение: | Типовой проект 902-9-6 | Обозначение англ: | 902-9-6 | Статус: | действует | Название рус.: | Альбом I. Архитектурно-строительная часть (стены панельные) | Дата добавления в базу: | 01.09.2013 | Дата актуализации: | 05.05.2017 | Оглавление: | ТП 902-9-6 Содержание альбома 1 ТП 902-9-6-ПЗ-1 Пояснительная записка (начало) ТП 902-9-6-ПЗ-2 Пояснительная записка (окончание) ТП 902-9-6-АР-1 Общие данные (начало) ТП 902-9-6-АР-2 Общие данные (окончание) ТП 902-9-6-АР-3 План на отм. 0.000 . ТП 902-9-6-АР-4 План на отм. 3.300 . ТП 902-9-6-АР-5 Фрагменты планов ТП 902-9-6-АР-6 Разрезы 1-1, 2-2 . План кровли . ТП 902-9-6-АР-7 Фасады ТП 902-9-6-АР-8 Фрагменты входов ТП 902-9-6-АР-9 Маркировочная схема перегородок и план отверстий в стенах на отм. 0.000 ТП 902-9-6-АР-10 Маркировочная схема перегородок и план отверстий в стенах на отм. 3.300 ТП 902-9-6-АР-11 Фрагменты планов стеклоблочных перегородок на отм.0.000 ТП 902-9-6-АР-12 Подвесной потолок на отм. 2.200, 5.500 . ТП 902-9-6-АР-13 План полов на отм. 0.000 ТП 902-9-6-АР-14 План полов на отм. 3.300 ТП 902-9-6-АР-15 Узлы к листам АР-9, АР-10, АР-11 ТП 902-9-6-КЖ-1 Общие данные (начало) ТП 902-9-6-КЖ-2 Общие данные (продолжение) ТП 902-9-6-КЖ-3 Общие данные (окончание) ТП 902-9-6-КЖ-4 Маркировочная схема фундаментов и фундаментных балок ТП 902-9-6-КЖ-5 Узлы 1-4 ТП 902-9-6-КЖ-6 Узлы 5, 6 и 8 ТП 902-9-6-КЖ-7 Узел 7 ТП 902-9-6-КЖ-8 Маркировочная схема каркаса ТП 902-9-6-КЖ-9 Разрезы к листу КЖ-8 ТП 902-9-6-КЖ-10 Маркировочная схема панелей перекрытая на отм.3.300 ТП 902-9-6-КЖ-11 Маркировочная схема панелей покрытая на отм. 6.600 ТП 902-9-6-КЖ-12 Маркировочная схема фахверка стеклоблочных перегородок на отм. 0.000 ТП 902-9-6-КЖ-13 Маркировочные схемы стеновых панелей ТП 902-9-6-КЖ-14 Спецификации элементов к листу КЖ-13 ТП 902-9-6-КЖ-15 Маркировочная схема элементов лестницы между осями 1-2 ТП 902-9-6-КЖ-16 Маркировочная схема элементов лестницы между осями 5-6 ТП 902-9-6-КЖ-17 Маркировочная схема подвесок в перекрытии на отм. 3.300 ТП 902-9-6-КЖ-18 Маркировочная схема подвесок в покрытии на отм. 6.600 ТП 902-9-6-КЖ-19 Маркировочная схема опор под трубопроводы на отм. 0.000 ТП 902-9-6-КЖ-20 Маркировочная схема металлических балок подвесных потолков | Разработан: | Союзводоканалпроект Госхимпроект
| Утверждён: | 25.06.1979 Союзводоканалпроект (Soyuzvodokanalproject 31)
| Издан: | ЦИТП Госстроя СССР (CITP, Gosstroy (USSR) 1979 г. )
| Расположен в: |
|
                                       
|