Скачать Типовой проект 902-2-19 Альбом I. Пояснительная записка и чертежиДата актуализации: 10.08.2017 Типовой проект 902-2-19
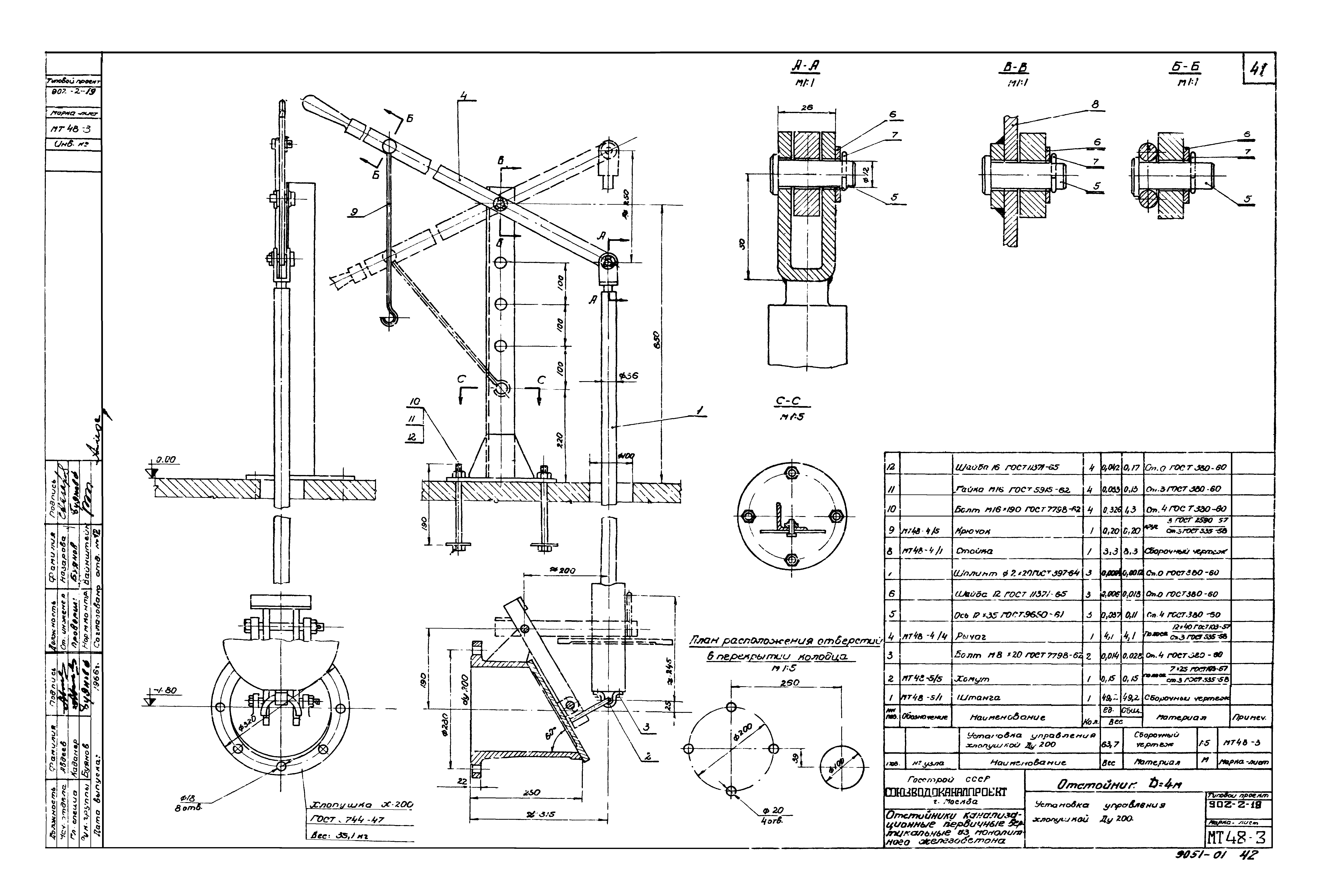
Альбом I. Пояснительная записка и чертежиОбозначение: | Типовой проект 902-2-19 | Обозначение англ: | 902-2-19 | Статус: | не действует | Название рус.: | Альбом I. Пояснительная записка и чертежи | Дата добавления в базу: | 01.09.2013 | Дата актуализации: | 05.05.2017 | Оглавление: | ТП 902-2-19-ПЗ-1 Содержание альбома ТП 902-2-19-ПЗ-2 Заглавный лист ТП 902-2-19-ПЗ-3,4,5,6,7,8 Пояснительная записка ТП 902-2-19 А Архитектурно-строительные чертежи ТП 902-2-19-АС-1 Опалубочный чертеж. План. Разрез ТП 902-2-19-АС-2 Опалубочный чертеж. Узлы. Сечения ТП 902-2-19-АС-3 Опалубочный чертеж. Сечение. Закладные элементы М-1,М-5 ТП 902-2-19-АС-4 Лестница ЛС-1. Спецификация и выборка стали ТП 902-2-19-АС-5 Компоновка из 4х отстойников. Спецификация железобетонных и стальных элементов ТП 902-2-19-АС-6 Компоновка из 2х отстойников. Спецификация железобетонных и стальных элементов ТП 902-2-19-АС-7 Компоновка из 2х отстойников. Спецификация железобетонных и стальных элементов ТП 902-2-19-АС-8 Опалубочный чертеж. Лоток ЛМ-1 ТП 902-2-19-АС-9 Опалубочный чертеж. Разрезы 1-1,3-3,4-4 ТП 902-2-19-АС-10 Опалубочный чертеж. Лоток ЛМ-2 ТП 902-2-19-АС-11 Опалубочный чертеж. Лоток ЛМ-3 ТП 902-2-19-АС-12 Распределительная камера ТП 902-2-19-АС-13 Колодцы №1 и №2 ТП 902-2-19-АС-14 Колодцы №3 и №4 ТП 902-2-19-АС-15 Арматурный чертеж. План. Разрез ТП 902-2-19-АС-16 Арматурный чертеж. Узлы. Спецификация арматуры ТП 902-2-19-АС-17 Армирование лотка ЛМ-1. План. Сечение ТП 902-2-19-АС-18 Армирование лотка ЛМ-1. Разрез, сечения, спецификация арматуры ТП 902-2-19-АС-19 Армирование лотка ЛМ-2. План. Сечения. Расход материалов ТП 902-2-19-АС-20 Армирование лотка ЛМ-2. Разрез, сечения. Спецификация арматуры ТП 902-2-19-АС-21 Армирование монолитного лотка ЛМ-3. План. Сечение ТП 902-2-19-АС-22 Армирование монолитного лотка ЛМ-3. Разрезы. Сечение. Спецификация арматуры ТП 902-2-19-АС-23 Арматурно-опалубочный чертеж. Балка Б-1. Муфта МЛ-1 ТП 902-2-19-АС-24 Арматурно-опалубочный чертеж. Лотки Л-1,Л-2. Колодца К-1,К-2,К-3,К-4 ТП 902-2-19-АС-25 Распределительная камера. Лоток Л-3. Арматурный чертеж ТП 902-2-19-АС-26 Армирование распределительной камеры. Спецификация арматуры. Сетки ТП 902-2-19-ТК Б Технологические чертежи ТП 902-2-19-ТК-1 Общий вид отстойника ТП 902-2-19-ТК-2 Иловые колодцы №1 и №2. Планы и разрезы ТП 902-2-19-ТК-3 Иловые колодцы №3 и №4. Планы и разрезы ТП 902-2-19 В Чертежи нестандартного оборудования ТП 902-2-19-МТ48-1 Труба центральная. Общий вид и детали ТП 902-2-19-МТ48-2 Труба иловая. Общий вид и детали ТП 902-2-19-МТ48-3 Установка управления хлопушкой Ду=200 ТП 902-2-19-МТ48-4 Установка управления хлопушкой Ду=200. Узел и детали ТП 902-2-19-МТ48-5 Установка управления хлопушкой Ду=200. Узел и детали ТП 902-2-19-МТ48-6 Затвор поверхностный 200х300. Общий вид ТП 902-2-19-МТ48-7 Затвор поверхностный 200х300. Щит. Детали ТП 902-2-19-МТ48-8 Затвор поверхностный 200х300. Рама ТП 902-2-19-МТ48-9 Затвор поверхностный 300х450 с ручным приводом. Общий вид ТП 902-2-19-МТ48-10 Затвор поверхностный 300х450 с ручным приводом. Щит ТП 902-2-19-МТ48-11 Затвор поверхностный 300х450 с ручным приводом. Рама ТП 902-2-19-МТ48-12 Затвор поверхностный 300х450 с ручным приводом. Привод ручной ТП 902-2-19-МТ48-13 Затвор поверхностный 300х450 с ручным приводом. Привод ручной. Детали ТП 902-2-19-МТ48-14 Затвор поверхностный 200х600 с ручным приводом. Общий вид ТП 902-2-19-МТ48-15 Затвор поверхностный 200х600 с ручным приводом. Щит ТП 902-2-19-МТ48-16 Затвор поверхностный 200х600 с ручным приводом. Рама ТП 902-2-19-МТ48-17 Затвор поверхностный 200х600 с ручным приводом. Привод ручной ТП 902-2-19-МТ48-18 Затвор поверхностный 200х600 с ручным приводом. Привод ручной | Разработан: | Союзводоканалпроект
| Утверждён: | 30.12.1966 Союзводоканалпроект (Soyuzvodokanalproject 194)
| Издан: | ЦИТП Госстроя СССР (CITP, Gosstroy (USSR) 1966 г. )
| Расположен в: |
|
                                                      
|