Информационная система
«Ёшкин Кот»

Скачать базу одним архивом
Скачать обновления
История создания базы
Карта сайта

Скачать Типовой проект 902-3-56м.87 Альбом V. Электротехнические решения. Автоматизация и КИП. Связь и сигнализация (из ТП 902-3-57м.87)

Дата актуализации: 10.08.2017

Типовой проект 902-3-56м.87

Альбом V. Электротехнические решения. Автоматизация и КИП. Связь и сигнализация (из ТП 902-3-57м.87)

Обозначение: Типовой проект 902-3-56м.87
Обозначение англ: 902-3-56м.87
Статус:не определен законодательством
Название рус.:Альбом V. Электротехнические решения. Автоматизация и КИП. Связь и сигнализация (из ТП 902-3-57м.87)
Дата добавления в базу:01.09.2013
Дата актуализации:05.05.2017
Дата введения:15.12.1986
Оглавление:ТП 902-3-57м87-ЭМ-1 Общие данные
ТП 902-3-57м87-ЭМ-2 Схема электрическая принципиальная питания электрооборудования. Начало
ТП 902-3-57м87-ЭМ-3 Схема электрическая принципиальная питания электрооборудования. Продолжение
ТП 902-3-57м87-ЭМ-4 Схема электрическая принципиальная питания электрооборудования. Продолжение
ТП 902-3-57м87-ЭМ-5 Схема электрическая принципиальная питания электрооборудования. Продолжение
ТП 902-3-57м87-ЭМ-6 Схема электрическая принципиальная питания электрооборудования. Окончание
ТП 902-3-57м87-ЭМ-7 Схема электрическая принципиальная управления насосами уплотненного ила
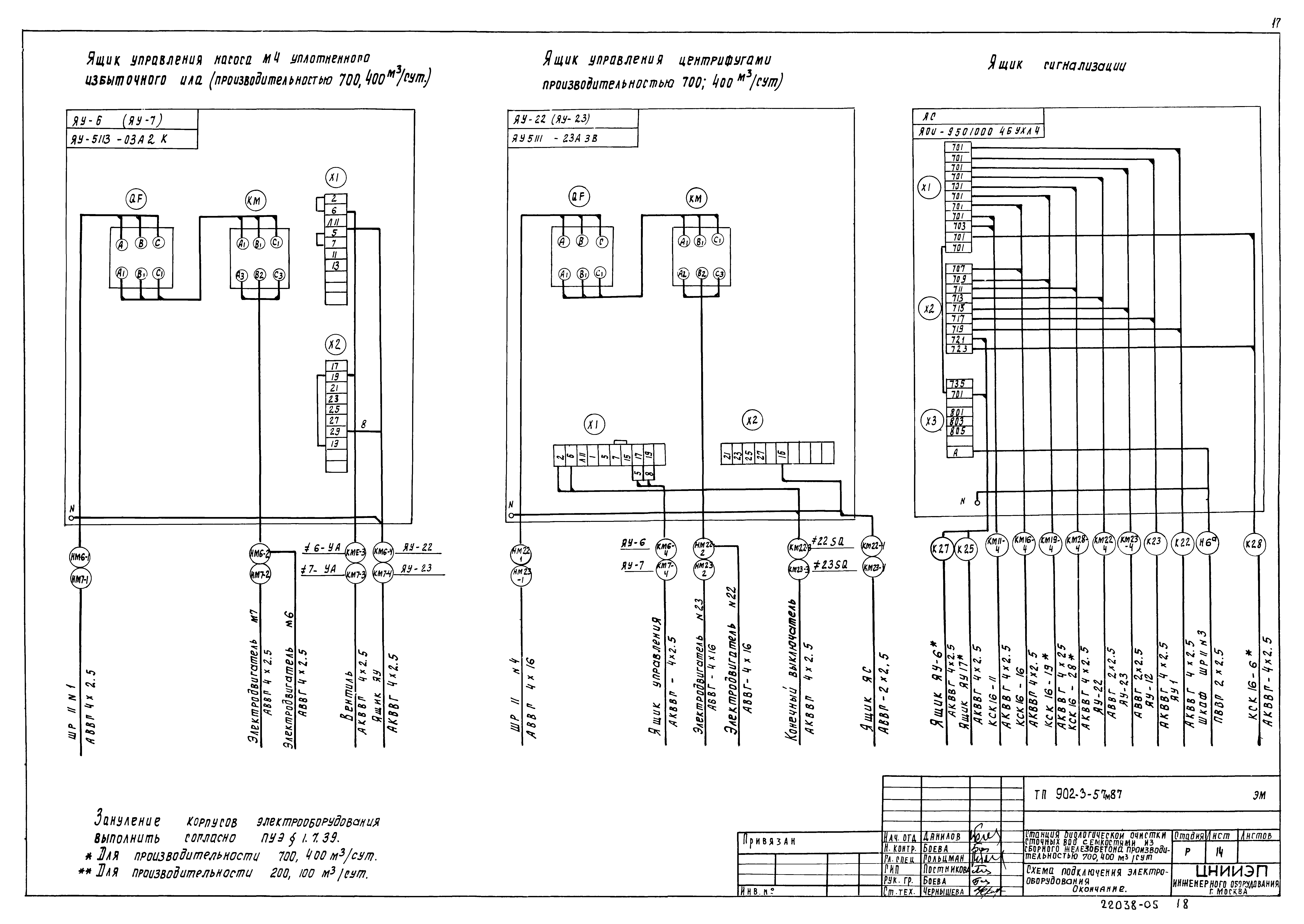
ТП 902-3-57м87-ЭМ-8 Схема электрическая принципиальная управления дренажными насосами и центрифугами
ТП 902-3-57м87-ЭМ-9 Схема электрическая принципиальная аварийной сигнализации
ТП 902-3-57м87-ЭМ-10 Схема подключения электрооборудования. Начало
ТП 902-3-57м87-ЭМ-11 Схема подключения электрооборудования. Продолжение
ТП 902-3-57м87-ЭМ-12 Схема подключения электрооборудования. Продолжение
ТП 902-3-57м87-ЭМ-13 Схема подключения электрооборудования. Продолжение
ТП 902-3-57м87-ЭМ-14 Схема подключения электрооборудования. Окончание
ТП 902-3-57м87-ЭМ-15 Кабельный журнал. Начало
ТП 902-3-57м87-ЭМ-16 Кабельный журнал. Продолжение
ТП 902-3-57м87-ЭМ-17 Кабельный журнал. Продолжение
ТП 902-3-57м87-ЭМ-18 Кабельный журнал. Продолжение
ТП 902-3-57м87-ЭМ-19 Кабельный журнал. Окончание
ТП 902-3-57м87-ЭМ-20 Размещение электрооборудования и прокладка кабеля. Начало
ТП 902-3-57м87-ЭМ-21 Размещение электрооборудования и прокладка кабеля. Продолжение
ТП 902-3-57м87-ЭМ-22 Размещение электрооборудования и прокладка кабеля. Продолжение
ТП 902-3-57м87-ЭМ-23 Размещение электрооборудования и прокладка кабеля. Окончание
ТП 902-3-57м87-ЭО-1 Общие данные
ТП 902-3-57м87-ЭО-2 Электрическое освещение. План на отм. 0.000
ТП 902-3-57м87-ЭО-3 Производительность 200,100 м³/сутки
ТП 902-3-57м87-АТХ Электрическое освещение. План на отм. 0.000
ТП 902-3-57м87-АТХ-1 Общие данные
ТП 902-3-57м87-АТХ-2 Схема функциональная. Начало
ТП 902-3-57м87-АТХ-3 Схема функциональная. Продолжение
ТП 902-3-57м87-АТХ-4 Схема функциональная. Окончание
ТП 902-3-57м87-АТХ-5 Схема соединений внешних проводок. Начало
ТП 902-3-57м87-АТХ-6 Схема соединений внешних проводок. Продолжение
ТП 902-3-57м87-АТХ-7 Схема соединений внешних проводок. Окончание
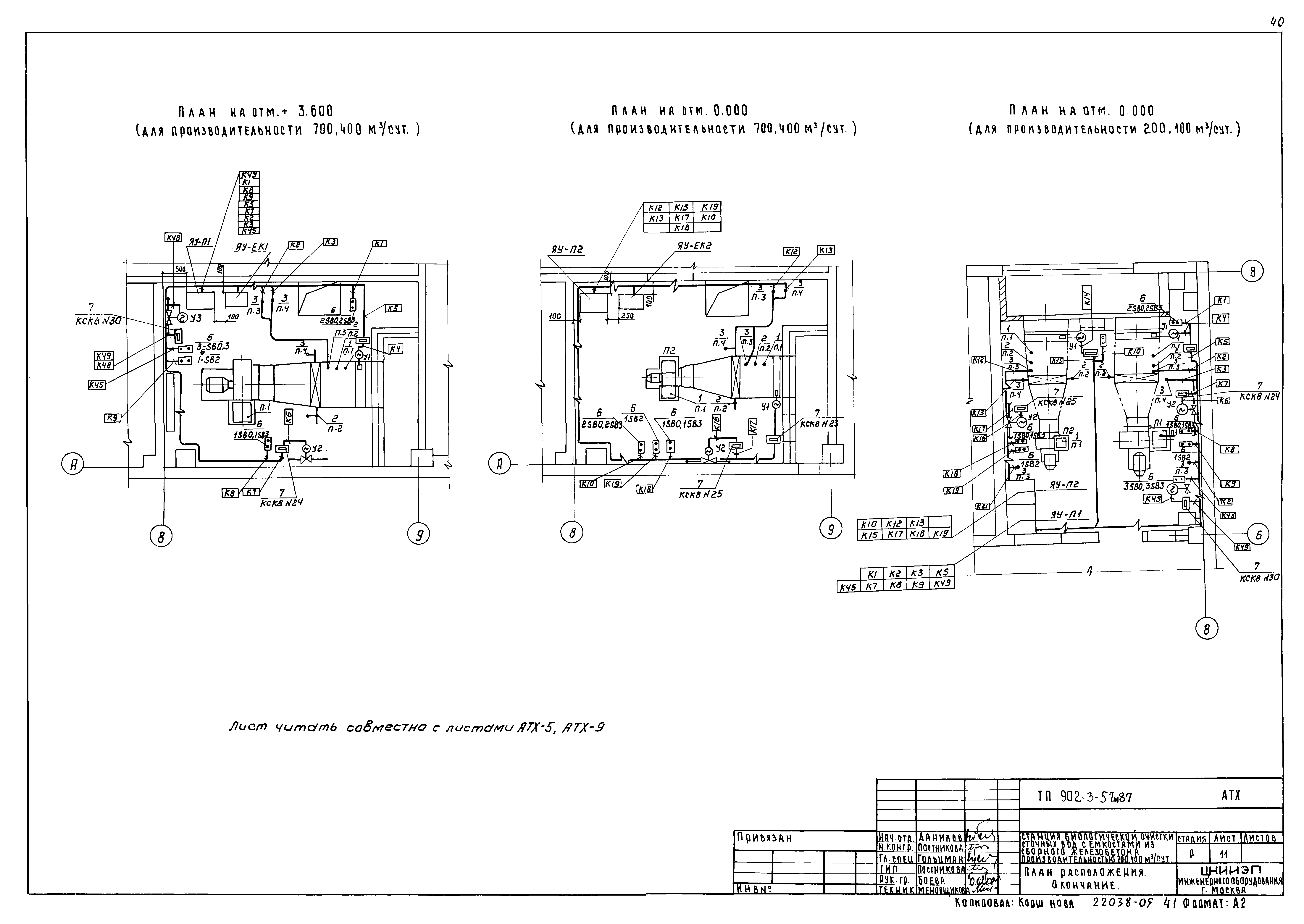
ТП 902-3-57м87-АТХ-8 План расположения. Начало
ТП 902-3-57м87-АТХ-9 План расположения. Продолжение
ТП 902-3-57м87-АТХ-10 План расположения. Продолжение
ТП 902-3-57м87-АТХ-11 План расположения. Окончание
ТП 902-3-57м87-СС-1 Общие данные. Скелетная схема. Спецификация
ТП 902-3-57м87-СС-2 План на отм. 0.000 с сетями связи и сигнализации. Экспликация помещений
ТП 902-3-57м87-СС-3 План на отм. 0.000 с сетями связи и сигнализации. Спецификация. Производительность 200,100 м³/сутки
Разработан: ЦНИИЭП инженерного оборудования
Утверждён:15.12.1986 Госгражданстрой (Gosgrazhdanstroy 422)
Издан: ЦИТП Госстроя СССР (CITP, Gosstroy (USSR) 1988 г. )
Расположен в:Техническая документация Строительство Справочные документы Типовые строительные конструкции, изделия и узлы Общероссийский строительный каталог Промышленные предприятия, здания и сооружения Здания и сооружения санитарно-технические Канализация Сооружения доочистки Сооружения биологической очистки сточных вод для трассы БАМ
Типовой проект 902-3-56м.87Типовой проект 902-3-56м.87Типовой проект 902-3-56м.87Типовой проект 902-3-56м.87Типовой проект 902-3-56м.87Типовой проект 902-3-56м.87Типовой проект 902-3-56м.87Типовой проект 902-3-56м.87Типовой проект 902-3-56м.87Типовой проект 902-3-56м.87Типовой проект 902-3-56м.87Типовой проект 902-3-56м.87Типовой проект 902-3-56м.87Типовой проект 902-3-56м.87Типовой проект 902-3-56м.87Типовой проект 902-3-56м.87Типовой проект 902-3-56м.87Типовой проект 902-3-56м.87Типовой проект 902-3-56м.87Типовой проект 902-3-56м.87Типовой проект 902-3-56м.87Типовой проект 902-3-56м.87Типовой проект 902-3-56м.87Типовой проект 902-3-56м.87Типовой проект 902-3-56м.87Типовой проект 902-3-56м.87Типовой проект 902-3-56м.87Типовой проект 902-3-56м.87Типовой проект 902-3-56м.87Типовой проект 902-3-56м.87Типовой проект 902-3-56м.87Типовой проект 902-3-56м.87Типовой проект 902-3-56м.87Типовой проект 902-3-56м.87Типовой проект 902-3-56м.87Типовой проект 902-3-56м.87Типовой проект 902-3-56м.87Типовой проект 902-3-56м.87Типовой проект 902-3-56м.87Типовой проект 902-3-56м.87Типовой проект 902-3-56м.87Типовой проект 902-3-56м.87Типовой проект 902-3-56м.87Типовой проект 902-3-56м.87Типовой проект 902-3-56м.87

© 2013 Ёшкин Кот :-) Карта сайта