Информационная система
«Ёшкин Кот»

Скачать базу одним архивом
Скачать обновления
История создания базы
Карта сайта

Скачать Типовой проект 902-3-56м.87 Альбом III. Архитектурно-строительные решения. Конструкции железобетонные и металлические

Дата актуализации: 10.08.2017

Типовой проект 902-3-56м.87

Альбом III. Архитектурно-строительные решения. Конструкции железобетонные и металлические

Обозначение: Типовой проект 902-3-56м.87
Обозначение англ: 902-3-56м.87
Статус:не определен законодательством
Название рус.:Альбом III. Архитектурно-строительные решения. Конструкции железобетонные и металлические
Дата добавления в базу:01.09.2013
Дата актуализации:05.05.2017
Дата введения:15.12.1986
Оглавление:ТП 902-3-57м87 Содержание альбома
ТП 902-3-57м87-АР Архитектурные решения
ТП 902-3-57м87-АР-1 Общие данные
ТП 902-3-57м87-АР-2 План на отм. 0.000. Деталь 1
ТП 902-3-57м87-АР-3 Разрезы 1-1,2-2,3-3. Фрагмент плана
ТП 902-3-57м87-АР-4 Фасады 1-8,8-1,А-В,В-А
ТП 902-3-57м87-АР-5 Ведомость проемов ворот и дверей. Ведомость и спецификация перемычек. Спецификация элементов заполнения проемов. Ведомость отделки помещений
ТП 902-3-57м87-АР-6 Планы полов и кровли
ТП 902-3-57м87-КЖ Конструкции железобетонные
ТП 902-3-57м87-КЖ-1 Общие данные (начало)
ТП 902-3-57м87-КЖ-2 Общие данные (окончание)
ТП 902-3-57м87-КЖ-3 Схема расположения свай для производительности 200 м³/сутки
ТП 902-3-57м87-КЖ-4 Схема расположения свай для производительности 100 м³/сутки
ТП 902-3-57м87-КЖ-5 Схема расположения монолитных ростверков и фундаментных балок. Узлы 1-3
ТП 902-3-57м87-КЖ-6 Схема расположения монолитных ростверков и фундаментных балок. Узлы 4-8
ТП 902-3-57м87-КЖ-7 Монолитные ростверки РМ1-РМ5. Опалубочный чертеж. Армирование
ТП 902-3-57м87-КЖ-8 Монолитные ростверки РМ6-РМ10. Опалубочный чертеж. Армирование
ТП 902-3-57м87-КЖ-9 Схема расположения плит перекрытия и ригелей над подпольем. Разрез 1-1
ТП 902-3-57м87-КЖ-10 Схема расположения плит перекрытия и ригелей над подпольем. Разрез 2-2÷8-8
ТП 902-3-57м87-КЖ-11 Схема расположения плит перекрытия и ригелей над подпольем. Разрез 9-9÷13-13. Монолитные участки УМ1-УМ5
ТП 902-3-57м87-КЖ-12 Схема расположения фундаментов под оборудование
ТП 902-3-57м87-КЖ-13 Фундаменты под оборудование ФО1-ФО8
ТП 902-3-57м87-КЖ-14 Схема расположения колонн и балок покрытия
ТП 902-3-57м87-КЖ-15 Схема расположения колонн и балок покрытия. Узлы 1-4
ТП 902-3-57м87-КЖ-16 Схема расположения плит покрытия
ТП 902-3-57м87-КЖ-17 Схема расположения плит перекрытия на отм. 3.000 и 2.400. УМ1. Армирование
ТП 902-3-57м87-КЖ-18 Схема расположения стеновых панелей
ТП 902-3-57м87-КЖ-19 Схема расположения стеновых панелей. Узлы 1 и 2
ТП 902-3-57м87-КЖ-20 Приточная венткамера
ТП 902-3-57м87-КЖ-21 Емкости. Схема расположения стеновых панелей, лотков
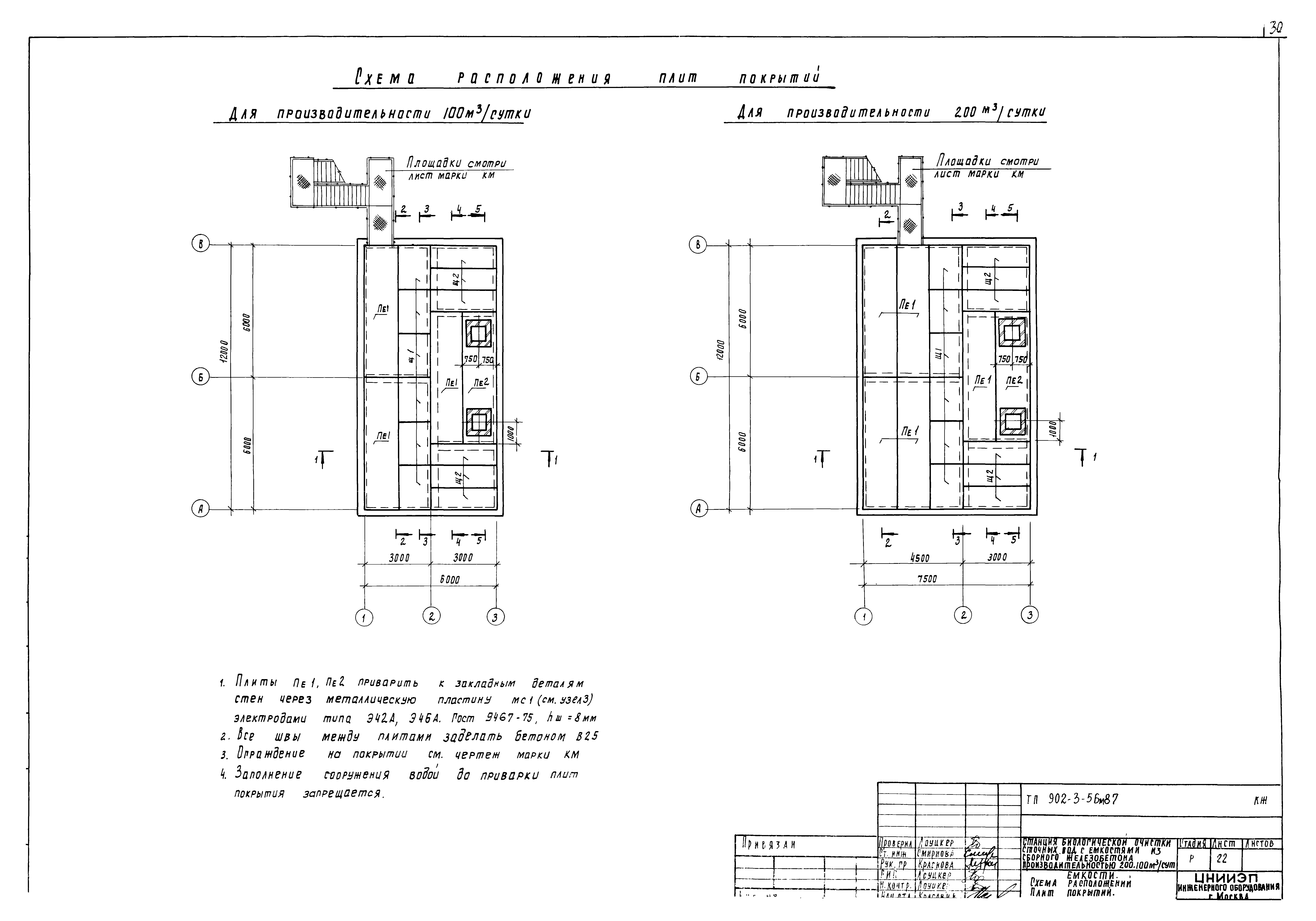
ТП 902-3-57м87-КЖ-22 Емкости. Схема расположения плит покрытий
ТП 902-3-57м87-КЖ-23 Емкости. Схема расположения стеновых панелей. Разрезы 2-2÷4-4
ТП 902-3-57м87-КЖ-24 Емкости. Схема расположения стеновых панелей. Узлы 1-5
ТП 902-3-57м87-КЖ-25 Емкости. Схема расположения стеновых панелей. Узел 6. Щиты Щ1-Щ3
ТП 902-3-57м87-КЖ-26 Емкости. Спецификация к схемам расположения панелей, лотков, плит покрытия
ТП 902-3-57м87-КЖ-27 Емкости. Схема расположения набетонки в отстойнике
ТП 902-3-57м87-КЖ-28 Емкости. Днище. Опалубочный чертеж. План. Разрезы
ТП 902-3-57м87-КЖ-29 Емкости. Днище. Опалубочный чертеж. Узлы
ТП 902-3-57м87-КЖ-30 Емкости. Днище. Армирование. Схема расположения нижних сеток. Разрезы 1-1;3-3÷5-5
ТП 902-3-57м87-КЖ-31 Емкости. Днище. Армирование. Схема расположения верхних сеток
ТП 902-3-57м87-КЖ-32 Емкости. Днище. Армирование. Спецификации
ТП 902-3-57м87-КЖ-33 Емкости. Монолитные участки УМЕ1-УМЕ14. Опалубочный чертеж
ТП 902-3-57м87-КЖ-34 Емкости. Монолитные участки УМЕ1-УМЕ14. Армирование
ТП 902-3-57м87-КЖ-35 Емкости. Монолитные участки УМЕ5,УМЕ6. Армирование
ТП 902-3-57м87-КЖ-36 Емкости. Монолитные участки УМЕ7-УМЕ14. Армирование
ТП 902-3-57м87-КЖ-37 Емкости. Монолитные участки УМЕ1-УМЕ14. Спецификации
ТП 902-3-57м87-КЖ-38 Емкости. Схема расположения утепляющих панелей
ТП 902-3-57м87-КЖ-39 Емкости. Схема расположения утепляющих панелей. Разрезы. Узлы
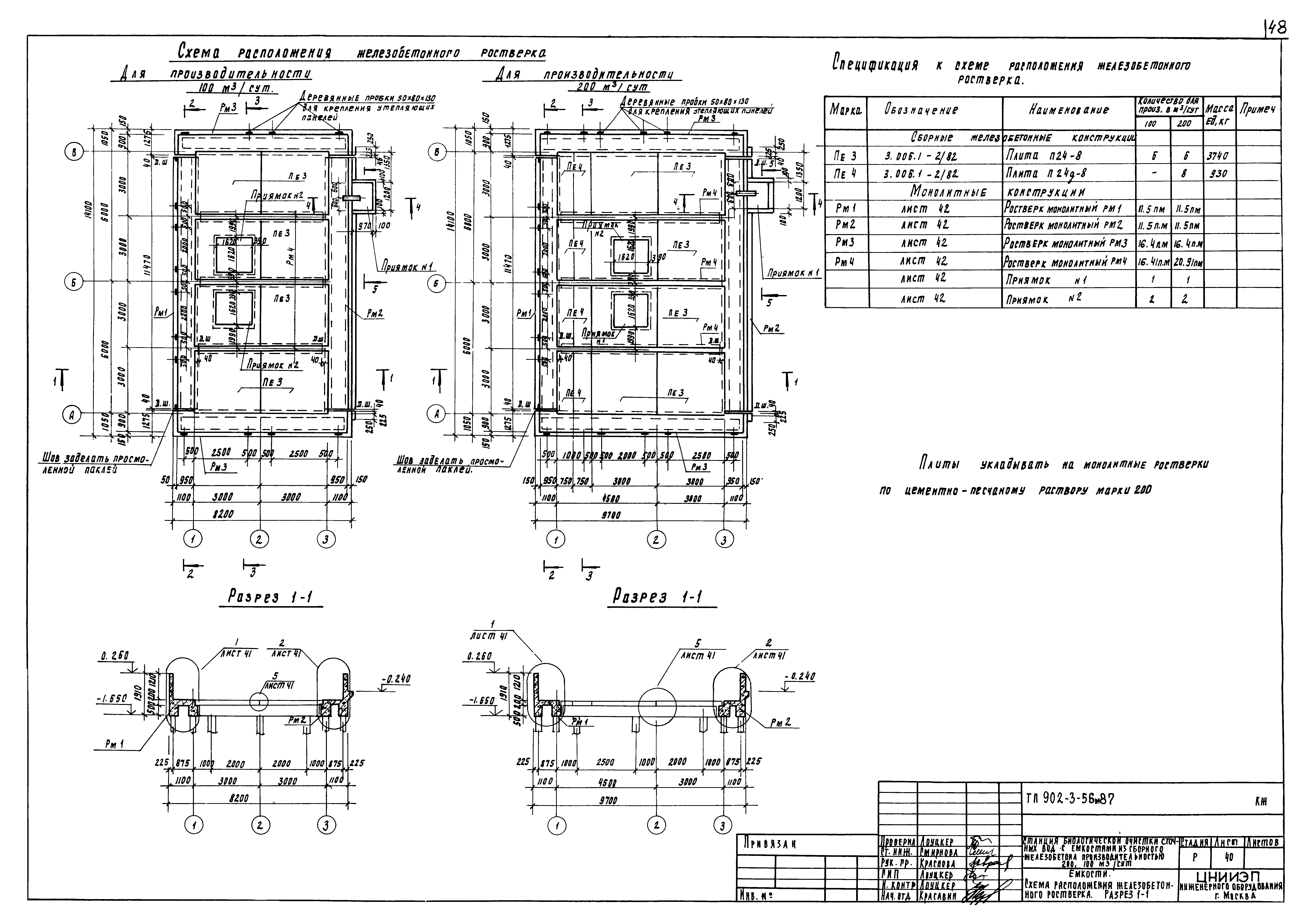
ТП 902-3-57м87-КЖ-40 Емкости. Схема расположения железобетонного ростверка. Разрез 1-1
ТП 902-3-57м87-КЖ-41 Емкости. Схема расположения железобетонного ростверка. Разрезы 2-2÷5-5. Узлы
ТП 902-3-57м87-КЖ-42 Емкости. Железобетонный ростверк РМ1-РМ4. Армирование
ТП 902-3-57м87-КЖ-43 Емкости. Схема расположения цементно-песчаной стяжки по поддону
ТП 902-3-57м87-КМ Конструкции металлические
ТП 902-3-57м87-КМ-1 Общие данные (начало). Техническая спецификация стали
ТП 902-3-57м87-КМ-2 Общие данные (продолжение). Техническая спецификация стали на типовые конструкции
ТП 902-3-57м87-КМ-3 Общие данные (окончание). Ведомость металлоконструкций по видам профилей
ТП 902-3-57м87-КМ-4 Схема расположения подвесных путей
ТП 902-3-57м87-КМ-5 Схема расположения металлических площадок
ТП 902-3-57м87-КМ-6 Схема расположения лестниц и площадок емкостей
ТП 902-3-57м87-КМ-7 Схема расположения опор под трубопроводы
ТП 902-3-57м87-ОС Организация строительства
ТП 902-3-57м87-ОС-1 Схема стройгенплана на возведение наземной части здания
ТП 902-3-57м87-ОС-2 График производства работ (начало)
ТП 902-3-57м87-ОС-3 График производства работ (окончание)
Разработан: ЦНИИЭП инженерного оборудования
Утверждён:15.12.1986 Госгражданстрой (Gosgrazhdanstroy 422)
Издан: ЦИТП Госстроя СССР (CITP, Gosstroy (USSR) 1988 г. )
Расположен в:Техническая документация Строительство Справочные документы Типовые строительные конструкции, изделия и узлы Общероссийский строительный каталог Промышленные предприятия, здания и сооружения Здания и сооружения санитарно-технические Канализация Сооружения доочистки Сооружения биологической очистки сточных вод для трассы БАМ
Типовой проект 902-3-56м.87Типовой проект 902-3-56м.87Типовой проект 902-3-56м.87Типовой проект 902-3-56м.87Типовой проект 902-3-56м.87Типовой проект 902-3-56м.87Типовой проект 902-3-56м.87Типовой проект 902-3-56м.87Типовой проект 902-3-56м.87Типовой проект 902-3-56м.87Типовой проект 902-3-56м.87Типовой проект 902-3-56м.87Типовой проект 902-3-56м.87Типовой проект 902-3-56м.87Типовой проект 902-3-56м.87Типовой проект 902-3-56м.87Типовой проект 902-3-56м.87Типовой проект 902-3-56м.87Типовой проект 902-3-56м.87Типовой проект 902-3-56м.87Типовой проект 902-3-56м.87Типовой проект 902-3-56м.87Типовой проект 902-3-56м.87Типовой проект 902-3-56м.87Типовой проект 902-3-56м.87Типовой проект 902-3-56м.87Типовой проект 902-3-56м.87Типовой проект 902-3-56м.87Типовой проект 902-3-56м.87Типовой проект 902-3-56м.87Типовой проект 902-3-56м.87Типовой проект 902-3-56м.87Типовой проект 902-3-56м.87Типовой проект 902-3-56м.87Типовой проект 902-3-56м.87Типовой проект 902-3-56м.87Типовой проект 902-3-56м.87Типовой проект 902-3-56м.87Типовой проект 902-3-56м.87Типовой проект 902-3-56м.87Типовой проект 902-3-56м.87Типовой проект 902-3-56м.87Типовой проект 902-3-56м.87Типовой проект 902-3-56м.87Типовой проект 902-3-56м.87Типовой проект 902-3-56м.87Типовой проект 902-3-56м.87Типовой проект 902-3-56м.87Типовой проект 902-3-56м.87Типовой проект 902-3-56м.87Типовой проект 902-3-56м.87Типовой проект 902-3-56м.87Типовой проект 902-3-56м.87Типовой проект 902-3-56м.87Типовой проект 902-3-56м.87Типовой проект 902-3-56м.87Типовой проект 902-3-56м.87Типовой проект 902-3-56м.87Типовой проект 902-3-56м.87Типовой проект 902-3-56м.87Типовой проект 902-3-56м.87Типовой проект 902-3-56м.87

© 2013 Ёшкин Кот :-) Карта сайта