Скачать Шифр М24.06/09 Стены, покрытия, чердачные перекрытия перегородки и полы зданий с применением теплозвукоизоляционных панелей Барлайт. Материалы для проектирования и чертежи узловДата актуализации: 10.08.2017 Шифр М24.06/09
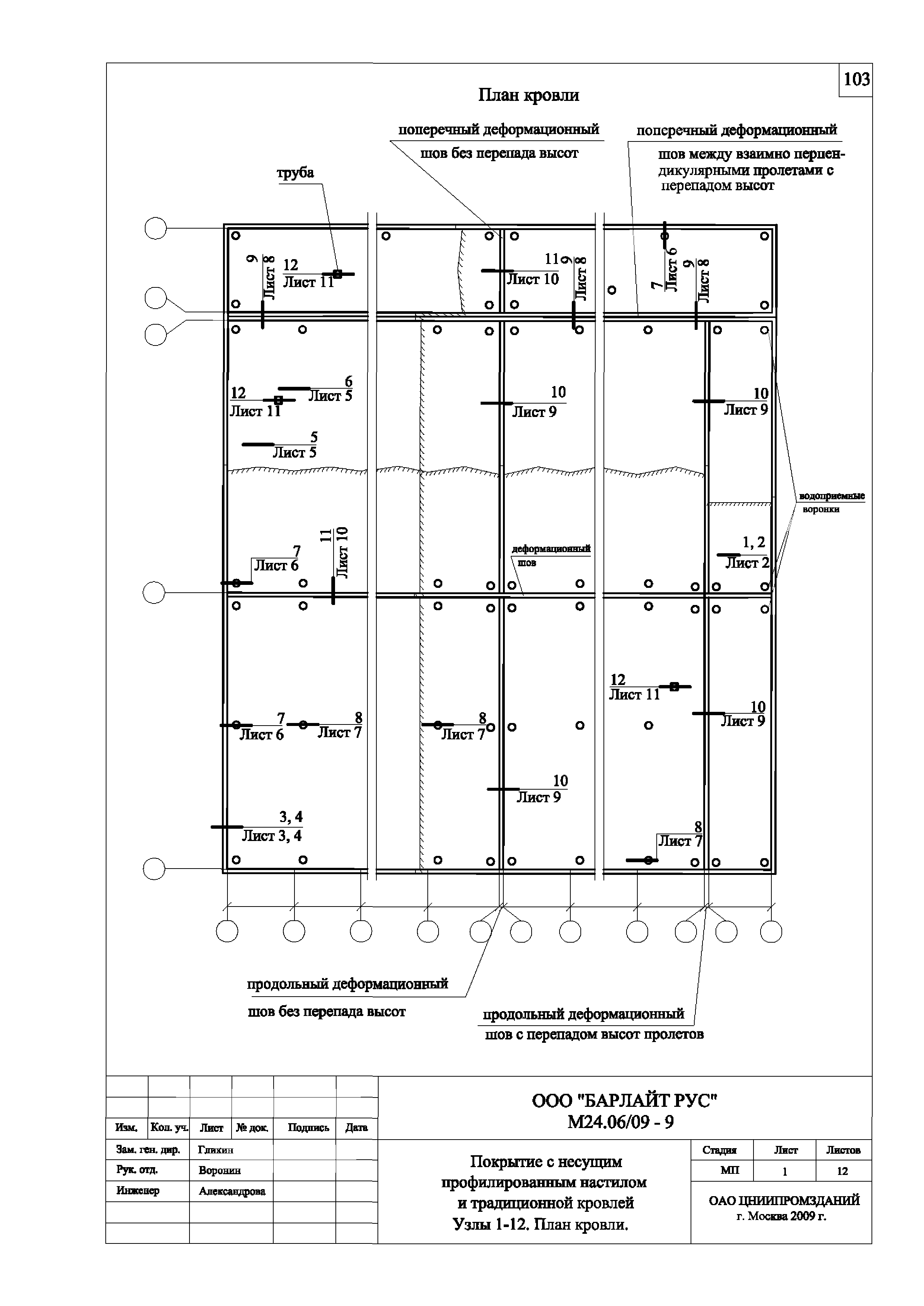
Стены, покрытия, чердачные перекрытия перегородки и полы зданий с применением теплозвукоизоляционных панелей "Барлайт". Материалы для проектирования и чертежи узловОбозначение: | Шифр М24.06/09 | Обозначение англ: | М24.06/09 | Статус: | не определен законодательством | Название рус.: | Стены, покрытия, чердачные перекрытия перегородки и полы зданий с применением теплозвукоизоляционных панелей "Барлайт". Материалы для проектирования и чертежи узлов | Дата добавления в базу: | 01.09.2013 | Дата актуализации: | 05.05.2017 | Дата введения: | 01.01.2010 | Область применения: | Альбом содержит материалы для проектирования и чертежи узлов наружных стен, стен подвалов, перегородок, бесчердачных покрытий, чердачных перекрытий, и полов, в том числе, холодильников, зданий различного назначения с применением теплозвукоизоляционных панелей БАРЛАЙТ, а также элементов конструктивного и декоративного оформления помещений | Оглавление: | М24.06/09 Сертификат соответствия М24.06/09-ПЗ Пояснительная записка М24.06/09-ПЗ 1. Общие положения М24.06/09-ПЗ 2. Номенклатура панелей Барлайт М24.06/09-ПЗ 3. Нормы теплозащиты и данные по толщине теплоизоляционной основы панелей Барлайт М24.06/09-ПЗ 4. Панели Барлайт в наружных стенах М24.06/09-ПЗ 4.1. Стены с расположением панелей БАРЛАИТ с наружной поверхности М24.06/09-ПЗ 4.2. Стены с расположением панелей БАРЛАИТ с внутренней поверхности М24.06/09-ПЗ 5. Панели Барлайт в стенах подвалов М24.06/09-ПЗ 6. Панели Барлайт в полах М24.06/09-ПЗ 6.1. Полы производственных, жилых, общественных и других зданий М24.06/09-ПЗ 6.2. Полы холодильников М24.06/09-ПЗ 7. Панели Барлайт в чердачных перекрытиях (с холодным чердаком) М24.06/09-ПЗ 8. Панели Барлайт в ограждающих конструкциях остекленных балконов и лоджий М24.06/09-ПЗ 9. Панели Барлайт в бесчердачных покрытиях М24.06/09-ПЗ 9.1. Покрытия с несущими конструкциями из железобетона с традиционной кровлей. Новое строительство М24.06/09-ПЗ 9.2. Покрытия с несущими конструкциями из железобетона с инверсионной кровлей. Новое строительство М24.06/09-ПЗ 9.3. Покрытия с несущими конструкциями из железобетона и традиционной кровли. Реконструкция М24.06/09-ПЗ 9.4. Покрытия с несущими конструкциями из железобетона и инверсионной кровлей. Реконструкция М24.06/09-ПЗ 9.5. Панели Барлайт в покрытиях по стальным профилированным настилам и традиционной кровлей. Новое строительство. М24.06/09-ПЗ 10. Панели Барлайт в перегородках М24.06/09-ПЗ 11. Элементы внутренней отделки из панелей БАРЛАИТ М24.06/09-ПЗ 12. Элементы крепления оборудования к панелям БАРЛАИТ М24.06/09-1 Раздел 1. Панели Барлаит в наружных стенах зданий, с наружной поверхности М24.06/09-2 Раздел 2. Панели Барлаит в наружных стенах зданий с внутренней поверхности М24.06/09-3 Раздел 3. Перегородки из панелей Барлаит с металлическим каркасом М24.06/09-4 Раздел 4. Перегородки из панелей Барлаит с деревянным каркасом М24.06/09-5 Раздел 5. Панели Барлаит в полах жилых, общественных, бытовых, производственных (в том числе холодильников) и других зданий М24.06/09-6 Раздел 6. Панели Барлаит в ограждающих конструкциях остекленных балконов и лоджий М24.06/09-7 Раздел 7. Панели Барлаит в чердачных перекрытиях (с холодным чердаком) М24.06/09-8 Раздел 8. Панели Барлаит в бесчердачных покрытиях с несущими конструкциями из сборного или монолитного железобетона. Новое строительство М24.06/09-9 Раздел 9. Бесчердачные покрытия по стальным профилированным настилам с традиционной кровлей. Новое строительство Приложение 1. Пример теплотехнического расчета наружной стены (новое строительство) Приложение 2. Пример теплотехнического расчета наружной стены (реконструкция) Приложение 3. Толщина теплоизоляционной основы панелей Барлаит из плит экструдированного пенополистирола для стен Приложение 4. Пример теплотехнического расчета покрытия (новое строительство) Приложение 5. Пример теплотехнического расчета покрытия (реконструкция) Приложение 6. Толщина теплоизоляционной основы панелей Барлаит из плит экструдированного пенополистирола для покрытий Приложение 7. Пример расчета сопротивления паропроницанию наружной стены Приложение 8. Пример расчета сопротивления паропроницанию покрытия Приложение 9. Рекомендуемые типы дюбелей для крепления к стенам панелей БАРЛАИТ Приложение 10. Пример определения показателя теплоусвоения поверхности пола. Приложение 11. Пример определения возможности конденсации влаги внутри стены подвала | Разработан: | ЦНИИпромзданий
| Утверждён: | 26.11.2009 ОАО ЦНИИпромзданий (TsNIIpromzdaniy OAO )
| Расположен в: |
|
                                                                                                                                                         
|