Информационная система
«Ёшкин Кот»

Скачать базу одним архивом
Скачать обновления
История создания базы
Карта сайта

Скачать Типовой проект 904-1-66.86 Альбом 4. Автоматизация и КИП. Задание заводу-изготовителю

Дата актуализации: 10.08.2017

Типовой проект 904-1-66.86

Альбом 4. Автоматизация и КИП. Задание заводу-изготовителю

Обозначение: Типовой проект 904-1-66.86
Обозначение англ: 904-1-66.86
Статус:действует
Название рус.:Альбом 4. Автоматизация и КИП. Задание заводу-изготовителю
Дата добавления в базу:01.09.2013
Дата актуализации:05.05.2017
Оглавление:ТП 904-1-66.86 Титульный лист
ТП 904-1-66.86-АОИ.00.ДЩ Перечень технической документации
ТП 904-1-66.86-АОИ.00.ТО Техническое описание к применению выпуска
ТП 904-1-66.86 Компрессорная станция 6К-250АО
ТП 904-1-66.86-АОИ.01.СО2 Спецификация щитов
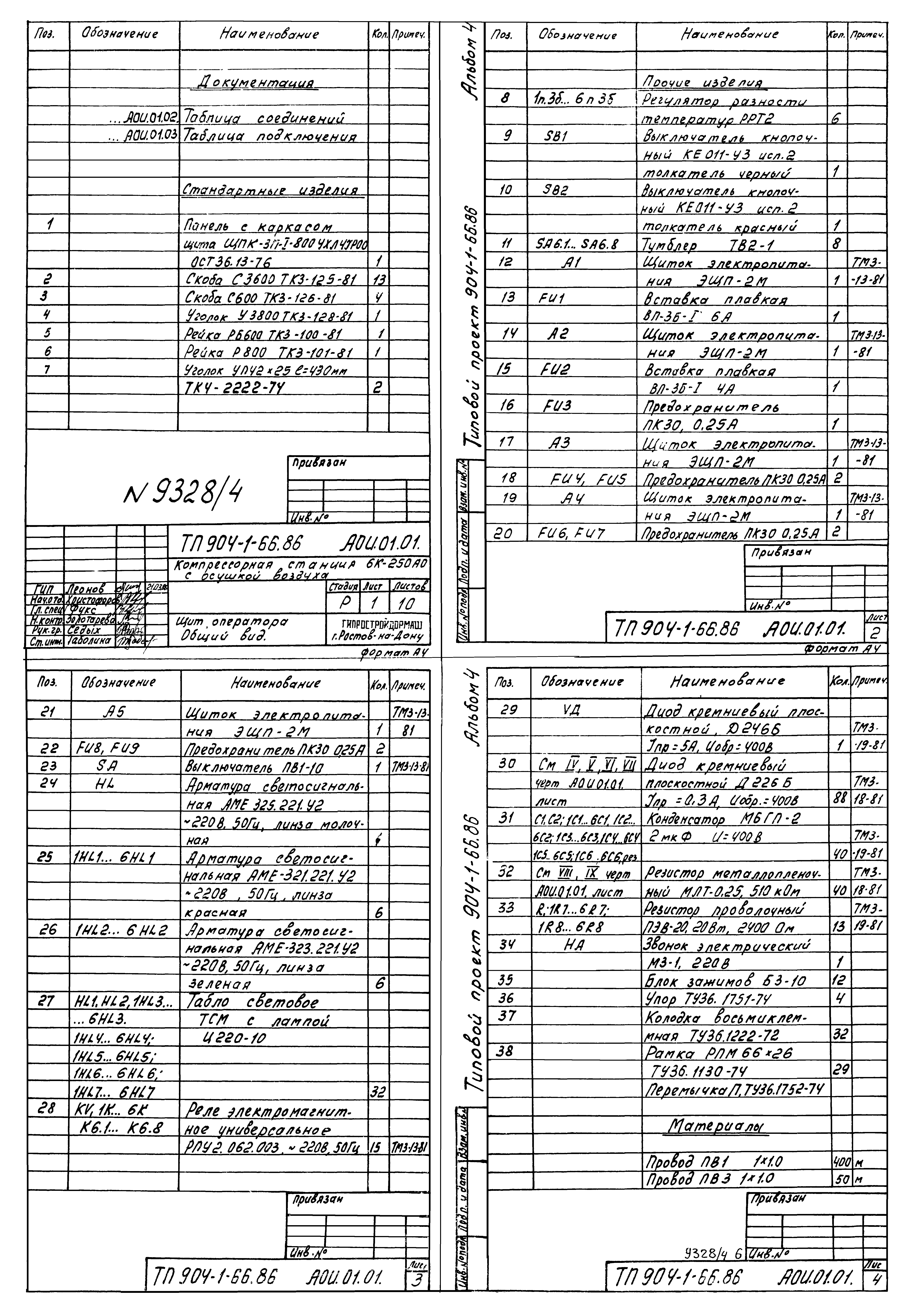
ТП 904-1-66.86-АОИ.01.01 Щит оператора. Общий вид
ТП 904-1-66.86-АОИ.01.02 Щит оператора. Таблица соединений
ТП 904-1-66.86-АОИ.01.03 Щит оператора. Таблица подключения
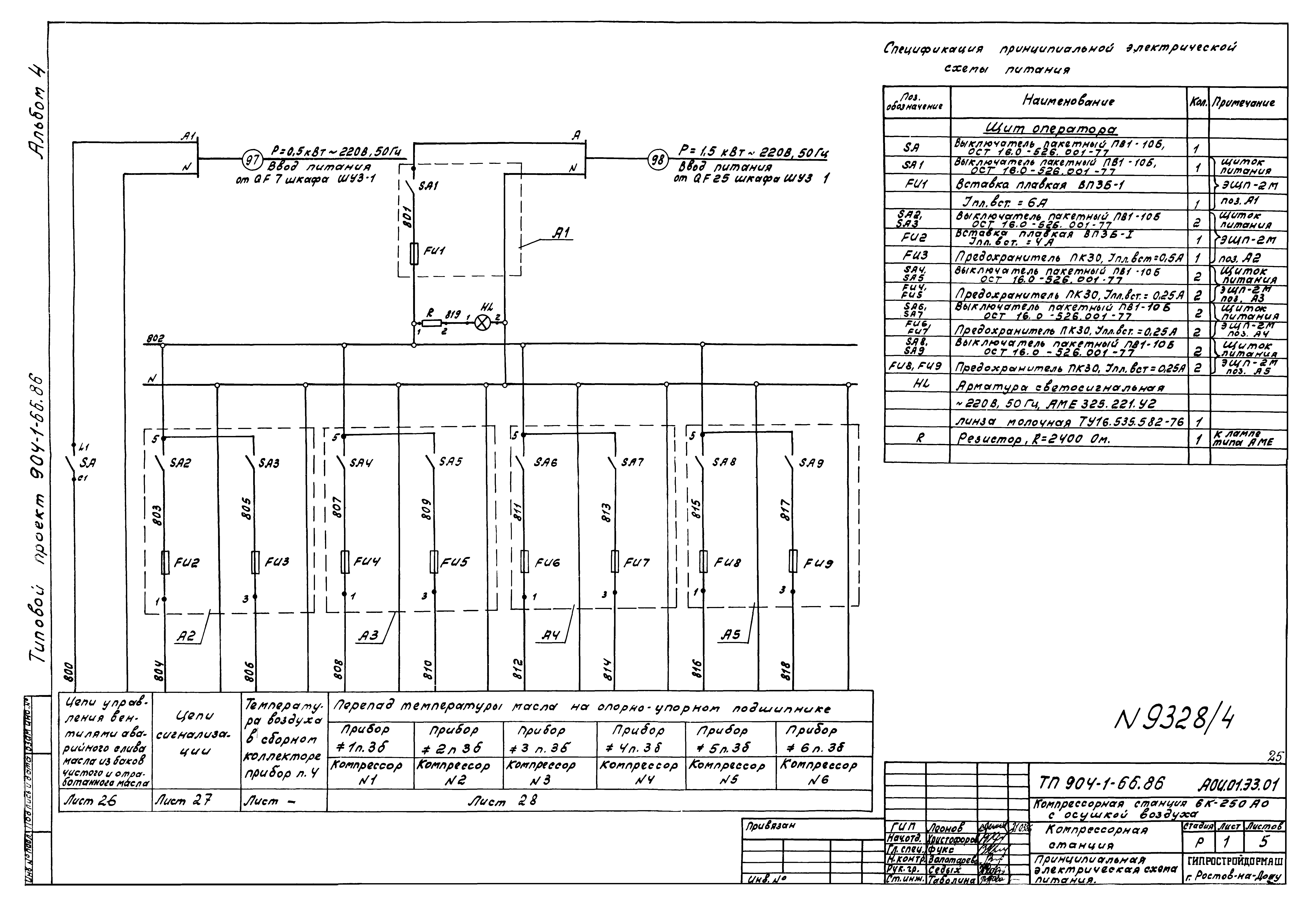
ТП 904-1-66.86-АОИ.01.ЭЗ.01 Принципиальная электрическая схема питания
ТП 904-1-66.86-АОИ.01.ЭЗ.02 Принципиальная электрическая схема управления вентилями аварийного слива масла
ТП 904-1-66.86-АОИ.01.ЭЗ.03 Установка осушки. Принципиальная электрическая схема сигнализации
ТП 904-1-66.86-АОИ.01.ЭЗ.04 Компрессорная станция. Принципиальная электрическая схема сигнализации (начало)
ТП 904-1-66.86-АОИ.01.ЭЗ.04 Компрессорная станция. Принципиальная электрическая схема сигнализации (окончание)
ТП 904-1-66.86 Компрессорная станция 4К-250АО
ТП 904-1-66.86-АОИ.02.СО2 Спецификация щитов
ТП 904-1-66.86-АОИ.02.01 Щит оператора. Общий вид
ТП 904-1-66.86-АОИ.02.02 Щит оператора. Таблица соединений
ТП 904-1-66.86-АОИ.02.03 Щит оператора. Таблица подключения
ТП 904-1-66.86-АОИ.02.ЭЗ.01 Принципиальная электрическая схема питания
ТП 904-1-66.86-АОИ.02.ЭЗ.02 Принципиальная электрическая схема управления вентилями аварийного слива масла
ТП 904-1-66.86-АОИ.02.ЭЗ.03 Установка осушки. Принципиальная электрическая схема сигнализации
ТП 904-1-66.86-АОИ.02.ЭЗ.04 Компрессорная станция. Принципиальная электрическая схема сигнализации
Разработан: Гипростройдормаш
Утверждён:28.03.1986 Минстройдормаш (Minstroydormash 13/86)
Издан: ЦИТП Госстроя СССР (CITP, Gosstroy (USSR) 1987 г. )
Расположен в:Техническая документация Строительство Справочные документы Типовые строительные конструкции, изделия и узлы Общероссийский строительный каталог Промышленные предприятия, здания и сооружения Здания и сооружения санитарно-технические Воздухоснабжение, вентиляция и кондиционирование воздуха Воздухоснабжение
Типовой проект 904-1-66.86Типовой проект 904-1-66.86Типовой проект 904-1-66.86Типовой проект 904-1-66.86Типовой проект 904-1-66.86Типовой проект 904-1-66.86Типовой проект 904-1-66.86Типовой проект 904-1-66.86Типовой проект 904-1-66.86Типовой проект 904-1-66.86Типовой проект 904-1-66.86Типовой проект 904-1-66.86Типовой проект 904-1-66.86Типовой проект 904-1-66.86Типовой проект 904-1-66.86Типовой проект 904-1-66.86Типовой проект 904-1-66.86Типовой проект 904-1-66.86Типовой проект 904-1-66.86Типовой проект 904-1-66.86Типовой проект 904-1-66.86Типовой проект 904-1-66.86Типовой проект 904-1-66.86Типовой проект 904-1-66.86Типовой проект 904-1-66.86Типовой проект 904-1-66.86Типовой проект 904-1-66.86Типовой проект 904-1-66.86Типовой проект 904-1-66.86Типовой проект 904-1-66.86Типовой проект 904-1-66.86Типовой проект 904-1-66.86Типовой проект 904-1-66.86Типовой проект 904-1-66.86Типовой проект 904-1-66.86Типовой проект 904-1-66.86Типовой проект 904-1-66.86Типовой проект 904-1-66.86Типовой проект 904-1-66.86Типовой проект 904-1-66.86Типовой проект 904-1-66.86Типовой проект 904-1-66.86Типовой проект 904-1-66.86Типовой проект 904-1-66.86Типовой проект 904-1-66.86Типовой проект 904-1-66.86Типовой проект 904-1-66.86Типовой проект 904-1-66.86Типовой проект 904-1-66.86Типовой проект 904-1-66.86Типовой проект 904-1-66.86Типовой проект 904-1-66.86

© 2013 Ёшкин Кот :-) Карта сайта