Информационная система
«Ёшкин Кот»

Скачать базу одним архивом
Скачать обновления
История создания базы
Карта сайта

Скачать Типовой проект 902-2-331 Альбом 2. Тип V. Технологическая и строительная части. Q = 10000 - 17000 куб. м/сутки

Дата актуализации: 10.08.2017

Типовой проект 902-2-331

Альбом 2. Тип V. Технологическая и строительная части. Q = 10000 - 17000 куб. м/сутки

Обозначение: Типовой проект 902-2-331
Обозначение англ: 902-2-331
Статус:действует
Название рус.:Альбом 2. Тип V. Технологическая и строительная части. Q = 10000 - 17000 куб. м/сутки
Дата добавления в базу:01.09.2013
Дата актуализации:05.05.2017
Дата введения:20.09.1979
Оглавление:ТП 902-2-331 Титульный лист
ТП 902-2-331 Содержание альбома
ТП 902-2-331-НК-1 Общие данные
ТП 902-2-331-НК-2 План
ТП 902-2-331-НК-3 Разрезы 1-1,2-2
ТП 902-2-331-КЖ-1 Монолитный вариант. Общие данные
ТП 902-2-331-КЖ-2 Сборный вариант. Общие данные
ТП 902-2-331-КЖ-3 Монолитный вариант. Общий чертеж. План. Разрезы. Спецификация
ТП 902-2-331-КЖ-4 Монолитный вариант. Опалубочный чертеж песколовок
ТП 902-2-331-КЖ-5 Монолитный вариант. Арматурный чертеж песколовок
ТП 902-2-331-КЖ-6 Сборный вариант. Монтажный чертеж
ТП 902-2-331-КЖ-7 Сборный вариант. Монтажный чертеж. Узлы
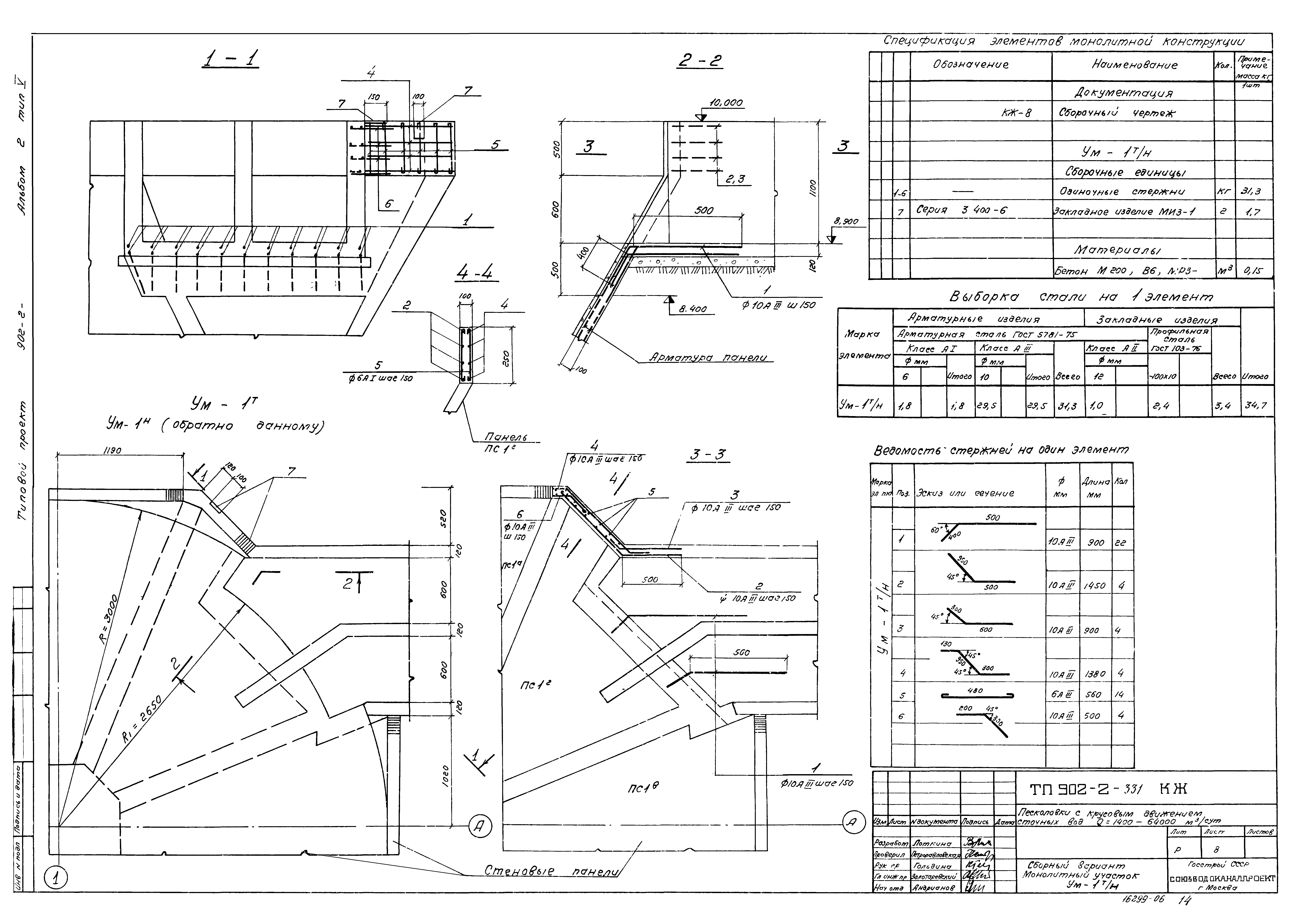
ТП 902-2-331-КЖ-8 Сборный вариант. Монолитный участок УМ-1т/н
ТП 902-2-331-КЖ-9 Детали крепления разделительного щита, мостиков, ограждений
ТП 902-2-331-КЖ-10 Лотки. Арматурно-опалубочный чертеж. План
ТП 902-2-331-КЖ-11 Лотки. Арматурный чертеж днища
ТП 902-2-331-КЖ-12 Лотки. Арматурно-опалубочный чертеж. Сечения 1-1÷4-4. Спецификация
ТП 902-2-331-КЖ-13 Лотки. Арматурно-опалубочный чертеж. Сечения 5-5÷7-7
ТП 902-2-331-КЖ-14 Камера переключения. Общий чертеж. Спецификация
Разработан: Союзводоканалпроект
Утверждён:12.03.1979 Союзводоканалпроект (Soyuzvodokanalproject 13)
Расположен в:Техническая документация Строительство Справочные документы Типовые строительные конструкции, изделия и узлы Общероссийский строительный каталог Промышленные предприятия, здания и сооружения Здания и сооружения санитарно-технические Канализация Сооружения механической очистки Песколовки
Типовой проект 902-2-331Типовой проект 902-2-331Типовой проект 902-2-331Типовой проект 902-2-331Типовой проект 902-2-331Типовой проект 902-2-331Типовой проект 902-2-331Типовой проект 902-2-331Типовой проект 902-2-331Типовой проект 902-2-331Типовой проект 902-2-331Типовой проект 902-2-331Типовой проект 902-2-331Типовой проект 902-2-331Типовой проект 902-2-331Типовой проект 902-2-331Типовой проект 902-2-331Типовой проект 902-2-331Типовой проект 902-2-331Типовой проект 902-2-331Типовой проект 902-2-331

© 2013 Ёшкин Кот :-) Карта сайта