Скачать Серия 1.460.3-18 Выпуск 1. Покрытия пролетами 18, 24 и 30 м для зданий, возводимых в районах с расчетными температурами минус 40 градусов Цельсия и выше. ЧертежиДата актуализации: 10.08.2017 Серия 1.460.3-18
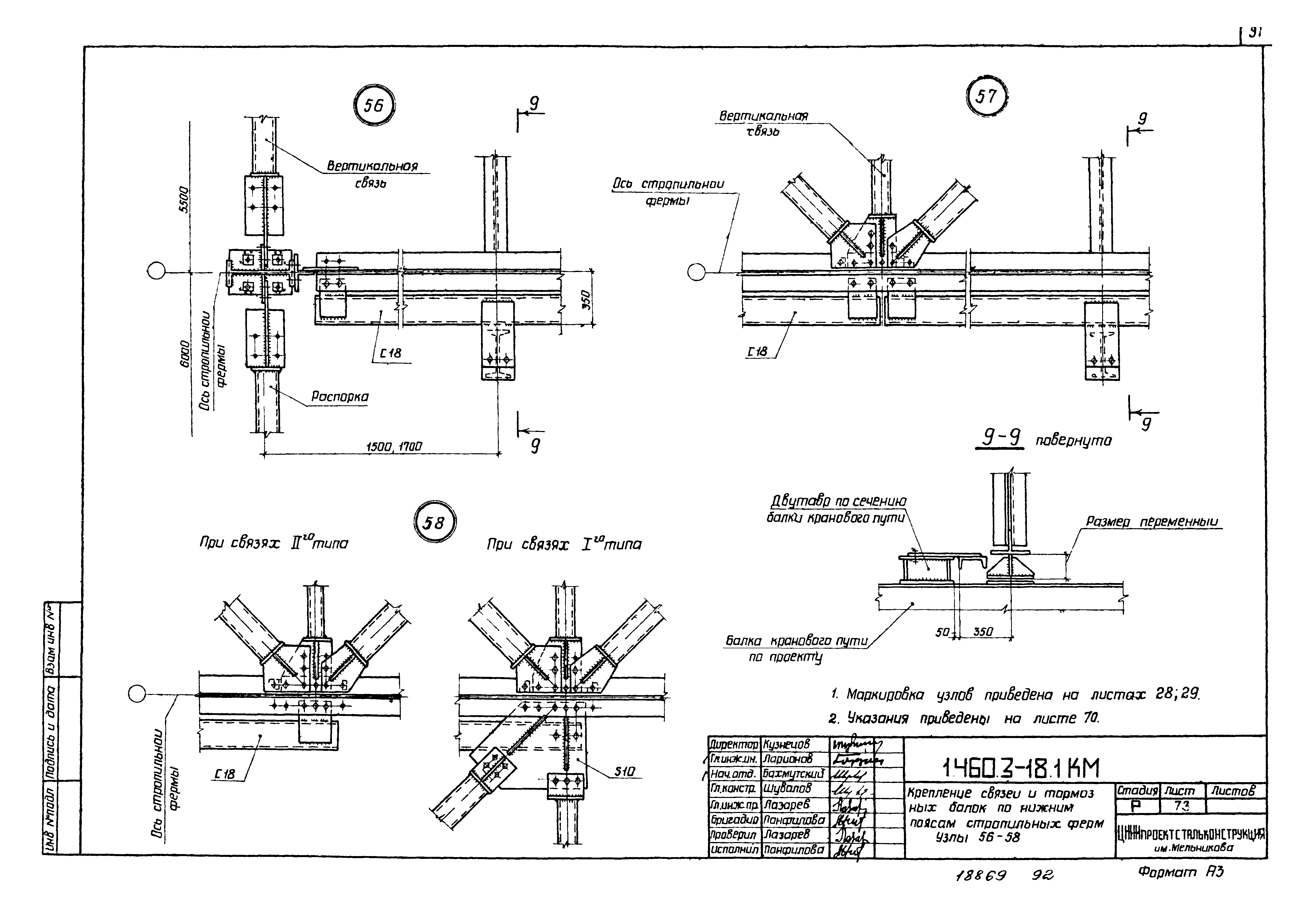
Выпуск 1. Покрытия пролетами 18, 24 и 30 м для зданий, возводимых в районах с расчетными температурами минус 40 градусов Цельсия и выше. ЧертежиОбозначение: | Серия 1.460.3-18 | Обозначение англ: | Series 1.460.3-18 | Статус: | не действует | Название рус.: | Выпуск 1. Покрытия пролетами 18, 24 и 30 м для зданий, возводимых в районах с расчетными температурами минус 40 градусов Цельсия и выше. Чертежи | Дата добавления в базу: | 01.09.2013 | Дата актуализации: | 05.05.2017 | Дата окончания срока действия: | 01.05.1989 | Оглавление: | 1.460.3-18.1КМ Лист 1.1-1.9 Пояснительная записка 1.460.3-18.1КМ Лист 1.10 Пример пользования материалами данного выпуска (начало) 1.460.3-18.1КМ Лист 1.11 Пример пользования материалами данного выпуска (продолжение) 1.460.3-18.1КМ Лист 1.12 Пример пользования материалами данного выпуска (окончание) 1.460.3-18.1КМ Лист 2 Эквивалентные нагрузки от подвесных кранов. Шаг стропильных ферм 6 м 1.460.3-18.1КМ Лист 3 Эквивалентные нагрузки на стропильные фермы от снега в зданиях с пролетами одинаковой высоты и от фонаря 1.460.3-18.1КМ Лист 4 Эквивалентные нагрузки на стропильные фермы от снега у перепада высоты здания при кровле по профилированному настилу (начало) 1.460.3-18.1КМ Лист 5 Эквивалентные нагрузки на стропильные фермы от снега у перепада высоты здания при кровле по профилированному настилу (окончание) 1.460.3-18.1КМ Лист 6 Эквивалентные нагрузки на стропильные фермы от снега у перепада высоты здания при кровле по железобетонным плитам (начало) 1.460.3-18.1КМ Лист 7 Эквивалентные нагрузки на стропильные фермы от снега у перепада высоты здания при кровле по железобетонным плитам (окончание) 1.460.3-18.1КМ Лист 8 Схемы стропильных и подстропильных ферм с марганцовкой заводских и монтажных узлов 1.460.3-18.1КМ Лист 9 Схемы стропильных ферм при наличии подвесного транспорта с маркировкой заводских узлов 1.460.3-18.1КМ Лист 10 Схемы расположения связей по верхним поясам стропильных ферм при железобетонных плитах в покрытии. Пролеты здании без фонарей. Шаг ферм 6 м 1.460.3-18.1КМ Лист 11 Схемы расположения связей по верхним поясам стропильных ферм при железобетонных плитах в покрытии. Пролеты здании с фонарями. Шаг ферм 6 м 1.460.3-18.1КМ Лист 12 Схемы расположения связей по верхним поясам стропильных ферм при железобетонных плитах в покрытии. Пролеты здании без фонарей. Шаг ферм 12 м 1.460.3-18.1КМ Лист 13 Схемы расположения связей по верхним поясам стропильных ферм при железобетонных плитах в покрытии. Пролеты здании с фонарями. Шаг ферм 12 м 1.460.3-18.1КМ Лист 14 Схемы расположения прогонов и связей по верхним поясам стропильных ферм при стальном профилированном настиле в покрытии. Пролеты зданий без фонарей. Шаг ферм 6 м 1.460.3-18.1КМ Лист 15 Схемы расположения прогонов и связей по верхним поясам стропильных ферм при стальном профилированном настиле в покрытии. Пролеты зданий с фонарями. Шаг ферм 6 м 1.460.3-18.1КМ Лист 16 Схемы расположения прогонов и связей по верхним поясам стропильных ферм при стальном профилированном настиле в покрытии. Пролеты зданий без фонарей. Шаг ферм 12 м 1.460.3-18.1КМ Лист 17 Схемы расположения прогонов и связей по верхним поясам стропильных ферм при стальном профилированном настиле в покрытии. Пролеты зданий с фонарями. Шаг ферм 12 м 1.460.3-18.1КМ Лист 18 Схемы расположения связей 1го типа по нижним поясам стропильных ферм. Пролеты зданий 18 и 24м. Шаг ферм 6 м 1.460.3-18.1КМ Лист 19 Схемы расположения связей 1го типа по нижним поясам стропильных ферм. Пролеты зданий 30 м. Шаг ферм 6 м 1.460.3-18.1КМ Лист 20 Схемы расположения связей 1го типа по нижним поясам стропильных ферм. Пролеты зданий 18,24м. Шаг ферм 12 м 1.460.3-18.1КМ Лист 21 Схемы расположения связей 1го типа по нижним поясам стропильных ферм. Пролеты зданий 30 м. Шаг ферм 12 м 1.460.3-18.1КМ Лист 22 Схемы расположения связей 2го типа по нижним поясам стропильных ферм. Пролеты зданий 18,24,30м. Шаг ферм 6 м 1.460.3-18.1КМ Лист 23 Схемы расположения связей 2го типа по нижним поясам стропильных ферм. Пролеты зданий 18,24,30м. Шаг ферм 12 м 1.460.3-18.1КМ Лист 24 Продольные разрезы 2-2,6-6,7-7,9-9,11-11,15-15,17-17 и 20-20 в пролетах зданий 1.460.3-18.1КМ Лист 25 Продольные разрезы 3-3,4-4,8-8,12-12,13-13 и 18-18 по рядам колонн в зданиях без мостовых кранов 1.460.3-18.1КМ Лист 26 Продольные разрезы 3-3,4-4,8-8,12-12,13-13 и 18-18 по рядам колонн в зданиях с мостовыми кранами 1.460.3-18.1КМ Лист 27 Продольные разрезы 3-3,4-4,8-8,12-12,13-13 и 18-18 по рядам колонн в зданиях с мостовыми и без мостовых кранов 1.460.3-18.1КМ Лист 28 Схемы расположения подвесных путей и тормозных балок "У" по нижним поясам стропильных ферм. Пролет зданий 18 м 1.460.3-18.1КМ Лист 29 Схемы расположения подвесных путей и тормозных балок "У" по нижним поясам стропильных ферм. Пролеты зданий 24 и 30 м 1.460.3-18.1КМ Лист 30 Схема расположения связей по нижним поясам стропильных ферм при опирании фахверковых стоек. Шаг ферм 12 м. Указания к схемам расположения прогонов и связей по верхним и нижним поясам стропильных ферм 1.460.3-18.1КМ Лист 31 Схемы расположения монорельсов в зданиях пролетами 18,24,30 м. Варианты крепления монорельсов 1.460.3-18.1КМ Лист 32 Схемы расположения вертикальных связей и распорок по верхним поясам стропильных ферм. Таблицы для выбора схем 1.460.3-18.1КМ Лист 33 Схемы расположения растяжек по нижним поясам стропильных ферм 1.460.3-18.1КМ Лист 34 Таблица для выбора схем расположения растяжек по нижним поясам стропильных ферм 1.460.3-18.1КМ Лист 35 Сортамент стропильных ферм пролетом 18 м (начало) 1.460.3-18.1КМ Лист 36 Сортамент стропильных ферм пролетом 18 м (окончание) 1.460.3-18.1КМ Лист 37 Сортамент стропильных ферм пролетом 24 м (начало) 1.460.3-18.1КМ Лист 38 Сортамент стропильных ферм пролетом 24 м (окончание) 1.460.3-18.1КМ Лист 39 Сортамент стропильных ферм пролетом 30 м (начало) 1.460.3-18.1КМ Лист 40 Сортамент стропильных ферм пролетом 30 м (окончание) 1.460.3-18.1КМ Лист 41 Сортамент подстропильных ферм пролетом 12 м 1.460.3-18.1КМ Лист 42 Сортамент стропильных ферм пролетом 18,24,30 м для зданий с подвесными кранами 1.460.3-18.1КМ Лист 43 Сортамент фланцевых соединений нижнего пояса стропильных ферм 1.460.3-18.1КМ Лист 44 Сортамент опорных стоек 1.460.3-18.1КМ Лист 45 Сортамент распорок, раскосов, растяжек 1.460.3-18.1КМ Лист 46 Сортамент вертикальных связей пролетом 5.5 и 6 м 1.460.3-18.1КМ Лист 47 Сортамент вертикальных связей пролетом 11.5 и 12 м 1.460.3-18.1КМ Лист 48 Сортамент профилированных настилов и прогонов 1.460.3-18.1КМ Лист 49 Таблица для выбора марок опорных стоек 1.460.3-18.1КМ Лист 50 Таблица для выбора марок поясов и раскосов горизонтальных связей по нижним поясам стропильных ферм в торце здания (начало) 1.460.3-18.1КМ Лист 51 Таблицы для выбора марок поясов и раскосов горизонтальных связей по нижним поясам стропильных ферм в торце здания (окончание) 1.460.3-18.1КМ Лист 52 Таблица для выбора марок вертикальных связей и распорок, расположенных по рядам колонн 1.460.3-18.1КМ Лист 53 Схемы раскладки настила. Таблица для выбора марок настила 1.460.3-18.1КМ Лист 54 Маркировочные схемы прогонов. Таблица для выбора марок прогонов 1.460.3-18.1КМ Лист 55 Заводские узлы стропильных ферм. Узлы 1-4 1.460.3-18.1КМ Лист 56 Заводские узлы стропильных ферм. Узлы 5-9 1.460.3-18.1КМ Лист 57 Заводские узлы стропильных ферм. Узлы 10-12 1.460.3-18.1КМ Лист 58 Разрезы 4-4%5-5. Вид 6-6 1.460.3-18.1КМ Лист 59 Заводские и монтажные узлы стропильных ферм при наличии подвесного транспорта. Узлы 13,14 1.460.3-18.1КМ Лист 60 Крепление связей по верхним поясам стропильных ферм. Узлы 15-18 1.460.3-18.1КМ Лист 61 Крепление прогонов и связей по верхним поясам стропильных ферм. Узлы 19-21 1.460.3-18.1КМ Лист 62 Крепление прогонов и связей по верхним поясам стропильных ферм. Узлы 22-25 1.460.3-18.1КМ Лист 63 Крепление прогонов и связей по верхним поясам стропильных ферм. Узлы 26-28 1.460.3-18.1КМ Лист 64 Крепление прогонов и связей по верхним поясам стропильных ферм. Узлы 29-31 1.460.3-18.1КМ Лист 65 Крепление прогонов и связей по верхним поясам стропильных ферм. Узлы 32-34 1.460.3-18.1КМ Лист 66 Крепление прогонов и связей по верхним поясам стропильных ферм. Узлы 35,36 1.460.3-18.1КМ Лист 67 Крепление прогонов и связей по верхним поясам стропильных ферм. Узлы 37-40 1.460.3-18.1КМ Лист 68 Крепление прогонов и связей по верхним поясам стропильных ферм. Узлы 41-43 1.460.3-18.1КМ Лист 69 Крепление прогонов и связей по верхним поясам стропильных ферм. Узлы 44-46 1.460.3-18.1КМ Лист 70 Крепление прогонов и связей по верхним поясам стропильных ферм. Узлы 47-50 1.460.3-18.1КМ Лист 71 Крепление связей по нижним поясам стропильных ферм. Узлы 51-54 1.460.3-18.1КМ Лист 72 Крепление связей по нижним поясам стропильных ферм. Узел 55 1.460.3-18.1КМ Лист 73 Крепление связей и тормозных балок по нижним поясам стропильных ферм. Узлы 56-58 1.460.3-18.1КМ Лист 74 Крепление вертикальных связей, распорок, стропильных и подстропильных ферм к опорным стойкам и опорных стоек к колоннам. Узлы 59,60 1.460.3-18.1КМ Лист 75 Крепление стропильных ферм к подстропильным фермам. Узел 61 1.460.3-18.1КМ Лист 76 Крепление связей и прогонов при опирании фахверковых стоек. Узлы 62-64 1.460.3-18.1КМ Лист 77 Опорные стойки СК-1-СК-3 1.460.3-18.1КМ Лист 78 Опорные стойки СК-4-СК-7 1.460.3-18.1КМ Лист 79 Опорные стойки СК-8-СК-12 1.460.3-18.1КМ Лист 80 Схемы и узлы вертикальных связей Р1,Т1 1.460.3-18.1КМ Лист 81 Схемы и узлы вертикальных связей ВС1-ВС6 1.460.3-18.1КМ Лист 82 Узлы крепления профилированного настила к прогонам (начало) 1.460.3-18.1КМ Лист 83 Узлы крепления профилированного настила к прогонам (окончание) 1.460.3-18.1КМ Лист 84 Расположение отверстий в верхних и нижних поясах стропильных ферм L=18м;L=24м 1.460.3-18.1КМ Лист 85 Расположение отверстий в верхних и нижних поясах стропильных ферм L=30м 1.460.3-18.1КМ Лист 86 Спецификация стали стропильных ферм пролетом 18 м 1.460.3-18.1КМ Лист 87 Спецификация стали стропильных ферм пролетом 24 м 1.460.3-18.1КМ Лист 88 Спецификация стали стропильных ферм пролетом 30 м 1.460.3-18.1КМ Лист 89 Спецификация стали подстропильных ферм пролетом 12 м 1.460.3-18.1КМ Лист 90 Стропильные фермы с перекрестной решеткой. Усилия в стержнях стропильной фермы L=18м от единичных нагрузок 1.460.3-18.1КМ Лист 91 Усилия в стержнях стропильной фермы L=24м от единичных нагрузок (начало) 1.460.3-18.1КМ Лист 92 Усилия в стержнях стропильной фермы L=24м от единичных нагрузок (окончание) 1.460.3-18.1КМ Лист 93 Усилия в стержнях стропильной фермы L=30м от единичных нагрузок (начало) 1.460.3-18.1КМ Лист 94 Усилия в стержнях стропильной фермы L=30м от единичных нагрузок (окончание) 1.460.3-18.1КМ Лист 95 Усилия от единичных нагрузок в элементах связей по нижним поясам стропильных ферм 1.460.3-18.1КМ Лист 96 Несущая способность поясов стропильных ферм 1.460.3-18.1КМ Лист 97 Расчетные нагрузки от ветра с торца здания на средний ряд колонн 1.460.3-18.1КМ Лист 98 Расчетные нагрузки на фермы от подвесных кранов | Разработан: | ЦНИИпроектстальконструкция ВНИКТИстальконструкция Минмонтажспецстроя СССР ВНИПИ Промстальконструкция
| Утверждён: | 28.05.1983 Госстрой СССР (Государственный комитет Совета Министров СССР по делам строительства) (USSR Gosstroy 17)
| Расположен в: |
|
                                                                                                                   
|