Информационная система
«Ёшкин Кот»

Скачать базу одним архивом
Скачать обновления
История создания базы
Карта сайта

Скачать Серия 3.016.1-4 Выпуск 1. Сборные железобетонные изделия. Рабочие чертежи

Дата актуализации: 10.08.2017

Серия 3.016.1-4

Выпуск 1. Сборные железобетонные изделия. Рабочие чертежи

Обозначение: Серия 3.016.1-4
Обозначение англ: Series 3.016.1-4
Статус:не действует
Название рус.:Выпуск 1. Сборные железобетонные изделия. Рабочие чертежи
Дата добавления в базу:01.09.2013
Дата актуализации:05.05.2017
Дата окончания срока действия:01.05.1987
Оглавление:3.016.1-4 00.000000 Техническое описание
3.016.1-4 01.000000 Рама Р1
3.016.1-4 01.000000 СБ Рама Р1. Сборочный чертеж
3.016.1-4 01.010000 Каркас пространственный КП1
3.016.1-4 01.010000 СБ Каркас пространственный КП1. Сборочный чертеж
3.016.1-4 01.010100 Каркас плоский КР1
3.016.1-4 01.010100 СБ Каркас плоский КР1. Сборочный чертеж
3.016.1-4 01.000100 Изделие закладное МН1
3.016.1-4 01.000200 Изделие закладное МН2
3.016.1-4 01.000300 Изделие закладное МН3
3.016.1-4 01.000400 Изделие закладное МН4
3.016.1-4 02.000100 Изделие закладное МН5
3.016.1-4 02.000000 Рама Р2
3.016.1-4 02.000000 СБ Рама Р2. Сборочный чертеж
3.016.1-4 02.010000 Каркас пространственный КП2
3.016.1-4 02.010000 СБ Каркас пространственный КП2. Сборочный чертеж
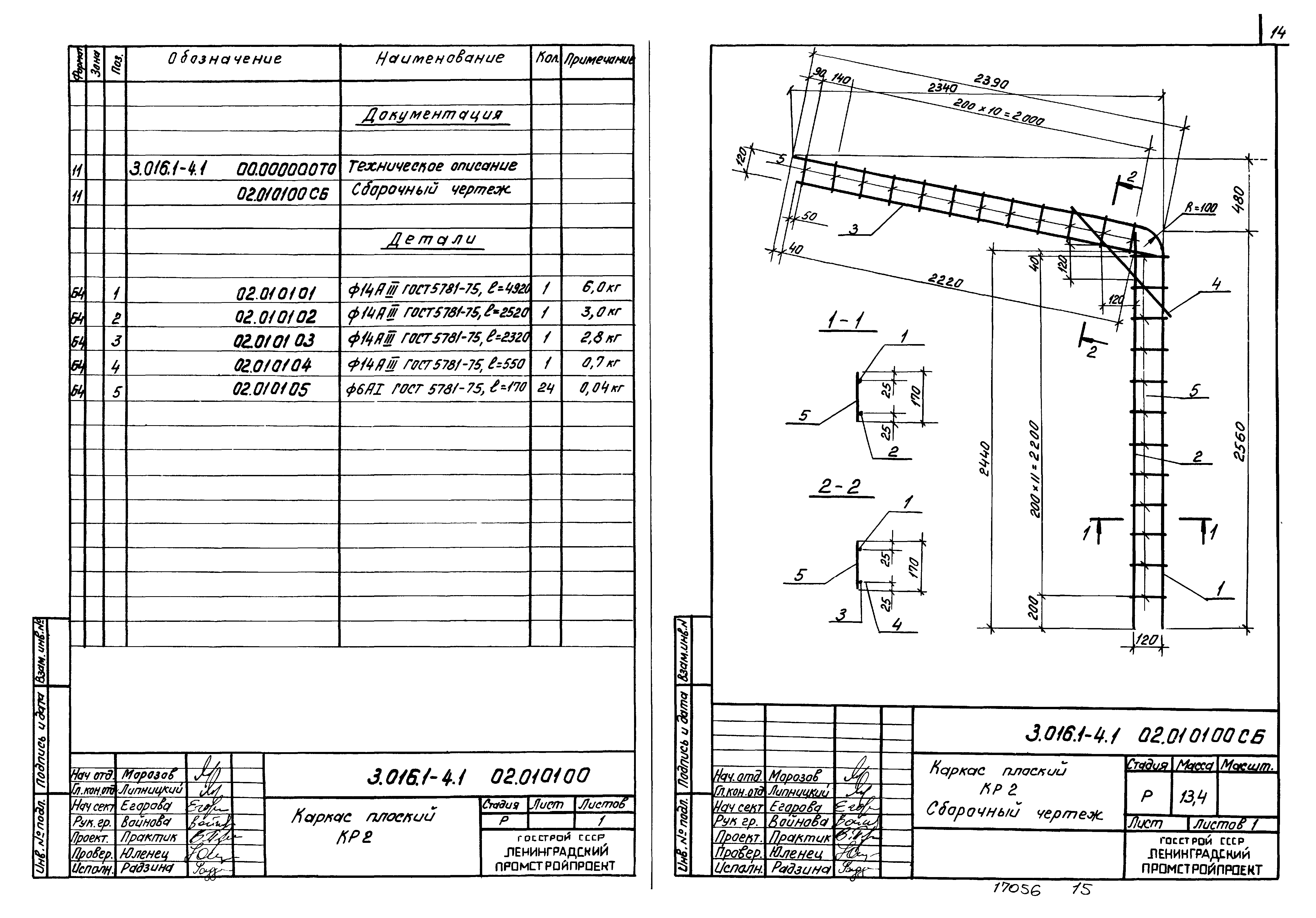
3.016.1-4 02.010100 Каркас плоский КР2
3.016.1-4 02.010100 СБ Каркас плоский КР2. Сборочный чертеж
3.016.1-4 03.000000 Балка Б1
3.016.1-4 03.000000 СБ Балка Б1. Сборочный чертеж
3.016.1-4 03.010000 Каркас пространственный КП3
3.016.1-4 03.010100 Каркас плоский КР3
3.016.1-4 03.000100 Изделие закладное МН7
3.016.1-4 03.000200 Изделие закладное МН8
3.016.1-4 04.000000 Балка Б2-1
3.016.1-4 04.000000 СБ Балка Б2-1. Сборочный чертеж
3.016.1-4 04.010000 Каркас пространственный КП4
3.016.1-4 04.000100 Каркас плоский КР4
3.016.1-4 04.000100 Изделие закладное МН9
3.016.1-4 05.010200 Изделие закладное МН27
3.016.1-4 05.000000 Балка Б2-2
3.016.1-4 05.000000 Балка Б2-2. Сборочный чертеж
3.016.1-4 05.010000 Каркас пространственный КП5
3.016.1-4 05.010100 Каркас плоский КР5
3.016.1-4 05.010300 Изделие закладное МН28
3.016.1-4 06.000000 Балка Б-1АIVд;Б-1АIVг(Б-1АIVа-базовая)
3.016.1-4 06.000000 СБ Балка Б-1АIVд;Б-1АIVг(Б-1АIVа-базовая). Сборочный чертеж
3.016.1-4 06.000100 Изделие закладное МН14
3.016.1-4 07.000000 Балка Б-2АIVд;Б-2АIVг(Б-2АIVа-базовая)
3.016.1-4 07.000000 СБ Балка Б-2АIVд;Б-2АIVг(Б-2АIVа-базовая). Сборочный чертеж
3.016.1-4 08.000000 Панель перегородки ПП2
3.016.1-4 08.000400 Изделие закладное МН25
3.016.1-4 08.000000 СБ Панель перегородки ПП2. Сборочный чертеж
3.016.1-4 08.000100 Каркас плоский КР22
3.016.1-4 08.000100 СБ Каркас плоский КР22. Сборочный чертеж
3.016.1-4 08.000200 Каркас плоский КР23
3.016.1-4 08.000300 Изделие закладное МН23
3.016.1-4 09.000000 Плита ПАIV/1.5х12-4Ж;ПАIV/1.5х12-4е;(ПАIV/1.5х12-4-базовая)
3.016.1-4 09.000000 СБ Плита ПАIV/1.5х12-4Ж;ПАIV/1.5х12-4е;(ПАIV/1.5х12-4-базовая). Сборочный чертеж
3.016.1-4 09.000100 Изделие закладное МН10
3.016.1-4 09.000200 Изделие закладное МН22
3.016.1-4 10.000000 Панель перегородки ПП1;ПП2
3.016.1-4 10.000000 СБ Панель перегородки ПП1;ПП2. Сборочный чертеж
3.016.1-4 22.000200 Изделие закладное МН20
3.016.1-4 10.000100 Каркас плоский КР20
3.016.1-4 10.000200 Каркас плоский КР21
3.016.1-4 10.000400 Изделие закладное МН17
3.016.1-4 10.000500 Изделие закладное МН19
3.016.1-4 10.000300 Изделие закладное МН6
3.016.1-4 11.000000 Панель перегородки ПП3
3.016.1-4 11.000000 СБ Панель перегородки ПП3. Сборочный чертеж
3.016.1-4 11.000100 Каркас плоский КР24
3.016.1-4 11.000100 СБ Каркас плоский КР24. Сборочный чертеж
3.016.1-4 11.000200 Каркас плоский КР25
3.016.1-4 11.000200 СБ Каркас плоский КР25. Сборочный чертеж
3.016.1-4 11.000300 Каркас плоский КР26
3.016.1-4 11.000400 Изделие закладное МН24
3.016.1-4 12.000000 Столб СЭЗ-1;СЭЗ-2
3.016.1-4 12.000000 СБ Столб СЭЗ-1;СЭЗ-2. Сборочный чертеж
3.016.1-4 12.010000 Каркас пространственный КП25
3.016.1-4 12.010100 Каркас плоский КР30
3.016.1-4 12.020000 Каркас пространственный КП26
3.016.1-4 12.020100 Каркас плоский КР27
3.016.1-4 13.000000 Столб СЭ4
3.016.1-4 13.000000 СБ Столб СЭ4. Сборочный чертеж
3.016.1-4 14.000000 Свая СВ1-1;СВ1-2
3.016.1-4 14.000000 СБ Свая СВ1-1;СВ1-2. Сборочный чертеж
3.016.1-4 13.010000 Каркас пространственный КП27
3.016.1-4 13.010100 Каркас плоский КР28
3.016.1-4 14.010000 Каркас пространственный КП6
3.016.1-4 14.010000 СБ Каркас пространственный КП6. Сборочный чертеж
3.016.1-4 14.010100 Каркас плоский КР6
3.016.1-4 14.020000 Каркас пространственный КП7.КП8
3.016.1-4 14.020000 СБ Каркас пространственный КП7,КП8. Сборочный чертеж
3.016.1-4 15.000000 Свая СВ2-1;СВ2-2;СВ2-3
3.016.1-4 15.000000 СБ Свая СВ2-1;СВ2-2;СВ2-3. Сборочный чертеж
3.016.1-4 15.010000 Каркасы пространственные КП9;КП10;КП11
3.016.1-4 15.010000 СБ Каркасы пространственные КП9;КП10;КП11. Сборочный чертеж
3.016.1-4 15.000100 Изделие закладное МН21
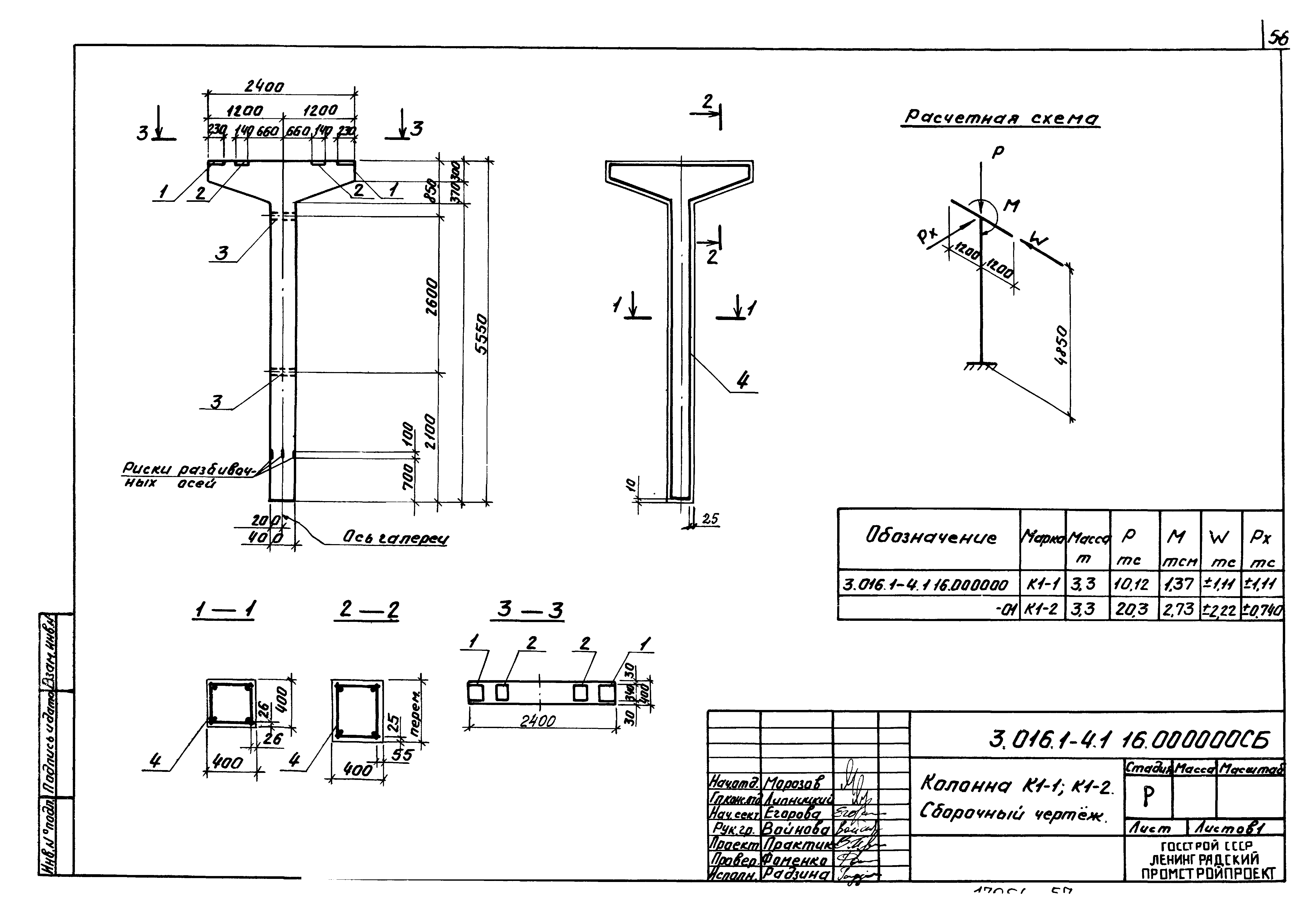
3.016.1-4 16.000000 Колонна К1-1;К1-2
3.016.1-4 16.000000 СБ Колонна К1-1;К1-2. Сборочный чертеж
3.016.1-4 16.010000 Каркасы пространственные КП12;КП13
3.016.1-4 16.010000 СБ Каркасы пространственные КП12;КП13. Сборочный чертеж
3.016.1-4 16.010200 Каркасы плоские КР8;КР9
3.016.1-4 16.010200 СБ Каркасы плоские КР8;КР9. Сборочный чертеж
3.016.1-4 16.010100 Каркас плоский КР7
3.016.1-4 16.000300 Изделие закладное МН13
3.016.1-4 16.000100 Изделие закладное МН11
3.016.1-4 16.000200 Изделие закладное МН12
3.016.1-4 14.000100 Изделие закладное МН20
3.016.1-4 17.000000 Колонна К2
3.016.1-4 17.000000 СБ Колонна К2. Сборочный чертеж
3.016.1-4 17.010000 Каркас пространственный КП23
3.016.1-4 18.010100 Каркас плоский КР10
3.016.1-4 18.000000 Колонна КЭ4-1;КЭ4-2;КЭ4-3
3.016.1-4 18.000000 СБ Колонна КЭ4-1;КЭ4-2;КЭ4-3. Сборочный чертеж
3.016.1-4 18.010000 Каркасы пространственные КП20;КП21;КП22
3.016.1-4 18.010000 СБ Каркасы пространственные КП20;КП21;КП22. Сборочный чертеж
3.016.1-4 18.010100 Каркасы плоские КР17;КР18;КР19
3.016.1-4 18.010100 СБ Каркасы плоские КР17;КР18;КР19. Сборочный чертеж
3.016.1-4 19.000000 Столб СЭ1
3.016.1-4 19.000000 СБ Столб СЭ1. Сборочный чертеж
3.016.1-4 19.010000 Каркас пространственный КП14
3.016.1-4 19.010100 Каркас плоский КР11
3.016.1-4 19.000100 Изделие закладное МН15;МН16;МН18
3.016.1-4 19.000100 СБ Изделие закладное МН15;МН16;МН18. Сборочный чертеж
3.016.1-4 20.000000 Колонна КЭ1
3.016.1-4 20.000000 СБ Колонна КЭ1. Сборочный чертеж
3.016.1-4 20.010000 Каркас пространственный КП15
3.016.1-4 20.010100 Каркас плоский КР12
3.016.1-4 21.000000 Колонна КЭ2-1;КЭ2-2
3.016.1-4 21.000000 СБ Колонна КЭ2-1;КЭ2-2. Сборочный чертеж
3.016.1-4 21.010000 Каркасы пространственные КП16;КП17
3.016.1-4 21.010000 СБ Каркасы пространственные КП16;КП17. Сборочный чертеж
3.016.1-4 21.010100 Каркасы пространственные КП13;КП14
3.016.1-4 21.010100 СБ Каркасы пространственные КП13;КП14. Сборочный чертеж
3.016.1-4 22.000000 Колонна КЭ3-1;КЭ3-2
3.016.1-4 22.000000 СБ Колонна КЭ3-1;КЭ3-2. Сборочный чертеж
3.016.1-4 22.010000 Каркасы пространственные КП18;КП19
3.016.1-4 22.010000 СБ Каркасы пространственные КП18;КП19. Сборочный чертеж
3.016.1-4 22.010100 Каркасы плоские КР15;КР16
3.016.1-4 22.010100 СБ Каркасы плоские КР15;КР16. Сборочный чертеж
3.016.1-4 23.000000 Столб СЭ2
3.016.1-4 23.000000 СБ Столб СЭ2. Сборочный чертеж
3.016.1-4 23.010000 Каркас пространственный КП29
3.016.1-4 23.010100 Каркас плоский КР29
3.016.1-4 00.000000Д1 Узлы 1,2,3,4
3.016.1-4 00.000000Д2 Выборка стали на один элемент
Разработан: Ленинградский Промстройпроект
Утверждён:06.08.1980 Госстрой СССР (Государственный комитет Совета Министров СССР по делам строительства) (USSR Gosstroy 2/3-288)
Расположен в:Техническая документация Строительство Справочные документы Типовые строительные конструкции, изделия и узлы Общероссийский строительный каталог Строительные конструкции, изделия и узлы зданий и сооружений для всех видов строительства Конструкции и изделия сооружений и оборудования зданий Надземные сооружения Кабельные эстакады
Чем заменён:
Серия 3.016.1-4Серия 3.016.1-4Серия 3.016.1-4Серия 3.016.1-4Серия 3.016.1-4Серия 3.016.1-4Серия 3.016.1-4Серия 3.016.1-4Серия 3.016.1-4Серия 3.016.1-4Серия 3.016.1-4Серия 3.016.1-4Серия 3.016.1-4Серия 3.016.1-4Серия 3.016.1-4Серия 3.016.1-4Серия 3.016.1-4Серия 3.016.1-4Серия 3.016.1-4Серия 3.016.1-4Серия 3.016.1-4Серия 3.016.1-4Серия 3.016.1-4Серия 3.016.1-4Серия 3.016.1-4Серия 3.016.1-4Серия 3.016.1-4Серия 3.016.1-4Серия 3.016.1-4Серия 3.016.1-4Серия 3.016.1-4Серия 3.016.1-4Серия 3.016.1-4Серия 3.016.1-4Серия 3.016.1-4Серия 3.016.1-4Серия 3.016.1-4Серия 3.016.1-4Серия 3.016.1-4Серия 3.016.1-4Серия 3.016.1-4Серия 3.016.1-4Серия 3.016.1-4Серия 3.016.1-4Серия 3.016.1-4Серия 3.016.1-4Серия 3.016.1-4Серия 3.016.1-4Серия 3.016.1-4Серия 3.016.1-4Серия 3.016.1-4Серия 3.016.1-4Серия 3.016.1-4Серия 3.016.1-4Серия 3.016.1-4Серия 3.016.1-4Серия 3.016.1-4Серия 3.016.1-4Серия 3.016.1-4Серия 3.016.1-4Серия 3.016.1-4Серия 3.016.1-4Серия 3.016.1-4Серия 3.016.1-4Серия 3.016.1-4Серия 3.016.1-4Серия 3.016.1-4Серия 3.016.1-4Серия 3.016.1-4Серия 3.016.1-4Серия 3.016.1-4Серия 3.016.1-4Серия 3.016.1-4Серия 3.016.1-4Серия 3.016.1-4Серия 3.016.1-4Серия 3.016.1-4Серия 3.016.1-4Серия 3.016.1-4Серия 3.016.1-4Серия 3.016.1-4Серия 3.016.1-4

© 2013 Ёшкин Кот :-) Карта сайта