Информационная система
«Ёшкин Кот»

Скачать базу одним архивом
Скачать обновления
История создания базы
Карта сайта

Скачать Типовой проект 902-1-68.83 Альбом II. Архитектурно-строительные решения

Дата актуализации: 10.08.2017

Типовой проект 902-1-68.83

Альбом II. Архитектурно-строительные решения

Обозначение: Типовой проект 902-1-68.83
Обозначение англ: 902-1-68.83
Статус:действует
Название рус.:Альбом II. Архитектурно-строительные решения
Дата добавления в базу:01.09.2013
Дата актуализации:05.05.2017
Оглавление:ТП 902-1-68.83 Содержание альбома
ТП 902-1-68.83 Пояснительная записка
ТП 902-1-68.83-АР-1 Общие данные
ТП 902-1-68.83-АР-2 План на отметке -0.000. Разрезы 1-1;2-2;3-3
ТП 902-1-68.83-АР-3 План на отметке 3.600. Фасады 1-3;3-1;Г-А. Экспликация помещений
ТП 902-1-68.83-АР-4 План полов. План кровли. Узлы 1,2,3. Экспликация полов. Ведомость отделки помещений. Ведомость перемычек
ТП 902-1-68.83-АР-5 Узлы 4-5. Сечение 1-1. Узлы 1 и 2
ТП 902-1-68.83-КЖ-1 Общие данные
ТП 902-1-68.83-КЖ-2 Подземная часть. Опалубка. План. Разрезы 1-1÷3-3
ТП 902-1-68.83-КЖ-3 Подземная часть. Опалубка. План. Разрезы 4-4÷7-7
ТП 902-1-68.83-КЖ-4 Подземная часть. Армирование. План
ТП 902-1-68.83-КЖ-5 Подземная часть. Армирование. Разрезы 1-1÷2-2
ТП 902-1-68.83-КЖ-6 Подземная часть. Армирование. Разрезы 3-3÷4-4
ТП 902-1-68.83-КЖ-7 Подземная часть. Армирование. Разрез 5-5. Спецификация
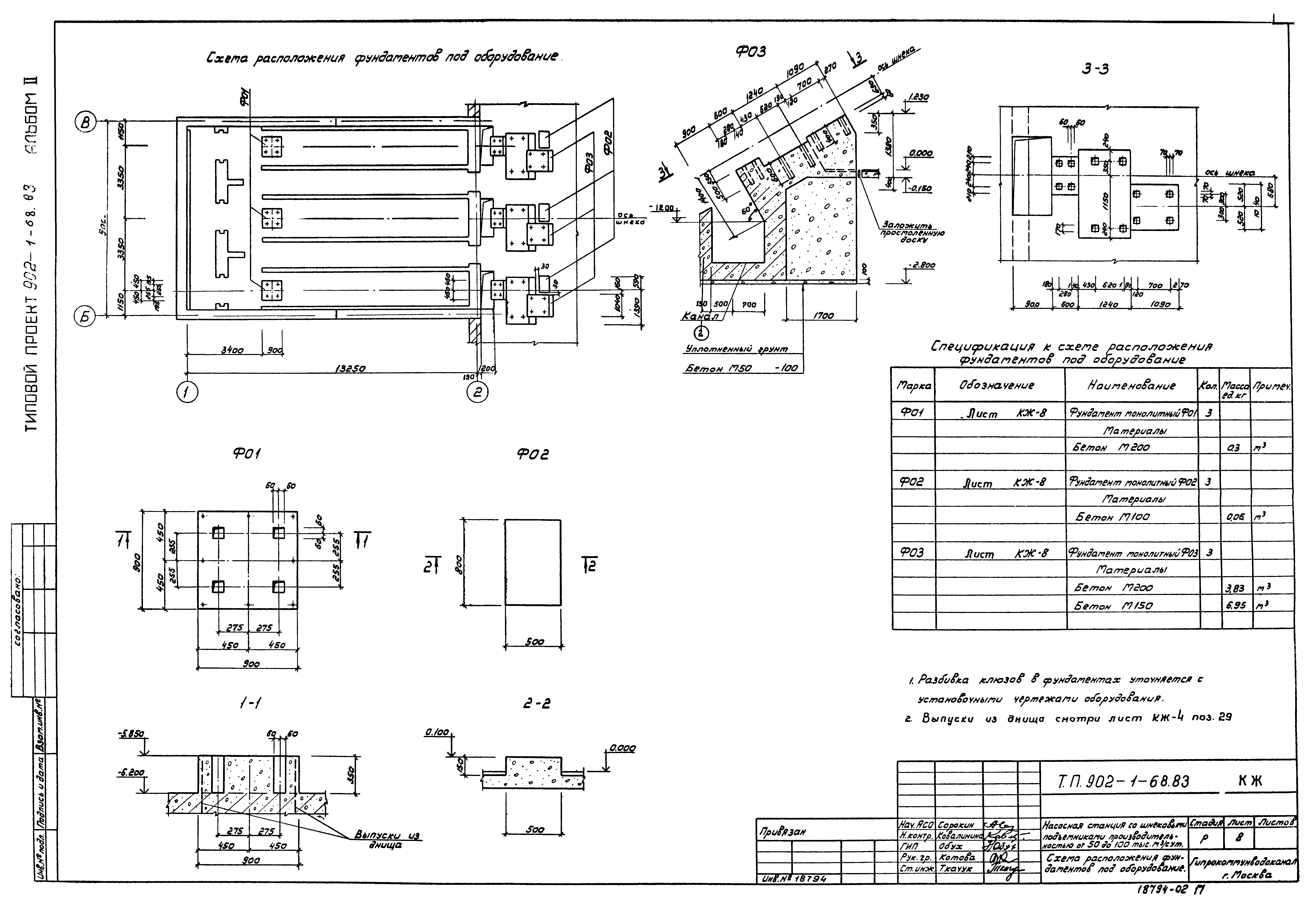
ТП 902-1-68.83-КЖ-8 Схема расположения фундаментов под оборудование
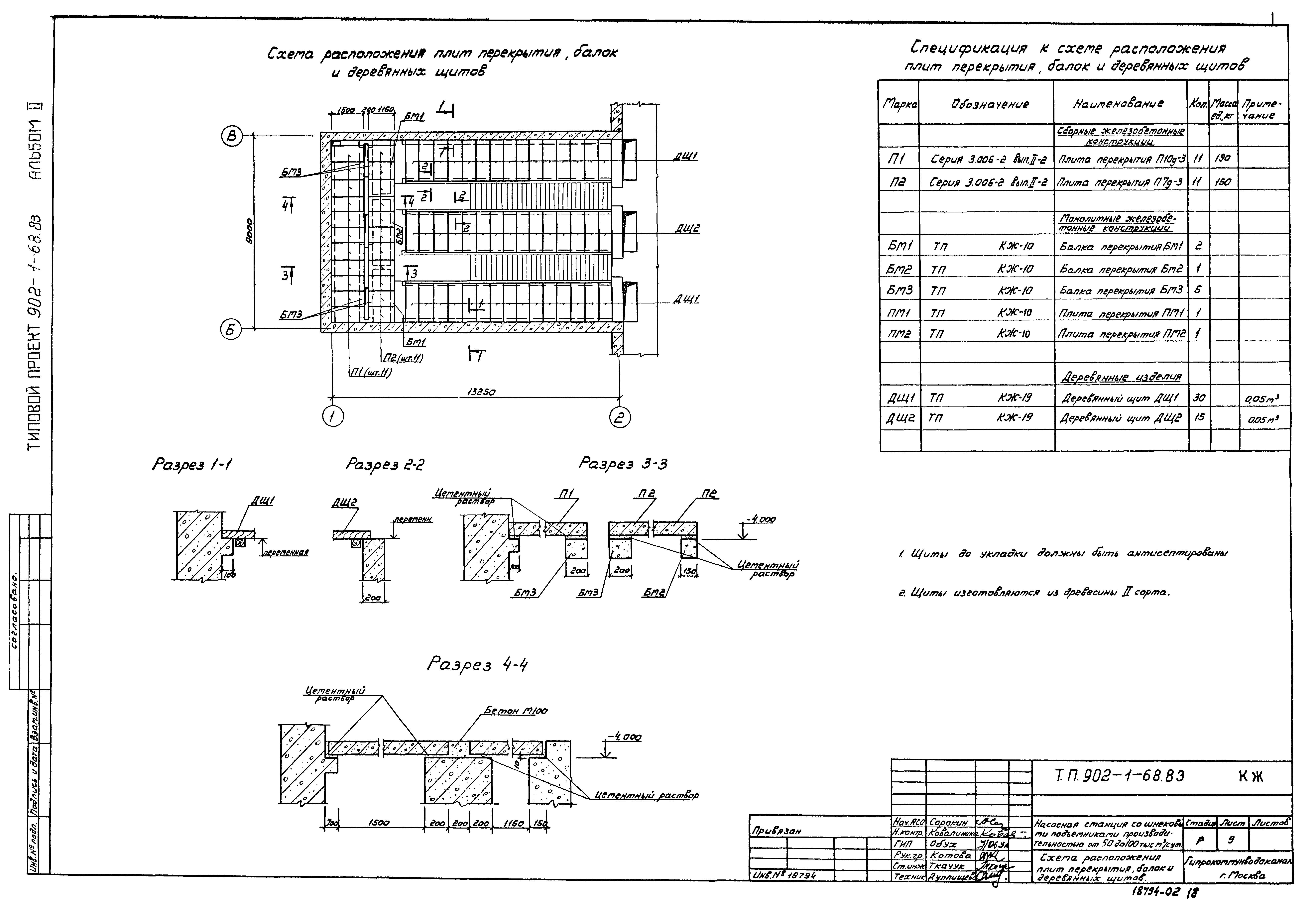
ТП 902-1-68.83-КЖ-9 Схема расположения плит перекрытия, балок и деревянных щитов
ТП 902-1-68.83-КЖ-10 Балки БМ1-БМ3. Плиты ПМ-1;ПМ-2
ТП 902-1-68.83-КЖ-11 Спецификация и ведомость к монолитным балкам и участкам перекрытия
ТП 902-1-68.83-КЖ-12 Подземная часть. Набетонка
ТП 902-1-68.83-КЖ-13 Схема расположения фундаментных блоков и каналов. План
ТП 902-1-68.83-КЖ-14 Схема расположения фундаментных блоков и каналов. Развертки по осям. Разрезы 1-1÷3-3
ТП 902-1-68.83-КЖ-15 Схема расположения фундаментных блоков и каналов. Разрезы 4-4÷12-12. Балка БМ-1,БМ-2. Опалубка
ТП 902-1-68.83-КЖ-16 Канал КЛМ1. Армирование
ТП 902-1-68.83-КЖ-17 Перекрытие канала ПКМ1. Армирование
ТП 902-1-68.83-КЖ-18 Схема расположения плит покрытия
ТП 902-1-68.83-КЖ-19 Опорная подушка. Деревянные щиты. Закладные детали
ТП 902-1-68.83-КМ-1 Общие данные
ТП 902-1-68.83-КМ-2 Схема расположения балок, монорельсов и ограждений
Разработан: Гипрокоммунводоканал Минжилкомхоза РСФСР
Утверждён:18.08.1982 МЖКХ РСФСР (15-ТД)
Расположен в:Техническая документация Строительство Справочные документы Типовые строительные конструкции, изделия и узлы Общероссийский строительный каталог Промышленные предприятия, здания и сооружения Здания и сооружения санитарно-технические Канализация Станции насосные Станции насосные для перекачки бытовых сточных вод
Типовой проект 902-1-68.83Типовой проект 902-1-68.83Типовой проект 902-1-68.83Типовой проект 902-1-68.83Типовой проект 902-1-68.83Типовой проект 902-1-68.83Типовой проект 902-1-68.83Типовой проект 902-1-68.83Типовой проект 902-1-68.83Типовой проект 902-1-68.83Типовой проект 902-1-68.83Типовой проект 902-1-68.83Типовой проект 902-1-68.83Типовой проект 902-1-68.83Типовой проект 902-1-68.83Типовой проект 902-1-68.83Типовой проект 902-1-68.83Типовой проект 902-1-68.83Типовой проект 902-1-68.83Типовой проект 902-1-68.83Типовой проект 902-1-68.83Типовой проект 902-1-68.83Типовой проект 902-1-68.83Типовой проект 902-1-68.83Типовой проект 902-1-68.83Типовой проект 902-1-68.83Типовой проект 902-1-68.83Типовой проект 902-1-68.83Типовой проект 902-1-68.83Типовой проект 902-1-68.83Типовой проект 902-1-68.83

© 2013 Ёшкин Кот :-) Карта сайта