Информационная система
«Ёшкин Кот»

Скачать базу одним архивом
Скачать обновления
История создания базы
Карта сайта

Скачать Типовой проект 902-2-437.87 Альбом III. Архитектурные решения. Конструкции железобетонные. Конструкции металлические

Дата актуализации: 10.08.2017

Типовой проект 902-2-437.87

Альбом III. Архитектурные решения. Конструкции железобетонные. Конструкции металлические

Обозначение: Типовой проект 902-2-437.87
Обозначение англ: 902-2-437.87
Статус:заменен
Название рус.:Альбом III. Архитектурные решения. Конструкции железобетонные. Конструкции металлические
Дата добавления в базу:01.09.2013
Дата актуализации:05.05.2017
Дата введения:01.06.1993
Оглавление:ТП 902-2-437.87-АР Архитектурные решения
ТП 902-2-437.87-АР-1 Общие данные
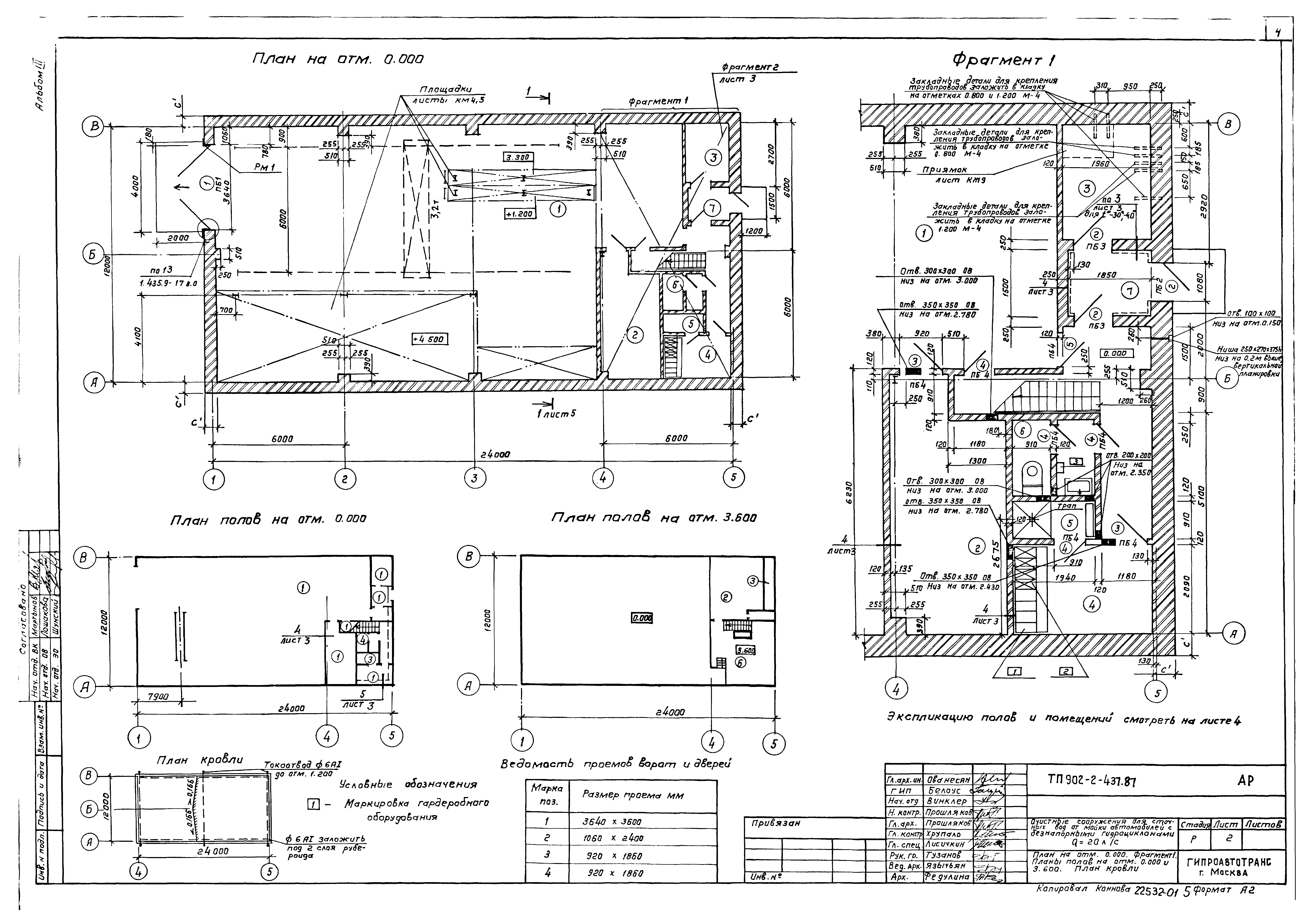
ТП 902-2-437.87-АР-2 План на отм. 0.000. Фрагмент 1. Планы полов на отм. 0.000;3.600. План кровли
ТП 902-2-437.87-АР-3 План на отм. 3.600. Фрагмент 2. Узлы 1...5
ТП 902-2-437.87-АР-4 Спецификации закладных изделий, перемычек, заполнение проемов. Экспликации полов, помещений. Ведомость перемычек
ТП 902-2-437.87-АР-5 Фасады. Разрезы 1-1. Схемы элементов заполнения оконных проемов
ТП 902-2-437.87-КЖ Конструкции железобетонные
ТП 902-2-437.87-КЖ-1 Общие данные
ТП 902-2-437.87-КЖ-2 Схема расположения фундаментов. Сечения 1-1...5-5
ТП 902-2-437.87-КЖ-3 Фундаменты ФМ1,ФМ2
ТП 902-2-437.87-КЖ-4 Схемы расположения балок покрытия, плит перекрытия на отм. 3.600, плит покрытия
ТП 902-2-437.87-КЖ-5 Спецификация к схемам расположения балок покрытия, плит перекрытия на отм. 3.600, плит покрытия
ТП 902-2-437.87-КЖ-6 Участки монолитные УМ1...УМ3
ТП 902-2-437.87-КЖ-7 Спецификация участков монолитных УМ1...УМ3
ТП 902-2-437.87-КЖ-8 Участок монолитный УМ4
ТП 902-2-437.87-КЖ-9 Схема расположения фундаментов под оборудование. Приямок ПР1
ТП 902-2-437.87-КЖ-10 Фундамент под оборудование ФОМ1. План. Разрезы. Лестница Л1
ТП 902-2-437.87-КЖ-11 Фундамент под оборудование ФОМ1. Днище монолитное ДМ1
ТП 902-2-437.87-КЖ-12 Фундамент под оборудование ФОМ1. Схемы расположения панелей стен и плит перекрытия
ТП 902-2-437.87-КЖ-13 Фундамент под оборудование ФОМ2. План. Схема расположения элементов стен
ТП 902-2-437.87-КЖ-14 Фундамент под оборудование ФОМ2. Участки монолитные УМ1,УМ1Н, пояс монолитный ПМ1. Узлы 1...3
ТП 902-2-437.87-КЖ-15 Фундамент под оборудование ФОМ2. Днище монолитное ДМ1
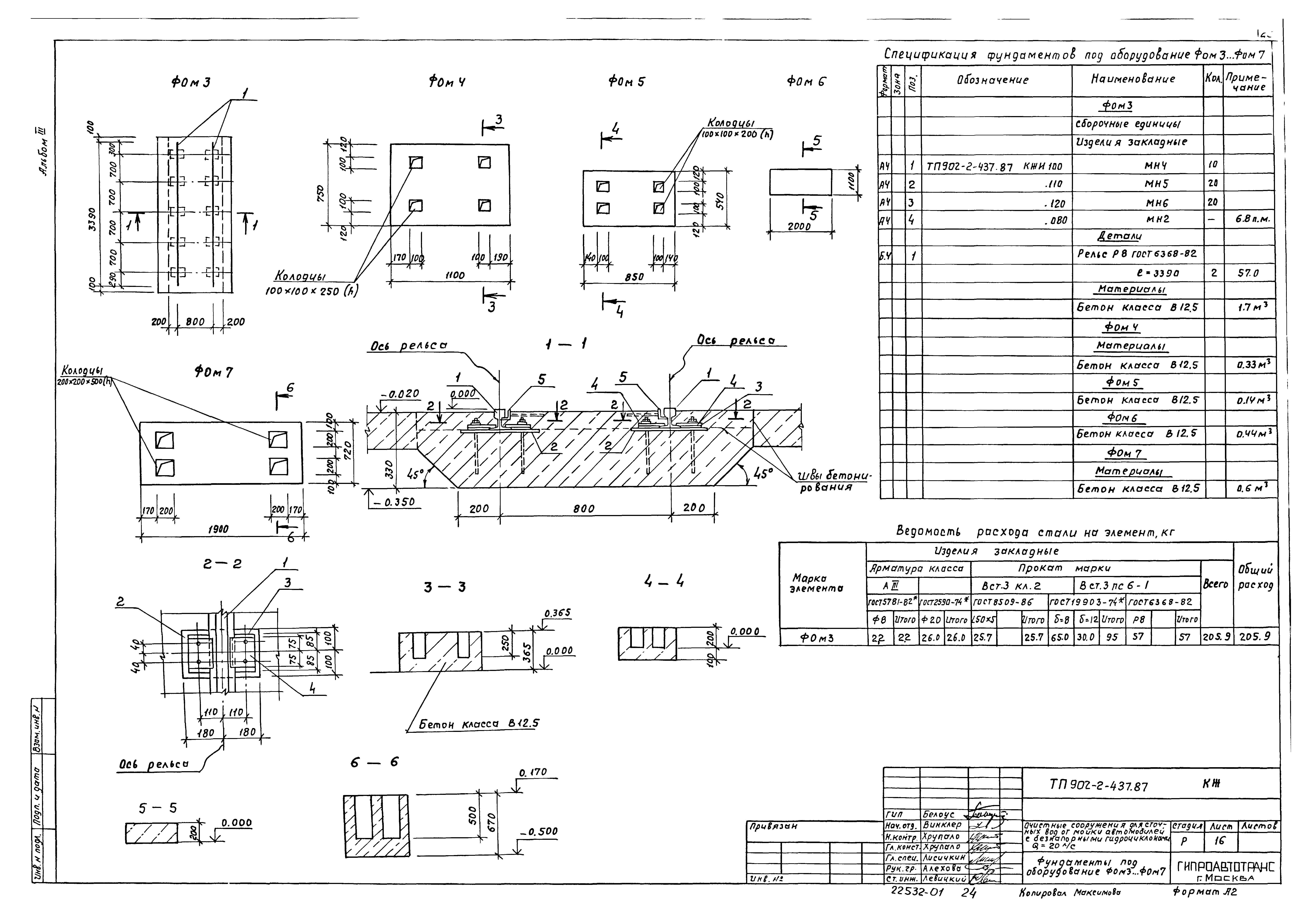
ТП 902-2-437.87-КЖ-16 Фундамент под оборудование ФОМ3...ФОМ7
ТП 902-2-437.87-КМ Конструкции металлические
ТП 902-2-437.87-КМ-1 Общие данные (начало)
ТП 902-2-437.87-КМ-2 Общие данные (продолжение)
ТП 902-2-437.87-КМ-3 Общие данные (окончание)
ТП 902-2-437.87-КМ-4 Схема расположения стоек, балок, ограждений лестниц на отм. 4.500. Схема расположения перекрытия на отм. 4.500
ТП 902-2-437.87-КМ-5 Схема расположения стоек, балок, ограждений лестниц на отм. 4.500. Схема расположения перекрытия на отм. 1.200,3.300,3.600,-2.000
ТП 902-2-437.87-КМ-6 Схема расположения подвесных путей
ТП 902-2-437.87-КМ-7 Узлы 1...12
ТП 902-2-437.87-КМ-8 Узлы 13...19
Разработан: Гипроавтотранс
Утверждён:01.10.1987 Минавтотранс РСФСР (Russian Federation Minavtotrans 11)
Расположен в:Техническая документация Строительство Справочные документы Типовые строительные конструкции, изделия и узлы Общероссийский строительный каталог Промышленные предприятия, здания и сооружения Здания и сооружения санитарно-технические Канализация Сооружения для очистки производственных сточных вод Сооружения для очистки сточных вод от мойки автомобилей
Заменяет собой:
Чем заменён:
  • Типовой проект 902-2-488.92 «Очистные сооружения для сточных вод от мойки автомобилей производительностью 20 л/с. Стены из кирпича»
Типовой проект 902-2-437.87Типовой проект 902-2-437.87Типовой проект 902-2-437.87Типовой проект 902-2-437.87Типовой проект 902-2-437.87Типовой проект 902-2-437.87Типовой проект 902-2-437.87Типовой проект 902-2-437.87Типовой проект 902-2-437.87Типовой проект 902-2-437.87Типовой проект 902-2-437.87Типовой проект 902-2-437.87Типовой проект 902-2-437.87Типовой проект 902-2-437.87Типовой проект 902-2-437.87Типовой проект 902-2-437.87Типовой проект 902-2-437.87Типовой проект 902-2-437.87Типовой проект 902-2-437.87Типовой проект 902-2-437.87Типовой проект 902-2-437.87Типовой проект 902-2-437.87Типовой проект 902-2-437.87Типовой проект 902-2-437.87Типовой проект 902-2-437.87Типовой проект 902-2-437.87Типовой проект 902-2-437.87Типовой проект 902-2-437.87Типовой проект 902-2-437.87Типовой проект 902-2-437.87Типовой проект 902-2-437.87Типовой проект 902-2-437.87Типовой проект 902-2-437.87

© 2013 Ёшкин Кот :-) Карта сайта