Информационная система
«Ёшкин Кот»

Скачать базу одним архивом
Скачать обновления
История создания базы
Карта сайта

Скачать Типовые материалы для проектирования 904-02-29.86 Альбом 0. Рекомендации по применению

Дата актуализации: 10.08.2017

Типовые материалы для проектирования 904-02-29.86

Альбом 0. Рекомендации по применению

Обозначение: Типовые материалы для проектирования 904-02-29.86
Обозначение англ: 904-02-29.86
Статус:cправочные материалы, мп, тпр
Название рус.:Альбом 0. Рекомендации по применению
Дата добавления в базу:01.09.2013
Дата актуализации:05.05.2017
Дата введения:15.09.1986
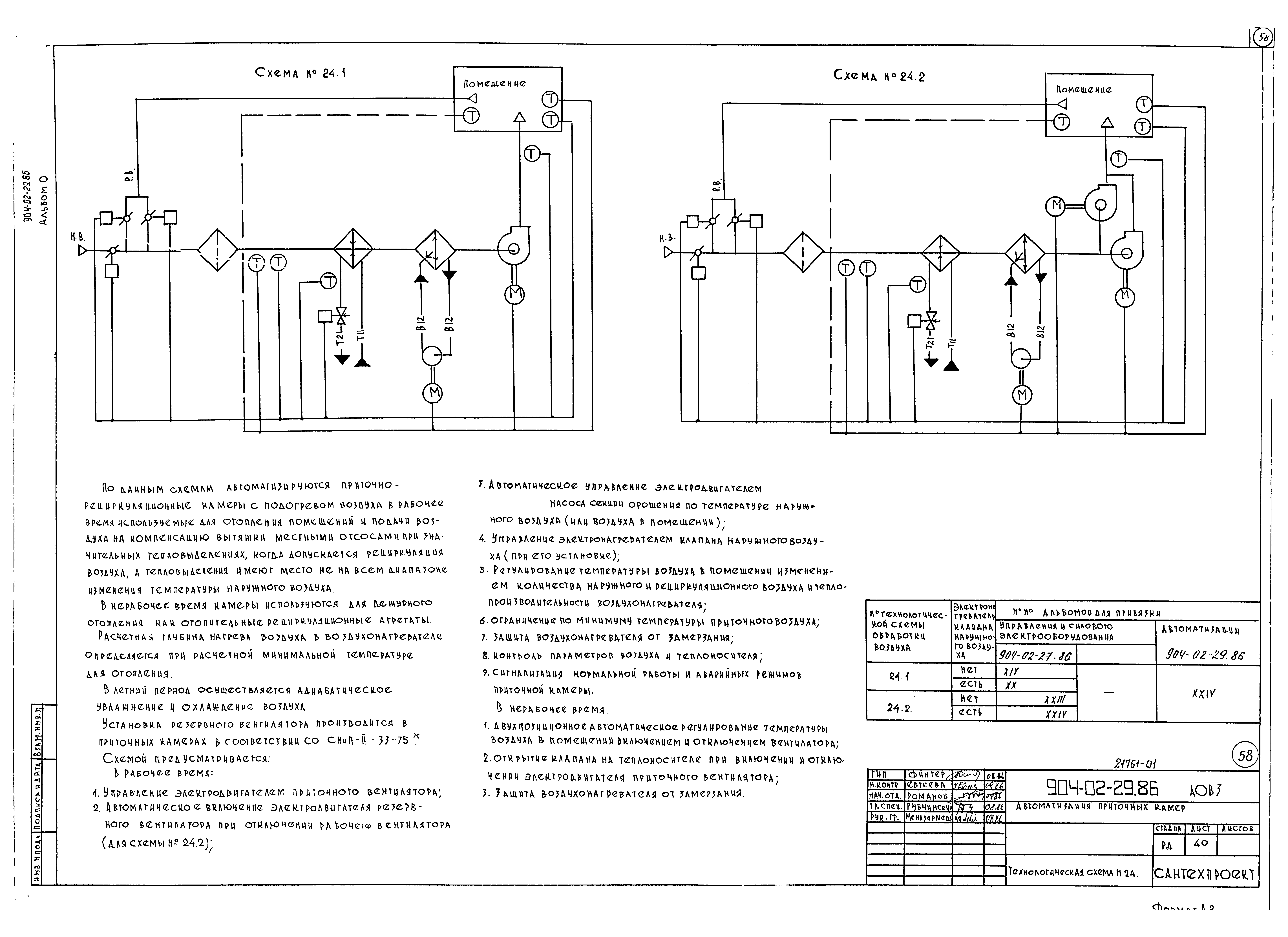
Оглавление:Содержание раздела Автоматизация АОВ1
Пояснительная записка АОВ2
   Схемы приточных вентиляционных камер и классификация схем автоматизации
   Принципиальные электрические схемы регулирования
   Принципиальные схемы управления
   Приборы и средства автоматизации и их размещение
   Размещение аппаратуры управления и силового электрооборудования
   Рекомендации по составлению заданий на проектирование автоматизации, управления и силового электрооборудования
   Указания по привязке альбомов I - XXIV раздела Автоматизация
Чертежи АОВ3
Разработан: Сантехпроект Госстроя СССР
Утверждён:15.09.1986 Минмонтажспецстрой СССР (USSR Minmontazhspetsstroy )
Расположен в:Техническая документация Строительство Справочные документы Типовые строительные конструкции, изделия и узлы Общероссийский строительный каталог Промышленные предприятия, здания и сооружения Здания и сооружения санитарно-технические Воздухоснабжение, вентиляция и кондиционирование воздуха Вентиляция, кондиционирование воздуха
Типовые материалы для проектирования 904-02-29.86Типовые материалы для проектирования 904-02-29.86Типовые материалы для проектирования 904-02-29.86Типовые материалы для проектирования 904-02-29.86Типовые материалы для проектирования 904-02-29.86Типовые материалы для проектирования 904-02-29.86Типовые материалы для проектирования 904-02-29.86Типовые материалы для проектирования 904-02-29.86Типовые материалы для проектирования 904-02-29.86Типовые материалы для проектирования 904-02-29.86Типовые материалы для проектирования 904-02-29.86Типовые материалы для проектирования 904-02-29.86Типовые материалы для проектирования 904-02-29.86Типовые материалы для проектирования 904-02-29.86Типовые материалы для проектирования 904-02-29.86Типовые материалы для проектирования 904-02-29.86Типовые материалы для проектирования 904-02-29.86Типовые материалы для проектирования 904-02-29.86Типовые материалы для проектирования 904-02-29.86Типовые материалы для проектирования 904-02-29.86Типовые материалы для проектирования 904-02-29.86Типовые материалы для проектирования 904-02-29.86Типовые материалы для проектирования 904-02-29.86Типовые материалы для проектирования 904-02-29.86Типовые материалы для проектирования 904-02-29.86Типовые материалы для проектирования 904-02-29.86Типовые материалы для проектирования 904-02-29.86Типовые материалы для проектирования 904-02-29.86Типовые материалы для проектирования 904-02-29.86Типовые материалы для проектирования 904-02-29.86Типовые материалы для проектирования 904-02-29.86Типовые материалы для проектирования 904-02-29.86Типовые материалы для проектирования 904-02-29.86Типовые материалы для проектирования 904-02-29.86Типовые материалы для проектирования 904-02-29.86Типовые материалы для проектирования 904-02-29.86Типовые материалы для проектирования 904-02-29.86Типовые материалы для проектирования 904-02-29.86Типовые материалы для проектирования 904-02-29.86Типовые материалы для проектирования 904-02-29.86Типовые материалы для проектирования 904-02-29.86Типовые материалы для проектирования 904-02-29.86Типовые материалы для проектирования 904-02-29.86Типовые материалы для проектирования 904-02-29.86Типовые материалы для проектирования 904-02-29.86Типовые материалы для проектирования 904-02-29.86Типовые материалы для проектирования 904-02-29.86Типовые материалы для проектирования 904-02-29.86Типовые материалы для проектирования 904-02-29.86Типовые материалы для проектирования 904-02-29.86Типовые материалы для проектирования 904-02-29.86Типовые материалы для проектирования 904-02-29.86Типовые материалы для проектирования 904-02-29.86Типовые материалы для проектирования 904-02-29.86Типовые материалы для проектирования 904-02-29.86Типовые материалы для проектирования 904-02-29.86Типовые материалы для проектирования 904-02-29.86Типовые материалы для проектирования 904-02-29.86Типовые материалы для проектирования 904-02-29.86Типовые материалы для проектирования 904-02-29.86

© 2013 Ёшкин Кот :-) Карта сайта