Информационная система
«Ёшкин Кот»

Скачать базу одним архивом
Скачать обновления
История создания базы
Карта сайта

Скачать Типовой проект 904-1-57.85 Альбом 4. Строительные решения

Дата актуализации: 10.08.2017

Типовой проект 904-1-57.85

Альбом 4. Строительные решения

Обозначение: Типовой проект 904-1-57.85
Обозначение англ: 904-1-57.85
Статус:действует
Название рус.:Альбом 4. Строительные решения
Дата добавления в базу:01.09.2013
Дата актуализации:05.05.2017
Дата введения:20.11.1984
Оглавление:ТП 904-1-57.85 Содержание альбома
ТП 904-1-57.85-ПЗ Пояснительная записка
ТП 904-1-57.85-АР Архитектурные решения
ТП 904-1-57.85-АР-1 Общие данные (начало)
ТП 904-1-57.85-АР-2 Общие данные (окончание)
ТП 904-1-57.85-АР-3 Планы на отм. 0.000 и -3.5050
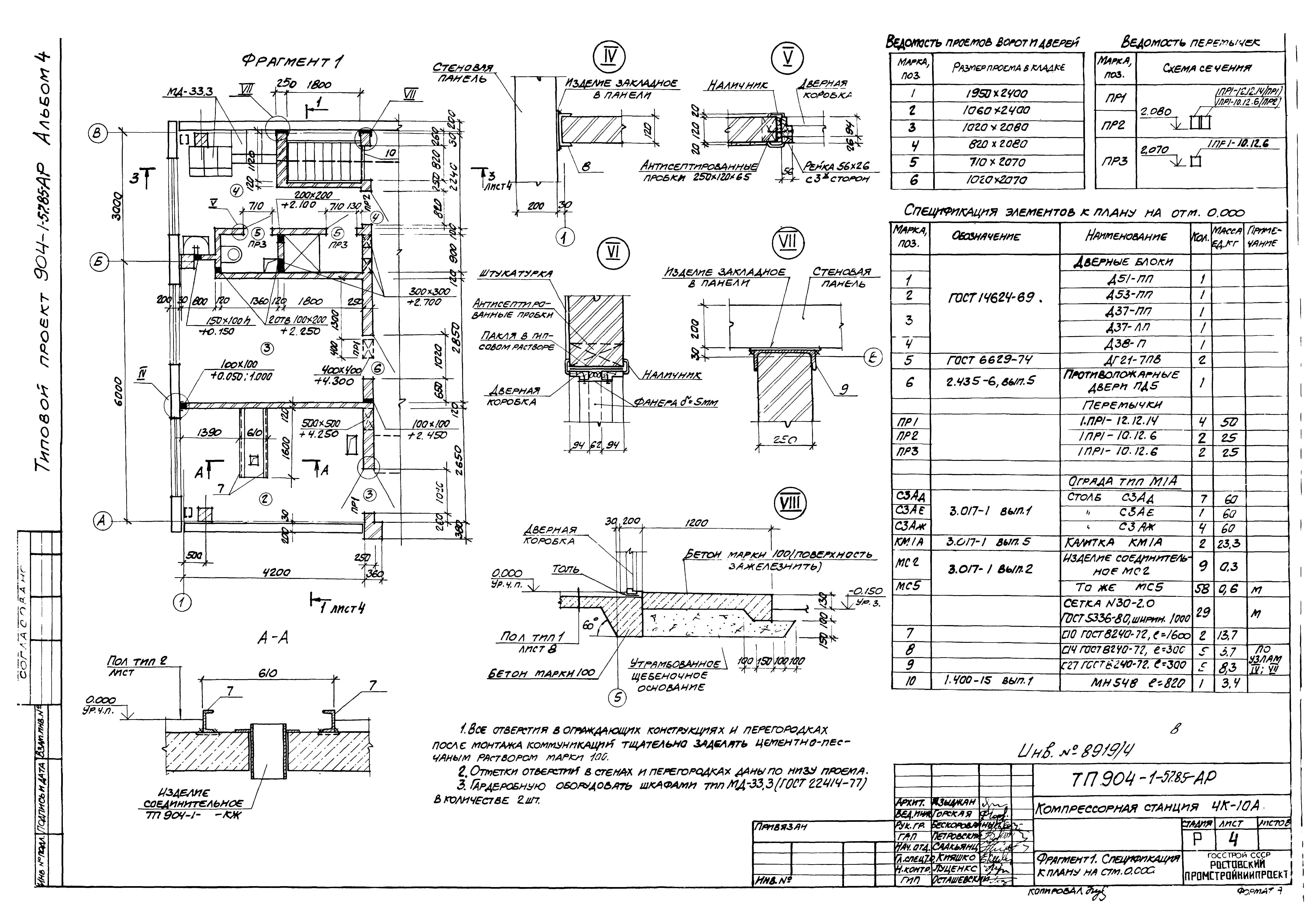
ТП 904-1-57.85-АР-4 Фрагмент 1. Спецификация элементов к плану на отм. 0.000
ТП 904-1-57.85-АР-5 Фасады. Разрезы 1-1-3-3
ТП 904-1-57.85-АР-6 КТПН (начало)
ТП 904-1-57.85-АР-7 КТПН (окончание)
ТП 904-1-57.85-АР-8 План полов. План кровли
ТП 904-1-57.85-АР-9 Подвесной потолок. Схема расположения плит перекрытия
ТП 904-1-57.85-КЖ Конструкции железобетонные
ТП 904-1-57.85-КЖ-1 Общие данные (начало)
ТП 904-1-57.85-КЖ-2 Общие данные (продолжение)
ТП 904-1-57.85-КЖ-3 Общие данные (окончание)
ТП 904-1-57.85-КЖ-4 Схема расположения элементов фундаментов
ТП 904-1-57.85-КЖ-5 Фундаменты ФМ1-ФМ3
ТП 904-1-57.85-КЖ-6 Фундаменты ФМ4-ФМ8
ТП 904-1-57.85-КЖ-7 Схема расположения конструкций
ТП 904-1-57.85-КЖ-8 Схема расположения плит перекрытия и элементов канала КН1, колодца К1 (начало)
ТП 904-1-57.85-КЖ-9 Схема расположения плит перекрытия и элементов канала КН1, колодца К1 (окончание)
ТП 904-1-57.85-КЖ-10 Схема расположения плит перекрытия и элементов канала КН1, колодца К2 (начало)
ТП 904-1-57.85-КЖ-11 Схема расположения плит перекрытия и элементов канала КН1, колодца К2 (продолжение)
ТП 904-1-57.85-КЖ-12 Схема расположения плит перекрытия и элементов канала КН1, колодца К2 (окончание)
ТП 904-1-57.85-КЖ-13 Спецификация к участкам монолитным УМ1-УМ2,ПМ1 (начало)
ТП 904-1-57.85-КЖ-14 Спецификация к участкам монолитным УМ1-УМ2,ПМ1 (окончание)
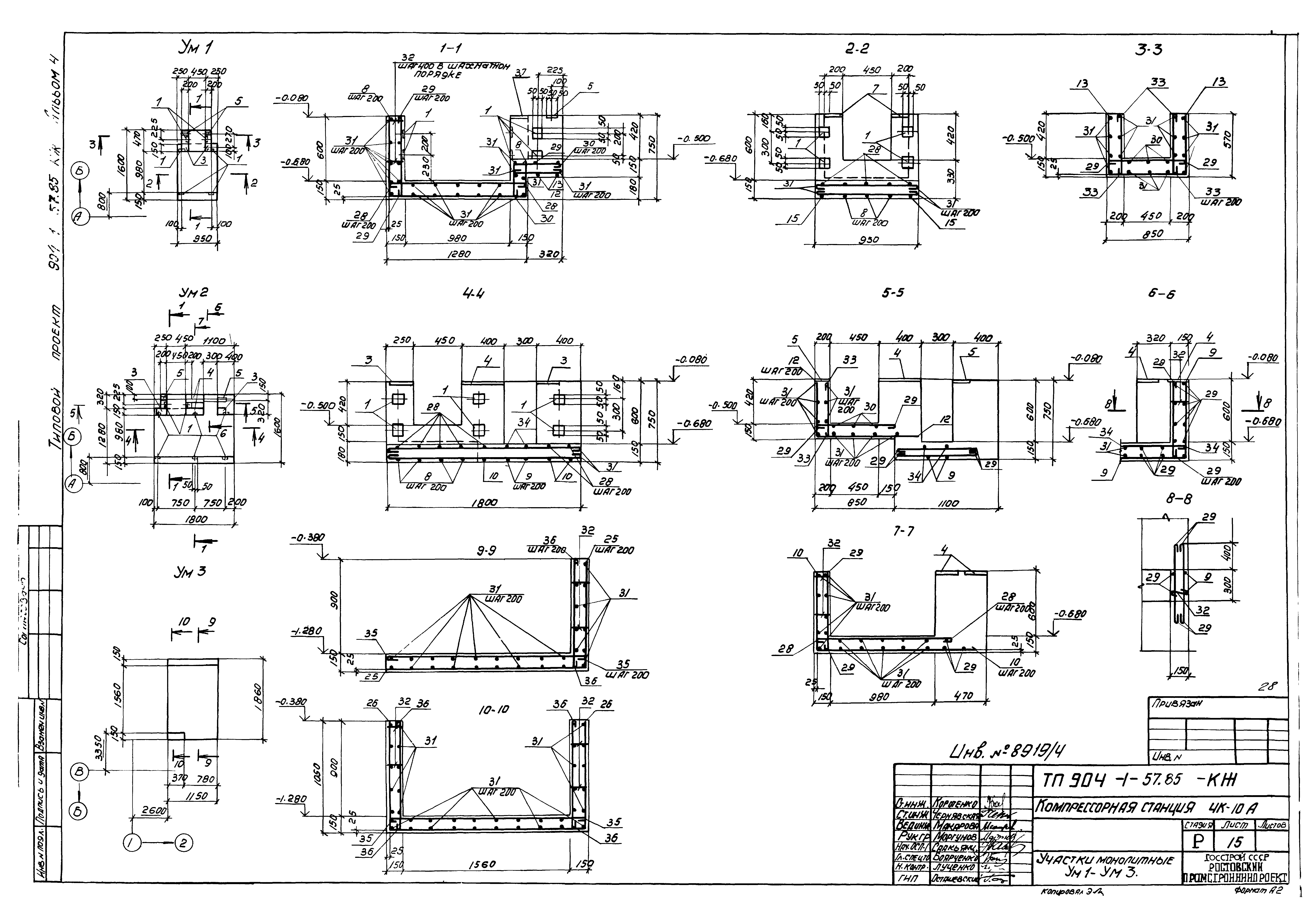
ТП 904-1-57.85-КЖ-15 Участки монолитные УМ1-УМ3
ТП 904-1-57.85-КЖ-16 Участки монолитные УМ4-УМ6
ТП 904-1-57.85-КЖ-17 Участки монолитные УМ7-УМ10
ТП 904-1-57.85-КЖ-18 Монолитный участок УМ11, монолитная плита ПМ1
ТП 904-1-57.85-КЖ-19 Резервуар РЕМ1. Общий вид
ТП 904-1-57.85-КЖ-20 Резервуар РЕМ1. Схема армирования
ТП 904-1-57.85-КЖ-21 Приямок ПРм1. Общий вид
ТП 904-1-57.85-КЖ-22 Приямок ПРм1. Схема армирования. Плита ПМ2
ТП 904-1-57.85-КЖ-23 Схема расположения элементов подвала
ТП 904-1-57.85-КЖ-24 Фундамент ФОМ1
ТП 904-1-57.85-КЖ-25 Фундаменты ФОМ2-ФОМ8
ТП 904-1-57.85-КЖ-26 Схемы расположения элементов каркаса и плит покрытия
ТП 904-1-57.85-КЖ-27 Схемы расположения стеновых панелей
ТП 904-1-57.85-КЖ-28 Фрагменты 1-13. Сечения 4-4
ТП 904-1-57.85-КМ Конструкции металлические
ТП 904-1-57.85-КМ-1 Общие данные
ТП 904-1-57.85-КМ-2 Техническая спецификация металла на объект (начало)
ТП 904-1-57.85-КМ-3 Техническая спецификация металла на объект (окончание). Ведомость металлоконструкций по видам профилей
ТП 904-1-57.85-КМ-4 Техническая спецификация металла на лестницы, ограждения
ТП 904-1-57.85-КМ-5 Схемы расположения подвесных путей и балок на отметках 5.090;3.760;2.100
ТП 904-1-57.85-КМ-6 Схемы расположения перекрытия каналов КН1,КН2
ТП 904-1-57.85-КМ-7 Площадка на отметке 2.000. Схема расположения кронштейнов
ТП 904-1-57.85-КМ-8 Схема расположения пожарной лестницы, лестницы на отм. 0.000 и кронштейна на отм. -1.300
ТП 904-1-57.85-ОВ Отопление и вентиляции
ТП 904-1-57.85-ОВ-1 Общие данные (начало)
ТП 904-1-57.85-ОВ-2 Общие данные (окончание)
ТП 904-1-57.85-ОВ-3 Планы отопления и вентиляции
ТП 904-1-57.85-ОВ-4 Разрезы 1-1;2-2. Система отопления 1. Схема систем В2,В3,ВЕ1,ВЕ2
ТП 904-1-57.85-ОВ-5 Узлы управления 1,2. Системы отопления 2,3. Системы производственного пароснабжения
ТП 904-1-57.85-ВК Водопровод и канализация
ТП 904-1-57.85-ВК-1 Общие данные
ТП 904-1-57.85-ВК-2 План на отм. 0.000. Схемы систем В1,Т3,К1,К13
ТП 904-1-57.85-ВК-3 Насосная станция водопровода оборотной воды. План на отм. -3.050. разрезы
ТП 904-1-57.85-ВК-4 Насосная станция водопровода оборотной воды. Схема установок систем В4,В5
Разработан: Ростовский Промстройниипроект Госстроя СССР
Утверждён:27.09.1984 Минстройдормаш (Minstroydormash 16/84)
Расположен в:Техническая документация Строительство Справочные документы Типовые строительные конструкции, изделия и узлы Общероссийский строительный каталог Промышленные предприятия, здания и сооружения Здания и сооружения санитарно-технические Воздухоснабжение, вентиляция и кондиционирование воздуха Воздухоснабжение
Заменяет собой:
Типовой проект 904-1-57.85Типовой проект 904-1-57.85Типовой проект 904-1-57.85Типовой проект 904-1-57.85Типовой проект 904-1-57.85Типовой проект 904-1-57.85Типовой проект 904-1-57.85Типовой проект 904-1-57.85Типовой проект 904-1-57.85Типовой проект 904-1-57.85Типовой проект 904-1-57.85Типовой проект 904-1-57.85Типовой проект 904-1-57.85Типовой проект 904-1-57.85Типовой проект 904-1-57.85Типовой проект 904-1-57.85Типовой проект 904-1-57.85Типовой проект 904-1-57.85Типовой проект 904-1-57.85Типовой проект 904-1-57.85Типовой проект 904-1-57.85Типовой проект 904-1-57.85Типовой проект 904-1-57.85Типовой проект 904-1-57.85Типовой проект 904-1-57.85Типовой проект 904-1-57.85Типовой проект 904-1-57.85Типовой проект 904-1-57.85Типовой проект 904-1-57.85Типовой проект 904-1-57.85Типовой проект 904-1-57.85Типовой проект 904-1-57.85Типовой проект 904-1-57.85Типовой проект 904-1-57.85Типовой проект 904-1-57.85Типовой проект 904-1-57.85Типовой проект 904-1-57.85Типовой проект 904-1-57.85Типовой проект 904-1-57.85Типовой проект 904-1-57.85Типовой проект 904-1-57.85Типовой проект 904-1-57.85Типовой проект 904-1-57.85Типовой проект 904-1-57.85Типовой проект 904-1-57.85Типовой проект 904-1-57.85Типовой проект 904-1-57.85Типовой проект 904-1-57.85Типовой проект 904-1-57.85Типовой проект 904-1-57.85Типовой проект 904-1-57.85Типовой проект 904-1-57.85Типовой проект 904-1-57.85Типовой проект 904-1-57.85Типовой проект 904-1-57.85Типовой проект 904-1-57.85Типовой проект 904-1-57.85Типовой проект 904-1-57.85Типовой проект 904-1-57.85Типовой проект 904-1-57.85

© 2013 Ёшкин Кот :-) Карта сайта