Информационная система
«Ёшкин Кот»

Скачать базу одним архивом
Скачать обновления
История создания базы
Карта сайта

Скачать Серия 1.466-1/75 Выпуск V-1. Часть 1. Железобетонные контурные фермы и контурные пояса. Опалубочные чертежи и армирование

Дата актуализации: 10.08.2017

Серия 1.466-1/75

Выпуск V-1. Часть 1. Железобетонные контурные фермы и контурные пояса. Опалубочные чертежи и армирование

Обозначение: Серия 1.466-1/75
Обозначение англ: Series 1.466-1/75
Статус:не действует
Название рус.:Выпуск V-1. Часть 1. Железобетонные контурные фермы и контурные пояса. Опалубочные чертежи и армирование
Дата добавления в базу:01.09.2013
Дата актуализации:05.05.2017
Дата введения:01.09.1978
Дата окончания срока действия:01.04.1988
Оглавление:1.466-1/75 Пояснительная записка
1.466-1/75 Расход материалов
1.466-1/75 Выборка стали на фермы и контурные пояса пролетом 18 м
1.466-1/75 Выборка стали на фермы и контурные пояса пролетом 24 м
1.466-1/75 Опалубочный чертеж ферм ФКБ18-1,ФКБ18-2
1.466-1/75 Опалубочный чертеж ферм ФКБ18-3,ФКБ18-4
1.466-1/75 Опалубочный чертеж ферм ФКБ18к-2,ФКБ18к-3
1.466-1/75 Опалубочный чертеж ферм ФКБ18к-4,ФКБ18к-5,ФКБ18к-6
1.466-1/75 Армирование ферм ФКБ18-1АIIIВ
1.466-1/75 Армирование ферм ФКБ18-2АIIIВ,ФКБ18к-2АIIIВ
1.466-1/75 Армирование ферм ФКБ18-3АIIIВ,ФКБ18к-3АIIIВ
1.466-1/75 Армирование ферм ФКБ18-4АIIIВ,ФКБ18к-4АIIIВ
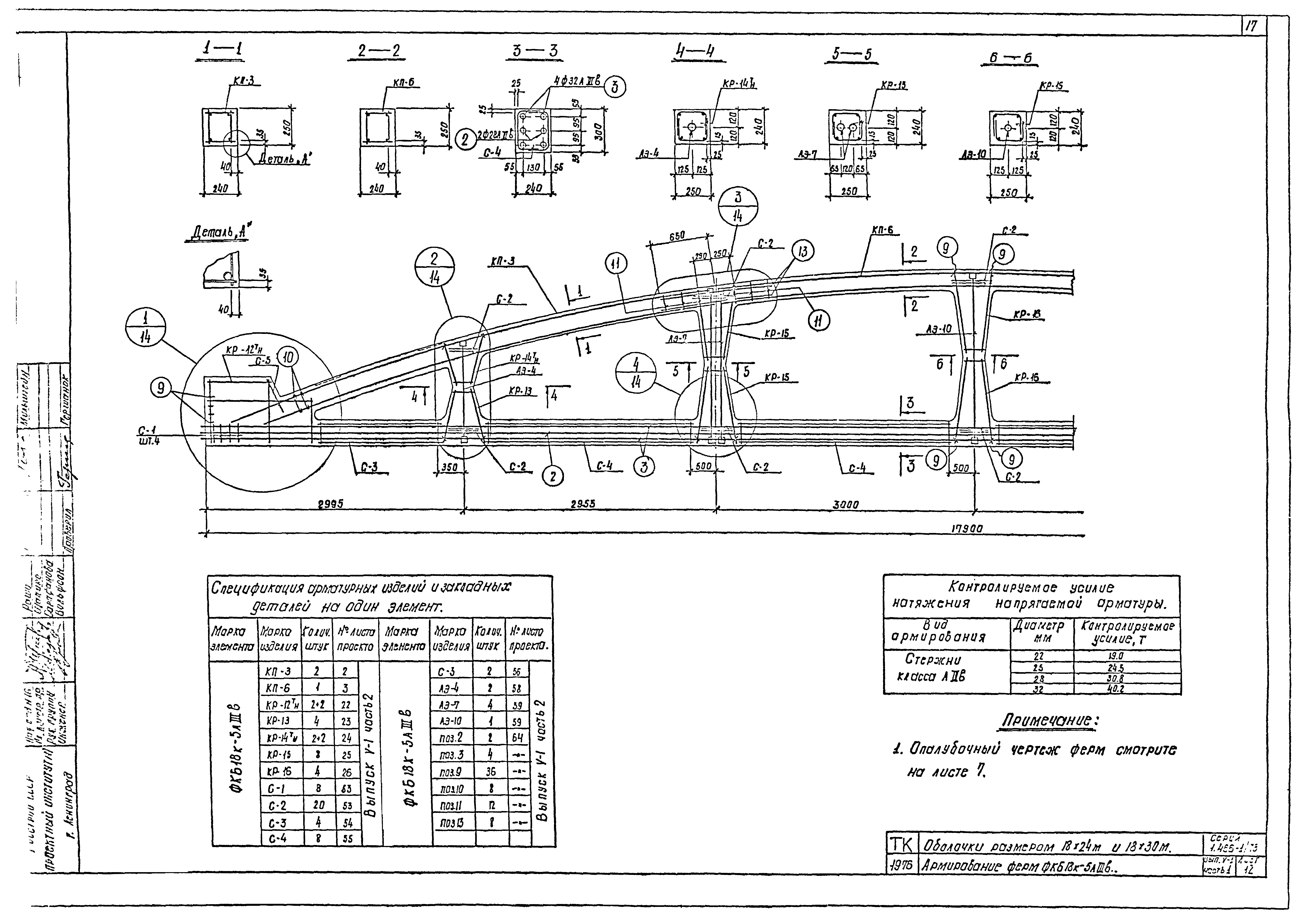
1.466-1/75 Армирование ферм ФКБ18к-5АIIIВ
1.466-1/75 Армирование ферм ФКБ18к-6АIIIВ
1.466-1/75 Армирование ферм ФКБ18,ФКБ18к. Детали 1,2,3,4
1.466-1/75 Опалубочный чертеж ферм ФКБ24-1,ФКБ24-2,ФКБ24-3
1.466-1/75 Опалубочный чертеж ферм ФКБ24-4,ФКБ24-5
1.466-1/75 Опалубочный чертеж ферм ФКБ24к-2,ФКБ24к-3,ФКБ24к-4
1.466-1/75 Опалубочный чертеж ферм ФКБ24к-5,ФКБ24к-6,ФКБ24к-7
1.466-1/75 Армирование ферм ФКБ24-1АIIIВ
1.466-1/75 Армирование ферм ФКБ24-2АIIIВ,ФКБ24к-2АIIIВ
1.466-1/75 Армирование ферм ФКБ24-3АIIIВ,ФКБ24к-3АIIIВ
1.466-1/75 Армирование ферм ФКБ24-4АIIIВ,ФКБ24к-4АIIIВ
1.466-1/75 Армирование ферм ФКБ24-5АIIIВ,ФКБ24к-5АIIIВ
1.466-1/75 Армирование ферм ФКБ24к-6АIIIВ
1.466-1/75 Армирование ферм ФКБ24к-7АIIIВ
1.466-1/75 Армирование ферм ФКБ24,ФКБ24к. Детали 1,2,3,4
1.466-1/75 Опалубочный чертеж контурных поясов БКБ18-1÷БКБ18-4
1.466-1/75 Армирование контурных поясов БКБ18-1÷БКБ18-4
1.466-1/75 Опалубочный чертеж контурных поясов БКБ24-1÷БКБ24-5
1.466-1/75 Армирование контурных поясов БКБ24-1÷БКБ24-5
Разработан: ЦНИИСК им. В.А. Кучеренко
ЦНИИпромзданий
НИИЖБ
НИИСФ
Проектный институт № 1 Госстроя СССР
Утверждён:10.05.1978 Госстрой СССР (Государственный комитет Совета Министров СССР по делам строительства) (USSR Gosstroy 81)
Расположен в:Техническая документация Строительство Справочные документы Типовые строительные конструкции, изделия и узлы Общероссийский строительный каталог Строительные конструкции, изделия и узлы зданий и сооружений для всех видов строительства Конструкции, изделия и узлы зданий Ограждающие конструкции Покрытия Сборные железобетонные плиты и панели
Чем заменён:
Серия 1.466-1/75Серия 1.466-1/75Серия 1.466-1/75Серия 1.466-1/75Серия 1.466-1/75Серия 1.466-1/75Серия 1.466-1/75Серия 1.466-1/75Серия 1.466-1/75Серия 1.466-1/75Серия 1.466-1/75Серия 1.466-1/75Серия 1.466-1/75Серия 1.466-1/75Серия 1.466-1/75Серия 1.466-1/75Серия 1.466-1/75Серия 1.466-1/75Серия 1.466-1/75Серия 1.466-1/75Серия 1.466-1/75Серия 1.466-1/75Серия 1.466-1/75Серия 1.466-1/75Серия 1.466-1/75Серия 1.466-1/75Серия 1.466-1/75Серия 1.466-1/75Серия 1.466-1/75Серия 1.466-1/75Серия 1.466-1/75Серия 1.466-1/75Серия 1.466-1/75Серия 1.466-1/75Серия 1.466-1/75Серия 1.466-1/75

© 2013 Ёшкин Кот :-) Карта сайта