Информационная система
«Ёшкин Кот»

Скачать базу одним архивом
Скачать обновления
История создания базы
Карта сайта

Скачать Серия 1.466-1/75 Выпуск III-1. Архитектурные и конструктивные детали зданий

Дата актуализации: 10.08.2017

Серия 1.466-1/75

Выпуск III-1. Архитектурные и конструктивные детали зданий

Обозначение: Серия 1.466-1/75
Обозначение англ: Series 1.466-1/75
Статус:не действует
Название рус.:Выпуск III-1. Архитектурные и конструктивные детали зданий
Дата добавления в базу:01.09.2013
Дата актуализации:05.05.2017
Дата введения:01.09.1978
Дата окончания срока действия:01.04.1988
Оглавление:1.466-1/75 Пояснительная записка
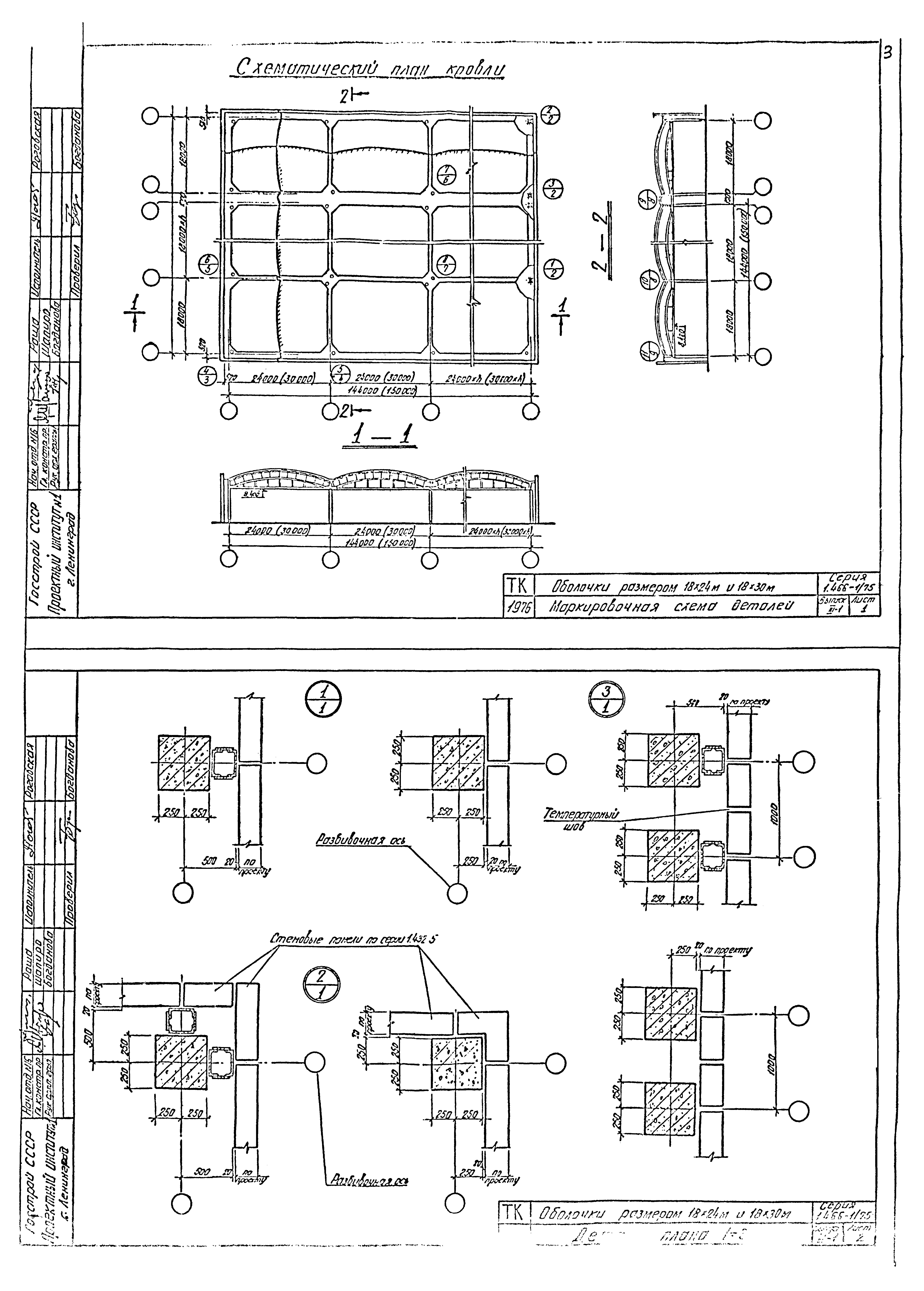
1.466-1/75 Маркировочная схема деталей
1.466-1/75 Детали плана 1-3
1.466-1/75 Деталь ендовы и водостока в углах оболочек
1.466-1/75 Деталь ендовы и водостока в узле сопряжения оболочек по наружному продольному ряду колонн
1.466-1/75 Деталь ендовы и водостока в узле сопряжения оболочек по наружному торцевому ряду колонн
1.466-1/75 Деталь ендовы и водостока у температурного шва
1.466-1/75 Деталь ендовы и водостока в узле сопряжения оболочек по внутреннему ряду колонн
1.466-1/75 Деталь покрытия температурных швов между оболочками
1.466-1/75 Деталь ендовы и парапета по пролету оболочек
1.466-1/75 Примеры решения фасадов по пролету 18 м
1.466-1/75 Примеры решения фасадов по пролету 24 м
1.466-1/75 Примеры решения фасадов по пролету 30 м
1.466-1/75 Зенитный фонарь 3Ф-1. Схемы размещения зенитных фонарей на оболочках
1.466-1/75 Зенитный фонарь 3Ф-1. Разрезы 1-1,2-2
1.466-1/75 Зенитный фонарь 3Ф-1. Узлы 1-5
1.466-1/75 Зенитный фонарь 3Ф-1. Узлы 6-11
1.466-1/75 Светоаэрационный фонарь. Монтажные схемы
1.466-1/75 Светоаэрационный фонарь. Узлы 1-6
1.466-1/75 Схемы возможного расположения дефлекторов. Крепление стакана шахты дефлектора
1.466-1/75 Схемы привязки основных и фахверковых колонн по наружным рядам колонн
1.466-1/75 Установка доборных плит покрытия в местах примыкания оболочек к наружной стене
1.466-1/75 Установка доборных плит покрытия на углах здания
1.466-1/75 Крепление фахверковых колонн по наружным рядам к контурным фермам и поясам
1.466-1/75 Крепление фахверковых колонн внутренних перегородок к контурным фермам и плитам
1.466-1/75 Крепление фахверковых колонн внутренних перегородок к плитам оболочки
1.466-1/75 Перекрытие вставки
1.466-1/75 Схема раскладки металлических щитов настила перекрытия температурного шва
1.466-1/75 Узлы крепления металлических щитов настила перекрытия температурных швов
Разработан: ЦНИИСК им. В.А. Кучеренко
ЦНИИпромзданий
НИИЖБ
НИИСФ
Проектный институт № 1 Госстроя СССР
Утверждён:10.05.1978 Госстрой СССР (Государственный комитет Совета Министров СССР по делам строительства) (USSR Gosstroy 81)
Расположен в:Техническая документация Строительство Справочные документы Типовые строительные конструкции, изделия и узлы Общероссийский строительный каталог Строительные конструкции, изделия и узлы зданий и сооружений для всех видов строительства Конструкции, изделия и узлы зданий Ограждающие конструкции Покрытия Сборные железобетонные плиты и панели
Чем заменён:
Серия 1.466-1/75Серия 1.466-1/75Серия 1.466-1/75Серия 1.466-1/75Серия 1.466-1/75Серия 1.466-1/75Серия 1.466-1/75Серия 1.466-1/75Серия 1.466-1/75Серия 1.466-1/75Серия 1.466-1/75Серия 1.466-1/75Серия 1.466-1/75Серия 1.466-1/75Серия 1.466-1/75Серия 1.466-1/75

© 2013 Ёшкин Кот :-) Карта сайта