Информационная система
«Ёшкин Кот»

Скачать базу одним архивом
Скачать обновления
История создания базы
Карта сайта

Скачать Типовой проект 902-1-80.83 Альбом IV. Строительные решения. Подземная часть (открытый способ в сухих грунтах и опускной способ в мокрых грунтах)

Дата актуализации: 10.08.2017

Типовой проект 902-1-80.83

Альбом IV. Строительные решения. Подземная часть (открытый способ в сухих грунтах и опускной способ в мокрых грунтах)

Обозначение: Типовой проект 902-1-80.83
Обозначение англ: 902-1-80.83
Статус:действует
Название рус.:Альбом IV. Строительные решения. Подземная часть (открытый способ в сухих грунтах и опускной способ в мокрых грунтах)
Дата добавления в базу:01.09.2013
Дата актуализации:05.05.2017
Дата введения:06.02.1984
Оглавление:ТП 902-1-80.83 Содержание
ТП 902-1-80.83-КЖ Основной комплект КЖ
ТП 902-1-80.83-КЖ-1 Общие данные
ТП 902-1-80.83-КЖ-2 Планы на отм. -4.200,-4.700,-7.250. Разрезы 1-1,2-2
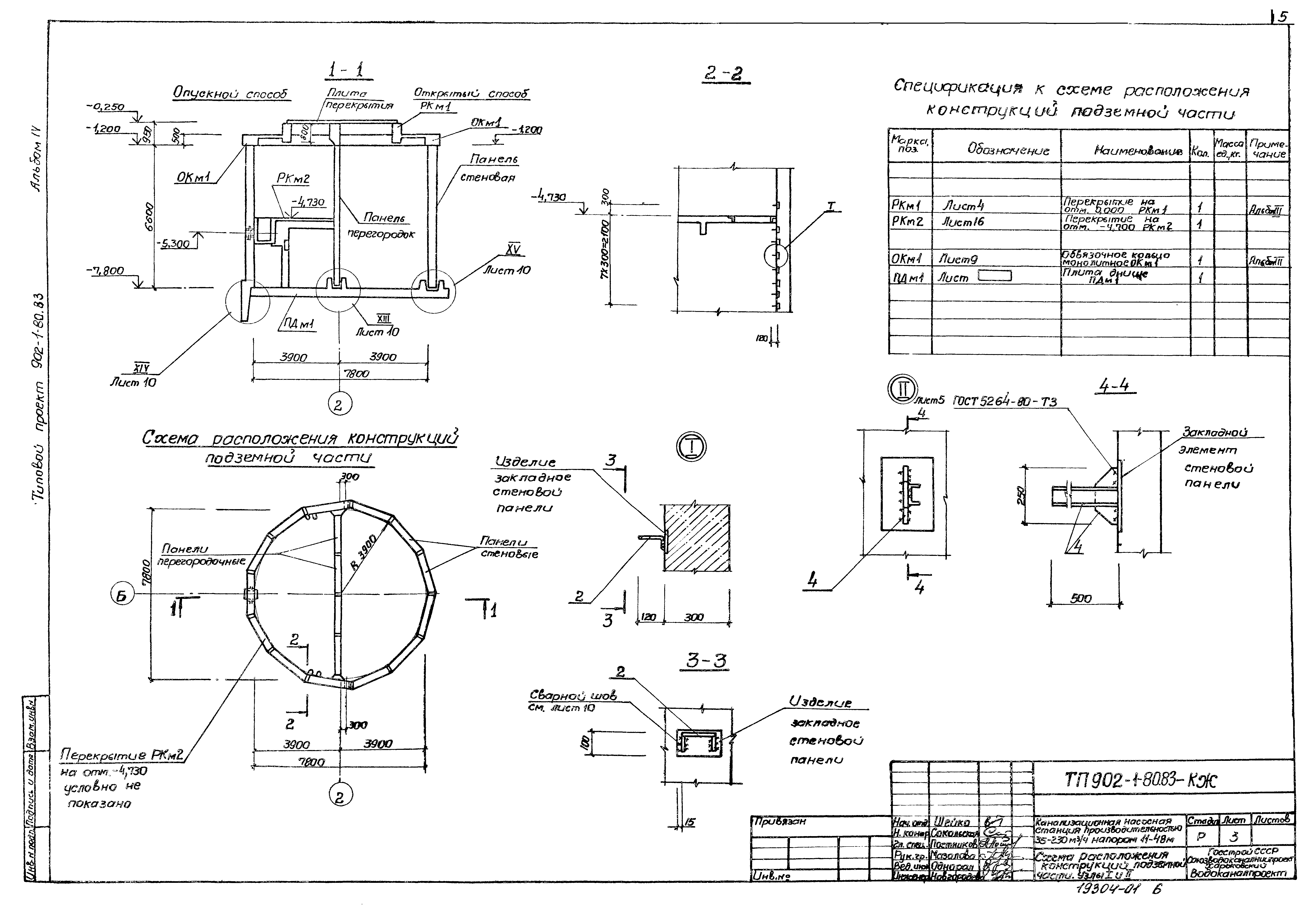
ТП 902-1-80.83-КЖ-3 Схема расположения конструкций подземной части. Узлы 1 и 2
ТП 902-1-80.83-КЖ-4 Схема расположения опорных блоков и форшахты
ТП 902-1-80.83-КЖ-5 Схема расположения стеновых панелей
ТП 902-1-80.83-КЖ-6 Схема расположения стеновых панелей. Узлы 3-7,16. Шпоночный стык
ТП 902-1-80.83-КЖ-7 Схема расположения стеновых панелей. Узлы 8-12. Шпоночный стык
ТП 902-1-80.83-КЖ-8 Схема расположения стеновых панелей. Узлы 3-7,15,16. Клиновый стык
ТП 902-1-80.83-КЖ-9 Схема расположения стеновых панелей. Узлы 8-13. Клиновый стык
ТП 902-1-80.83-КЖ-10 Схема расположения стеновых панелей. Узлы 15-17
ТП 902-1-80.83-КЖ-11 Схема расположения стеновых панелей. Спецификация
ТП 902-1-80.83-КЖ-12 Плита днища ПДм1. Общий вид и схема армирования (открытый способ)
ТП 902-1-80.83-КЖ-13 Плита днища ПДм1. Схема расположения каркасов. Спецификация (открытый способ)
ТП 902-1-80.83-КЖ-14 Плита днища ПДм1. Общий вид и схема армирования (опускной способ)
ТП 902-1-80.83-КЖ-15 Плита днища ПДм1. Схема расположения каркасов. Спецификация (опускной способ)
ТП 902-1-80.83-КЖ-16 Перекрытие на отм. -4.700 РКм2. Схема расположения (начало)
ТП 902-1-80.83-КЖ-17 Перекрытие на отм. -4.700 РКм2. Схема расположения (окончание)
ТП 902-1-80.83-КЖ-18 Перекрытие на отм. -4.700 РКм2. Плита Пм1, балки БМ1-БМ3. Общий вид и схемы армирования
ТП 902-1-80.83-КЖ-19 Перекрытие на отм. -4.700 РКм2. Балки БМ4-БМ8, колонна КМ1. Общий вид и схемы армирования
ТП 902-1-80.83-КЖ-20 Перекрытие на отм. -4.700 РКм2. Лоток ЛМ1. Общий вид и схемы армирования
ТП 902-1-80.83-КЖ-21 Перекрытие на отм. -4.700 РКм2. Спецификация (начало)
ТП 902-1-80.83-КЖ-22 Перекрытие на отм. -4.700 РКм2. Спецификация (окончание)
ТП 902-1-80.83-КМ Основной комплект КМ
ТП 902-1-80.83-КМ-1 Общие данные
ТП 902-1-80.83-КМ-2 Схема расположения лестниц и переходных площадок (начало)
ТП 902-1-80.83-КМ-3 Схема расположения лестниц и переходных площадок (окончание)
Разработан: Харьковский Водоканалпроект
Утверждён:27.10.1983 СоюзводоканалНИИпроект (SoyuzvodokanalNIIproject 59)
Расположен в:Техническая документация Строительство Справочные документы Типовые строительные конструкции, изделия и узлы Общероссийский строительный каталог Промышленные предприятия, здания и сооружения Здания и сооружения санитарно-технические Канализация Станции насосные Станции насосные для перекачки бытовых сточных вод
Типовой проект 902-1-80.83Типовой проект 902-1-80.83Типовой проект 902-1-80.83Типовой проект 902-1-80.83Типовой проект 902-1-80.83Типовой проект 902-1-80.83Типовой проект 902-1-80.83Типовой проект 902-1-80.83Типовой проект 902-1-80.83Типовой проект 902-1-80.83Типовой проект 902-1-80.83Типовой проект 902-1-80.83Типовой проект 902-1-80.83Типовой проект 902-1-80.83Типовой проект 902-1-80.83Типовой проект 902-1-80.83Типовой проект 902-1-80.83Типовой проект 902-1-80.83Типовой проект 902-1-80.83Типовой проект 902-1-80.83Типовой проект 902-1-80.83Типовой проект 902-1-80.83Типовой проект 902-1-80.83Типовой проект 902-1-80.83Типовой проект 902-1-80.83Типовой проект 902-1-80.83Типовой проект 902-1-80.83Типовой проект 902-1-80.83Типовой проект 902-1-80.83

© 2013 Ёшкин Кот :-) Карта сайта