Информационная система
«Ёшкин Кот»

Скачать базу одним архивом
Скачать обновления
История создания базы
Карта сайта

Скачать Типовой проект 705-1-207.86 Альбом II. Строительные изделия

Дата актуализации: 10.08.2017

Типовой проект 705-1-207.86

Альбом II. Строительные изделия

Обозначение: Типовой проект 705-1-207.86
Обозначение англ: 705-1-207.86
Статус:не определен законодательством
Название рус.:Альбом II. Строительные изделия
Дата добавления в базу:01.09.2013
Дата актуализации:05.05.2017
Дата введения:02.12.1986
Оглавление:ТП 705-1-207.86 Содержание
ТП 705-1-207.86-КЖИ.И.01.00 Колонна 1К132-2-П1
ТП 705-1-207.86-КЖИ.И.02.00 Колонна 4КФ133-1-П1
ТП 705-1-207.86-КЖИ.И.03.00 Колонна 4КФ133-1-П2
ТП 705-1-207.86-КЖИ.И.04.00 Колонна 4КФ133-1-П3
ТП 705-1-207.86-КЖИ.И.05.00 Колонна 1К132-2-П2
ТП 705-1-207.86-КЖИ.И.06.00 Колонна 1К132-2-П3
ТП 705-1-207.86-КЖИ.И.07.00 Колонна 1К132-2-П4
ТП 705-1-207.86-КЖИ.И.08.00 Колонна 1К132-2-П5
ТП 705-1-207.86-КЖИ.И.09.00 Колонна 1К132-2-П6
ТП 705-1-207.86-КЖИ.И.10.00 Колонна 1К132-2-П7
ТП 705-1-207.86-КЖИ.И.11.00 Колонна 1К132-2-П8
ТП 705-1-207.86-КЖИ.И.12.00 Колонна 1К132-2-П9
ТП 705-1-207.86-КЖИ.И.13.00 Колонна 1К132-2-П10
ТП 705-1-207.86-КЖИ.И.14.00 Колонна 1К132-2-П11
ТП 705-1-207.86-КЖИ.И.15.00 Колонна 4КФ133-1-П4
ТП 705-1-207.86-КЖИ.И.16.00 Колонна 4КФ133-1-П5
ТП 705-1-207.86-КЖИ.И.17.00 Колонна 4КФ133-1-П6
ТП 705-1-207.86-КЖИ.И.18.00 Колонна 1К132-2-П12
ТП 705-1-207.86-КЖИ.И.19.00 Колонна 1К132-2-П13
ТП 705-1-207.86-КЖИ.И.20.00 Колонна 1К132-2-П14
ТП 705-1-207.86-КЖИ.И.21.00 Колонна 1К132-2-П15
ТП 705-1-207.86-КЖИ.И.22.00 Колонна 1К132-2-П16
ТП 705-1-207.86-КЖИ.И.23.00 Колонна К84-1а
ТП 705-1-207.86-КЖИ.И.24.00 Колонна К84-1б
ТП 705-1-207.86-КЖИ.И.25.00 Колонна 1К132-2-П17
ТП 705-1-207.86-КЖИ.И.26.00 Балка 1БСТ6-5АIVт-1а
ТП 705-1-207.86-КЖИ.И.27.00 Плита ПГ-4АIVт-1
ТП 705-1-207.86-КЖИ.И.28.00 Перемычка 1ПР8-44.12.29-1
ТП 705-1-207.86-КЖИ.И.29.00 Колонна К26
ТП 705-1-207.86-КЖИ.И.30.00 Стойка фахверка СВ1
ТП 705-1-207.86-КЖИ.И.31.00 Стойка фахверка (СФ2,СФ3)
ТП 705-1-207.86-КЖИ.И.32.00 Панель ПМ1-1
ТП 705-1-207.86-КЖИ.И.33.00 Панель ПС600.9-1АIV-т-1а,ПС600.9-1АIV-т-1б,ПС600.12-1АIV-т-1а,ПС600.12-1АIV-т-1б
ТП 705-1-207.86-КЖИ.И.34.00 СБ Панель стеновая ПСП30-К4-Ша. Сборочный чертеж
ТП 705-1-207.86-КЖИ.И.35.00 СБ Панель стеновая ПСП30-К3-Ш1а. Сборочный чертеж
ТП 705-1-207.86-КЖИ.И.36.00 СБ Панель стеновая ПСП48-К5-Ша. Сборочный чертеж
ТП 705-1-207.86-КЖИ.И.37.00 СБ Панель стеновая (ПСП48-К5-Шб,ПСП48-К5-Шв). Сборочный чертеж
ТП 705-1-207.86-КЖИ.И.38.00 СБ Панель стеновая (ПСП48-К5-Шг,ПСП48-К5-Шд). Сборочный чертеж
ТП 705-1-207.86-КЖИ.И.39.00 СБ Панель стеновая (ПСП48-К5-Ше,ПСП48-К5-Ши). Сборочный чертеж
ТП 705-1-207.86-КЖИ.И.40.00 СБ Панель стеновая (ПСП48-К5-Шж,ПСП48-К5-Шз). Сборочный чертеж
ТП 705-1-207.86-КЖИ.И.41.00 СБ Панель стеновая (ПСП48-К4-Ш1а,ПСП48-К4-Ш1б). Сборочный чертеж
ТП 705-1-207.86-КЖИ.И.42.00 Панель стеновая (ПСП30-К4-Шб,ПСП30-К4-Шг)
ТП 705-1-207.86-КЖИ.И.42.00 СБ Панель стеновая (ПСП30-К4-Шб,ПСП30-К4-Шг). Сборочный чертеж
ТП 705-1-207.86-КЖИ.И.43.00 Панель стеновая (ПСП30-К4-Шв,ПСП30-К4-Шд)
ТП 705-1-207.86-КЖИ.И.43.00 СБ Панель стеновая (ПСП30-К4-Шв,ПСП30-К4-Шд). Сборочный чертеж
ТП 705-1-207.86-КЖИ.И.44.00 Панель стеновая ПСП30-К3-Ш1б
ТП 705-1-207.86-КЖИ.И.44.00 СБ Панель стеновая ПСП30-К3-Ш1б. Сборочный чертеж
ТП 705-1-207.86-КЖИ.И.45.00 Панель стеновая ПСП30-К3-Ш1в
ТП 705-1-207.86-КЖИ.И.45.00 СБ Панель стеновая ПСП30-К3-Ш1в. Сборочный чертеж
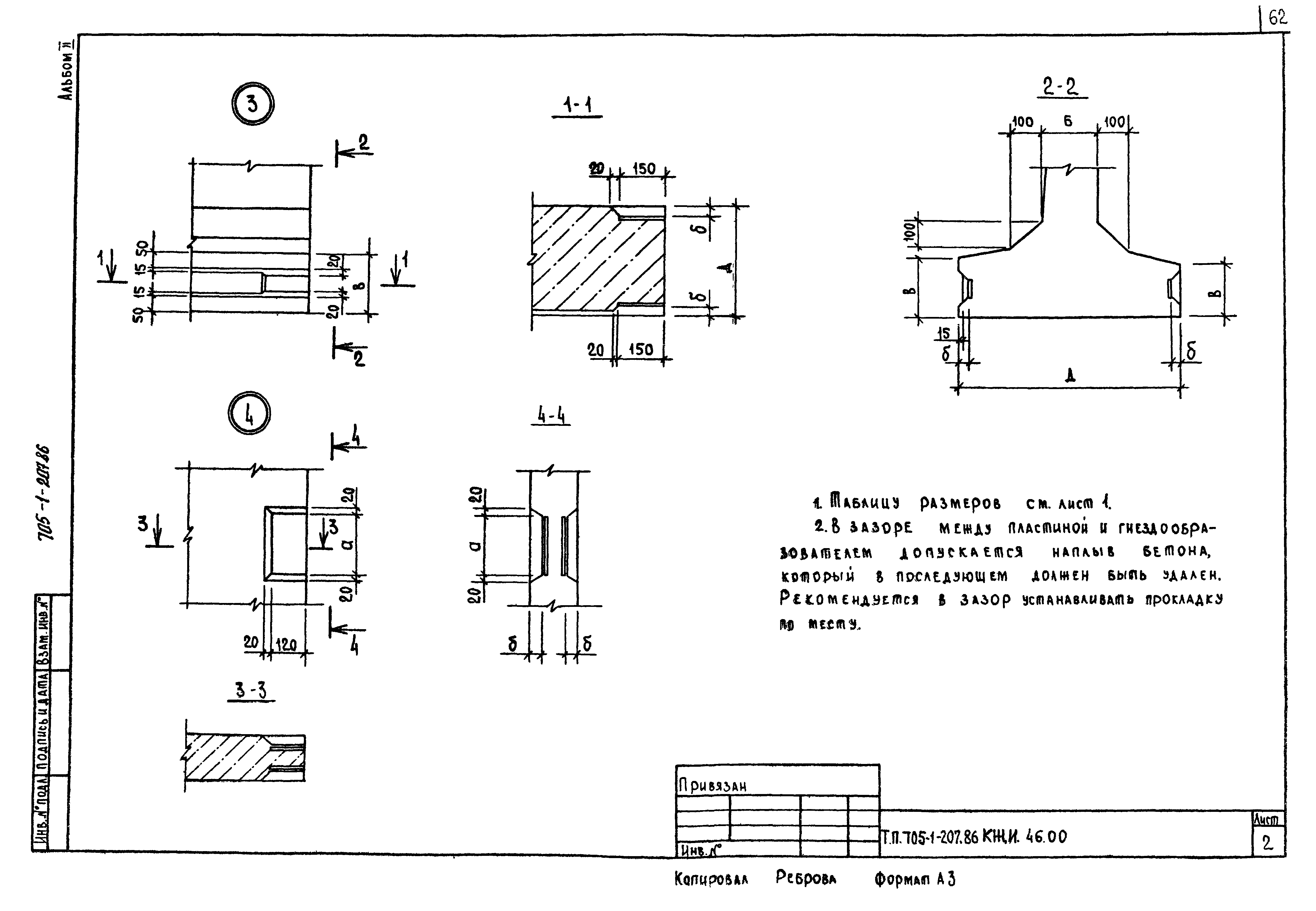
ТП 705-1-207.86-КЖИ.И.46.00 Узлы 1-4
ТП 705-1-207.86-КЖИ.И.00.00 ВМС Ведомость расхода стали
ТП 705-1-207.86-КЖИ.И.47.00 Изделие закладное МН1
ТП 705-1-207.86-КЖИ.И.48.00 Изделие соединительное МС6
ТП 705-1-207.86-КЖИ.И.49.00 Изделие закладное (МН2-МН10)
ТП 705-1-207.86-КЖИ.И.50.00 Изделие закладное (МН11-МН15,МН17,МН18,МН20-МН22,МН25)
ТП 705-1-207.86-КЖИ.И.50.00 СБ Изделие закладное (МН11-МН15,МН17,МН18,МН20-МН22,МН25). Сборочный чертеж
ТП 705-1-207.86-КЖИ.И.51.00 Каркас плоский (КР1-КР4)
ТП 705-1-207.86-КЖИ.И.52.00 Каркас плоский (КР5-КР13)
ТП 705-1-207.86-КЖИ.И.53.00 Каркас плоский (КР14-КР19)
ТП 705-1-207.86-КЖИ.И.54.00 Каркас плоский (КР20-КР31)
ТП 705-1-207.86-КЖИ.И.54.00 СБ Каркас плоский (КР20-КР31). Сборочный чертеж
ТП 705-1-207.86-КЖИ.И.55.00 Сетка арматурная С1
ТП 705-1-207.86-КЖИ.И.56.00 Сетка арматурная С2
ТП 705-1-207.86-КЖИ.И.57.00 Сетка арматурная С3
ТП 705-1-207.86-КЖИ.И.58.00 Сетка арматурная (С4-С9)
ТП 705-1-207.86-КЖИ.И.59.00 Сетка арматурная (С10-С18)
ТП 705-1-207.86-КЖИ.И.60.00 Сетка арматурная (С19-С21,С63)
ТП 705-1-207.86-КЖИ.И.61.00 Сетка арматурная (С22-С24)
ТП 705-1-207.86-КЖИ.И.62.00 Сетка арматурная (С25-С27)
ТП 705-1-207.86-КЖИ.И.63.00 Сетка арматурная (С28-С30)
ТП 705-1-207.86-КЖИ.И.64.00 Сетка арматурная (С31-С40)
ТП 705-1-207.86-КЖИ.И.64.00 СБ Сетка арматурная (С31-С40). Сборочный чертеж
ТП 705-1-207.86-КЖИ.И.65.00 Сетка арматурная (С41-С50)
ТП 705-1-207.86-КЖИ.И.65.00 СБ Сетка арматурная (С41-С50). Сборочный чертеж
ТП 705-1-207.86-КЖИ.И.66.00 Сетка арматурная (С51-С54)
ТП 705-1-207.86-КЖИ.И.67.00 Сетка арматурная (С55-С58)
ТП 705-1-207.86-КЖИ.И.68.00 Сетка арматурная (С59,С60)
ТП 705-1-207.86-КЖИ.И.69.00 Сетка арматурная (С61,С62)
ТП 705-1-207.86-КЖИ.И.70.00 Изделие соединительное МС2
ТП 705-1-207.86-КЖИ.И.71.00 Изделие соединительное (МС3,МС5)
ТП 705-1-207.86-КЖИ.И.72.00 Изделие соединительное МС7
ТП 705-1-207.86-КДИ.И.01.00 Короб деревянный
ТП 705-1-207.86-КДИ.И.02.00 СБ Щит Щ1. Сборочный чертеж
ТП 705-1-207.86-КДИ.И.03.00 СБ Щит ЩД1,ЩД5. Сборочный чертеж
ТП 705-1-207.86-КДИ.И.04.00 СБ Щит ЩД2,ЩД8. Сборочный чертеж
ТП 705-1-207.86-КДИ.И.05.00 СБ Щит ЩД3,ЩД9. Сборочный чертеж
ТП 705-1-207.86-КДИ.И.06.00 СБ Щит ЩД4,ЩД6. Сборочный чертеж
ТП 705-1-207.86-КДИ.И.07.00 СБ Щит ЩД7. Сборочный чертеж
ТП 705-1-207.86-КДИ.И.08.00 Элемент крепления МС8
ТП 705-1-207.86-КДИ.И.09.00 Элемент крепления МС9
ТП 705-1-207.86-КДИ.И.10.00 Петля
ТП 705-1-207.86-КДИ.И.11.00 Скоба
Разработан: Проектный институт ЦИТЭПсельхоз
Утверждён:02.12.1986 Госагропром СССР (USSR Gosagroprom 33-ЭТ)
Расположен в:Техническая документация Строительство Справочные документы Типовые строительные конструкции, изделия и узлы Общероссийский строительный каталог Сельскохозяйственные предприятия, здания и сооружения Предприятия, здания и сооружения по ремонту, техническому обслуживанию, хранению и обеспечению горюче-смазочными материалами сельхозтехники Прирельсовые склады твердых минеральных удобрений
Типовой проект 705-1-207.86Типовой проект 705-1-207.86Типовой проект 705-1-207.86Типовой проект 705-1-207.86Типовой проект 705-1-207.86Типовой проект 705-1-207.86Типовой проект 705-1-207.86Типовой проект 705-1-207.86Типовой проект 705-1-207.86Типовой проект 705-1-207.86Типовой проект 705-1-207.86Типовой проект 705-1-207.86Типовой проект 705-1-207.86Типовой проект 705-1-207.86Типовой проект 705-1-207.86Типовой проект 705-1-207.86Типовой проект 705-1-207.86Типовой проект 705-1-207.86Типовой проект 705-1-207.86Типовой проект 705-1-207.86Типовой проект 705-1-207.86Типовой проект 705-1-207.86Типовой проект 705-1-207.86Типовой проект 705-1-207.86Типовой проект 705-1-207.86Типовой проект 705-1-207.86Типовой проект 705-1-207.86Типовой проект 705-1-207.86Типовой проект 705-1-207.86Типовой проект 705-1-207.86Типовой проект 705-1-207.86Типовой проект 705-1-207.86Типовой проект 705-1-207.86Типовой проект 705-1-207.86Типовой проект 705-1-207.86Типовой проект 705-1-207.86Типовой проект 705-1-207.86Типовой проект 705-1-207.86Типовой проект 705-1-207.86Типовой проект 705-1-207.86Типовой проект 705-1-207.86Типовой проект 705-1-207.86Типовой проект 705-1-207.86Типовой проект 705-1-207.86Типовой проект 705-1-207.86Типовой проект 705-1-207.86Типовой проект 705-1-207.86Типовой проект 705-1-207.86Типовой проект 705-1-207.86Типовой проект 705-1-207.86Типовой проект 705-1-207.86Типовой проект 705-1-207.86Типовой проект 705-1-207.86Типовой проект 705-1-207.86Типовой проект 705-1-207.86Типовой проект 705-1-207.86Типовой проект 705-1-207.86Типовой проект 705-1-207.86Типовой проект 705-1-207.86Типовой проект 705-1-207.86Типовой проект 705-1-207.86Типовой проект 705-1-207.86Типовой проект 705-1-207.86Типовой проект 705-1-207.86Типовой проект 705-1-207.86Типовой проект 705-1-207.86Типовой проект 705-1-207.86Типовой проект 705-1-207.86Типовой проект 705-1-207.86Типовой проект 705-1-207.86Типовой проект 705-1-207.86Типовой проект 705-1-207.86Типовой проект 705-1-207.86Типовой проект 705-1-207.86Типовой проект 705-1-207.86Типовой проект 705-1-207.86Типовой проект 705-1-207.86Типовой проект 705-1-207.86Типовой проект 705-1-207.86Типовой проект 705-1-207.86Типовой проект 705-1-207.86Типовой проект 705-1-207.86Типовой проект 705-1-207.86Типовой проект 705-1-207.86Типовой проект 705-1-207.86Типовой проект 705-1-207.86Типовой проект 705-1-207.86Типовой проект 705-1-207.86Типовой проект 705-1-207.86Типовой проект 705-1-207.86Типовой проект 705-1-207.86Типовой проект 705-1-207.86Типовой проект 705-1-207.86Типовой проект 705-1-207.86Типовой проект 705-1-207.86Типовой проект 705-1-207.86Типовой проект 705-1-207.86Типовой проект 705-1-207.86Типовой проект 705-1-207.86Типовой проект 705-1-207.86Типовой проект 705-1-207.86

© 2013 Ёшкин Кот :-) Карта сайта