Информационная система
«Ёшкин Кот»

Скачать базу одним архивом
Скачать обновления
История создания базы
Карта сайта

Скачать Типовые материалы для проектирования 903-02-40.90 Альбом 2. Генеральный план. Мазутоснабжение. Конструкции железобетонные. Наружные сети водоснабжения и канализации. Кабельные линии. Электрическое освещение территории. Связь и сигнализация. Тепловые сети

Дата актуализации: 10.08.2017

Типовые материалы для проектирования 903-02-40.90

Альбом 2. Генеральный план. Мазутоснабжение. Конструкции железобетонные. Наружные сети водоснабжения и канализации. Кабельные линии. Электрическое освещение территории. Связь и сигнализация. Тепловые сети

Обозначение: Типовые материалы для проектирования 903-02-40.90
Обозначение англ: 903-02-40.90
Статус:cправочные материалы, мп, тпр
Название рус.:Альбом 2. Генеральный план. Мазутоснабжение. Конструкции железобетонные. Наружные сети водоснабжения и канализации. Кабельные линии. Электрическое освещение территории. Связь и сигнализация. Тепловые сети
Дата добавления в базу:01.09.2013
Дата актуализации:05.05.2017
Дата введения:22.01.1992
Оглавление:ТМП 903-02-40.91-ГП Генеральный план
ТМП 903-02-40.91-ГП-1 Общие данные
ТМП 903-02-40.91-ГП-2 Разбивочный план
ТМП 903-02-40.91-ГП-3 Сводный план инженерных сетей
ТМП 903-02-40.91-ГП-4 Объемы работ. Спецификация элементов металлической ограды. Конструктивные поперечные профили автодорог, площадок и тротуаров
ТМП 903-02-40.91-МС Мазутоснабжение МС
ТМП 903-02-40.91-МС-1 Технологическая схема мазутоснабжения Q=6.5/13м3/4
ТМП 903-02-40.91-МС-2 Технологическая схема мазутоснабжения Q=13/16м3/4
ТМП 903-02-40.91-МС-3 Технологическая схема соединений трубопроводов жидкой присадки
ТМП 903-02-40.91-МС-4 Технологический план
ТМП 903-02-40.91-КЖ Конструкции железобетонные КЖ
ТМП 903-02-40.91-КЖ-1 Эстакада паромазутопроводов. Общие данные
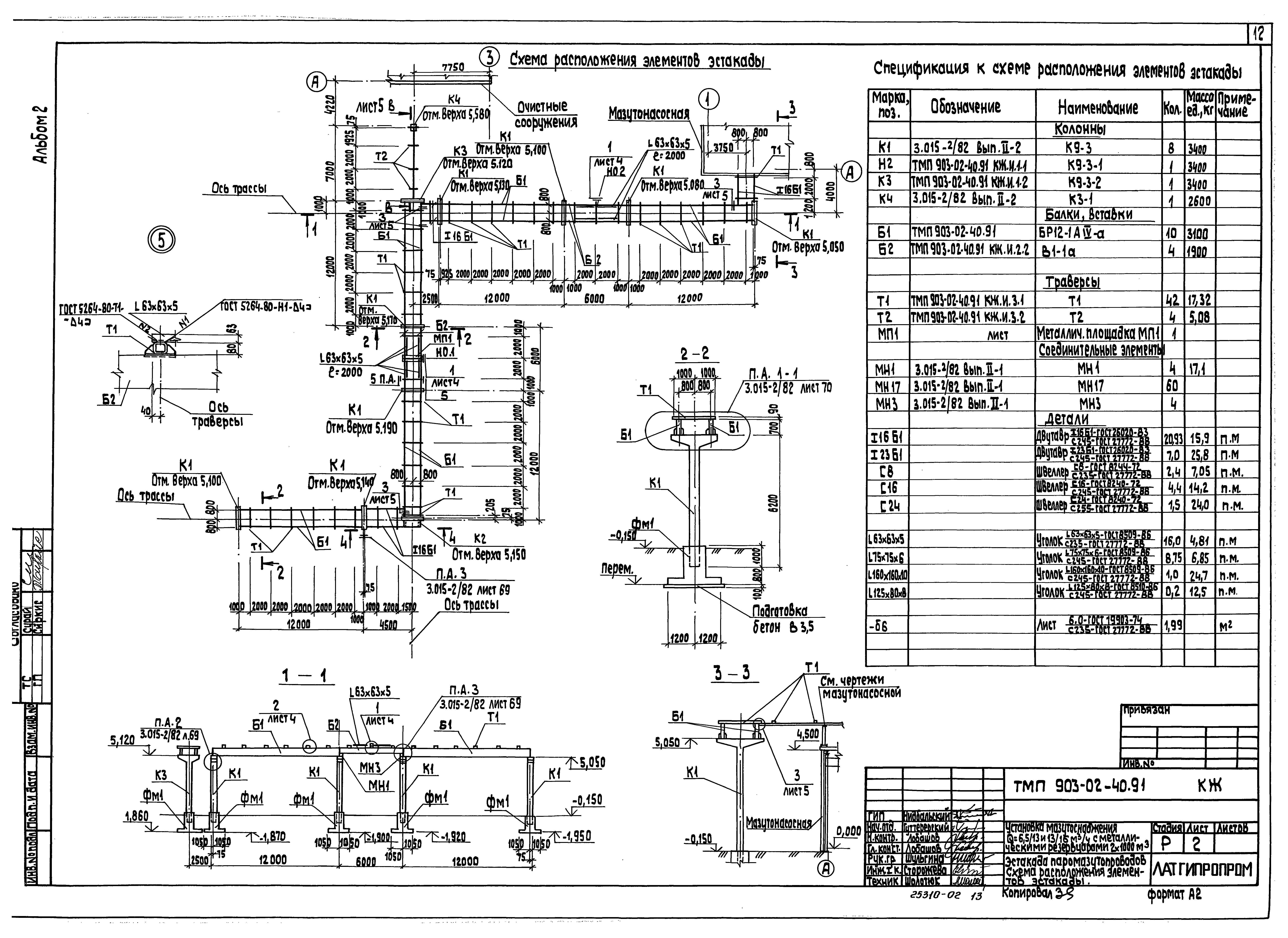
ТМП 903-02-40.91-КЖ-2 Эстакада паромазутопроводов. Схема расположения элементов эстакады
ТМП 903-02-40.91-КЖ-3 Эстакада паромазутопроводов. Схема расположения элементов эстакады
ТМП 903-02-40.91-КЖ-4 Эстакада паромазутопроводов. Схема расположения фундаментов эстакады ФМ1. Опалубка и армирование
ТМП 903-02-40.91-КЖ-5 Эстакада паромазутопроводов. МП1. Узлы 1,2. Опорная конструкция для труб-спутников
ТМП 903-02-40.91-КЖ-6 Эстакада паромазутопроводов. Виды 4-4;а-а...г-г. Узлы 3,4
ТМП 903-02-40.91-КЖИ-1.1 Колонна К9-3-1
ТМП 903-02-40.91-КЖИ-1.2 Колонна К9-3-2
ТМП 903-02-40.91-КЖИ-2.1 Балка БР12-1АIV-а-1
ТМП 903-02-40.91-КЖИ-2.2 Вставка В1-1-1
ТМП 903-02-40.91-КЖИ-3.1 Траверса Т-1
ТМП 903-02-40.91-КЖИ-3.2 Траверса Т-2
ТМП 903-02-40.91-НВК Наружные сети водопровода и канализации НВК
ТМП 903-02-40.91-НВК-1 Общие данные (начало)
ТМП 903-02-40.91-НВК-2 Общие данные (окончание)
ТМП 903-02-40.91-НВК-3 Наружные сети водоснабжения и канализации
ТМП 903-02-40.91-ЭК Кабельные линии ЭК
ТМП 903-02-40.91-ЭК-1 Общие данные
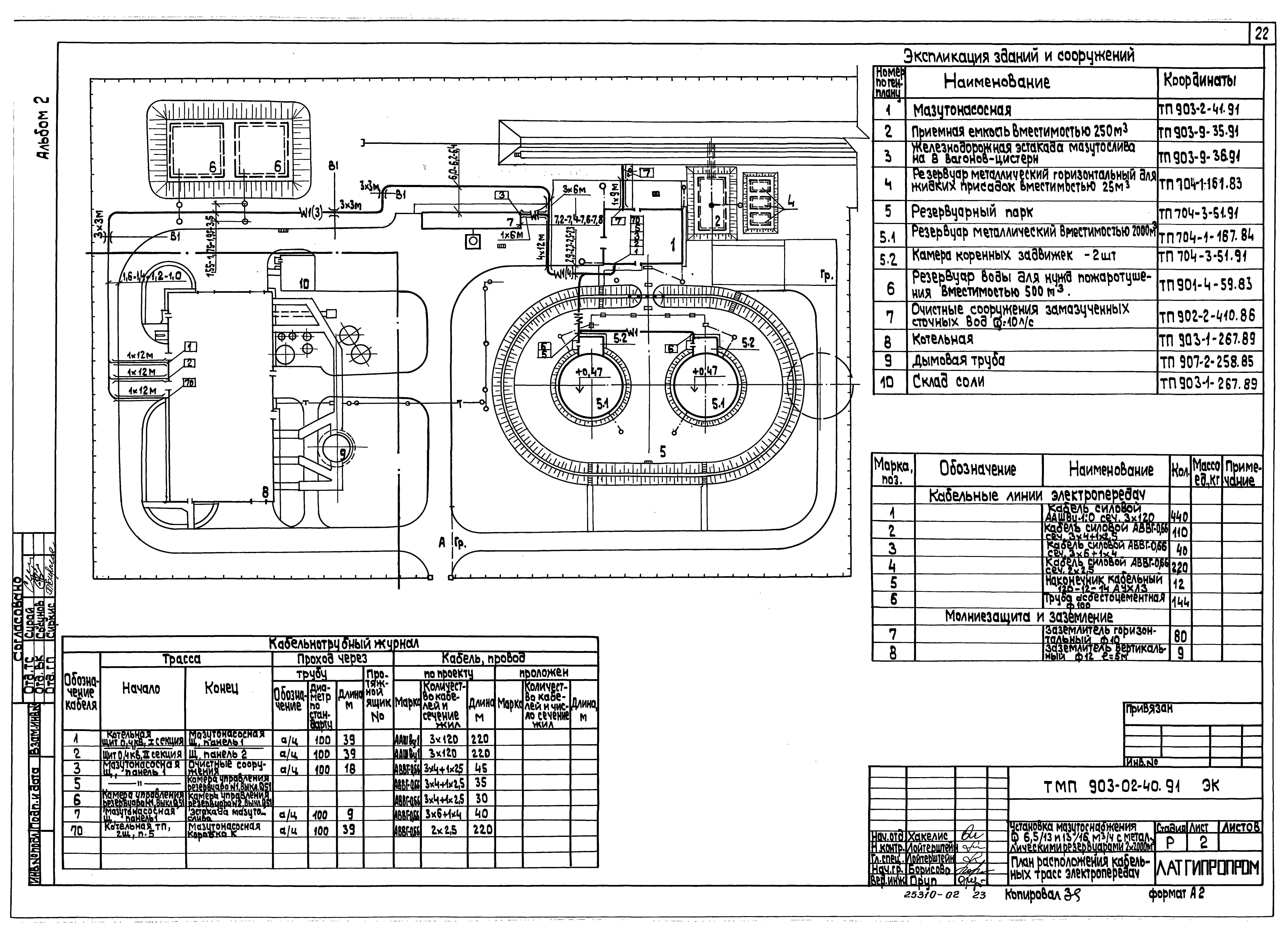
ТМП 903-02-40.91-ЭК-2 План расположения кабельных трасс электропередач
ТМП 903-02-40.91-ЭН Электрическое освещение территории ЭН
ТМП 903-02-40.91-ЭН-1 Общие данные
ТМП 903-02-40.91-ЭН-2 План освещения территории
ТМП 903-02-40.91-СС Связь и сигнализация СС
ТМП 903-02-40.91-СС-1 Общие данные
ТМП 903-02-40.91-СС-2 План расположения кабельных трасс связи и сигнализации
ТМП 903-02-40.91-ТС Тепловые сети ТС
ТМП 903-02-40.91-ТС-1 Общие данные
ТМП 903-02-40.91-ТС-2 Внутриплощадочные тепломазутопроводы. План. Разрезы 1-1;2-2;3-3
ТМП 903-02-40.91-ТС-3 Внутриплощадочные тепломазутопроводы. Схема
ТМП 903-02-40.91-ТС-4 Внутриплощадочные тепломазутопроводы. УТ-1. Разрез 4-4
ТМП 903-02-40.91-ТС-5 Внутриплощадочные тепломазутопроводы. Ведомость теплоизоляционных конструкций
Разработан: Латгипропром
Утверждён:22.01.1992 Сантехниипроект (31)
Расположен в:Техническая документация Строительство Справочные документы Типовые строительные конструкции, изделия и узлы Общероссийский строительный каталог Промышленные предприятия, здания и сооружения Здания и сооружения санитарно-технические Теплоснабжение Установка для снабжения котельных жидким топливом
Типовые материалы для проектирования 903-02-40.90Типовые материалы для проектирования 903-02-40.90Типовые материалы для проектирования 903-02-40.90Типовые материалы для проектирования 903-02-40.90Типовые материалы для проектирования 903-02-40.90Типовые материалы для проектирования 903-02-40.90Типовые материалы для проектирования 903-02-40.90Типовые материалы для проектирования 903-02-40.90Типовые материалы для проектирования 903-02-40.90Типовые материалы для проектирования 903-02-40.90Типовые материалы для проектирования 903-02-40.90Типовые материалы для проектирования 903-02-40.90Типовые материалы для проектирования 903-02-40.90Типовые материалы для проектирования 903-02-40.90Типовые материалы для проектирования 903-02-40.90Типовые материалы для проектирования 903-02-40.90Типовые материалы для проектирования 903-02-40.90Типовые материалы для проектирования 903-02-40.90Типовые материалы для проектирования 903-02-40.90Типовые материалы для проектирования 903-02-40.90Типовые материалы для проектирования 903-02-40.90Типовые материалы для проектирования 903-02-40.90Типовые материалы для проектирования 903-02-40.90Типовые материалы для проектирования 903-02-40.90Типовые материалы для проектирования 903-02-40.90Типовые материалы для проектирования 903-02-40.90Типовые материалы для проектирования 903-02-40.90Типовые материалы для проектирования 903-02-40.90Типовые материалы для проектирования 903-02-40.90Типовые материалы для проектирования 903-02-40.90Типовые материалы для проектирования 903-02-40.90Типовые материалы для проектирования 903-02-40.90

© 2013 Ёшкин Кот :-) Карта сайта