Скачать Типовой проект 903-2-30.90 Альбом 4. Мазутоснабжение, блоки оборудованияДата актуализации: 10.08.2017 Типовой проект 903-2-30.90
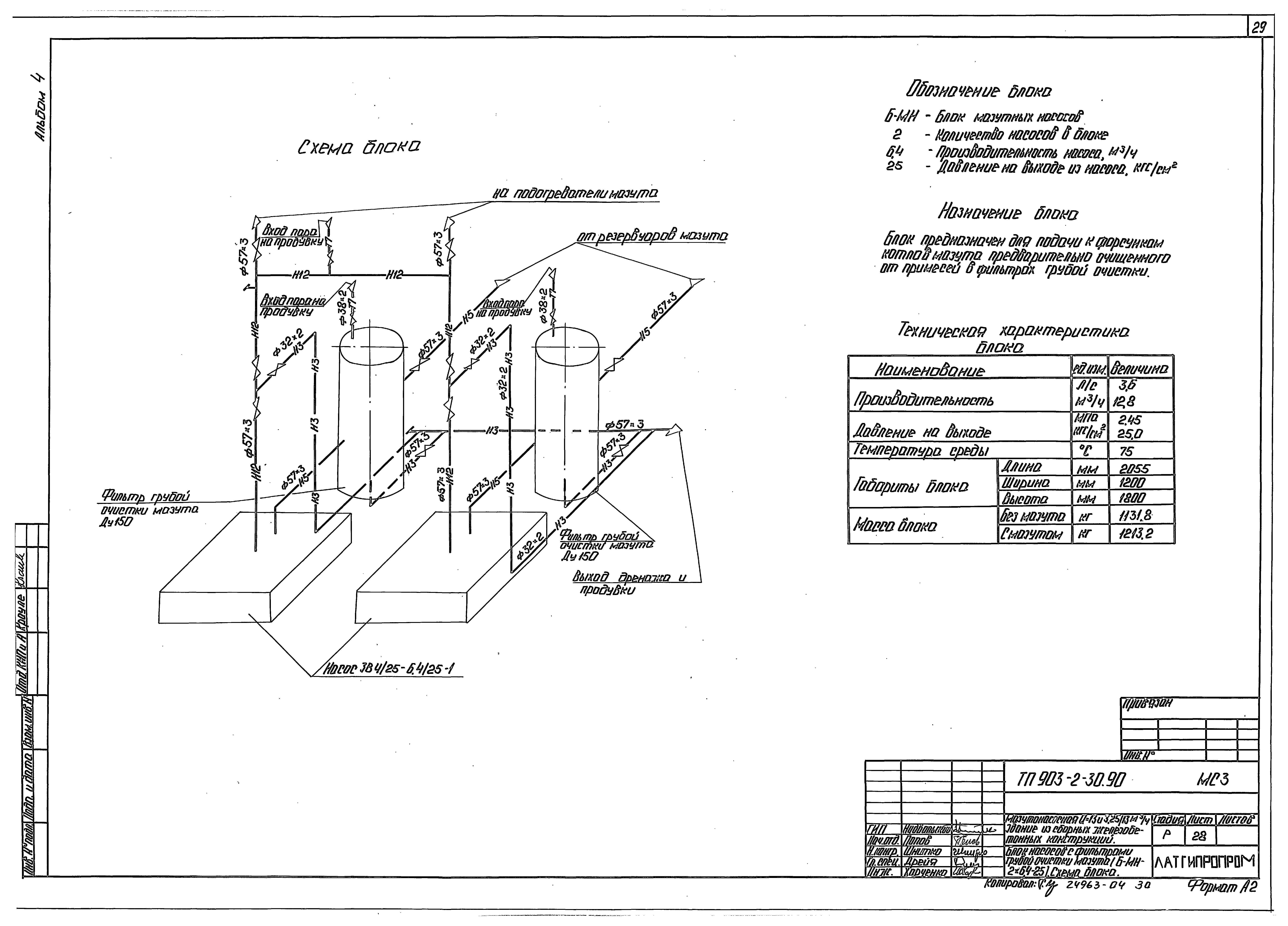
Альбом 4. Мазутоснабжение, блоки оборудованияОбозначение: | Типовой проект 903-2-30.90 | Обозначение англ: | 903-2-30.90 | Статус: | не определен законодательством | Название рус.: | Альбом 4. Мазутоснабжение, блоки оборудования | Дата добавления в базу: | 01.09.2013 | Дата актуализации: | 05.05.2017 | Дата введения: | 01.04.1991 | Оглавление: | ТП 903-2-30.90-МС3-1 Общие данные (начало) ТП 903-2-30.90-МС3-2 Общие данные (продолжение) ТП 903-2-30.90-МС3-3 Общие данные (продолжение) ТП 903-2-30.90-МС3-4 Общие данные (продолжение) ТП 903-2-30.90-МС3-5 Общие данные (продолжение) ТП 903-2-30.90-МС3-6 Общие данные (продолжение) ТП 903-2-30.90-МС3-7 Общие данные (продолжение) ТП 903-2-30.90-МС3-8 Общие данные (продолжение) ТП 903-2-30.90-МС3-9 Общие данные (продолжение) ТП 903-2-30.90-МС3-10 Общие данные (продолжение) ТП 903-2-30.90-МС3-11 Общие данные (продолжение) ТП 903-2-30.90-МС3-12 Общие данные (продолжение) ТП 903-2-30.90-МС3-13 Общие данные (продолжение) ТП 903-2-30.90-МС3-14 Общие данные (продолжение) ТП 903-2-30.90-МС3-15 Общие данные (продолжение) ТП 903-2-30.90-МС3-16 Общие данные (окончание) ТП 903-2-30.90-МС3-17 Блок насосов мазута (Б-Мн-2х70-5.4). Общий вид. Схема блока ТП 903-2-30.90-МС3-18 Блок насосов мазута (Б-Мн-2х70-5.4). Спецификация ТП 903-2-30.90-МС3-19 Блок насосов мазута (Б-Мн-2х70-5.4). План рамы. Разрезы А-А;Б-Б ТП 903-2-30.90-МС3-20 Блок насосов с фильтрами грубой очистки мазута (Б-Мн-2х45-3.8). Общий вид. Разрез А-А ТП 903-2-30.90-МС3-21 Блок насосов с фильтрами грубой очистки мазута (Б-Мн-2х45-3.8). Схема блока ТП 903-2-30.90-МС3-22 Блок насосов с фильтрами грубой очистки мазута (Б-Мн-2х45-3.8). План рамы. Разрезы ТП 903-2-30.90-МС3-23 Блок насосов с фильтрами грубой очистки мазута (Б-Мн-2х3.2-25). Общий вид. Разрез А-А ТП 903-2-30.90-МС3-24 Блок насосов с фильтрами грубой очистки мазута (Б-Мн-2х3.2-25). Схема блока ТП 903-2-30.90-МС3-25 Блок насосов с фильтрами грубой очистки мазута (Б-Мн-2х3.2-25). Спецификация ТП 903-2-30.90-МС3-26 Блок насосов с фильтрами грубой очистки мазута (Б-Мн-2х3.2-25). План рамы. Разрезы А-А;Б-Б;В-В ТП 903-2-30.90-МС3-27 Блок насосов с фильтрами грубой очистки мазута (Б-Мн-2х6.4-25). Общий вид. Разрез А-А ТП 903-2-30.90-МС3-28 Блок насосов с фильтрами грубой очистки мазута (Б-Мн-2х6.4-25). Схема блока ТП 903-2-30.90-МС3-29 Блок насосов с фильтрами грубой очистки мазута (Б-Мн-2х6.4-25). Спецификация ТП 903-2-30.90-МС3-30 Блок насосов с фильтрами грубой очистки мазута (Б-Мн-2х6.4-25). План рамы. Разрезы А-А;Б-Б;В-В ТП 903-2-30.90-МС3-31 Блок фильтров тонкой очистки мазута (Б-МФт-2х30-25). Общий вид ТП 903-2-30.90-МС3-32 Блок фильтров тонкой очистки мазута (Б-МФт-2х30-25). Схема блока ТП 903-2-30.90-МС3-33 Блок фильтров тонкой очистки мазута (Б-МФт-2х30-25). План рамы. Разрезы А-А;Б-Б ТП 903-2-30.90-МС3-34 Блок парового коллектора. БПК. Общий вид. Схема блока ТП 903-2-30.90-МС3-35 Блок парового коллектора. БПК. Спецификация ТП 903-2-30.90-МС3-36 Блок парового коллектора. БПК. План рамы. Разрезы А-А;Б-Б | Разработан: | Латгипропром
| Утверждён: | 01.04.1991 Сантехниипроект (22)
| Расположен в: |
|
                                    
|