Информационная система
«Ёшкин Кот»

Скачать базу одним архивом
Скачать обновления
История создания базы
Карта сайта

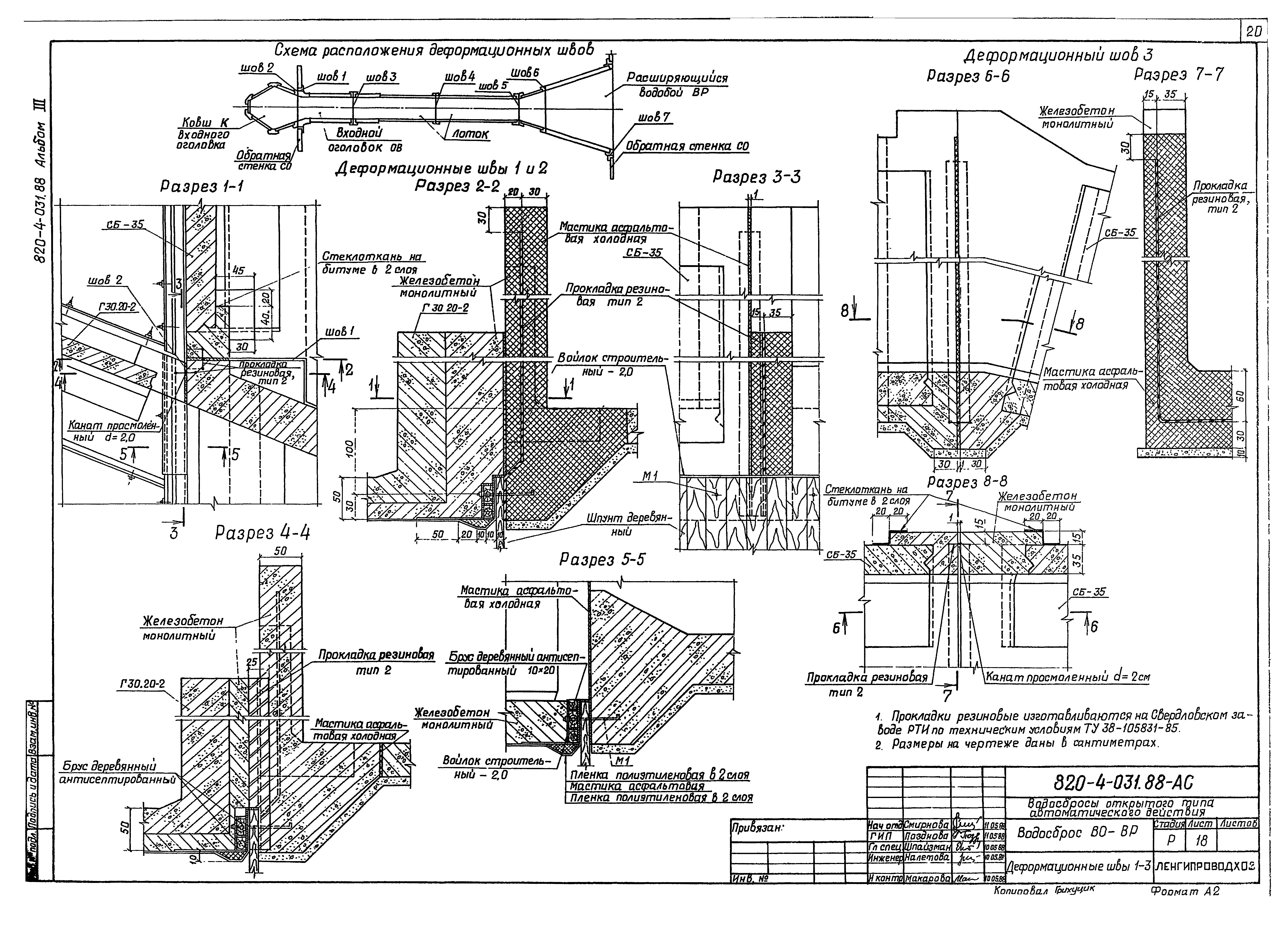
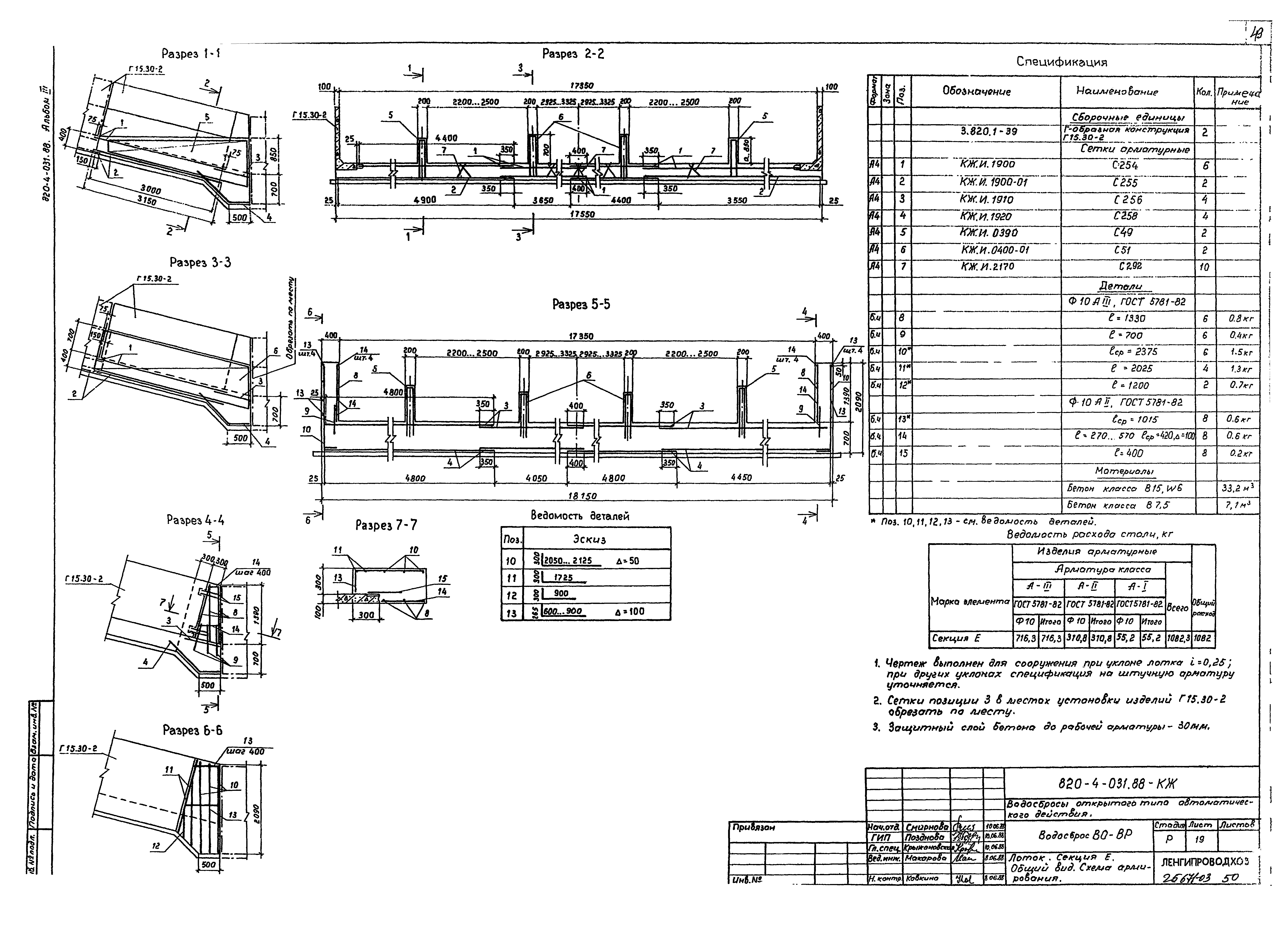
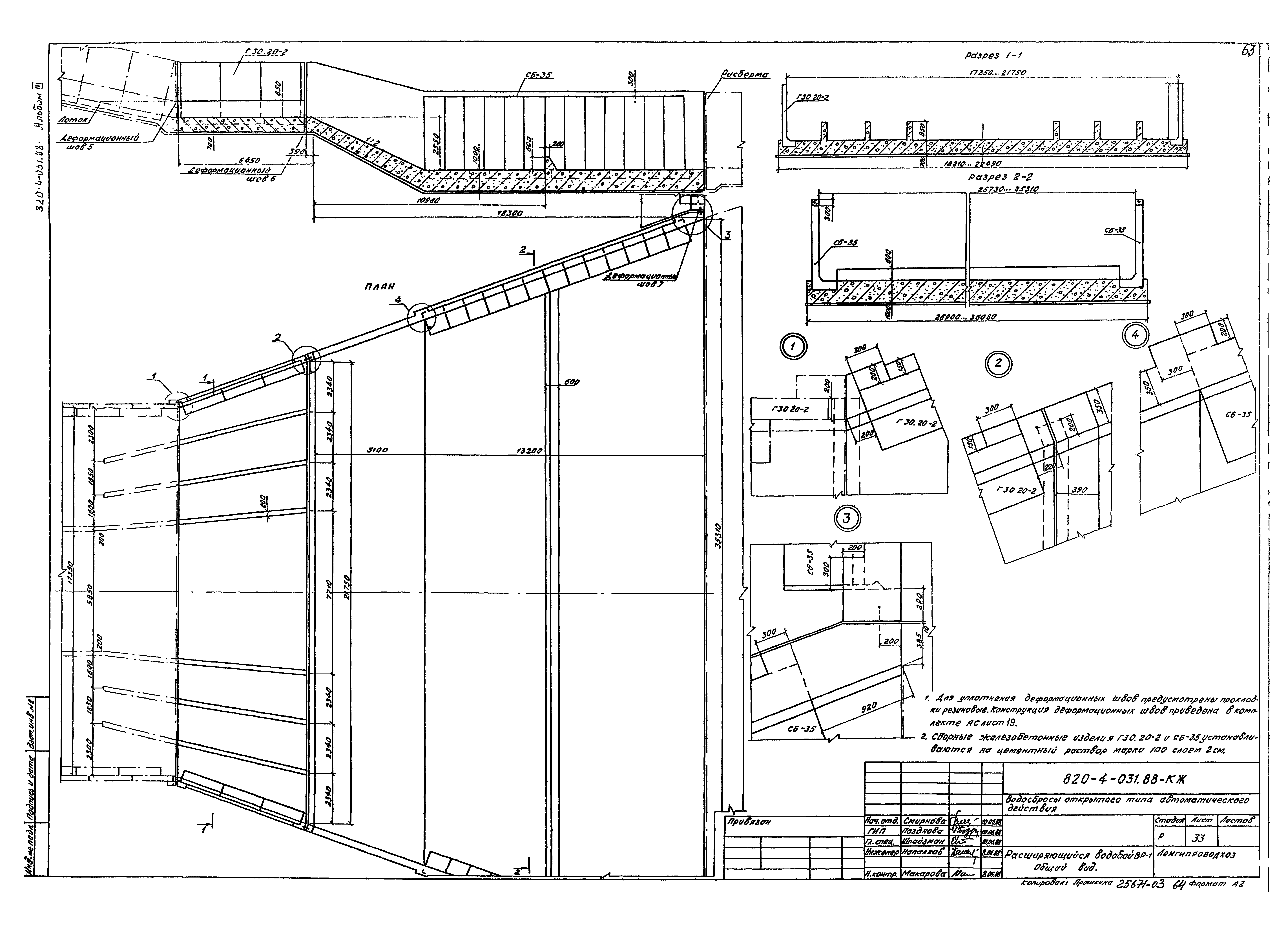
Скачать Типовые проектные решения 820-4-031.88 Альбом III. Водосбросы на расход воды от 76 до 100 куб. м/с. Строительные решения. Конструкции железобетонные

Дата актуализации: 10.08.2017

Типовые проектные решения 820-4-031.88

Альбом III. Водосбросы на расход воды от 76 до 100 куб. м/с. Строительные решения. Конструкции железобетонные

Обозначение: Типовые проектные решения 820-4-031.88
Обозначение англ: 820-4-031.88
Статус:cправочные материалы, мп, тпр
Название рус.:Альбом III. Водосбросы на расход воды от 76 до 100 куб. м/с. Строительные решения. Конструкции железобетонные
Дата добавления в базу:01.09.2013
Дата актуализации:05.05.2017
Дата введения:01.10.1988
Разработан: Ленгипроводхоз Минводхоза СССР
Утверждён:05.05.1988 Минводхоз СССР (USSR Minvodkhoz 761)
Расположен в:Техническая документация Строительство Справочные документы Типовые строительные конструкции, изделия и узлы Общероссийский строительный каталог Промышленные предприятия, здания и сооружения Здания и сооружения санитарно-технические Водоснабжение Системы и сооружения мелиоративные Каналы и сооружения на каналах Плотины и сооружения водосбросные
Типовые проектные решения 820-4-031.88Типовые проектные решения 820-4-031.88Типовые проектные решения 820-4-031.88Типовые проектные решения 820-4-031.88Типовые проектные решения 820-4-031.88Типовые проектные решения 820-4-031.88Типовые проектные решения 820-4-031.88Типовые проектные решения 820-4-031.88Типовые проектные решения 820-4-031.88Типовые проектные решения 820-4-031.88Типовые проектные решения 820-4-031.88Типовые проектные решения 820-4-031.88Типовые проектные решения 820-4-031.88Типовые проектные решения 820-4-031.88Типовые проектные решения 820-4-031.88Типовые проектные решения 820-4-031.88Типовые проектные решения 820-4-031.88Типовые проектные решения 820-4-031.88Типовые проектные решения 820-4-031.88Типовые проектные решения 820-4-031.88Типовые проектные решения 820-4-031.88Типовые проектные решения 820-4-031.88Типовые проектные решения 820-4-031.88Типовые проектные решения 820-4-031.88Типовые проектные решения 820-4-031.88Типовые проектные решения 820-4-031.88Типовые проектные решения 820-4-031.88Типовые проектные решения 820-4-031.88Типовые проектные решения 820-4-031.88Типовые проектные решения 820-4-031.88Типовые проектные решения 820-4-031.88Типовые проектные решения 820-4-031.88Типовые проектные решения 820-4-031.88Типовые проектные решения 820-4-031.88Типовые проектные решения 820-4-031.88Типовые проектные решения 820-4-031.88Типовые проектные решения 820-4-031.88Типовые проектные решения 820-4-031.88Типовые проектные решения 820-4-031.88Типовые проектные решения 820-4-031.88Типовые проектные решения 820-4-031.88Типовые проектные решения 820-4-031.88Типовые проектные решения 820-4-031.88Типовые проектные решения 820-4-031.88Типовые проектные решения 820-4-031.88Типовые проектные решения 820-4-031.88Типовые проектные решения 820-4-031.88Типовые проектные решения 820-4-031.88Типовые проектные решения 820-4-031.88Типовые проектные решения 820-4-031.88Типовые проектные решения 820-4-031.88Типовые проектные решения 820-4-031.88Типовые проектные решения 820-4-031.88Типовые проектные решения 820-4-031.88Типовые проектные решения 820-4-031.88Типовые проектные решения 820-4-031.88Типовые проектные решения 820-4-031.88Типовые проектные решения 820-4-031.88Типовые проектные решения 820-4-031.88Типовые проектные решения 820-4-031.88Типовые проектные решения 820-4-031.88Типовые проектные решения 820-4-031.88Типовые проектные решения 820-4-031.88Типовые проектные решения 820-4-031.88Типовые проектные решения 820-4-031.88Типовые проектные решения 820-4-031.88Типовые проектные решения 820-4-031.88Типовые проектные решения 820-4-031.88Типовые проектные решения 820-4-031.88Типовые проектные решения 820-4-031.88Типовые проектные решения 820-4-031.88Типовые проектные решения 820-4-031.88Типовые проектные решения 820-4-031.88Типовые проектные решения 820-4-031.88Типовые проектные решения 820-4-031.88Типовые проектные решения 820-4-031.88Типовые проектные решения 820-4-031.88Типовые проектные решения 820-4-031.88Типовые проектные решения 820-4-031.88Типовые проектные решения 820-4-031.88Типовые проектные решения 820-4-031.88Типовые проектные решения 820-4-031.88

© 2013 Ёшкин Кот :-) Карта сайта