| ||||||||||||||||||||||||||||||||||
Скачать РТМ 108.031.09-83 Каркасы стальные паровых стационарных котлов. Нормы расчетаДата актуализации: 10.08.2017
|
| Обозначение: | РТМ 108.031.09-83 |
| Обозначение англ: | RTM 108.031.09-83 |
| Статус: | действует |
| Название рус.: | Каркасы стальные паровых стационарных котлов. Нормы расчета |
| Дата добавления в базу: | 01.09.2013 |
| Дата актуализации: | 05.05.2017 |
| Дата введения: | 01.07.1983 |
| Область применения: | Документ распространяется на каркасы стационарных паровых и водогрейных котлов и содержит требования и рекомендации по расчету несущих элементов при статических и динамических воздействиях. |
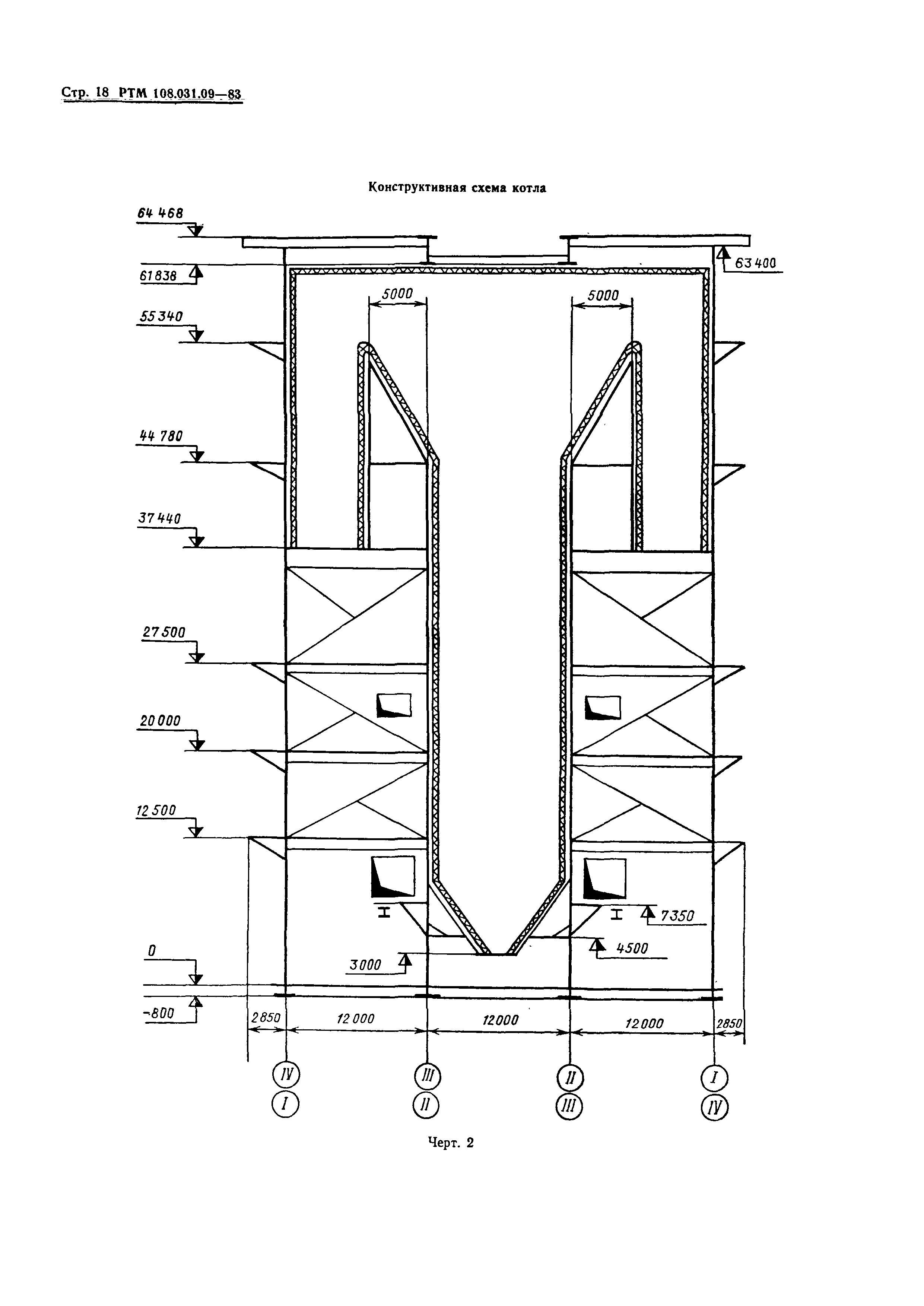
| Оглавление: | 1. Общие положения 2. Расчетная схема 3. Динамическая модель сооружения каркас-котел 4. Проверка несущей способности каркаса и его элементов Приложение 1. Определение сейсмических нагрузок Приложение 2. Методы проверочного расчета сейсмостойкости каркасов Приложением 3. Рекомендации по определению ветровых нагрузок на каркасы котлов Приложение 4. Пример построения расчетной схемы каркаса Приложение 5. Пример разработки эквивалента фермы жесткости Приложение 6. Пример построения динамической модели Приложение 7. Пример расчета каркаса котла по программе "Конструкция" Приложение 8. Примеры определения сейсмических нагрузок |
| Разработан: | НПО ЦКТИ |
| Утверждён: | 18.02.1983 Министерство энергетического машиностроения (Ministry of Energy Machinery Manufacturing В-002/1333) |
| Издан: | НПО ЦКТИ (1984 г. ) |
| Расположен в: | |
| Список изменений: | |
| Нормативные ссылки: |

























































Текстовое изменение № 1 от 01.07.1988

