Информационная система
«Ёшкин Кот»

Скачать базу одним архивом
Скачать обновления
История создания базы
Карта сайта

Скачать Серия 01.036-6 Выпуск 1. Ворота защитно-герметические распашные ВУ-III-5. Рабочие чертежи

Дата актуализации: 10.08.2017

Серия 01.036-6

Выпуск 1. Ворота защитно-герметические распашные ВУ-III-5. Рабочие чертежи

Обозначение: Серия 01.036-6
Обозначение англ: Series 01.036-6
Статус:не определен законодательством
Название рус.:Выпуск 1. Ворота защитно-герметические распашные ВУ-III-5. Рабочие чертежи
Дата добавления в базу:01.09.2013
Дата актуализации:05.05.2017
Дата введения:31.12.1991
Оглавление:01.036-6.1-ТУ Технические условия
45-85.00.00.000 Ворота ВУ-III-5. Лист 1,2
45-85.00.00.001 Основание
45-85.00.00.002 Сухарь
45-85.00.00.000 СБ Ворота ВУ-III-5. Сборочный чертеж. Лист 1
45-85.00.00.000 СБ Ворота ВУ-III-5. Сборочный чертеж. Лист 2
45-85.00.00.000 СБ Ворота ВУ-III-5. Сборочный чертеж. Лист 3
45-85.00.00.003 Палец
45-85.00.00.004 Кольцо
45-85.00.00.005 Полоса
45-85.01.00.011 Кольцо
45-85.01.00.000 Створка в сборе, левая. Лист 1,2
45-85.01.00.009 Звездочка
45-85.01.00.010 Палец
45-85.01.00.000 СБ Створка в сборе, левая. Сборочный чертеж. Лист 1
45-85.01.00.000 СБ Створка в сборе, левая. Сборочный чертеж. Лист 2
45-85.01.00.000 СБ Створка в сборе, левая. Сборочный чертеж. Лист 3
45-85.01.00.001 Кожух
45-85.01.00.002 Прокладка
45-85.01.00.003 Прокладка регулировочная
45-85.01.00.004 Клин
45-85.01.00.005 Винт
45-85.01.00.006 Опора
45-85.01.00.007 Втулка прижимная
45-85.01.00.008 Заглушка
45-85.01.10.000 Полотно левое. Лист 1,2
45-85.01.10.001 Основание
45-85.01.10.000 СБ Полотно левое. Сборочный черте. Лист 1
45-85.01.10.000 СБ Полотно левое. Сборочный черте. Лист 2
45-85.01.10.002 Лист
45-85.01.10.003 Основание
45-85.01.10.004 Ребро
45-85.01.10.005 Планка
45-85.01.10.006 Фланец
45-85.01.10.007 Швеллер
45-85.01.10.008 Ребро
45-85.01.10.009 Втулка
45-85.01.10.010 Ручка
45-85.01.10.011 Пластина
45-85.01.10.012 Бобышка
45-85.01.20.000 Редуктор ведущий
45-85.01.30.000 Редуктор ведомый
45-85.01.20.006 Прокладка регулировочная
45-85.01.50.101 Рычаг
45-85.01.20.000 СБ Редуктор ведущий. Сборочный чертеж
45-85.01.20.001 Шестерня
45-85.01.20.002 Колесо
45-85.01.20.003 Корпус. Лист 1
45-85.01.20.003 Корпус. Лист 2
45-85.01.20.004 Крышка
45-85.01.20.005 Вал
45-85.01.30.001 Вал
45-85.01.30.000 СБ Редуктор ведомый. Сборочный чертеж
45-85.01.40.000 Блокировочное устройство
45-85.01.41.200 Основание
45-85.01.41.000 Замок электромагнитный. Лист 1,2
45-85.01.40.000 СБ Блокировочное устройство. Сборочный чертеж
45-85.01.40.001 Муфта
45-85.01.40.002 Палец
45-85.01.40.003 Шайба стопорная
45-85.01.41.001 Пружина
45-85.01.41.000 СБ Замок электромагнитный. Сборочный чертеж
45-85.01.41.002 Муфта
45-85.01.41.003 Хомут
45-85.01.41.004 Шток
45-85.01.41.005 Пружина
45-85.01.41.100 Ключ в сборе
45-85.01.41.101 Ручка
45-85.01.41.300 Шток в сборе
45-85.01.41.301 Шток
45-85.01.41.200 СБ Основание. Сборочный чертеж
45-85.01.41.400 Опора в сборе
45-85.01.41.401 Корпус
45-85.01.41.303 Штырь
45-85.01.41.302 Рамка
45-85.01.41.402 Втулка
45-85.01.41.500 Валик в сборе
45-85.01.41.501 Пруток
45-85.01.41.502 Палец
45-85.01.50.000 Штурвал в сборе
45-85.01.50.100 Штурвал
45-85.01.60.000 Штурвал в сборе
45-85.01.60.100 Штурвал
45-85.01.50.000 СБ Штурвал в сборе. Сборочный чертеж
45-85.01.60.000 СБ Штурвал в сборе. Сборочный чертеж
45-85.01.50.001 Ручка
45-85.01.50.002 Палец
45-85.01.50.003 Пружина
45-85.01.50.100 СБ Штурвал. Сборочный чертеж
45-85.01.60.100 СБ Штурвал. Сборочный чертеж
45-85.01.60.101 Втулка
45-85.01.50.102 Вилка
45-85.01.50.103 Втулка
45-85.01.70.000 СБ Тяга. Сборочный чертеж
45-85.01.70.001 Вилка
45-85.01.70.002 Вилка
45-85.01.80.000 Кожух
45-85.01.80.001 Полоса
45-85.01.80.002 Уголок
45-85.01.80.003 Уголок
45-85.01.80.000 СБ Кожух. Сборочный чертеж
45-85.02.00.000 Створка в сборе правая. Лист 1,2
45-85.02.10.000 Полотно правое. Лист 1,2
45-85.02.00.000 СБ Створка в сборе правая. Сборочный чертеж. Лист 1
45-85.02.00.000 СБ Створка в сборе правая. Сборочный чертеж. Лист 2
45-85.02.10.000 СБ Полотно правое. Сборочный чертеж. Лист
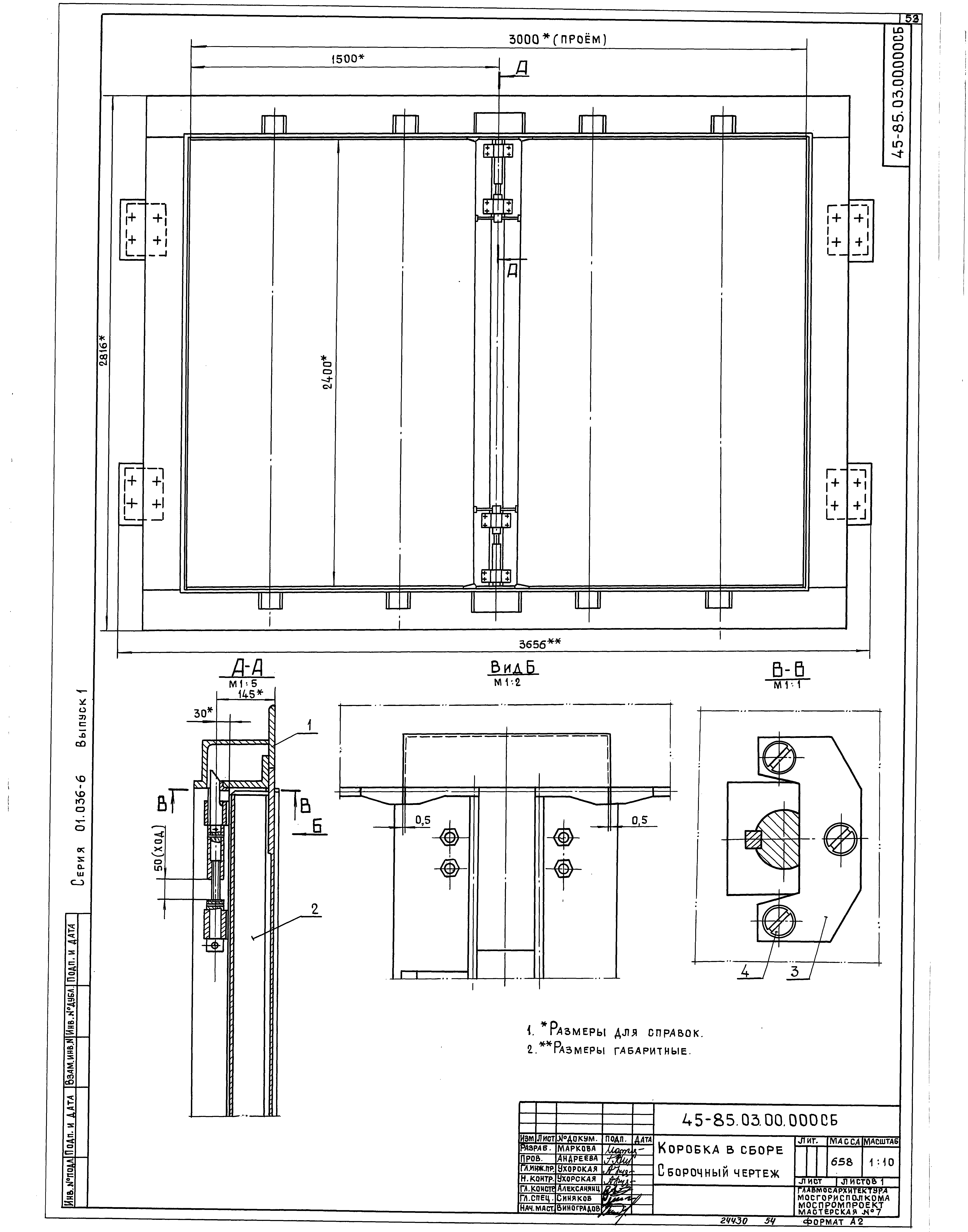
45-85.03.00.000 Коробка в сборе
45-85.01.70.000 Тяга
45-85.03.01.000 Коробка. Лист 1,2
45-85.03.00.000 СБ Коробка в сборе. Сборочный чертеж
45-85.03.01.000 СБ Коробка. Сборочный чертеж. Лист 1
45-85.03.01.000 СБ Коробка. Сборочный чертеж. Лист 2
45-85.03.01.001 Полоса
45-85.03.01.002 Уголок
45-85.03.01.003 Полоса
45-85.03.01.004 Пластина
45-85.03.01.005 Пластина
45-85.03.01.006 Полоса
45-85.03.02.001 Направляющая
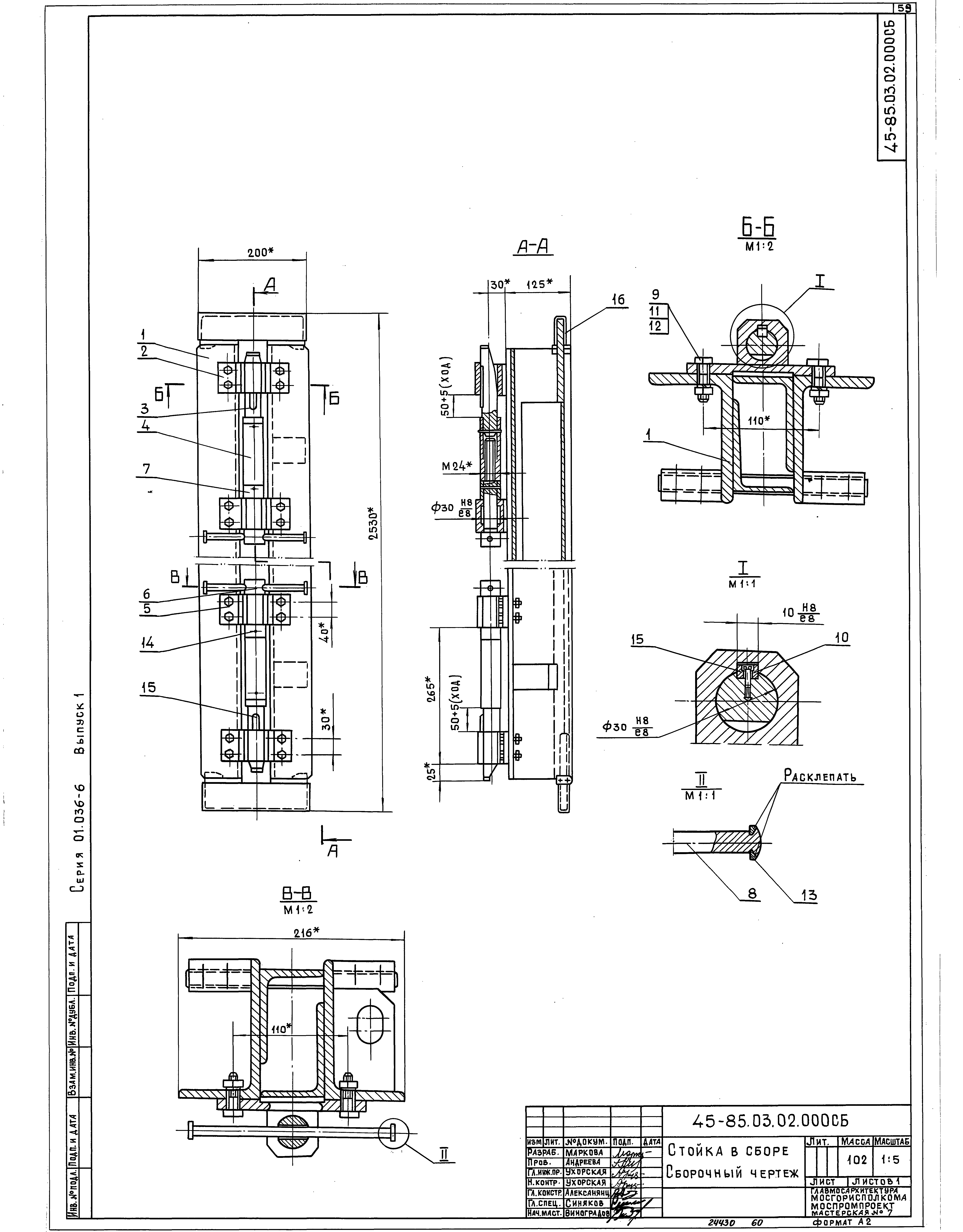
45-85.03.02.000 Стойка в сборе. Лист 1,2
45-85.03.02.000 СБ Стойка в сборе. Сборочный чертеж
45-85.03.02.002 Клин
45-85.03.02.004 Опора
45-85.03.02.003 Муфта
45-85.03.02.005 Винт
45-85.03.02.006 Кольцо
45-85.03.02.007 Рукоятка
45-85.03.02.100 СБ Стойка. Сборочный чертеж
45-85.03.02.101 Уголок
45-85.03.02.102 Полупетля
45-85.03.02.103 Полоса
45-85.03.02.105 Лист "Т"
45-85.03.00.000 Петля в сборе, тип 1. Лист 1,2
45-85.05.00.100 Полупетля
45-85.03.02.100 Стойка
45-85.05.00.000 Петля в сборе, тип 2. Лист 1,2
45-85.04.00.100 Полупетля
45-85.04.00.200 Полупетля
45-85.04.00.000 СБ Петля в сборе, тип 1. Сборочный чертеж
45-85.04.00.001 Ось
45-85.04.00.003 Крышка
45-85.04.00.002 Крышка
45-85.04.00.004 Втулка
45-85.04.00.005 Втулка
45-85.04.00.006 Ось
45-85.04.00.007 Кольцо
45-85.04.00.100 СБ Полупетля. Сборочный чертеж
45-85.04.00.101 Ребро
45-85.04.00.102 Ребро
45-85.04.00.103 Стакан-заготовка
45-85.04.00.104 Основание
45-85.04.00.200 СБ Полупетля. Сборочный чертеж
45-85.04.00.201 Ребро
45-85.04.00.201-01 Ребро
45-85.04.00.008 Прокладка
45-85.04.00.203 Направляющая
45-85.04.00.204 Основание
45-85.05.00.000 СБ Петля в сборе, тип 2. Сборочный чертеж
45-85.05.00.100 СБ Полупетля. Сборочный чертеж
Разработан: Моспромпроект
Утверждён:18.05.1988 Управление НГО СССР (235/13/1453)
Расположен в:Техническая документация Строительство Справочные документы Типовые строительные конструкции, изделия и узлы Общероссийский строительный каталог Защитные сооружения гражданской обороны Конструкции и инженерное оборудование Инженерное оборудование
Серия 01.036-6Серия 01.036-6Серия 01.036-6Серия 01.036-6Серия 01.036-6Серия 01.036-6Серия 01.036-6Серия 01.036-6Серия 01.036-6Серия 01.036-6Серия 01.036-6Серия 01.036-6Серия 01.036-6Серия 01.036-6Серия 01.036-6Серия 01.036-6Серия 01.036-6Серия 01.036-6Серия 01.036-6Серия 01.036-6Серия 01.036-6Серия 01.036-6Серия 01.036-6Серия 01.036-6Серия 01.036-6Серия 01.036-6Серия 01.036-6Серия 01.036-6Серия 01.036-6Серия 01.036-6Серия 01.036-6Серия 01.036-6Серия 01.036-6Серия 01.036-6Серия 01.036-6Серия 01.036-6Серия 01.036-6Серия 01.036-6Серия 01.036-6Серия 01.036-6Серия 01.036-6Серия 01.036-6Серия 01.036-6Серия 01.036-6Серия 01.036-6Серия 01.036-6Серия 01.036-6Серия 01.036-6Серия 01.036-6Серия 01.036-6Серия 01.036-6Серия 01.036-6Серия 01.036-6Серия 01.036-6Серия 01.036-6Серия 01.036-6Серия 01.036-6Серия 01.036-6Серия 01.036-6Серия 01.036-6Серия 01.036-6Серия 01.036-6Серия 01.036-6Серия 01.036-6Серия 01.036-6Серия 01.036-6Серия 01.036-6Серия 01.036-6Серия 01.036-6Серия 01.036-6Серия 01.036-6Серия 01.036-6Серия 01.036-6Серия 01.036-6Серия 01.036-6

© 2013 Ёшкин Кот :-) Карта сайта