Информационная система
«Ёшкин Кот»

Скачать базу одним архивом
Скачать обновления
История создания базы
Карта сайта

Скачать Типовой проект 904-1-52.83 Альбом 3. Автоматизация и КИП. Чертежи

Дата актуализации: 10.08.2017

Типовой проект 904-1-52.83

Альбом 3. Автоматизация и КИП. Чертежи

Обозначение: Типовой проект 904-1-52.83
Обозначение англ: 904-1-52.83
Статус:действует
Название рус.:Альбом 3. Автоматизация и КИП. Чертежи
Дата добавления в базу:01.09.2013
Дата актуализации:05.05.2017
Дата введения:20.04.1983
Оглавление:ТП 904-1-52.83-А Содержание альбома
ТП 904-1-52.83-А-1-9 Общие данные
ТП 904-1-52.83-А-10 Компрессор №1. Воздушный тракт. Функциональная схема автоматизации
ТП 904-1-52.83-А-11 Компрессор №1. Система водопроводов. Функциональная схема автоматизации
ТП 904-1-52.83-А-12 Компрессорная станция. Функциональная схема автоматизации
ТП 904-1-52.83-А-13 Компрессор №1. Принципиальная электрическая схема питания
ТП 904-1-52.83-А-14 Компрессорная станция. Принципиальная электрическая схема питания
ТП 904-1-52.83-А-15-19 Компрессор №1. Принципиальная электрическая схема управления регулирования и сигнализации
ТП 904-1-52.83-А-20-22 Компрессор №1. Принципиальная электрическая схема теплового контроля
ТП 904-1-52.83-А-23 Компрессор №1. Принципиальная электрическая схема сигнализации по давлению
ТП 904-1-52.83-А-24 Компрессор №1. Принципиальная электрическая схема сигнализации по температуре
ТП 904-1-52.83-А-25 Компрессор №1. Принципиальная электрическая схема сигнализации протока
ТП 904-1-52.83-А-26 Компрессорная станция. Принципиальная электрическая схема управления и регулирования
ТП 904-1-52.83-А-27-29 Компрессор №1. Схема внешних электрических и трубных проводок
ТП 904-1-52.83-А-30 Компрессорная станция. Схема внешних электрических и трубных проводок
ТП 904-1-52.83-А-31 Компрессор №1. Щит контроля, управления и регулирования ЩКУ. Схема подключения
ТП 904-1-52.83-А-32 Компрессорная станция. Центральный щит компрессорной. Панель1. Схема подключения
ТП 904-1-52.83-А-33 Компрессорная станция. Центральный щит компрессорной. Панель5. Схема подключения
ТП 904-1-52.83-А-34 Компрессорная станция. Центральный щит компрессорной. Панель5. Схема подключения
ТП 904-1-52.83-А-35 Вентсистема В2. Электрические схемы
ТП 904-1-52.83-А-36 Отопительные агрегаты. Функциональная схема автоматизации
ТП 904-1-52.83-А-37 Отопительные агрегаты. Функциональная схема автоматизации
ТП 904-1-52.83-А-38 Отопительные агрегаты. Принципиальная электрическая схема управления
ТП 904-1-52.83-А-39 Отопительные агрегаты. Принципиальная электрическая схема управления
ТП 904-1-52.83-А-40-42 Отопительные агрегаты. Схема внешних электрических и трубных проводок
ТП 904-1-52.83-А-43-45 Отопительные агрегаты. Схема внешних электрических и трубных проводок
ТП 904-1-52.83-А-46-50 Компрессорная станция. Журнал кабельных проводок
ТП 904-1-52.83-А-51 Компрессорная станция. Журнал импульсных проводок
ТП 904-1-52.83-А-52 Отопительные агрегаты. Журнал кабельных проводок
ТП 904-1-52.83-А-53 Отопительные агрегаты. Журнал кабельных проводок
ТП 904-1-52.83-А-54 Компрессор №1. План расположения средств автоматизации и проводок
ТП 904-1-52.83-А-55-56 Компрессорная станция. План расположения средств автоматизации и проводок
ТП 904-1-52.83-А-57-58 Компрессорная станция. План расположения средств автоматизации и проводок
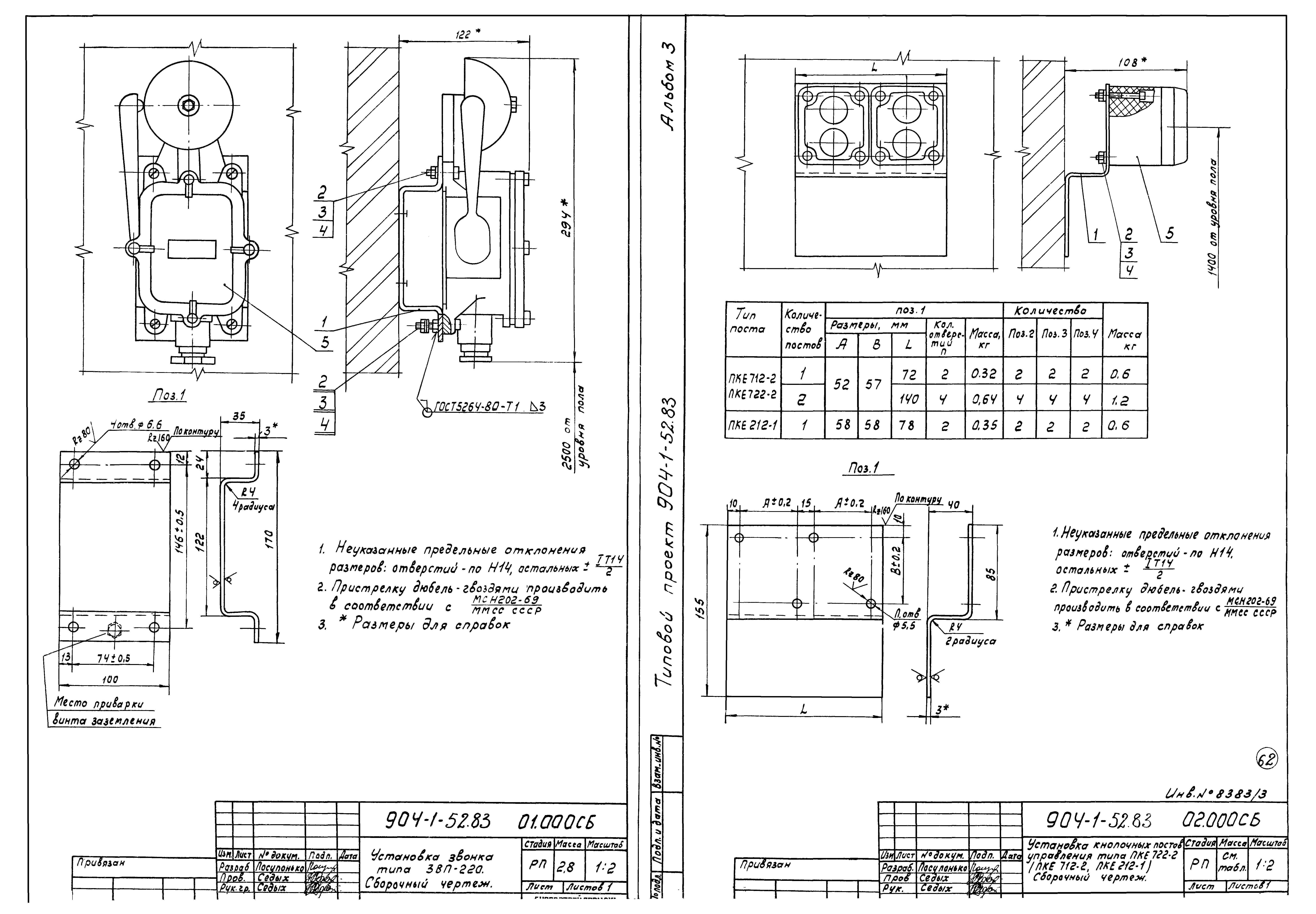
ТП 904-1-52.83-01.000 Установка звонка типа ЗВП-220
ТП 904-1-52.83-02.000 Установка кнопочных постов управления типа ПКЕ722-2 (ПКЕ712-2,ПКЕ212-1)
ТП 904-1-52.83-01.000СБ Установка звонка типа ЗВП-220. Сборочный чертеж
ТП 904-1-52.83-02.000СБ Установка кнопочных постов управления типа ПКЕ722-2 (ПКЕ712-2,ПКЕ212-1). Сборочный чертеж
Разработан: Гипростройдормаш
Утверждён:02.03.1983 Минстройдормаш (Minstroydormash 6/83)
Расположен в:Техническая документация Строительство Справочные документы Типовые строительные конструкции, изделия и узлы Общероссийский строительный каталог Промышленные предприятия, здания и сооружения Здания и сооружения санитарно-технические Воздухоснабжение, вентиляция и кондиционирование воздуха Воздухоснабжение
Типовой проект 904-1-52.83Типовой проект 904-1-52.83Типовой проект 904-1-52.83Типовой проект 904-1-52.83Типовой проект 904-1-52.83Типовой проект 904-1-52.83Типовой проект 904-1-52.83Типовой проект 904-1-52.83Типовой проект 904-1-52.83Типовой проект 904-1-52.83Типовой проект 904-1-52.83Типовой проект 904-1-52.83Типовой проект 904-1-52.83Типовой проект 904-1-52.83Типовой проект 904-1-52.83Типовой проект 904-1-52.83Типовой проект 904-1-52.83Типовой проект 904-1-52.83Типовой проект 904-1-52.83Типовой проект 904-1-52.83Типовой проект 904-1-52.83Типовой проект 904-1-52.83Типовой проект 904-1-52.83Типовой проект 904-1-52.83Типовой проект 904-1-52.83Типовой проект 904-1-52.83Типовой проект 904-1-52.83Типовой проект 904-1-52.83Типовой проект 904-1-52.83Типовой проект 904-1-52.83Типовой проект 904-1-52.83Типовой проект 904-1-52.83Типовой проект 904-1-52.83Типовой проект 904-1-52.83Типовой проект 904-1-52.83Типовой проект 904-1-52.83Типовой проект 904-1-52.83Типовой проект 904-1-52.83Типовой проект 904-1-52.83Типовой проект 904-1-52.83Типовой проект 904-1-52.83Типовой проект 904-1-52.83Типовой проект 904-1-52.83Типовой проект 904-1-52.83Типовой проект 904-1-52.83Типовой проект 904-1-52.83Типовой проект 904-1-52.83Типовой проект 904-1-52.83Типовой проект 904-1-52.83Типовой проект 904-1-52.83Типовой проект 904-1-52.83Типовой проект 904-1-52.83Типовой проект 904-1-52.83Типовой проект 904-1-52.83Типовой проект 904-1-52.83Типовой проект 904-1-52.83Типовой проект 904-1-52.83Типовой проект 904-1-52.83Типовой проект 904-1-52.83Типовой проект 904-1-52.83Типовой проект 904-1-52.83Типовой проект 904-1-52.83Типовой проект 904-1-52.83Типовой проект 904-1-52.83

© 2013 Ёшкин Кот :-) Карта сайта