Информационная система
«Ёшкин Кот»

Скачать базу одним архивом
Скачать обновления
История создания базы
Карта сайта

Скачать Типовой проект 903-1-174 Альбом XIV. Монтажные чертежи автоматизации

Дата актуализации: 10.08.2017

Типовой проект 903-1-174

Альбом XIV. Монтажные чертежи автоматизации

Обозначение: Типовой проект 903-1-174
Обозначение англ: 903-1-174
Статус:заменен
Название рус.:Альбом XIV. Монтажные чертежи автоматизации
Дата добавления в базу:01.09.2013
Дата актуализации:05.05.2017
Дата введения:01.11.1987
Оглавление:ТП 903-1-174-АТМ Титульный лист
ТП 903-1-174-АТМ Общие данные
ТП 903-1-174-АТМ000ПЗ Пояснительная записка
ТП 903-1-174-АТМ00037 Схема расположения СА и проводок
ТП 903-1-174-АТМ00035 Схема подключения кабелей
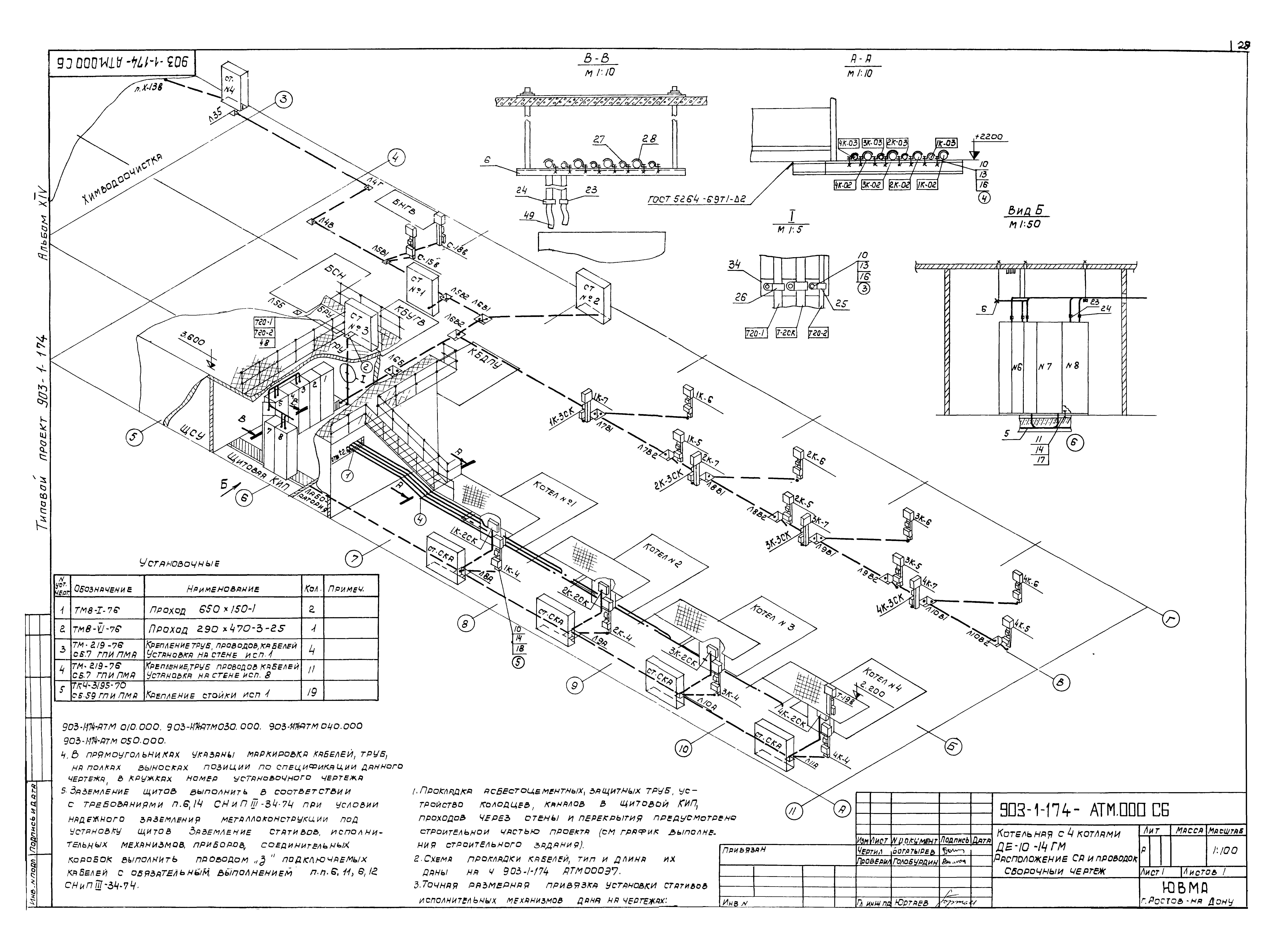
ТП 903-1-174-АТМ000 Котельная с 4 котлами ДЕ-10-14ГМ. Расположение СА и проводок
ТП 903-1-174-АТМ010.000 Котлоагрегат. Расположение СА и проводок
ТП 903-1-174-АТМ030.000 Узел сетевой установки. Расположение СА и проводок
ТП 903-1-174-АТМ040.000 Общекотельные трубопроводы. Расположение СА и проводок
ТП 903-1-174-АТМ050.000 Химводоочистка. Расположение СА и проводок
ТП 903-1-174-АТМ000.040 Установка разделительного сосуда на горизонтальном трубопроводе
ТП 903-1-174-АТМ000.060 Установка разделительных сосудов на камерной диафрагме
ТП 903-1-174-АТМ000.050 Установка разделительных сосудов на вертикальном трубопроводе
Разработан: ГПИ Сантехпроект Госстроя СССР
Минмонтажспецстрой СССР
Проектный институт №2
ЦНИИпроектстальконструкция Госстроя
Утверждён:20.11.1979 ГПИ Сантехпроект (180)
Расположен в:Техническая документация Строительство Справочные документы Типовые строительные конструкции, изделия и узлы Общероссийский строительный каталог Промышленные предприятия, здания и сооружения Здания и сооружения санитарно-технические Теплоснабжение Котельные установки Открытые системы теплоснабжения Топливо - газ и мазут
Заменяет собой:
Чем заменён:
Типовой проект 903-1-174Типовой проект 903-1-174Типовой проект 903-1-174Типовой проект 903-1-174Типовой проект 903-1-174Типовой проект 903-1-174Типовой проект 903-1-174Типовой проект 903-1-174Типовой проект 903-1-174Типовой проект 903-1-174Типовой проект 903-1-174Типовой проект 903-1-174Типовой проект 903-1-174Типовой проект 903-1-174Типовой проект 903-1-174Типовой проект 903-1-174Типовой проект 903-1-174Типовой проект 903-1-174Типовой проект 903-1-174Типовой проект 903-1-174Типовой проект 903-1-174Типовой проект 903-1-174Типовой проект 903-1-174Типовой проект 903-1-174Типовой проект 903-1-174Типовой проект 903-1-174Типовой проект 903-1-174Типовой проект 903-1-174Типовой проект 903-1-174Типовой проект 903-1-174Типовой проект 903-1-174Типовой проект 903-1-174Типовой проект 903-1-174Типовой проект 903-1-174Типовой проект 903-1-174Типовой проект 903-1-174Типовой проект 903-1-174Типовой проект 903-1-174Типовой проект 903-1-174Типовой проект 903-1-174Типовой проект 903-1-174Типовой проект 903-1-174Типовой проект 903-1-174

© 2013 Ёшкин Кот :-) Карта сайта