Информационная система
«Ёшкин Кот»

Скачать базу одним архивом
Скачать обновления
История создания базы
Карта сайта

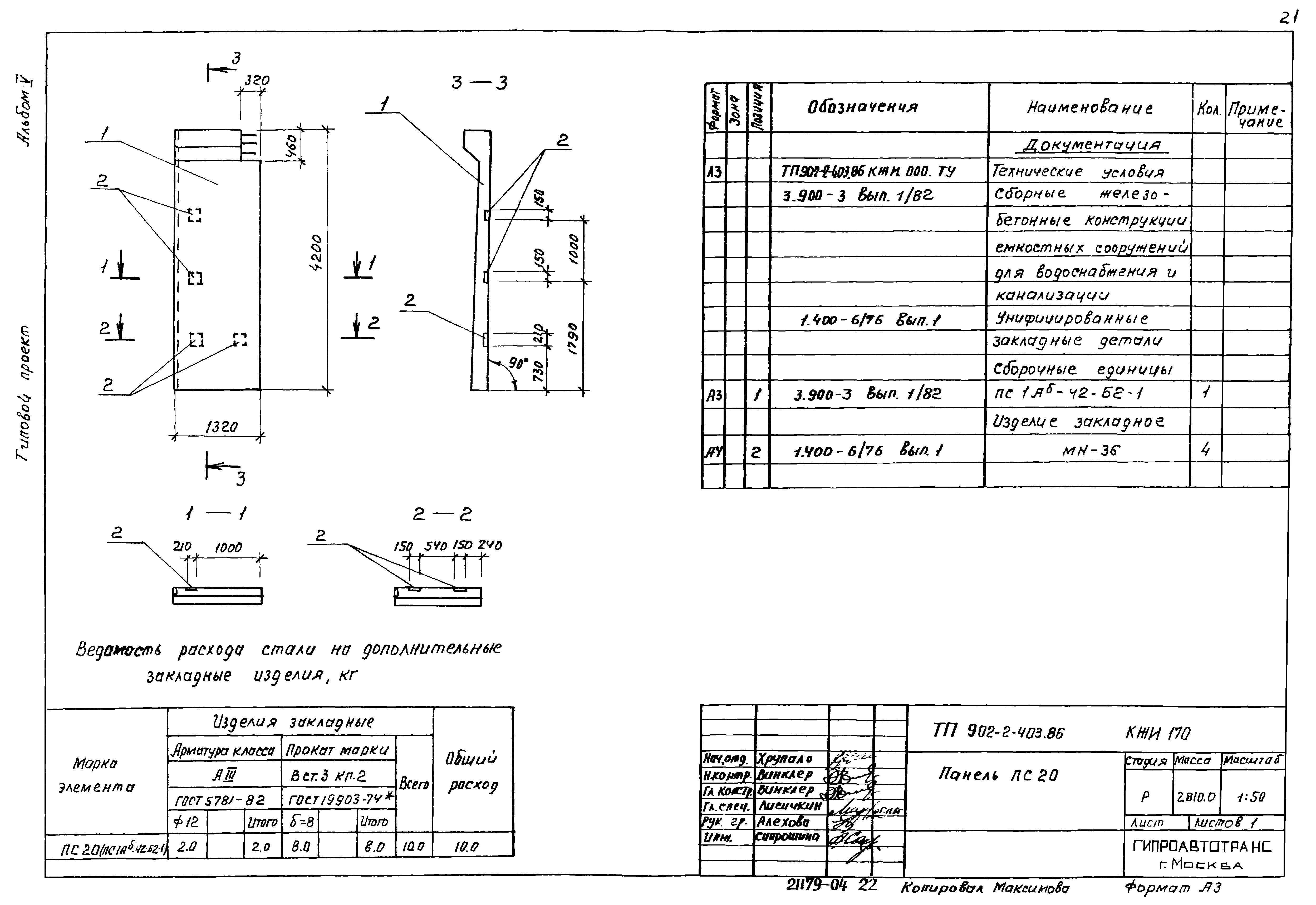
Скачать Типовой проект 902-2-403.86 Альбом V. Строительные изделия

Дата актуализации: 10.08.2017

Типовой проект 902-2-403.86

Альбом V. Строительные изделия

Обозначение: Типовой проект 902-2-403.86
Обозначение англ: 902-2-403.86
Статус:заменен
Название рус.:Альбом V. Строительные изделия
Дата добавления в базу:01.09.2013
Дата актуализации:05.05.2017
Дата введения:01.10.1987
Разработан: Гипроавтотранс
Утверждён:27.03.1985 Минавтотранс РСФСР (Russian Federation Minavtotrans 55)
Расположен в:Техническая документация Строительство Справочные документы Типовые строительные конструкции, изделия и узлы Общероссийский строительный каталог Промышленные предприятия, здания и сооружения Здания и сооружения санитарно-технические Канализация Сооружения для очистки производственных сточных вод Сооружения для очистки сточных вод от мойки автомобилей
Чем заменён:
Типовой проект 902-2-403.86Типовой проект 902-2-403.86Типовой проект 902-2-403.86Типовой проект 902-2-403.86Типовой проект 902-2-403.86Типовой проект 902-2-403.86Типовой проект 902-2-403.86Типовой проект 902-2-403.86Типовой проект 902-2-403.86Типовой проект 902-2-403.86Типовой проект 902-2-403.86Типовой проект 902-2-403.86Типовой проект 902-2-403.86Типовой проект 902-2-403.86Типовой проект 902-2-403.86Типовой проект 902-2-403.86Типовой проект 902-2-403.86Типовой проект 902-2-403.86Типовой проект 902-2-403.86Типовой проект 902-2-403.86Типовой проект 902-2-403.86Типовой проект 902-2-403.86Типовой проект 902-2-403.86Типовой проект 902-2-403.86Типовой проект 902-2-403.86Типовой проект 902-2-403.86Типовой проект 902-2-403.86Типовой проект 902-2-403.86Типовой проект 902-2-403.86Типовой проект 902-2-403.86Типовой проект 902-2-403.86

© 2013 Ёшкин Кот :-) Карта сайта