Информационная система
«Ёшкин Кот»

Скачать базу одним архивом
Скачать обновления
История создания базы
Карта сайта

Скачать Типовой проект 902-2-403.86 Альбом III. Архитектурные решения. Конструкции железобетонные. Конструкции металлические. Отопление и вентиляция

Дата актуализации: 10.08.2017

Типовой проект 902-2-403.86

Альбом III. Архитектурные решения. Конструкции железобетонные. Конструкции металлические. Отопление и вентиляция

Обозначение: Типовой проект 902-2-403.86
Обозначение англ: 902-2-403.86
Статус:заменен
Название рус.:Альбом III. Архитектурные решения. Конструкции железобетонные. Конструкции металлические. Отопление и вентиляция
Дата добавления в базу:01.09.2013
Дата актуализации:05.05.2017
Дата введения:01.10.1987
Оглавление:ТП 902-2-403.86 Титульный лист
ТП 902-2-403.86 Содержание альбома
ТП 902-2-403.86-АР Архитектурные решения АР
ТП 902-2-403.86-АР-1 Общие данные
ТП 902-2-403.86-АР-2 План на отм. 0.000. Фрагмент 1
ТП 902-2-403.86-АР-3 План на отм. 3.600. Фрагмент 2
ТП 902-2-403.86-АР-4 Разрез 1-1. План полов. План кровли, узлы 1,2,3
ТП 902-2-403.86-АР-5 Фасады
ТП 902-2-403.86-АР-6 Схема элементов заполнения оконных проемов. Спецификация. Узлы 4,5
ТП 902-2-403.86-КЖ Конструкции железобетонные КЖ
ТП 902-2-403.86-КЖ-1 Общие данные (начало)
ТП 902-2-403.86-КЖ-2 Общие данные (окончание)
ТП 902-2-403.86-КЖ-3 Схема расположения фундаментов и фундаментных балок
ТП 902-2-403.86-КЖ-4 Схема расположения фундаментов и фундаментных балок. Фрагмент 1-3
ТП 902-2-403.86-КЖ-5 Схема расположения фундаментов и фундаментных балок. Фрагменты 4,5
ТП 902-2-403.86-КЖ-6 Фундаменты ФМ1,ФМ2
ТП 902-2-403.86-КЖ-7 Фундаменты ФМ3,ФМ8,ФМ9
ТП 902-2-403.86-КЖ-8 Фундаменты ФМ4,ФМ5
ТП 902-2-403.86-КЖ-9 Фундаменты ФМ6,ФМ7
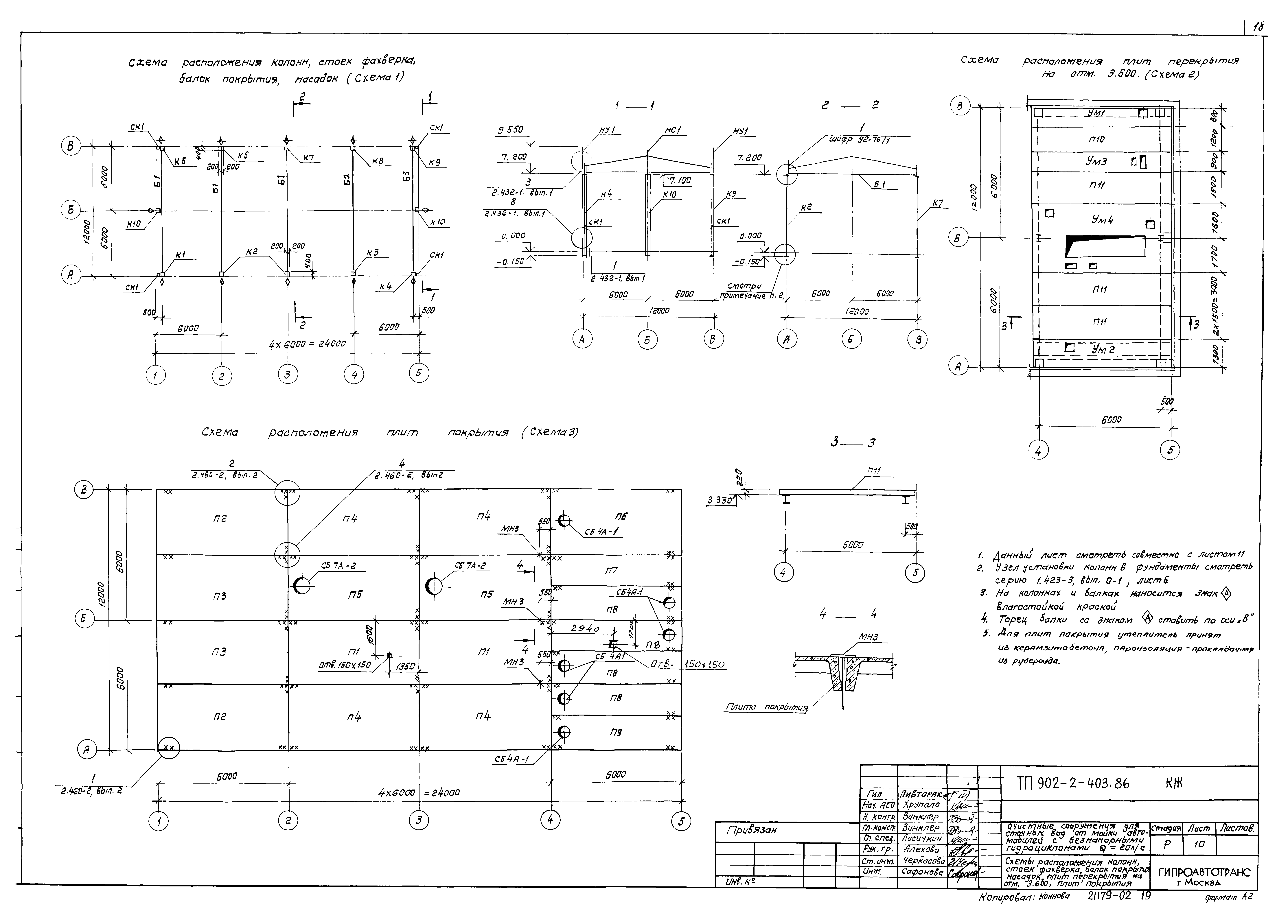
ТП 902-2-403.86-КЖ-10 Схемы расположения колонн, стоек фахверка, балок покрытия, насадок плит перекрытия на отм. 3.600, плит покрытия
ТП 902-2-403.86-КЖ-11 Спецификация к схемам расположения колонн, стоек, фахверка, балок покрытия, насадок, плит перекрытия на отм. 3.600, плит покрытия
ТП 902-2-403.86-КЖ-12 Участки монолитные УМ1-УМ3
ТП 902-2-403.86-КЖ-13 Спецификация участков монолитных УМ1-УМ3
ТП 902-2-403.86-КЖ-14 Участок монолитный УМ4
ТП 902-2-403.86-КЖ-15 Схемы расположения панелей стен по осям "А","В","6","1". Фрагменты 1-3
ТП 902-2-403.86-КЖ-16 Схемы расположения панелей стен по осям "А","В","6","1". Фрагменты 4-8
ТП 902-2-403.86-КЖ-17 Спецификация к схемам расположения панелей стен
ТП 902-2-403.86-КЖ-18 Схема расположения перегородок на отм. 0.000
ТП 902-2-403.86-КЖ-19 Схема расположения перегородок на отм. 3.600
ТП 902-2-403.86-КЖ-20 Спецификация к схемам расположения перегородок на отм. 0.000;3.600. Спецификация на узлы к схемам расположения перегородок на отм. 0.000;3.600
ТП 902-2-403.86-КЖ-21 Схема расположения фундаментов под оборудование
ТП 902-2-403.86-КЖ-22 Фундамент под оборудование ФОМ1. План, разрезы 1-1,2-2
ТП 902-2-403.86-КЖ-23 Фундамент под оборудование ФОМ1. Днище монолитное ДМ1
ТП 902-2-403.86-КЖ-24 Фундамент под оборудование ФОМ1. Схемы расположения панелей стен и плит перекрытия
ТП 902-2-403.86-КЖ-25 Фундаменты под оборудование ФОМ2-ФОМ4,ФОМ7,ФОМ8
ТП 902-2-403.86-КЖ-26 Фундаменты под оборудование ФОМ5,ФЛМ6,ФОМ9, приямок ПР1
ТП 902-2-403.86-КМ Конструкции металлические КМ
ТП 902-2-403.86-КМ-1 Общие данные (начало)
ТП 902-2-403.86-КМ-2 Общие данные (продолжение)
ТП 902-2-403.86-КМ-3 Общие данные (окончание)
ТП 902-2-403.86-КМ-4 Схемы расположения элементов площадок на отметках 4.500;3.600;2.700;-2.000
ТП 902-2-403.86-КМ-5 Схемы расположения элементов площадок на отметках 4.500;3.600;2.700;-2.000. Разрезы. Узлы
ТП 902-2-403.86-КМ-6 Схемы расположения подвесных путей и перекрытия площадок на отметках 4.500;2.700;-2.000
ТП 902-2-403.86-ОВ Отопление и вентиляция ОВ
ТП 902-2-403.86-ОВ-1 Общие данные
ТП 902-2-403.86-ОВ-2 Общие данные
ТП 902-2-403.86-ОВ-3 Отопление, теплоснабжение и вентиляция. Планы на отм. 0.000 и 3.600. Фрагмент 1
ТП 902-2-403.86-ОВ-4 Схемы узла управления системы отопления, теплоснабжения установки П1, систем вентиляции П1,В1-В3, ВЕ1-ВЕ5
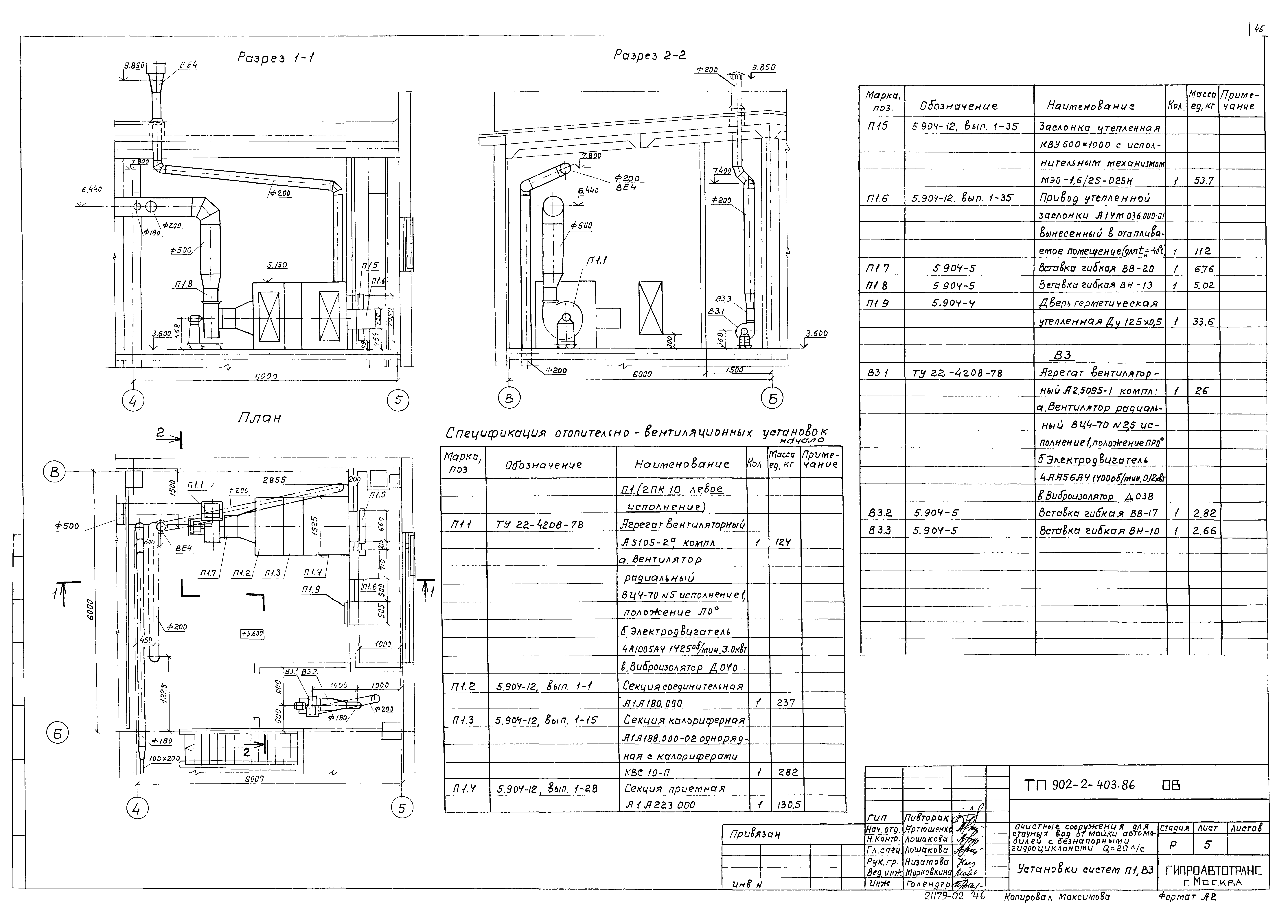
ТП 902-2-403.86-ОВ-5 Установки систем П1,В3
ТП 902-2-403.86-ОВН Чертежи видов нетиповых конструкций ОВН
ТП 902-2-403.86-ОВН Содержание
ТП 902-2-403.86-ОВН1 Поддон к стакану Ф700 для крышного вентилятора
ТП 902-2-403.86-ОВН2 Регистр из гладких труб
ТП 902-2-403.86-ОВН2 Конструкция тепловой изоляции
Разработан: Гипроавтотранс
Утверждён:27.03.1985 Минавтотранс РСФСР (Russian Federation Minavtotrans 55)
Расположен в:Техническая документация Строительство Справочные документы Типовые строительные конструкции, изделия и узлы Общероссийский строительный каталог Промышленные предприятия, здания и сооружения Здания и сооружения санитарно-технические Канализация Сооружения для очистки производственных сточных вод Сооружения для очистки сточных вод от мойки автомобилей
Чем заменён:
Типовой проект 902-2-403.86Типовой проект 902-2-403.86Типовой проект 902-2-403.86Типовой проект 902-2-403.86Типовой проект 902-2-403.86Типовой проект 902-2-403.86Типовой проект 902-2-403.86Типовой проект 902-2-403.86Типовой проект 902-2-403.86Типовой проект 902-2-403.86Типовой проект 902-2-403.86Типовой проект 902-2-403.86Типовой проект 902-2-403.86Типовой проект 902-2-403.86Типовой проект 902-2-403.86Типовой проект 902-2-403.86Типовой проект 902-2-403.86Типовой проект 902-2-403.86Типовой проект 902-2-403.86Типовой проект 902-2-403.86Типовой проект 902-2-403.86Типовой проект 902-2-403.86Типовой проект 902-2-403.86Типовой проект 902-2-403.86Типовой проект 902-2-403.86Типовой проект 902-2-403.86Типовой проект 902-2-403.86Типовой проект 902-2-403.86Типовой проект 902-2-403.86Типовой проект 902-2-403.86Типовой проект 902-2-403.86Типовой проект 902-2-403.86Типовой проект 902-2-403.86Типовой проект 902-2-403.86Типовой проект 902-2-403.86Типовой проект 902-2-403.86Типовой проект 902-2-403.86Типовой проект 902-2-403.86Типовой проект 902-2-403.86Типовой проект 902-2-403.86Типовой проект 902-2-403.86Типовой проект 902-2-403.86Типовой проект 902-2-403.86Типовой проект 902-2-403.86Типовой проект 902-2-403.86Типовой проект 902-2-403.86Типовой проект 902-2-403.86Типовой проект 902-2-403.86Типовой проект 902-2-403.86

© 2013 Ёшкин Кот :-) Карта сайта