Информационная система
«Ёшкин Кот»

Скачать базу одним архивом
Скачать обновления
История создания базы
Карта сайта

Скачать Серия 3.015-1/82 Выпуск II-1. Сборные железобетонные колонны для опор типов II и III. Рабочие чертежи

Дата актуализации: 10.08.2017

Серия 3.015-1/82

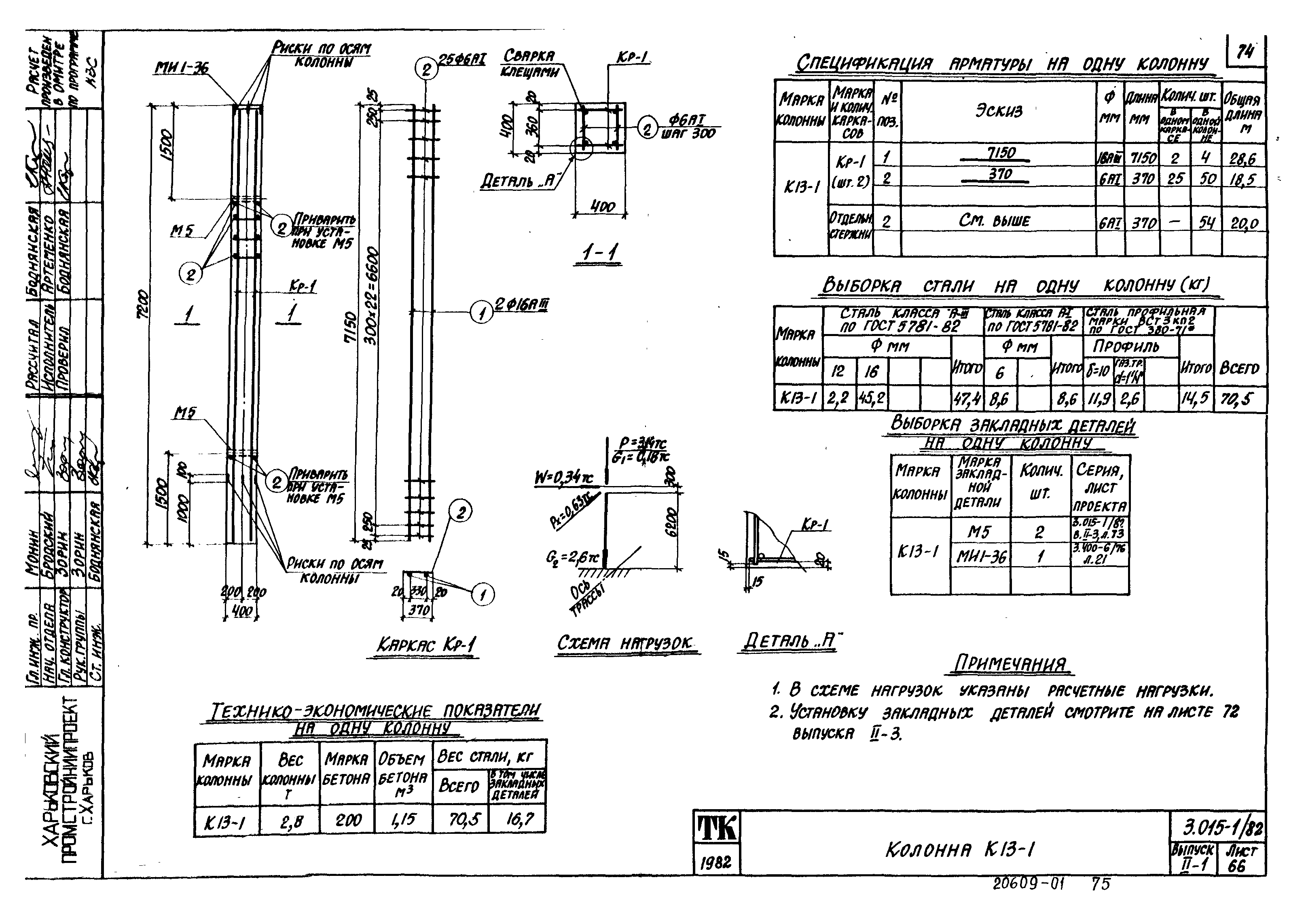
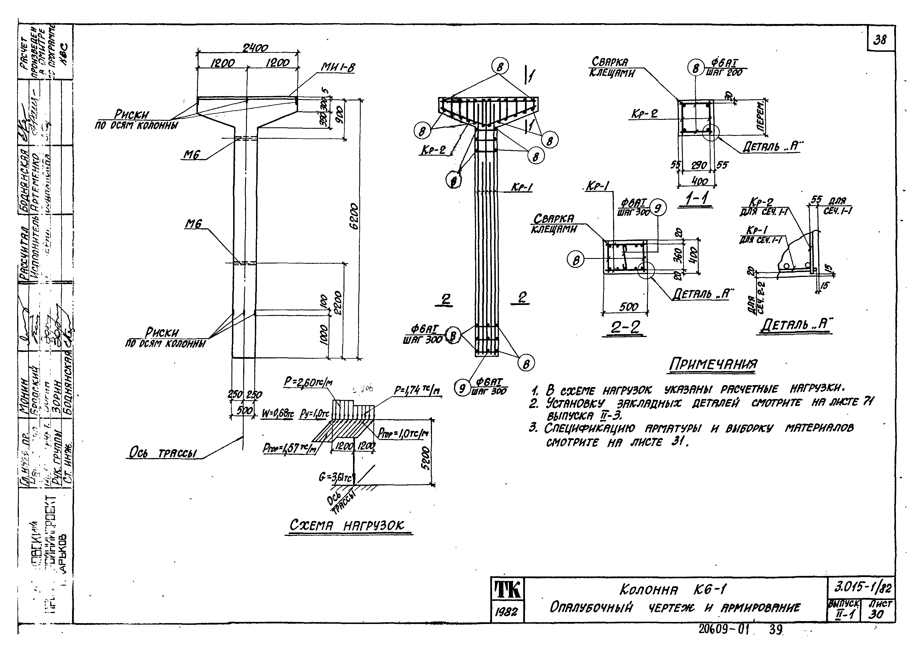
Выпуск II-1. Сборные железобетонные колонны для опор типов II и III. Рабочие чертежи

Обозначение: Серия 3.015-1/82
Обозначение англ: Series 3.015-1/82
Статус:заменен
Название рус.:Выпуск II-1. Сборные железобетонные колонны для опор типов II и III. Рабочие чертежи
Дата добавления в базу:01.09.2013
Дата актуализации:05.05.2017
Дата введения:01.05.1994
Разработан: Харьковский Промстройниипроект
ЦНИИпроектстальконструкция
НИИЖБ
Проектный институт № 1 Госстроя СССР
Утверждён:10.06.1985 Госстрой СССР (Государственный комитет Совета Министров СССР по делам строительства) (USSR Gosstroy 82)
Расположен в:Техническая документация Строительство Справочные документы Типовые строительные конструкции, изделия и узлы Общероссийский строительный каталог Строительные конструкции, изделия и узлы зданий и сооружений для всех видов строительства Конструкции и изделия сооружений и оборудования зданий Надземные сооружения Опоры и эстакады под технологические трубопроводы
Чем заменён:
Серия 3.015-1/82Серия 3.015-1/82Серия 3.015-1/82Серия 3.015-1/82Серия 3.015-1/82Серия 3.015-1/82Серия 3.015-1/82Серия 3.015-1/82Серия 3.015-1/82Серия 3.015-1/82Серия 3.015-1/82Серия 3.015-1/82Серия 3.015-1/82Серия 3.015-1/82Серия 3.015-1/82Серия 3.015-1/82Серия 3.015-1/82Серия 3.015-1/82Серия 3.015-1/82Серия 3.015-1/82Серия 3.015-1/82Серия 3.015-1/82Серия 3.015-1/82Серия 3.015-1/82Серия 3.015-1/82Серия 3.015-1/82Серия 3.015-1/82Серия 3.015-1/82Серия 3.015-1/82Серия 3.015-1/82Серия 3.015-1/82Серия 3.015-1/82Серия 3.015-1/82Серия 3.015-1/82Серия 3.015-1/82Серия 3.015-1/82Серия 3.015-1/82Серия 3.015-1/82Серия 3.015-1/82Серия 3.015-1/82Серия 3.015-1/82Серия 3.015-1/82Серия 3.015-1/82Серия 3.015-1/82Серия 3.015-1/82Серия 3.015-1/82Серия 3.015-1/82Серия 3.015-1/82Серия 3.015-1/82Серия 3.015-1/82Серия 3.015-1/82Серия 3.015-1/82Серия 3.015-1/82Серия 3.015-1/82Серия 3.015-1/82Серия 3.015-1/82Серия 3.015-1/82Серия 3.015-1/82Серия 3.015-1/82Серия 3.015-1/82Серия 3.015-1/82Серия 3.015-1/82Серия 3.015-1/82Серия 3.015-1/82Серия 3.015-1/82Серия 3.015-1/82Серия 3.015-1/82Серия 3.015-1/82Серия 3.015-1/82Серия 3.015-1/82Серия 3.015-1/82Серия 3.015-1/82Серия 3.015-1/82Серия 3.015-1/82Серия 3.015-1/82Серия 3.015-1/82Серия 3.015-1/82Серия 3.015-1/82Серия 3.015-1/82Серия 3.015-1/82Серия 3.015-1/82Серия 3.015-1/82Серия 3.015-1/82Серия 3.015-1/82Серия 3.015-1/82Серия 3.015-1/82Серия 3.015-1/82Серия 3.015-1/82Серия 3.015-1/82Серия 3.015-1/82Серия 3.015-1/82Серия 3.015-1/82Серия 3.015-1/82Серия 3.015-1/82Серия 3.015-1/82Серия 3.015-1/82Серия 3.015-1/82Серия 3.015-1/82Серия 3.015-1/82Серия 3.015-1/82Серия 3.015-1/82Серия 3.015-1/82Серия 3.015-1/82Серия 3.015-1/82Серия 3.015-1/82Серия 3.015-1/82Серия 3.015-1/82Серия 3.015-1/82Серия 3.015-1/82Серия 3.015-1/82Серия 3.015-1/82Серия 3.015-1/82Серия 3.015-1/82Серия 3.015-1/82Серия 3.015-1/82Серия 3.015-1/82

© 2013 Ёшкин Кот :-) Карта сайта