Скачать Типовой проект 902-3-46.85 Альбом II. Технологическая, санитарно-техническая, архитектурно-строительная частиДата актуализации: 10.08.2017 Типовой проект 902-3-46.85
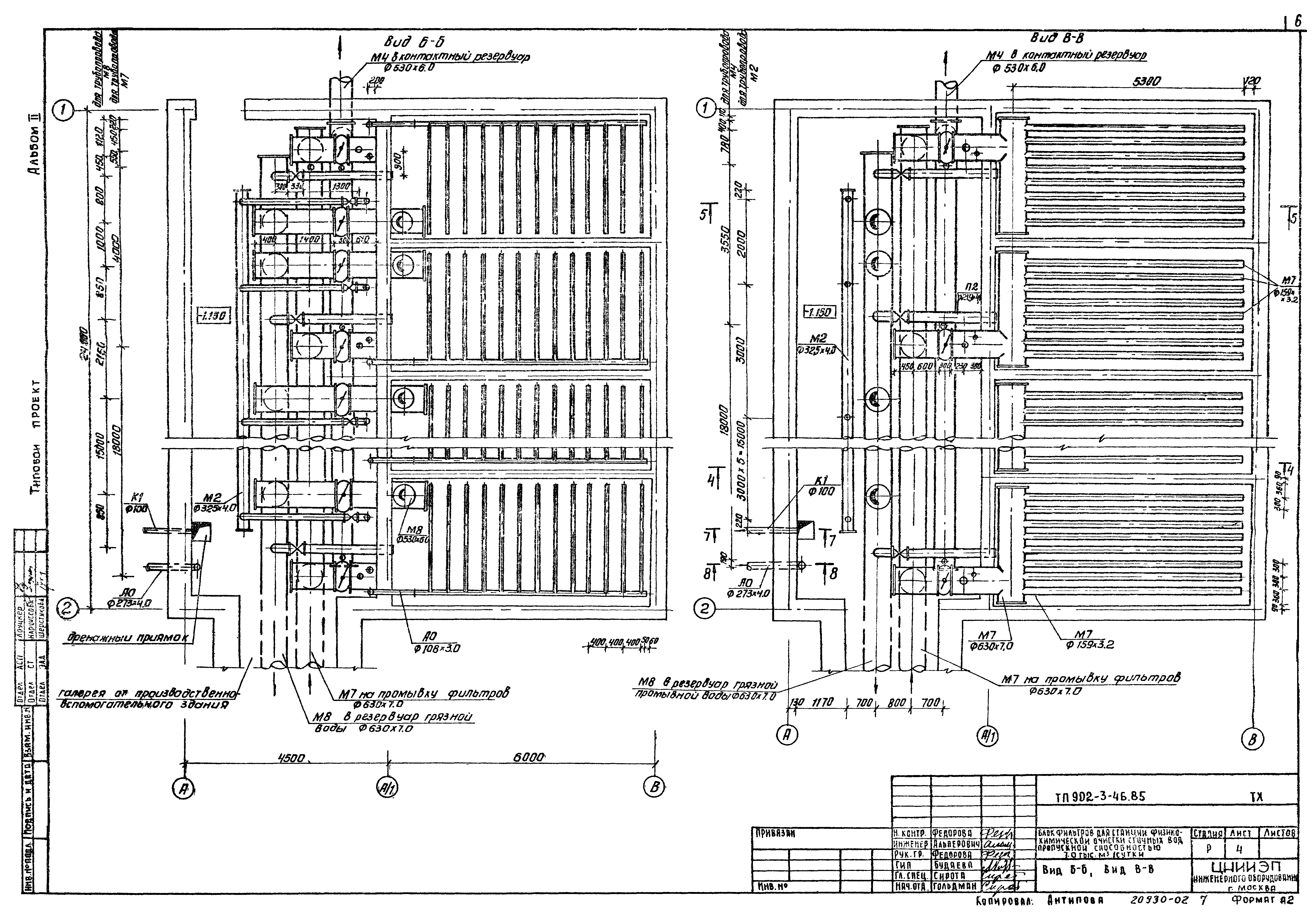
Альбом II. Технологическая, санитарно-техническая, архитектурно-строительная частиОбозначение: | Типовой проект 902-3-46.85 | Обозначение англ: | 902-3-46.85 | Статус: | не определен законодательством | Название рус.: | Альбом II. Технологическая, санитарно-техническая, архитектурно-строительная части | Дата добавления в базу: | 01.09.2013 | Дата актуализации: | 05.05.2017 | Дата введения: | 05.10.1985 | Оглавление: | ТП 902-3-46.85 Содержание альбома ТП 902-3-46.85-ТХ Технологическая часть ТП 902-3-46.85-ТХ-1 Общие данные ТП 902-3-46.85-ТХ-2 План, разрезы 1-1;2-2. Деталь водяной сборнораспределительной системы, воздушной распределительной системы ТП 902-3-46.85-ТХ-3 Вид А-А. Разрез 3-3. Деталь заделки трубопровода опорожнения ТП 902-3-46.85-ТХ-4 Вид Б-Б, вид В-В ТП 902-3-46.85-ТХ-5 Разрезы 4-4,5-5,6-6,7-7,8-8 ТП 902-3-46.85-ТХ-6 Аксонометрические схемы трубопроводов М2,М4 ТП 902-3-46.85-ТХ-7 Аксонометрические схемы трубопроводов М7,М8 ТП 902-3-46.85-ТХ-8 Аксонометрические схемы трубопроводов АО,П2 ТП 902-3-46.85-ОВ Отопление и вентиляция ТП 902-3-46.85-ОВ-1 Общие данные ТП 902-3-46.85-ОВ-2 План на отм. -1.150. План на отм. +1.450. Схема отопления. Схемы вентиляции В1;ВЕ1;ВЕ2 ТП 902-3-46.85-ОВ-3 Установка системы В1 ТП 902-3-46.85-ОВН-1 Воздуховод из асбестоцементных листов ТП 902-3-46.85-ОВН-2 Узлы соединений ТП 902-3-46.85-ОВН-3 Конструкция изоляции трубопроводов ТП 902-3-46.85-АР Архитектурные решения ТП 902-3-46.85-АР-1 Общие данные ТП 902-3-46.85-АР-2 План на отм. -1.150 и 0.000. Узел 2;3 ТП 902-3-46.85-АР-3 План на отм. 1.450;2.890. Разрезы 3-3;4-4 ТП 902-3-46.85-АР-4 Разрезы 1-1;2-1. Узел 1 ТП 902-3-46.85-АР-5 Фасады 1-2;2-1;А-В;В-А ТП 902-3-46.85-АР-6 План кровли. Планы и экспликация полов. Ведомость и спецификация перемычек. Ведомость отделки помещений ТП 902-3-46.85-КЖ Конструкции железобетонные ТП 902-3-46.85-КЖ-1 Общие данные ТП 902-3-46.85-КЖ-2 Схема расположения фундаментов и подпорных стен. Разрез 1-1÷4-4 ТП 902-3-46.85-КЖ-3 Схема расположения фундаментов и подпорных стен. Разрез 5-5÷11-11 ТП 902-3-46.85-КЖ-4 Фильтры. Схемы расположения стеновых панелей, лотков. Разрез 1-1 ТП 902-3-46.85-КЖ-5 Фильтры. Схемы расположения стеновых панелей, лотков. Разрез 2-2÷6-6. Узлы ТП 902-3-46.85-КЖ-6 Фильтры. Днище. Опалубочный чертеж ТП 902-3-46.85-КЖ-7 Фильтры. Днище. Армирование ТП 902-3-46.85-КЖ-8 Фильтры. Монолитные участки стен. Опалубочный чертеж. Армирование ТП 902-3-46.85-КЖ-9 Фильтры. Схема расположения плит и щитов на отм. 3.000. Схема расположения балок. Узлы ТП 902-3-46.85-КЖ-10 Схема расположения плит покрытия на отм. 5.250 и 2.640 ТП 902-3-46.85-КМ Конструкции металлические ТП 902-3-46.85-КМ-1 Общие данные (начало). Техническая спецификация стали ТП 902-3-46.85-КМ-2 Общие данные (продолжение). Техническая спецификация стали на типовые конструкции ТП 902-3-46.85-КМ-3 Общие данные (окончание). Ведомость металлоконструкций по видам профилей ТП 902-3-46.85-КМ-4 Схема расположения подвесного пути ТП 902-3-46.85-КМ-5 Схема расположения площадок и лестниц. Разрезы. Узлы | Разработан: | ЦНИИЭП иженерного оборудования
| Утверждён: | 21.08.1985 Госгражданстрой (Gosgrazhdanstroy 252)
| Расположен в: |
|
                                   
|