Скачать Серия 4.904-37 Местные откосы при ручной электросварке. Рабочие чертежиДата актуализации: 10.08.2017 Серия 4.904-37
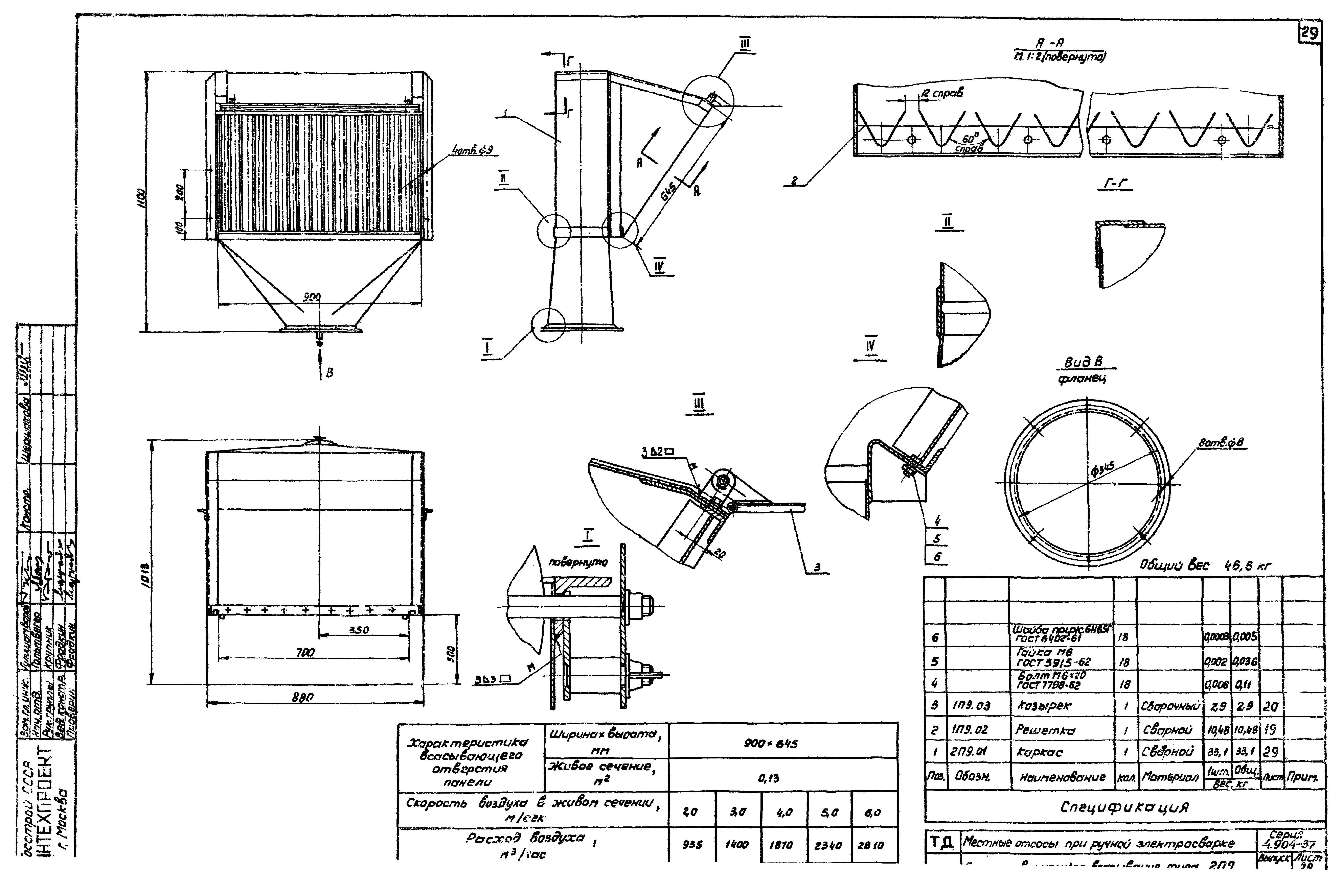
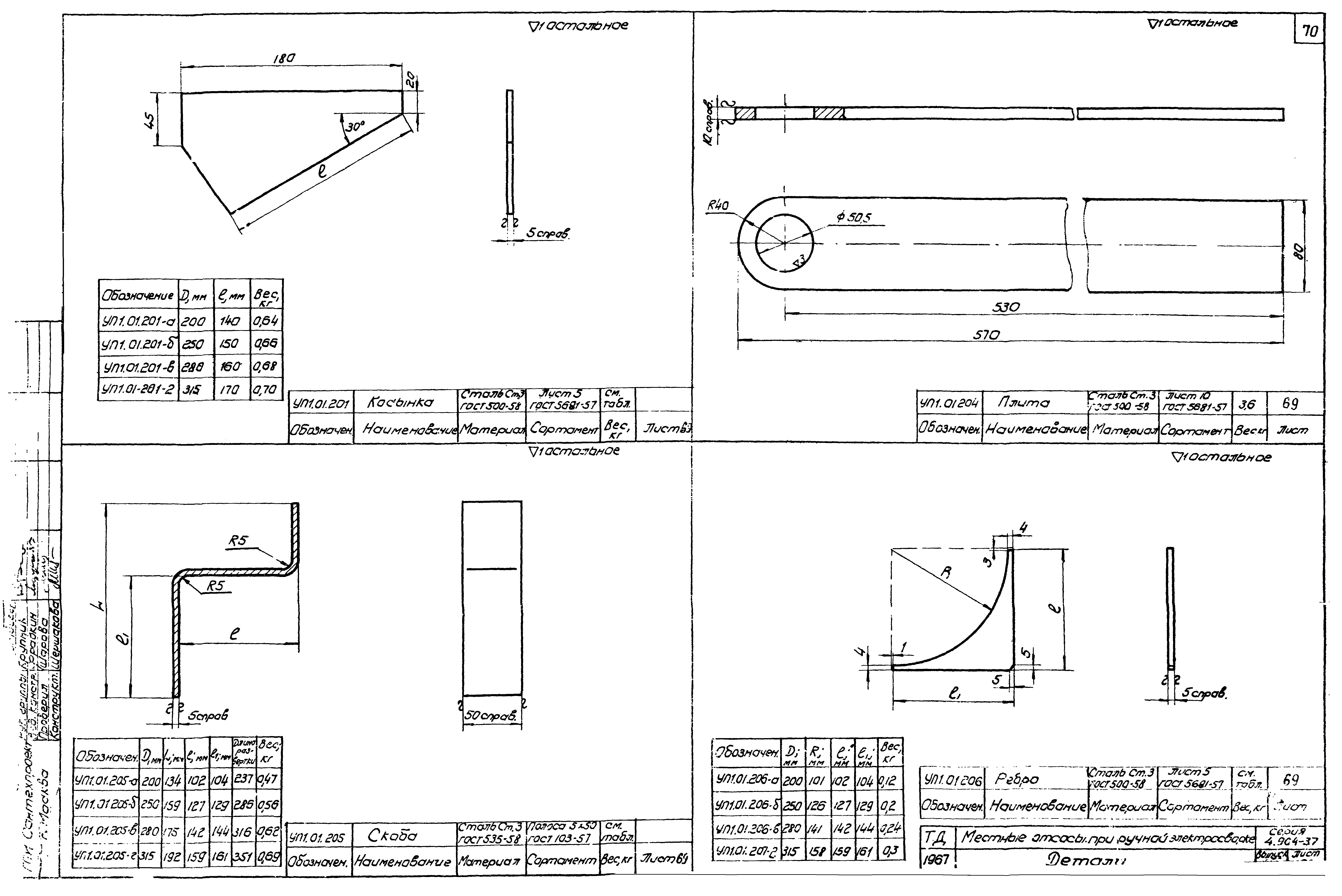
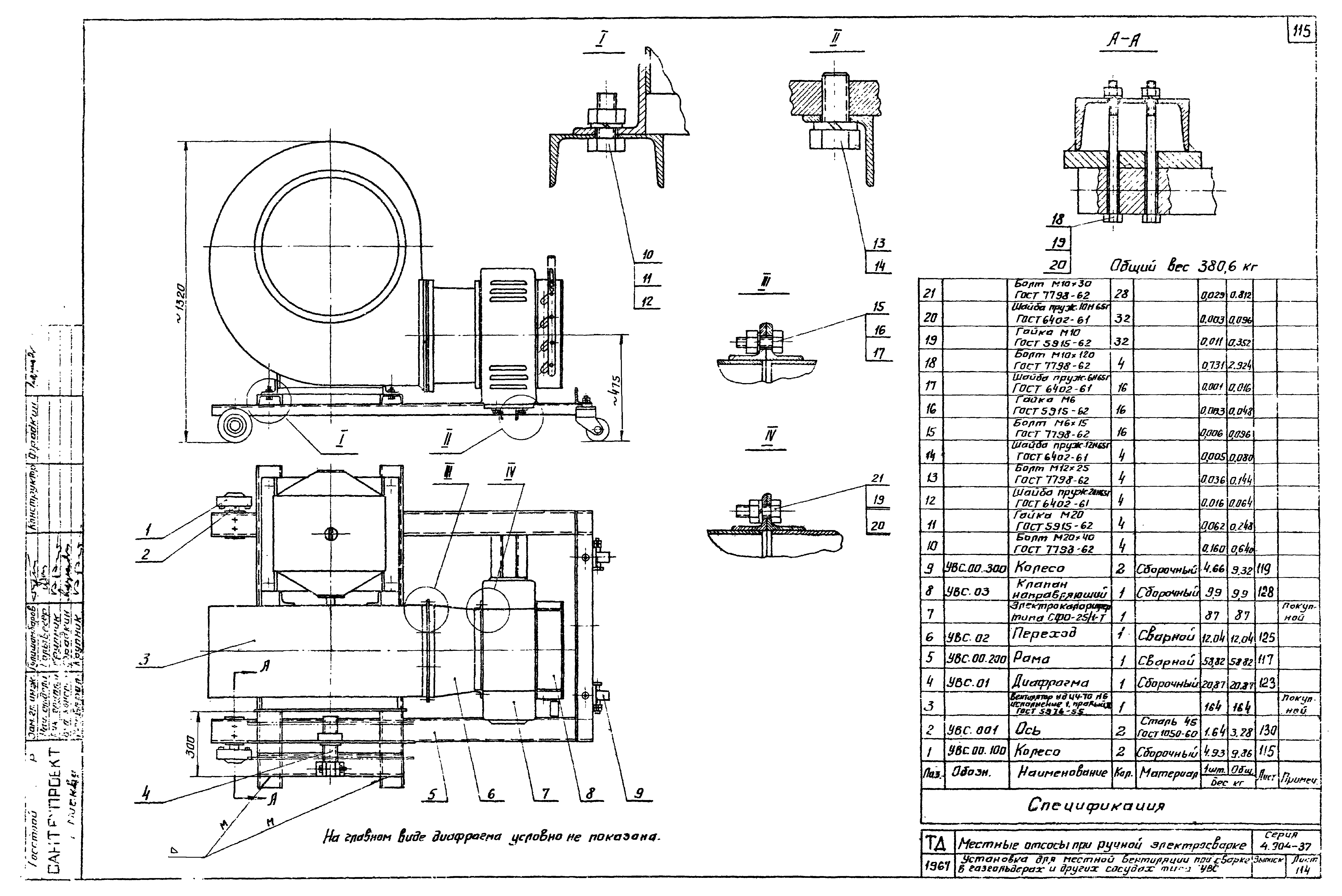
Местные откосы при ручной электросварке. Рабочие чертежиОбозначение: | Серия 4.904-37 | Обозначение англ: | Series 4.904-37 | Статус: | не действует | Название рус.: | Местные откосы при ручной электросварке. Рабочие чертежи | Дата добавления в базу: | 01.09.2013 | Дата актуализации: | 05.05.2017 | Дата введения: | 01.05.1999 | Оглавление: | 4.904-37 Лист 1. Содержание 4.904-37 Лист 2. Пояснительная записка 4.904-37 Лист 3. Пояснительная записка 4.904-37 Лист 4. Пояснительная записка 4.904-37 Лист 5. Пояснительная записка 4.904-37 Лист 6. Панель равномерного всасывания типа 1П6 4.904-37 Лист 7. 1П6.01. Каркас 4.904-37 Лист 8. Детали 4.904-37 Лист 9. 1П6.02. Решетка 4.904-37 Лист 10. 1П6.03. Козырек 4.904-37 Лист 11. Детали 4.904-37 Лист 12. 1П6.04. Защелка 4.904-37 Лист 13. Панель равномерного всасывания типа 1П7,5 4.904-37 Лист 14. 1П7,5.01. Каркас 4.904-37 Лист 15. 1П7,5.02. Решетка 4.904-37 Лист 16. 1П7,5.03. Козырек 4.904-37 Лист 17. Панель равномерного всасывания типа 1П9 4.904-37 Лист 18. 1П9.01. Каркас 4.904-37 Лист 19. 1П9.02. Решетка 4.904-37 Лист 20. 1П9.03. Козырек 4.904-37 Лист 21. Панель равномерного всасывания типа 2П6 4.904-37 Лист 22. 2П6.01. Каркас 4.904-37 Лист 23. Детали 4.904-37 Лист 24. Детали 4.904-37 Лист 25. Панель равномерного всасывания типа 2П7,5 4.904-37 Лист 26. 2П7,5.01. Каркас 4.904-37 Лист 27. Детали 4.904-37 Лист 28. Панель равномерного всасывания типа 2П9 4.904-37 Лист 29. 2П9.01. Каркас 4.904-37 Лист 30. Детали 4.904-37 Лист 31. Панель равномерного всасывания типа 3П6 4.904-37 Лист 32. 3П6.01. Каркас 4.904-37 Лист 33. Детали 4.904-37 Лист 34. Панель равномерного всасывания типа 3П7,5 4.904-37 Лист 35. 3П7,5.01. Каркас 4.904-37 Лист 36. Панель равномерного всасывания типа 3П9 4.904-37 Лист 37. 3П9.01. Каркас 4.904-37 Лист 38. Детали 4.904-37 Лист 39. Панель равномерного всасывания типа 4П6 4.904-37 Лист 40. 4П6.01. Каркас 4.904-37 Лист 41. Детали 4.904-37 Лист 42. Детали 4.904-37 Лист 43. Панель равномерного всасывания типа 4П7,5 4.904-37 Лист 44. 4П7,5.01. Каркас 4.904-37 Лист 45. Детали 4.904-37 Лист 46. Панель равномерного всасывания типа 4П9 4.904-37 Лист 47. 4П9.01. Каркас 4.904-37 Лист 48. Детали 4.904-37 Лист 49. УП1. Двойное подъемно-поворотное устройство 4.904-37 Лист 50. Детали 4.904-37 Лист 51. УП1.100. Рама закладная 4.904-37 Лист 52. Детали 4.904-37 Лист 53. УП1.200. Кронштейн 4.904-37 Лист 54. УП1.300. Противовес 4.904-37 Лист 55. Детали 4.904-37 Лист 56. УП1.400. Воздуховод подъемный 4.904-37 Лист 57. Детали 4.904-37 Лист 58. УП1.500-I. Переход 4.904-37 Лист 59. УП1.500-II. Переход 4.904-37 Лист 60. УП1.500-III. Переход 4.904-37 Лист 61. УП1.500-IV. Переход 4.904-37 Лист 62. УП1.600. Кронштейн 4.904-37 Лист 63. Детали 4.904-37 Лист 64. УП1. Воздуховод верхний 4.904-37 Лист 65. УП1 01.100 Воздуховод 4.904-37 Лист 66. Детали 4.904-37 Лист 67. Детали 4.904-37 Лист 68. УП1 01.200. Подшипник 4.904-37 Лист 69. Детали 4.904-37 Лист 70. УП1 01.300. Ферма 4.904-37 Лист 71. Детали 4.904-37 Лист 72. Детали 4.904-37 Лист 73. УП1 01.400. Вал 4.904-37 Лист 74. УП1 01.500. Полухомут 4.904-37 Лист 75. УП1 02. Воздуховод нижний 4.904-37 Лист 76. УП1 02.100. Блок 4.904-37 Лист 77. УП1 02.200. Тяга 4.904-37 Лист 78. УП1 02.300. Воздуховод 4.904-37 Лист 79. Детали 4.904-37 Лист 80. УП1.03. Шарнир поворотный 4.904-37 Лист 81. УП1.03.200. Патрубок нижний 4.904-37 Лист 82. Детали 4.904-37 Лист 83. Детали 4.904-37 Лист 84. УП2. Двойное подъемно-поворотное устройство 4.904-37 Лист 85. УП2.01. Воздуховод верхний 4.904-37 Лист 86. УП2.01.100. Воздуховод 4.904-37 Лист 87. Детали 4.904-37 Лист 88. УП2.01.300. Ферма 4.904-37 Лист 89. Детали 4.904-37 Лист 90. УП2.03. Шарнир поворотный 4.904-37 Лист 91. УП3. Двойное поворотное устройство 4.904-37 Лист 92. УП3.01.100. Воздуховод 4.904-37 Лист 93. УП4. Двойное поворотное устройство 4.904-37 Лист 94. УП5. Поворотно-подъемное устройство 4.904-37 Лист 95. УП5.01. Воздуховод 4.904-37 Лист 96. УП5.01.100. Воздуховод 4.904-37 Лист 97. Детали 4.904-37 Лист 98. УП6. Поворотно-подъемное устройство 4.904-37 Лист 99. УП6.01. Воздуховод 4.904-37 Лист 100. УП6.01.100. Воздуховод 4.904-37 Лист 101. Детали 4.904-37 Лист 102. УП7. Поворотное устройство 4.904-37 Лист 103. УП7.01. Воздуховод 4.904-37 Лист 104. УП7.01.100. Воздуховод 4.904-37 Лист 105. УП8. Поворотное устройство 4.904-37 Лист 106. Местный отсос от сварочной дуги с применением вакуум-насосных установок ВНУ 4.904-37 Лист 107. ВНУ10. Коллектор 4.904-37 Лист 108. Детали 4.904-37 Лист 109. ВНУ11.100. Заглушка 4.904-37 Лист 110. ВНУ20. Пылеприемник с держателем 4.904-37 Лист 111. Детали 4.904-37 Лист 112. Детали 4.904-37 Лист 113. ВНУ.20.100. Держатель 4.904-37 Лист 114. Установка для местной вентиляции при сварке в газгольдерах и других сосудах типа УВС 4.904-37 Лист 115. УВС00.001. Колесо 4.904-37 Лист 116. Детали 4.904-37 Лист 117. УВС00.200. Рама 4.904-37 Лист 118. Детали 4.904-37 Лист 119. УВС00.300. Колесо 4.904-37 Лист 120. Детали 4.904-37 Лист 121. Детали 4.904-37 Лист 122. Детали 4.904-37 Лист 123. УВС01. Диафрагма 4.904-37 Лист 124. УВС01.200. Стойка 4.904-37 Лист 125. УВС02. Переход 4.904-37 Лист 126. УВС02.300. Фланец 4.904-37 Лист 127. Детали 4.904-37 Лист 128. УВС03. Клапан направляющий 4.904-37 Лист 129. Детали 4.904-37 Лист 130. Детали 4.904-37 Лист 131. УВС03.100. Механизм привода 4.904-37 Лист 132. УВС03.200. Корпус 4.904-37 Лист 133. Детали | Разработан: | ГПИ Сантехпроект Госстроя СССР
| Утверждён: | 14.10.1967 Госстрой СССР (Государственный комитет Совета Министров СССР по делам строительства) (USSR Gosstroy 42)
| Издан: | ЦИТП Госстроя СССР (CITP, Gosstroy (USSR) )
| Расположен в: |
|
                                                                                                                                      
|