Информационная система
«Ёшкин Кот»

Скачать базу одним архивом
Скачать обновления
История создания базы
Карта сайта

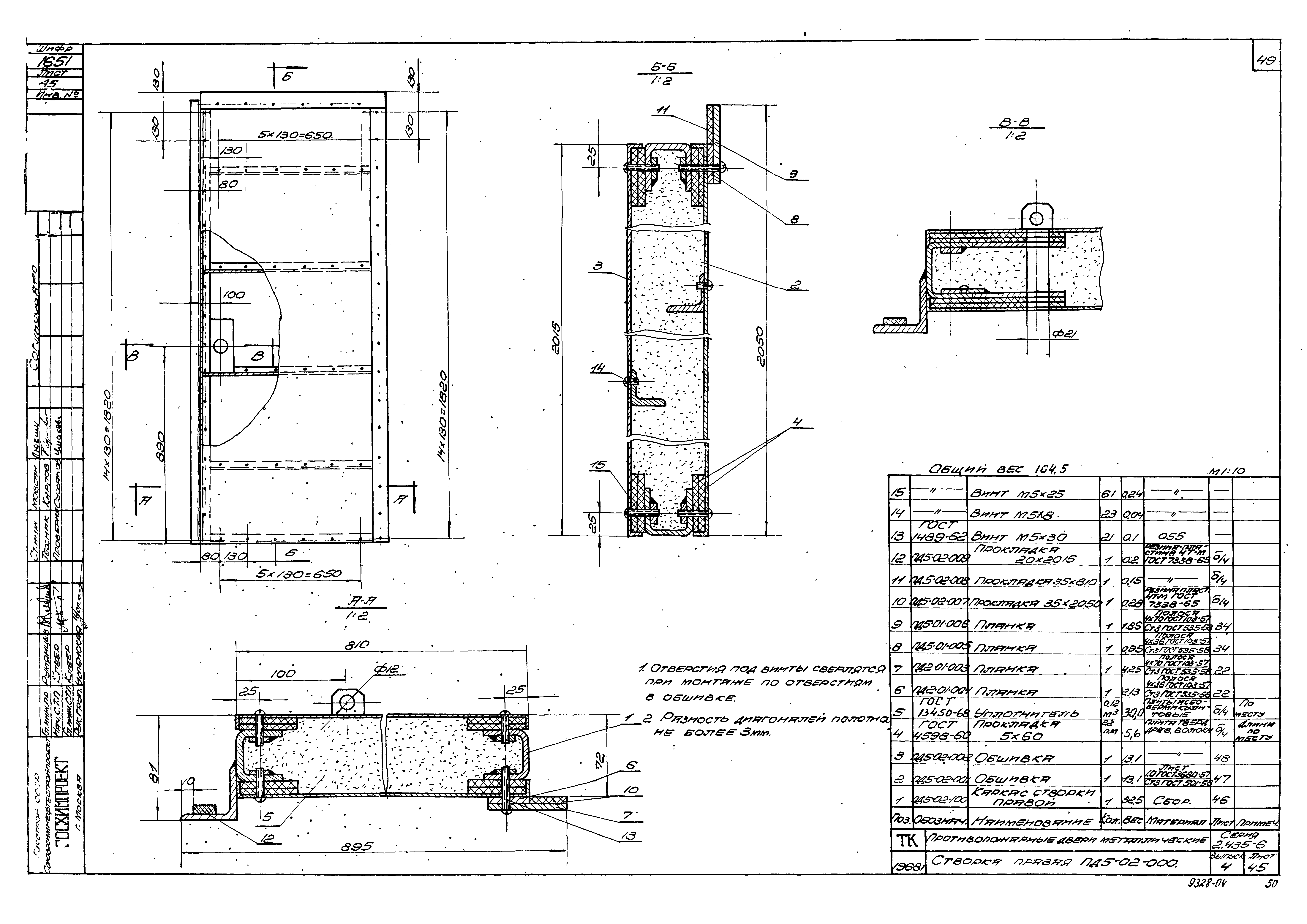
Скачать Серия 2.435-6 Выпуск 4. Противопожарные двери металлические

Дата актуализации: 10.08.2017

Серия 2.435-6

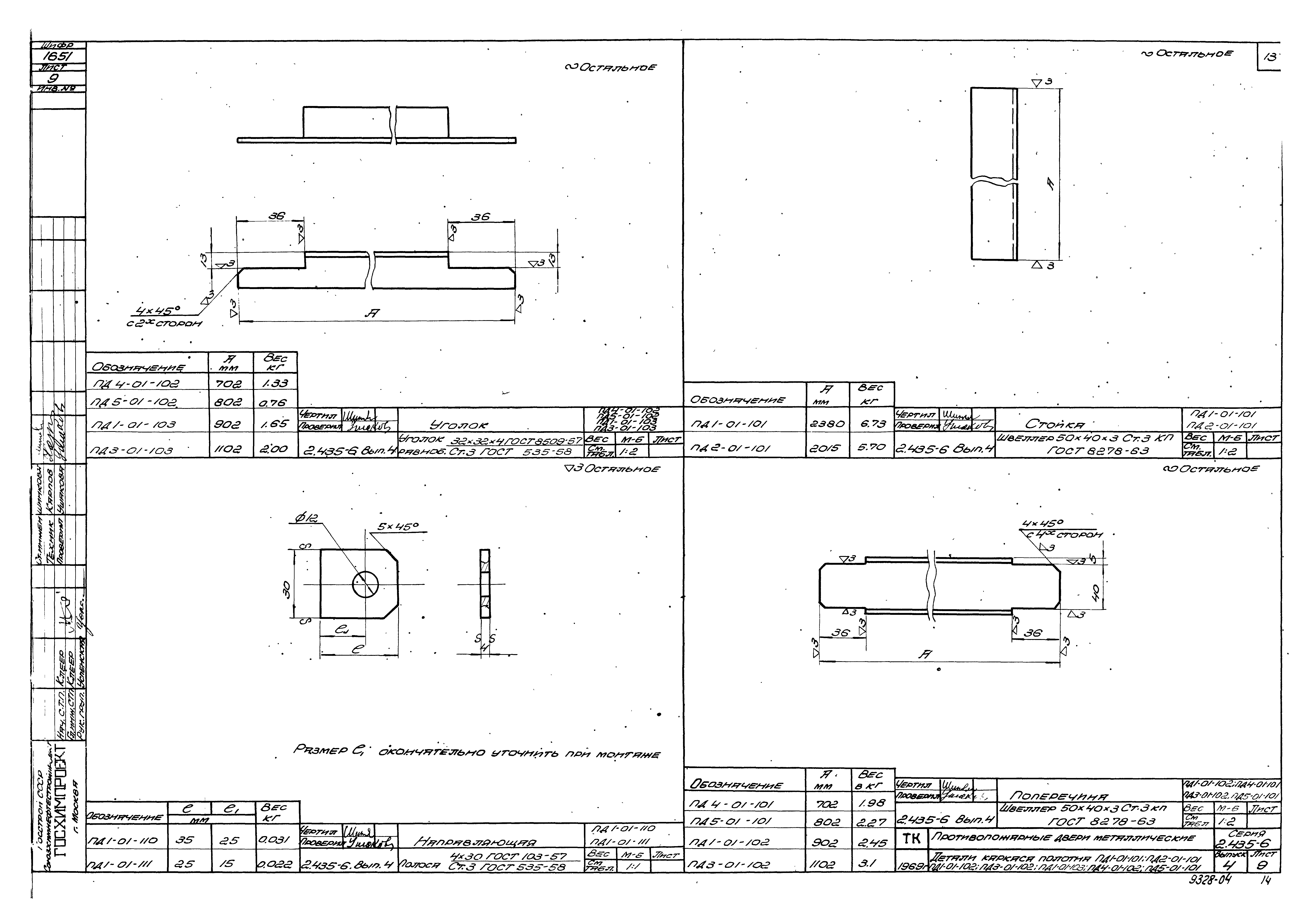
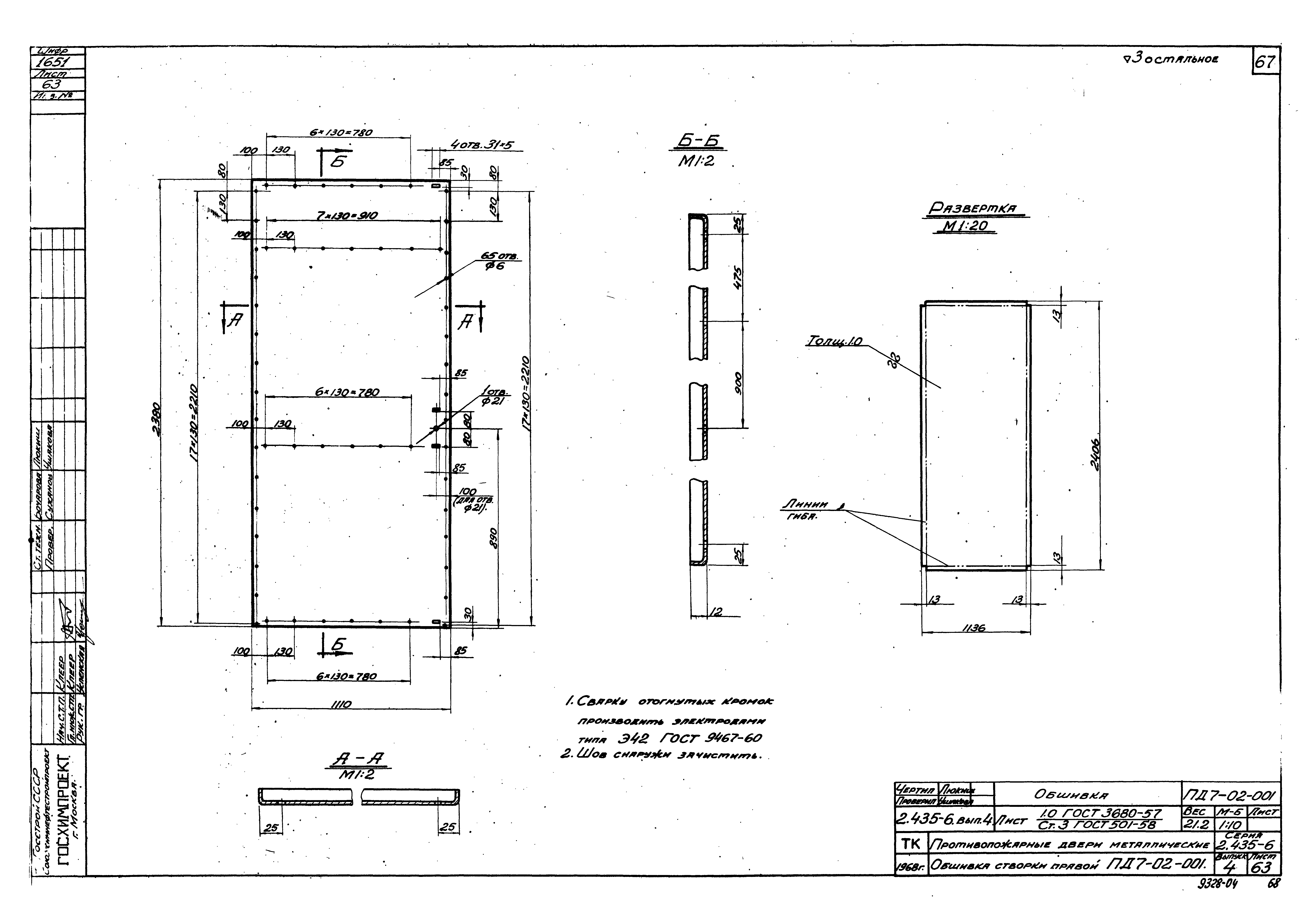
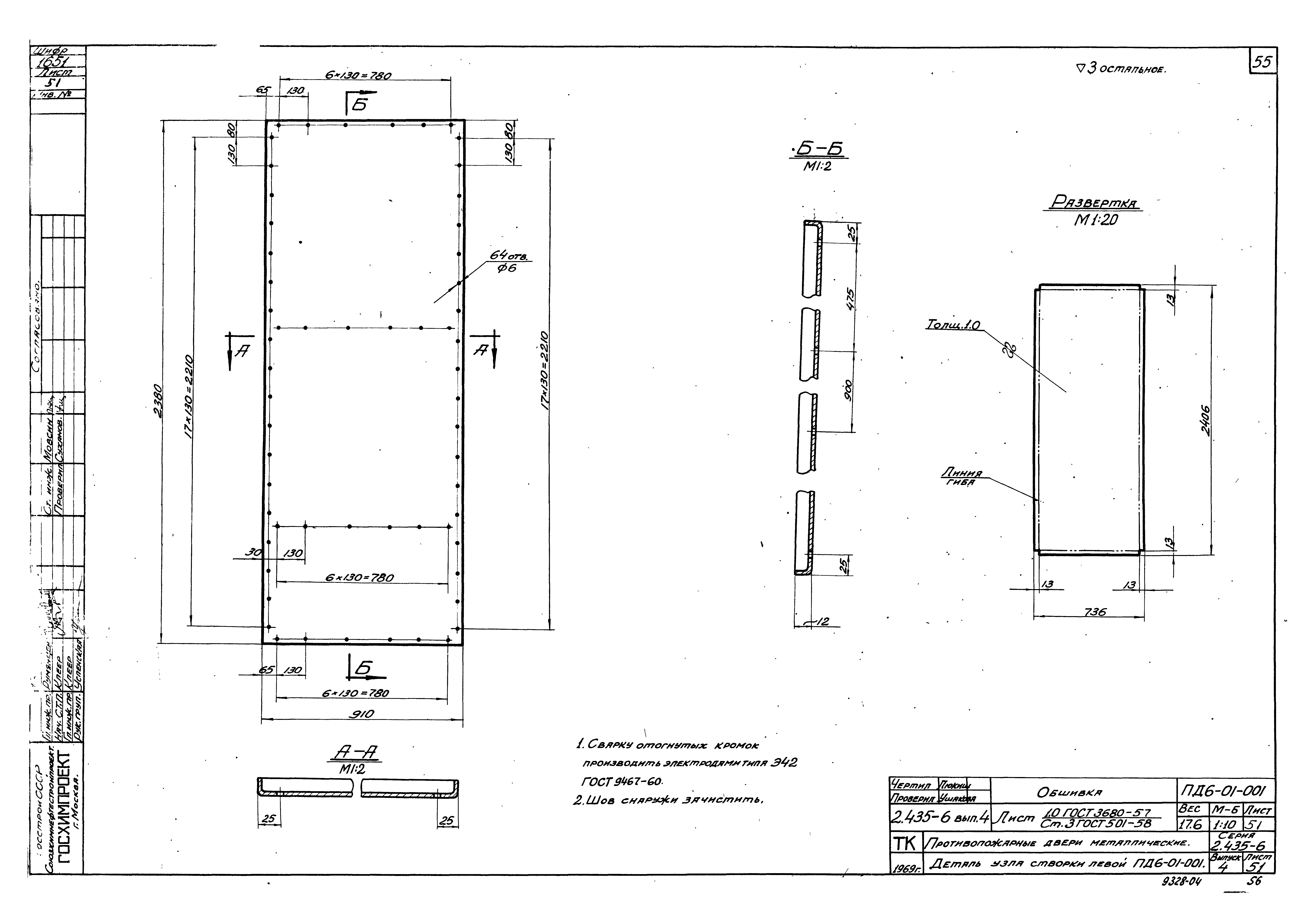
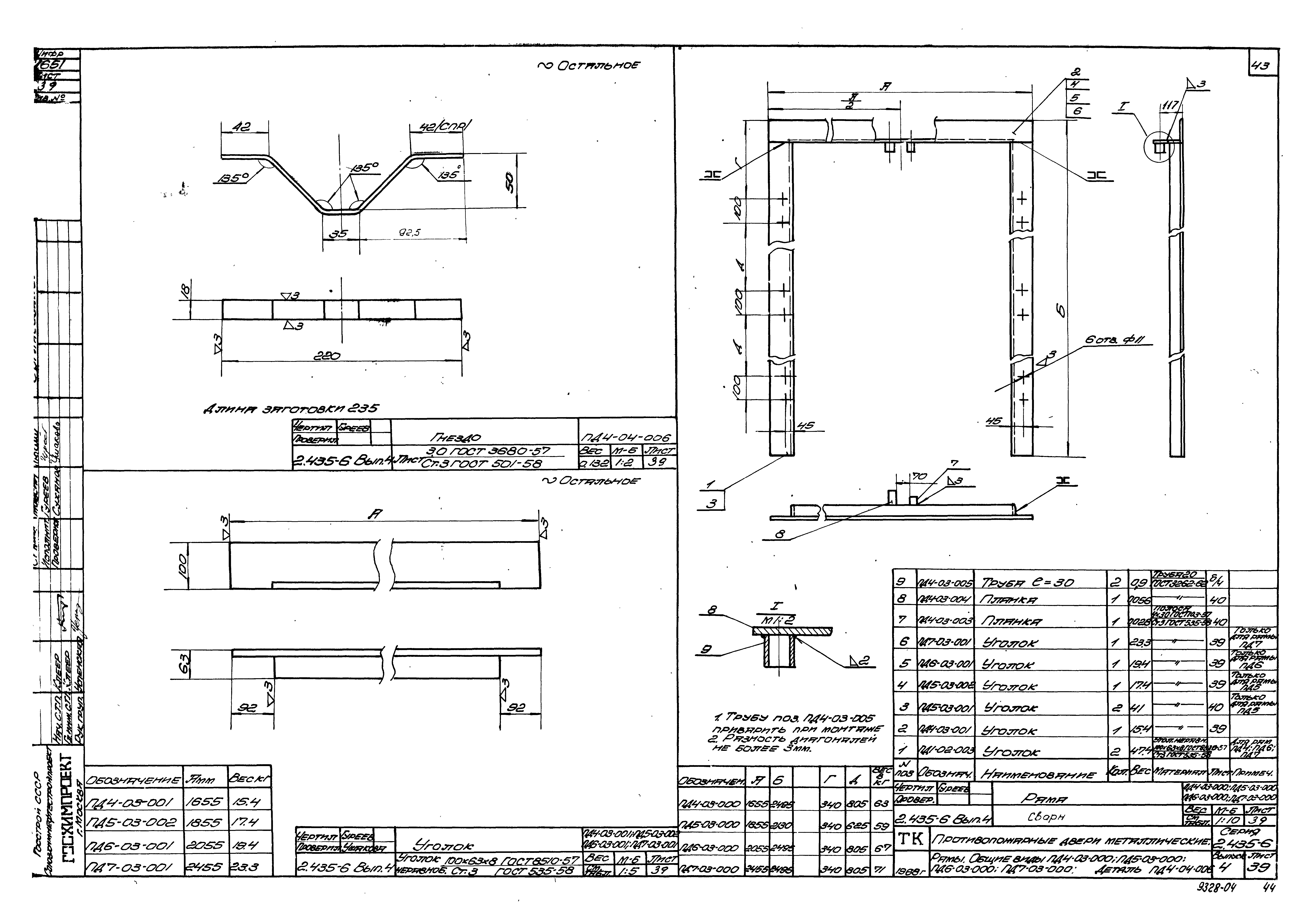
Выпуск 4. Противопожарные двери металлические

Обозначение: Серия 2.435-6
Обозначение англ: Series 2.435-6
Статус:не действует
Название рус.:Выпуск 4. Противопожарные двери металлические
Дата добавления в базу:01.09.2013
Дата актуализации:05.05.2017
Дата введения:01.01.1970
Дата окончания срока действия:01.07.1995
Разработан: Госхимпроект
Утверждён:04.07.1969 Госстрой СССР (Государственный комитет Совета Министров СССР по делам строительства) (USSR Gosstroy 80)
Расположен в:Техническая документация Строительство Справочные документы Типовые строительные конструкции, изделия и узлы Общероссийский строительный каталог Строительные конструкции, изделия и узлы зданий и сооружений для всех видов строительства Конструкции, изделия и узлы зданий Ограждающие конструкции Двери, в том числе противопожарные
Чем заменён:
Серия 2.435-6Серия 2.435-6Серия 2.435-6Серия 2.435-6Серия 2.435-6Серия 2.435-6Серия 2.435-6Серия 2.435-6Серия 2.435-6Серия 2.435-6Серия 2.435-6Серия 2.435-6Серия 2.435-6Серия 2.435-6Серия 2.435-6Серия 2.435-6Серия 2.435-6Серия 2.435-6Серия 2.435-6Серия 2.435-6Серия 2.435-6Серия 2.435-6Серия 2.435-6Серия 2.435-6Серия 2.435-6Серия 2.435-6Серия 2.435-6Серия 2.435-6Серия 2.435-6Серия 2.435-6Серия 2.435-6Серия 2.435-6Серия 2.435-6Серия 2.435-6Серия 2.435-6Серия 2.435-6Серия 2.435-6Серия 2.435-6Серия 2.435-6Серия 2.435-6Серия 2.435-6Серия 2.435-6Серия 2.435-6Серия 2.435-6Серия 2.435-6Серия 2.435-6Серия 2.435-6Серия 2.435-6Серия 2.435-6Серия 2.435-6Серия 2.435-6Серия 2.435-6Серия 2.435-6Серия 2.435-6Серия 2.435-6Серия 2.435-6Серия 2.435-6Серия 2.435-6Серия 2.435-6Серия 2.435-6Серия 2.435-6Серия 2.435-6Серия 2.435-6Серия 2.435-6Серия 2.435-6Серия 2.435-6Серия 2.435-6Серия 2.435-6Серия 2.435-6Серия 2.435-6Серия 2.435-6Серия 2.435-6Серия 2.435-6Серия 2.435-6Серия 2.435-6Серия 2.435-6Серия 2.435-6Серия 2.435-6Серия 2.435-6Серия 2.435-6Серия 2.435-6Серия 2.435-6Серия 2.435-6Серия 2.435-6Серия 2.435-6Серия 2.435-6Серия 2.435-6Серия 2.435-6Серия 2.435-6Серия 2.435-6Серия 2.435-6Серия 2.435-6Серия 2.435-6Серия 2.435-6Серия 2.435-6Серия 2.435-6Серия 2.435-6Серия 2.435-6Серия 2.435-6Серия 2.435-6Серия 2.435-6Серия 2.435-6Серия 2.435-6

© 2013 Ёшкин Кот :-) Карта сайта