Скачать Серия 2.435-6 Выпуск 3. Ворота противопожарные и противопожарные ворота искронедающие размерами 3,6х3,6 и 3,6х3,0 мДата актуализации: 10.08.2017 Серия 2.435-6
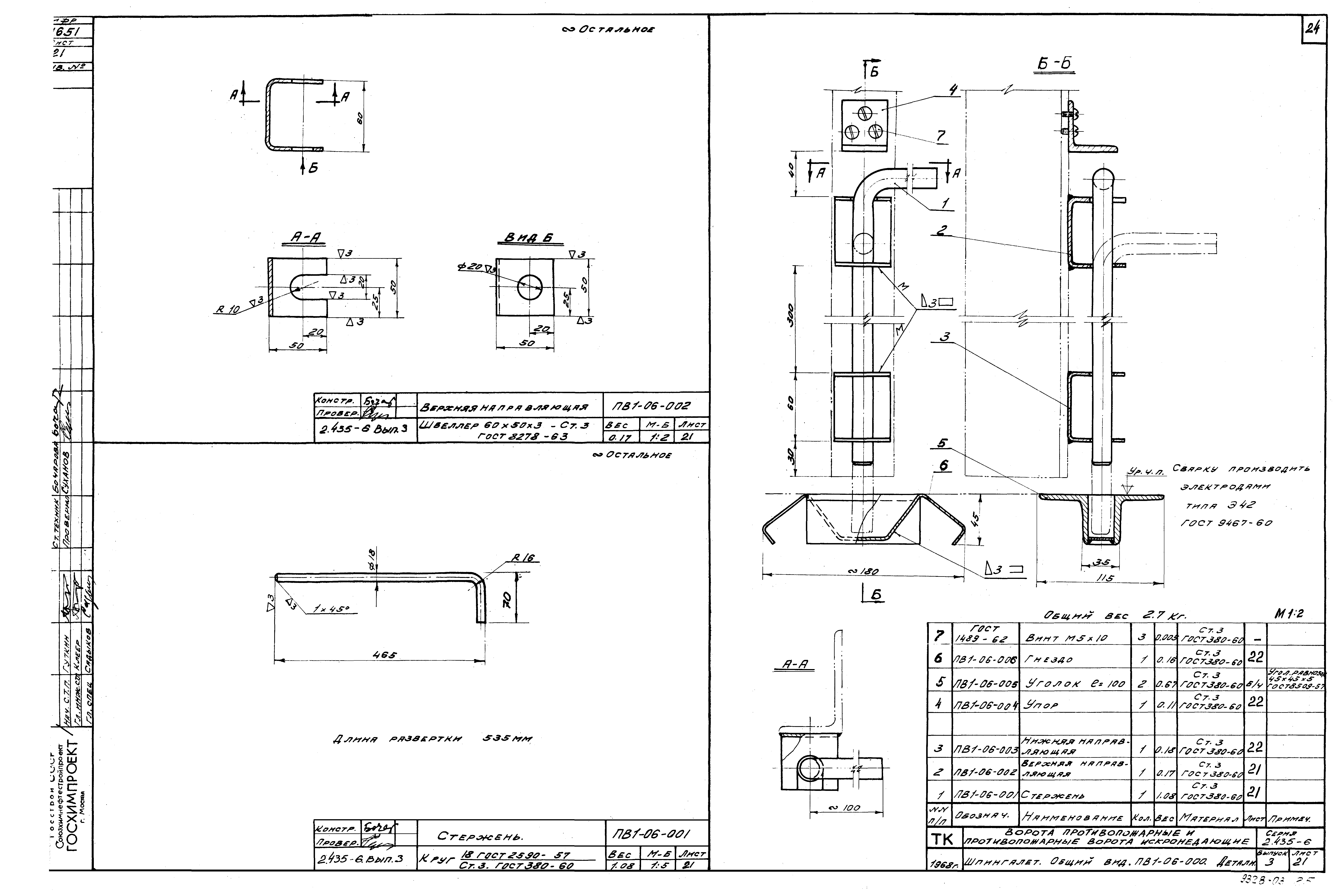
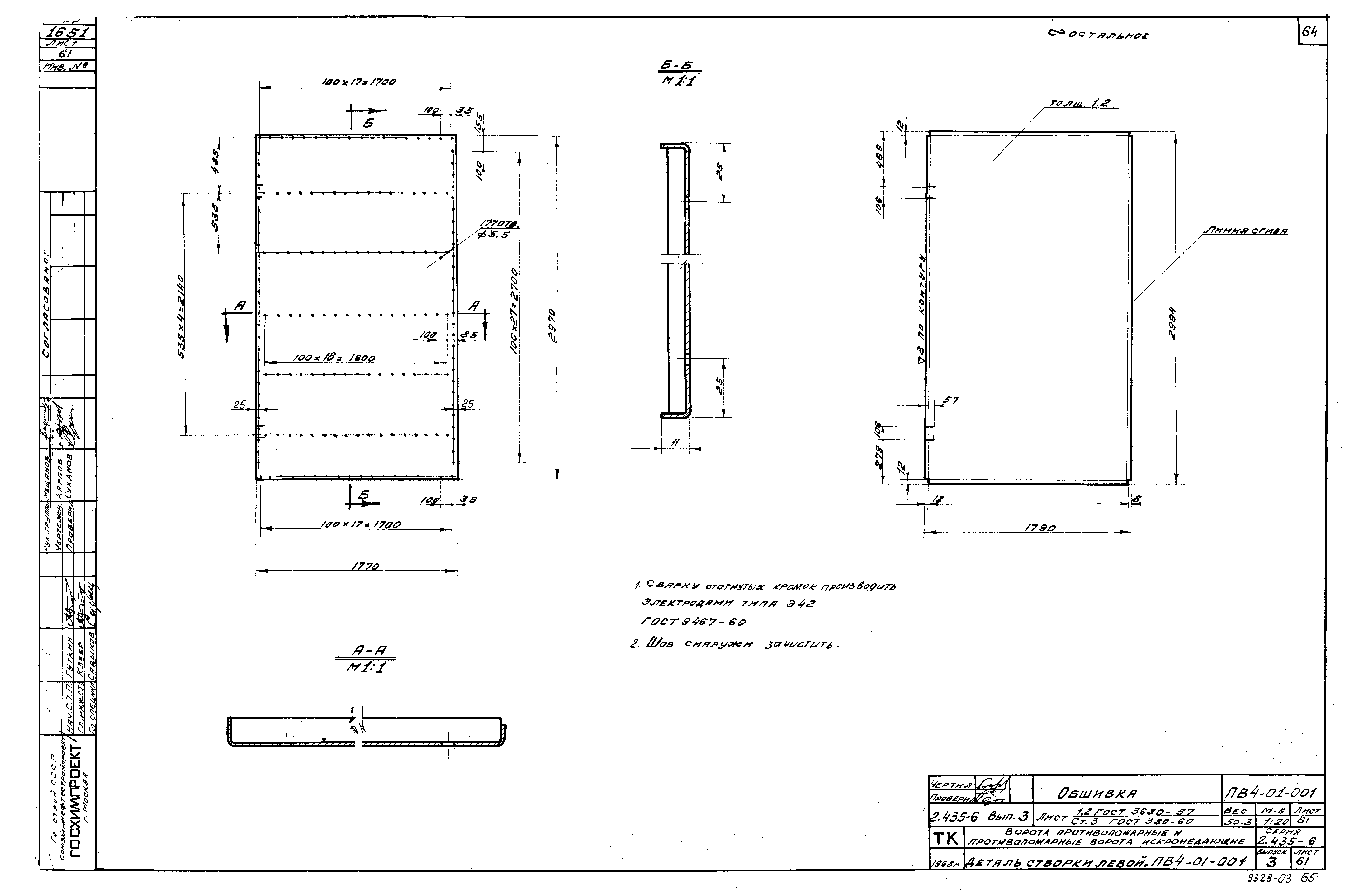
Выпуск 3. Ворота противопожарные и противопожарные ворота искронедающие размерами 3,6х3,6 и 3,6х3,0 мОбозначение: | Серия 2.435-6 | Обозначение англ: | Series 2.435-6 | Статус: | не действует | Название рус.: | Выпуск 3. Ворота противопожарные и противопожарные ворота искронедающие размерами 3,6х3,6 и 3,6х3,0 м | Дата добавления в базу: | 01.09.2013 | Дата актуализации: | 05.05.2017 | Дата введения: | 01.09.1969 | Дата окончания срока действия: | 01.06.1990 | Оглавление: | 2.435-6 Пояснительная записка 2.435-6 Лист 1. Общий вид ворот ПВ-3.6х3.6 ПВ1-00-000 2.435-6 Лист 2. Створка левая. ПВ1-01-000 2.435-6 Лист 3. Каркас створки левой. ПВ1-01-100 2.435-6 Лист 4. Створка правая. ПВ1-02-000 2.435-6 Лист 5. Каркас створки правой. ПВ1-02-100 2.435-6 Лист 6. Калитка. ПВ1-03-000 2.435-6 Лист 7. Каркас калитки. ПВ1-03-100. Детали каркасов и калитки 2.435-6 Лист 8. Нащельники для каркасов ПВ1-01-100;ПВ2-01-100;ПВ1-02-100 и ПВ2-02-100 2.435-6 Лист 9. Детали. ПВ1-01-104,ПВ1-02-105,ПВ1-01-106,ПВ1-01-106,ПВ1-01-107а 2.435-6 Лист 10. Деталь створки левой ПВ1-01-001 2.435-6 Лист 11. Деталь створки левой ПВ1-01-002 2.435-6 Лист 12. Деталь створки правой. ПВ1-02-001 2.435-6 Лист 13. Деталь створки правой. ПВ1-02-002 2.435-6 Лист 14. Деталь калитки. ПВ1-03-001 2.435-6 Лист 15. Деталь калитки. ПВ1-03-002 2.435-6 Лист 16. Детали. ПВ1-00-001;ПВ1-02-003;ПВ1-01-003 т ПВ1-03-003 2.435-6 Лист 17. Щеколда. Общий вид. ПВ1-04-000. Детали 2.435-6 Лист 18. Детали. ПВ1-04-003;ПВ1-04-004;ПВ1-05-007 и ПВ1-05-008 2.435-6 Лист 19. Защелка. Общий вид. ПВ1-05-000. Детали 2.435-6 Лист 20. Детали защелки. ПВ1-05-003;ПВ1-05-004;ПВ1-05-005 и ПВ1-05-006 2.435-6 Лист 21. Шпингалет. Общий вид. ПВ1-06-000. Детали 2.435-6 Лист 22. Детали. ПВ1-00-002;ПВ2-00-001;ПВ1-06-003;ПВ1-06-004 и ПВ1-06-006 2.435-6 Лист 23. Навеска левая. ПВ1-07-000. Общий вид и детали 2.435-6 Лист 24. Навеска правая. ПВ1-08-000. Общий вид. Детали ПВ1-07-001;ПВ1-00-003;ПВ2-00-002 2.435-6 Лист 25. Общий вид ворот ПВ-3.6х3.0. ПВ2-00-000 2.435-6 Лист 26. Створка левая. ПВ2-01-000 2.435-6 Лист 27. Каркас створки левой. ПВ2-01-100 2.435-6 Лист 28. Створка правая. ПВ2-02-000 2.435-6 Лист 29. Каркас створки правой. ПВ2-02-100 2.435-6 Лист 30. Деталь створки левой. ПВ2-01-001 2.435-6 Лист 31. Деталь створки левой. ПВ2-01-002 2.435-6 Лист 32. Деталь створки правой. ПВ2-02-001 2.435-6 Лист 33. Деталь створки правой. ПВ2-02-002 2.435-6 Лист 34. Общий вид ворот ПВИ-3.6х3.6. ПВ3-00-000 2.435-6 Лист 35. Створка левая. ПВ3-01-000 2.435-6 Лист 36. Каркас створки левой. ПВ3-01-100 2.435-6 Лист 37. Створка правая. ПВ3-02-000 2.435-6 Лист 38. Каркас створки правой. ПВ3-02-100 2.435-6 Лист 39. Калитка. ПВ3-03-000 2.435-6 Лист 40. Нащельники для каркасов ПВ3-01-100;ПВ4-01-100;ПВ1-02-100 и ПВ2-02-100 2.435-6 Лист 41. Детали. ПВ3-01-102;ПВ3-02-102 2.435-6 Лист 42. Деталь створки левой. ПВ3-01-001 2.435-6 Лист 43. Деталь створки правой. ПВ3-02-001 2.435-6 Лист 44. Детали. ПВ3-01-002;ПВ3-01-003;ПВ3-01-004;ПВ3-01-005 2.435-6 Лист 45. Детали. ПВ3-01-006;ПВ3-02-002;ПВ3-02-003;ПВ3-02-004 2.435-6 Лист 46. Детали. ПВ3-02-005;ПВ3-02-006;ПВ3-02-007;ПВ3-02-008 2.435-6 Лист 47. Детали. ПВ3-02-010;ПВ3-02-009;ПВ3-03-001;ПВ3-03-002 2.435-6 Лист 48. Детали. ПВ3-03-003;ПВ3-03-004;ПВ3-03-005;ПВ3-03-006 2.435-6 Лист 49. Щеколда. ПВ3-04-000. Общий вид и детали 2.435-6 Лист 50. Ручка большая. ПВ3-04-100. Общий вид. Детали. ПВ3-04-101,ПВ3-04-102,ПВ3-04-103 2.435-6 Лист 51. Защелка. ПВ3-05-000. Общий вид и детали 2.435-6 Лист 52. Детали. ПВ3-05-001;ПВ3-05-002;ПВ3-05-004;ПВ3-05-005 2.435-6 Лист 53. Шпингалет. Общий вид и детали 2.435-6 Лист 54. Навеска левая. ПВ3-07-000. Детали навески и шпингалета 2.435-6 Лист 55. Навеска правая. ПВ3-08-000. Детали ПВ3-03-007 и ПВ3-05-007 2.435-6 Лист 56. Общий вид ворот ПВИ-3.6х3.0. ПВ4-00-000 2.435-6 Лист 57. Створка левая. ПВ4-01-000 2.435-6 Лист 58. Каркас створки левой. ПВ4-01-100 2.435-6 Лист 59. Створка правая. ПВ4-02-000 2.435-6 Лист 60. Каркас створки правой. ПВ4-02-100 2.435-6 Лист 61. Деталь створки левой. ПВ4-01-001 2.435-6 Лист 62. Деталь створки правой. ПВ4-02-001 2.435-6 Лист 63. Детали ПВ4-01-002;ПВ4-01-003;ПВ4-01-004 | Разработан: | Госхимпроект
| Утверждён: | 25.04.1969 Госстрой СССР (Государственный комитет Совета Министров СССР по делам строительства) (USSR Gosstroy 55)
| Расположен в: |
|
                                                                  
|