| ||||||||||||||||||||||||||||
Скачать Серия КЭ-01-49 Выпуск III. Рабочие чертежи колонн для бескрановых зданий с подвесным транспортом с пролетами 18 и 24 м при шаге средних колонн 12 м, крайних колонн - 6 и 12 мДата актуализации: 10.08.2017
|
| Обозначение: | Серия КЭ-01-49 |
| Обозначение англ: | Series КЭ-01-49 |
| Статус: | не действует |
| Название рус.: | Выпуск III. Рабочие чертежи колонн для бескрановых зданий с подвесным транспортом с пролетами 18 и 24 м при шаге средних колонн 12 м, крайних колонн - 6 и 12 м |
| Дата добавления в базу: | 01.09.2013 |
| Дата актуализации: | 05.05.2017 |
| Дата окончания срока действия: | 01.11.1977 |
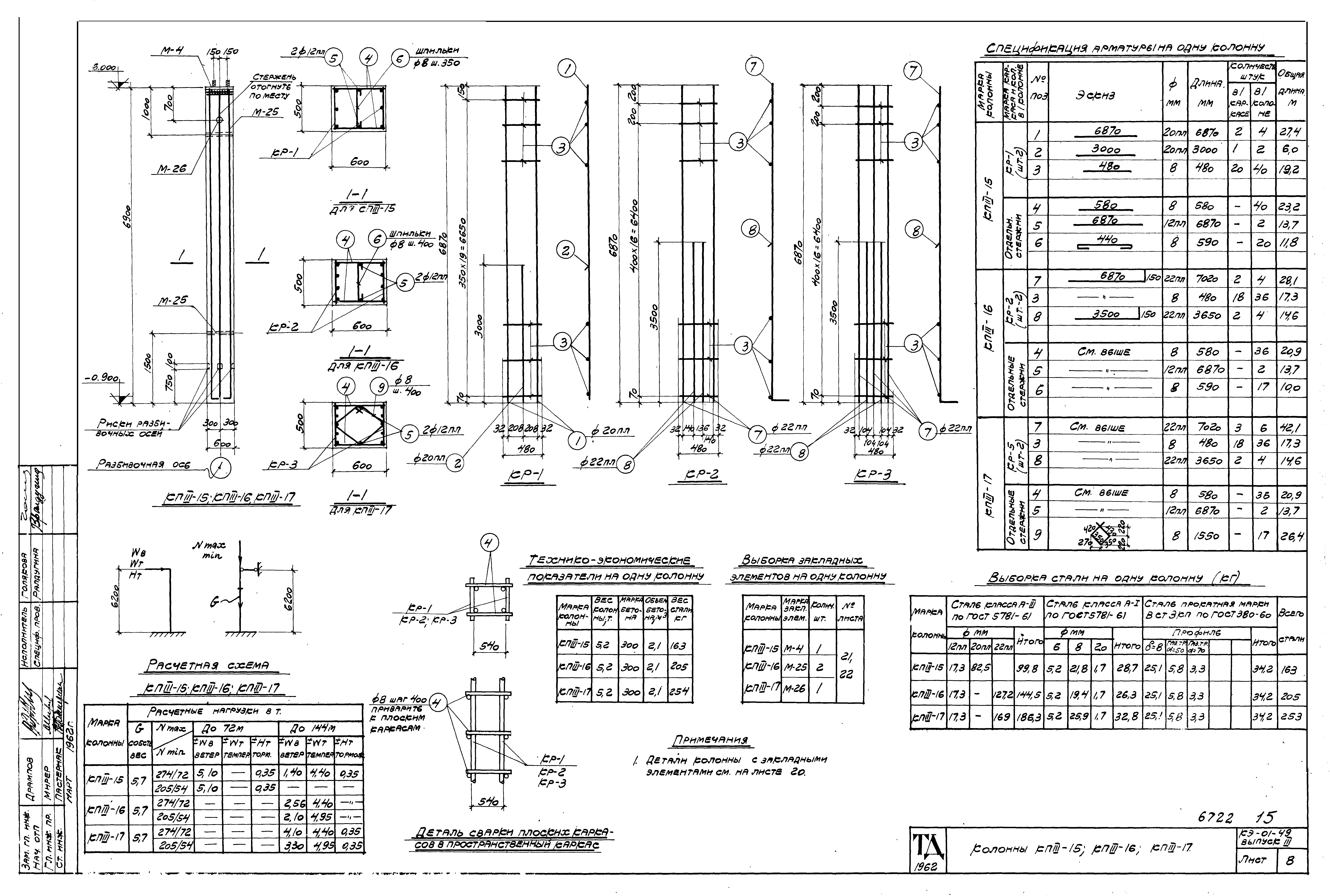
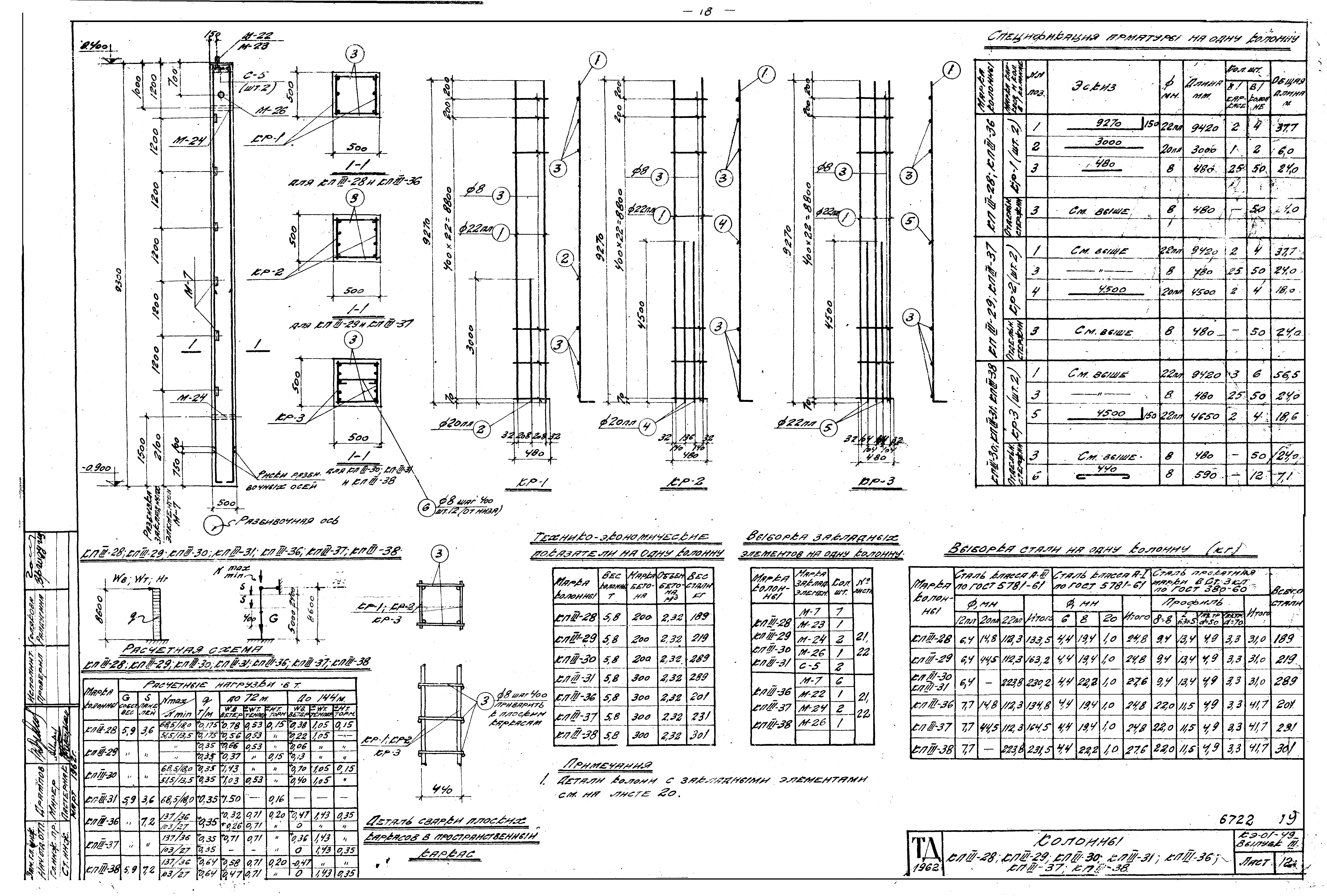
| Оглавление: | КЭ-01-49 Пояснительная записка КЭ-01-49 Детали сопряжения колонн с конструкциями фундамента и покрытия КЭ-01-49 Лист 1. Ключ для подбора колонн для зданий с шагом колонн крайних рядов - 6м; средних - 12м КЭ-01-49 Лист 2. Ключ для подбора колонн для зданий с шагом колонн крайних и средних рядов - 12м КЭ-01-49 Лист 3. Колонны КПIII-1; КПIII-2 КЭ-01-49 Лист 4. Колонны КПIII-3; КПIII-4; КПIII-5 КЭ-01-49 Лист 5. Колонны КПIII-6; КПIII-7 КЭ-01-49 Лист 6. Колонны КПIII-8; КПIII-9; КПIII-10; КПIII-11. Опалубочный чертеж и армирование КЭ-01-49 Лист 7. Колонны КПIII-12; КПIII-13; КПIII-14 КЭ-01-49 Лист 8. Колонны КПIII-15; КПIII-16; КПIII-17 КЭ-01-49 Лист 9. Колонны КПIII-18; КПIII-19; КПIII-20 КЭ-01-49 Лист 10. Колонны КПIII-21; КПIII-22; КПIII-23; КПIII-24 КЭ-01-49 Лист 11. Колонны КПIII-25; КПIII-26; КПIII-27 КЭ-01-49 Лист 12. Колонны КПIII-28; КПIII-29; КПIII-30; КПIII-31; КПIII-36; КПIII-38 КЭ-01-49 Лист 13. Колонны КПIII-32; КПIII-33; КПIII-34; КПIII-35 КЭ-01-49 Лист 14. Колонны КПIII-39; КПIII-40; КПIII-41 КЭ-01-49 Лист 15. Колонны КПIII-42; КПIII-43; КПIII-44; КПIII-48; КПIII-49; КПIII-50 КЭ-01-49 Лист 16. Колонны КПIII-45; КПIII-46; КПIII-47 КЭ-01-49 Лист 17. Колонны КПIII-51; КПIII-52; КПIII-53 КЭ-01-49 Лист 18. Колонны КПIII-54; КПIII-55 КЭ-01-49 Лист 19. Колонны КПIII-56; КПIII-57 КЭ-01-49 Лист 20. Схемы и детали расположения закладных элементов в колоннах КЭ-01-49 Лист 21. Закладные элементы КЭ-01-49 Лист 22. Закладные элементы КЭ-01-49 Лист 23. Расчетные нагрузки на фундаменты для зданий с пролетами L=18м с шагом колонн по средним рядам - 12м, крайним - 6м КЭ-01-49 Лист 24. Расчетные нагрузки на фундаменты для зданий с пролетами L=24м с шагом колонн по средним рядам - 12м, крайним - 6м КЭ-01-49 Лист 25. Расчетные нагрузки на фундаменты для зданий с пролетами L=18м с шагом колонн по средним и крайним рядам - 12м КЭ-01-49 Лист 26. Расчетные нагрузки на фундаменты для зданий с пролетами L=24м с шагом колонн по средним и крайним рядам - 12м |
| Разработан: | Промстройпроект Госстроя СССР НИИЖБ |
| Утверждён: | 25.08.1962 Госстрой СССР (Государственный комитет Совета Министров СССР по делам строительства) (USSR Gosstroy 247) |
| Расположен в: | |
| Чем заменён: |

































