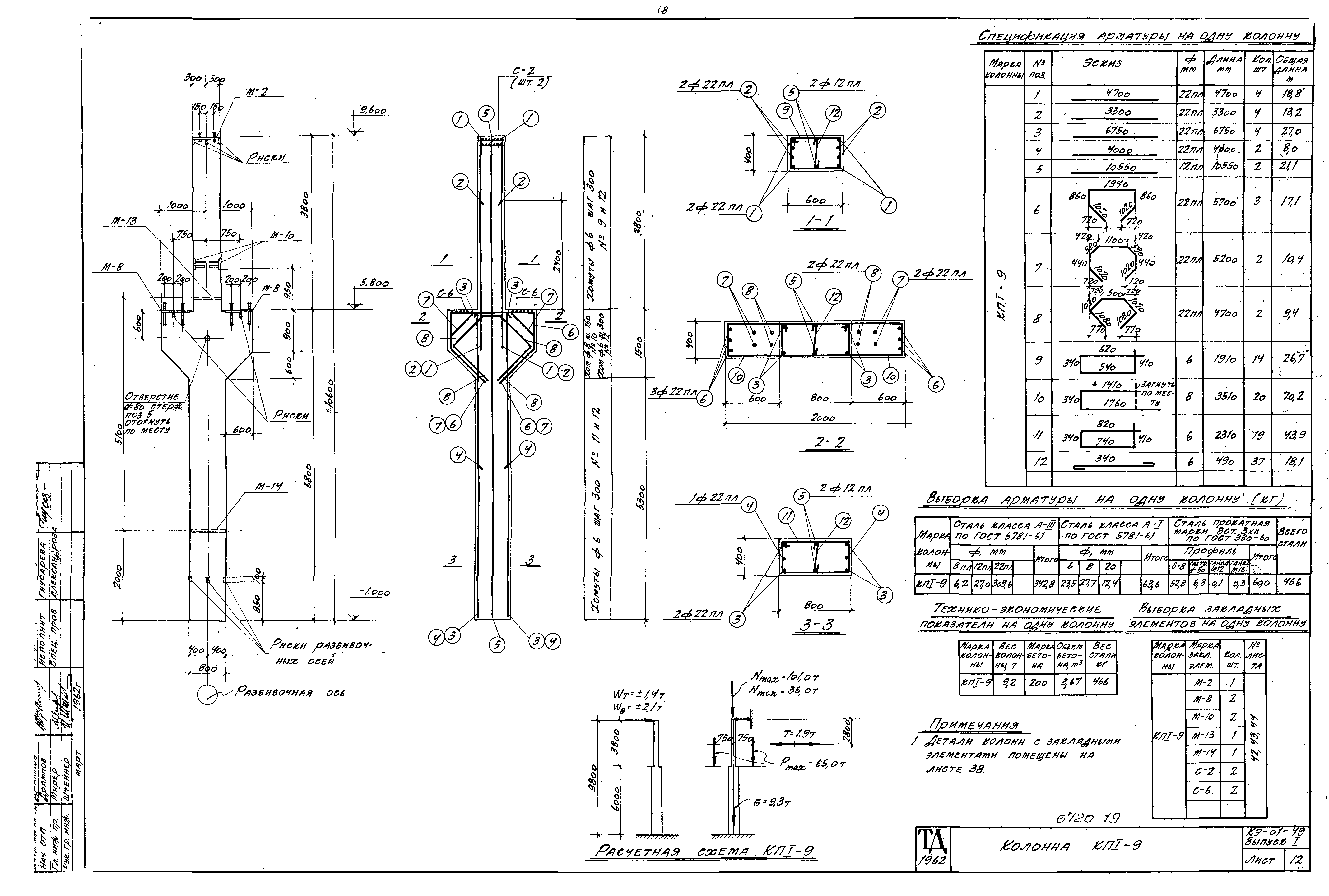
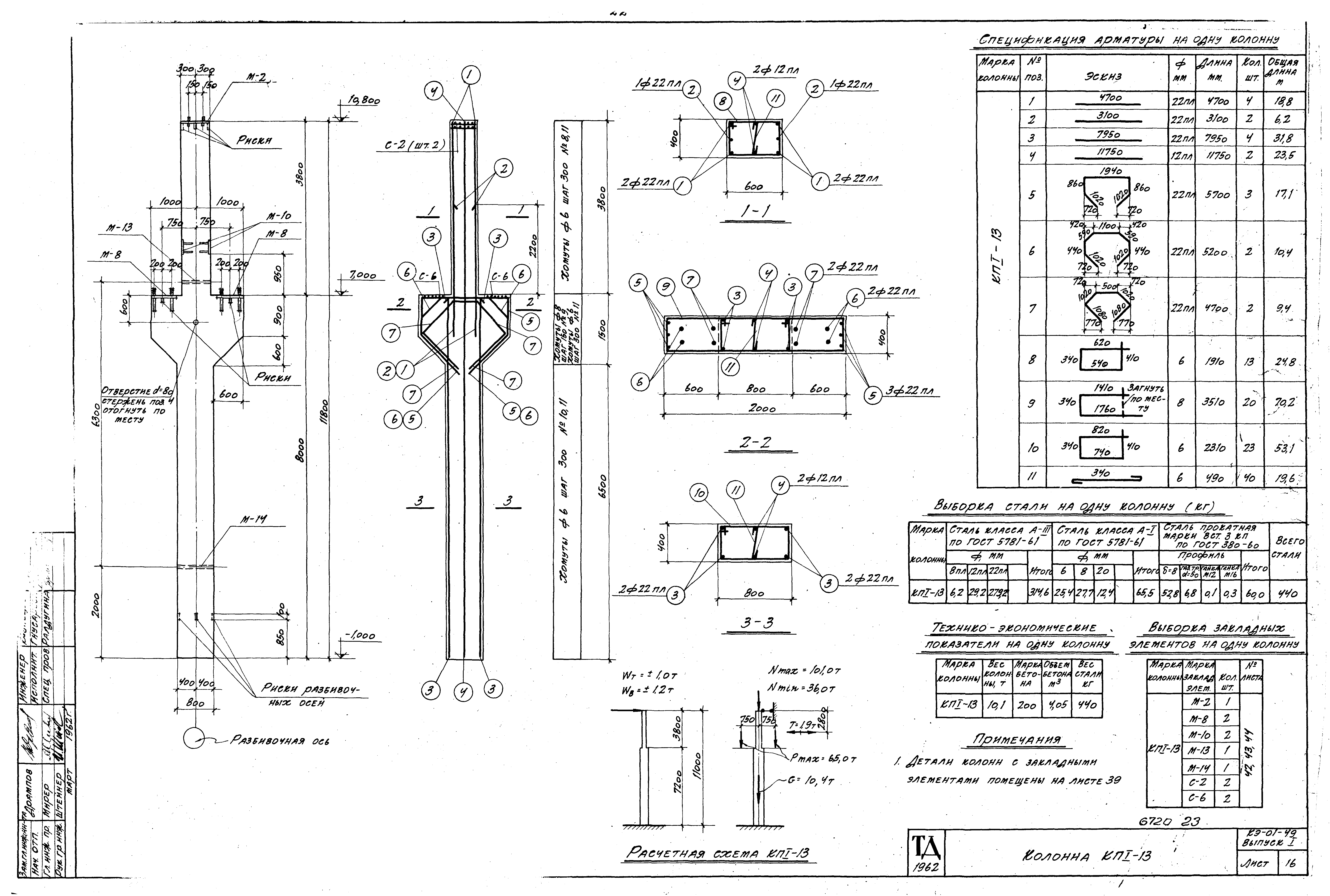
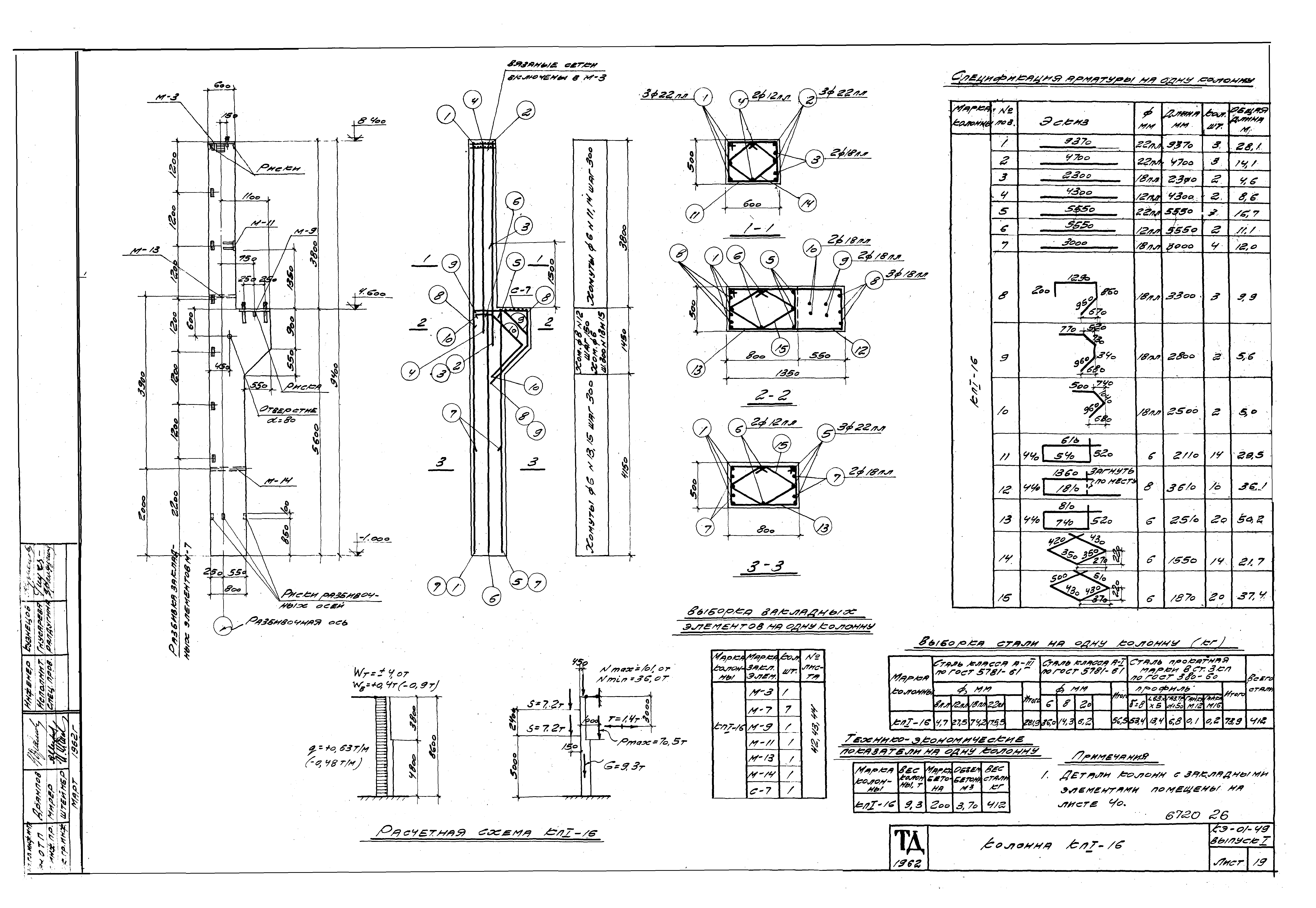
Скачать Серия КЭ-01-49 Выпуск I. Рабочие чертежи колонн для зданий с пролетами 18 и 24 м, оборудованных кранами грузоподъемностью 10 и 20 т при шаге крайних и средних колонн 6 и 12 мДата актуализации: 10.08.2017 Серия КЭ-01-49
Выпуск I. Рабочие чертежи колонн для зданий с пролетами 18 и 24 м, оборудованных кранами грузоподъемностью 10 и 20 т при шаге крайних и средних колонн 6 и 12 м| Обозначение: | Серия КЭ-01-49 | | Обозначение англ: | Series КЭ-01-49 | | Статус: | не действует | | Название рус.: | Выпуск I. Рабочие чертежи колонн для зданий с пролетами 18 и 24 м, оборудованных кранами грузоподъемностью 10 и 20 т при шаге крайних и средних колонн 6 и 12 м | | Дата добавления в базу: | 01.09.2013 | | Дата актуализации: | 05.05.2017 | | Дата окончания срока действия: | 01.02.1984 | | Разработан: | Промстройпроект Госстроя СССР НИИЖБ
| | Утверждён: | 25.08.1962 Госстрой СССР (Государственный комитет Совета Министров СССР по делам строительства) (USSR Gosstroy 247)
| | Расположен в: |
| | Чем заменён: | |
                                                               
|