Информационная система
«Ёшкин Кот»

Скачать базу одним архивом
Скачать обновления
История создания базы
Карта сайта

Скачать Серия КЭ-01-06 Выпуск VI. Сборные железобетонные колонны для одноэтажных производственных зданий с крановыми пролетами при сетке опор 12х18 и 12х24. Рабочие чертежи

Дата актуализации: 10.08.2017

Серия КЭ-01-06

Выпуск VI. Сборные железобетонные колонны для одноэтажных производственных зданий с крановыми пролетами при сетке опор 12х18 и 12х24. Рабочие чертежи

Обозначение: Серия КЭ-01-06
Обозначение англ: Series КЭ-01-06
Статус:не действует
Название рус.:Выпуск VI. Сборные железобетонные колонны для одноэтажных производственных зданий с крановыми пролетами при сетке опор 12х18 и 12х24. Рабочие чертежи
Дата добавления в базу:01.09.2013
Дата актуализации:05.05.2017
Оглавление:КЭ-01-06 Пояснительная записка
КЭ-01-06 Лист 1. Колонна КVI-1
КЭ-01-06 Лист 2. Колонна КVI-2
КЭ-01-06 Лист 3. Колонна КVI-3
КЭ-01-06 Лист 4. Колонна КVI-4
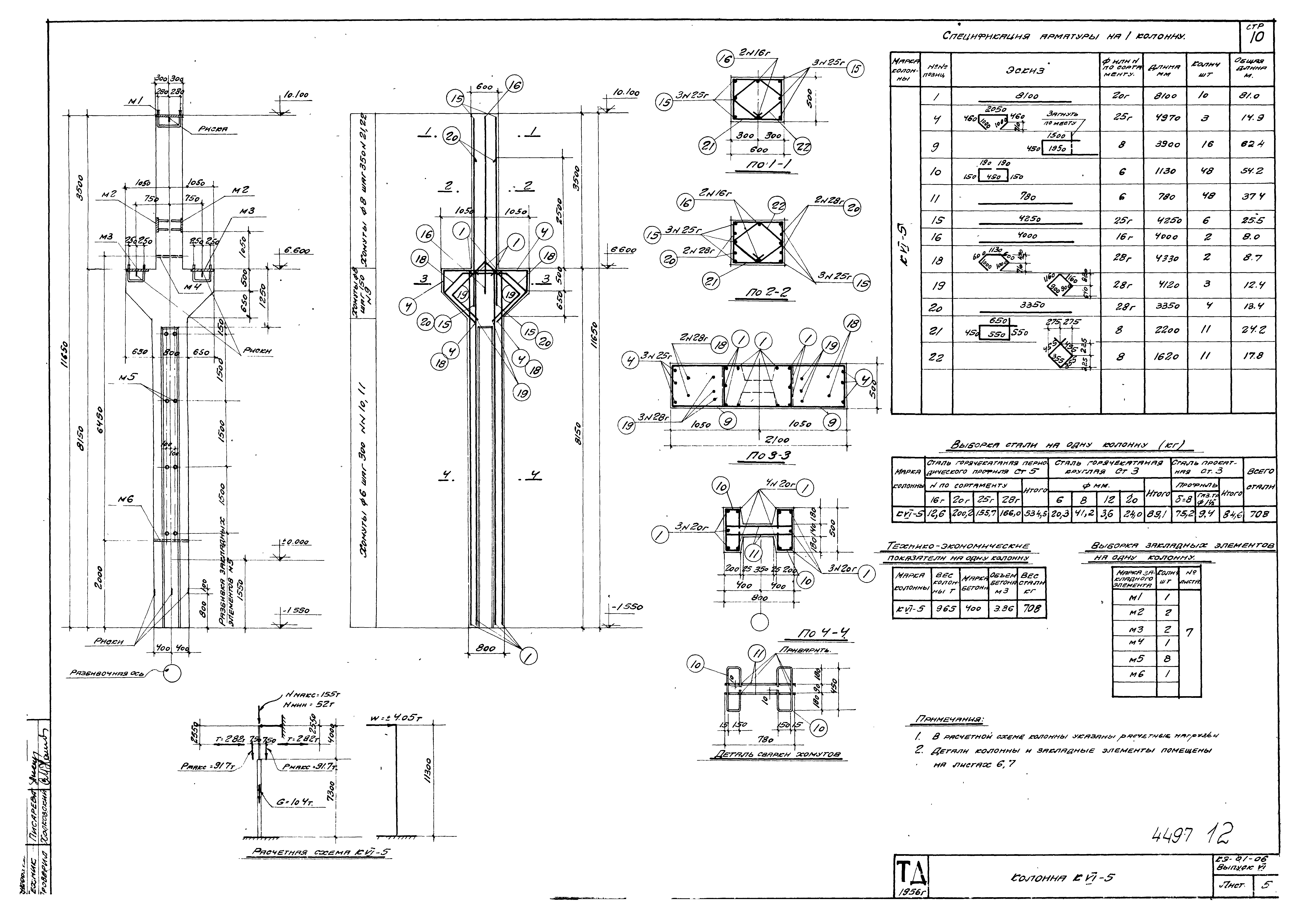
КЭ-01-06 Лист 5. Колонна КVI-5
КЭ-01-06 Лист 6. Детали колонн
КЭ-01-06 Лист 7. Закладные элементы М1-М7
КЭ-01-06 Лист 8. Примерный схематический план цеха с размещением вертикальных связей по колоннам; пояснительная записка
КЭ-01-06 Лист 9. Вертикальная связь по колоннам М8
КЭ-01-06 Лист 10. Вертикальная связь по колоннам М9
Разработан: Промстройпроект
Утверждён:15.01.1958 Госстрой СССР (Государственный комитет Совета Министров СССР по делам строительства) (USSR Gosstroy 10)
Расположен в:Техническая документация Строительство Справочные документы Типовые строительные конструкции, изделия и узлы Общероссийский строительный каталог Строительные конструкции, изделия и узлы зданий и сооружений для всех видов строительства Конструкции, изделия и узлы зданий Несущие конструкции одноэтажных зданий Колонны Железобетонные
Серия КЭ-01-06Серия КЭ-01-06Серия КЭ-01-06Серия КЭ-01-06Серия КЭ-01-06Серия КЭ-01-06Серия КЭ-01-06Серия КЭ-01-06Серия КЭ-01-06Серия КЭ-01-06Серия КЭ-01-06Серия КЭ-01-06Серия КЭ-01-06Серия КЭ-01-06Серия КЭ-01-06Серия КЭ-01-06Серия КЭ-01-06

© 2013 Ёшкин Кот :-) Карта сайта