Информационная система
«Ёшкин Кот»

Скачать базу одним архивом
Скачать обновления
История создания базы
Карта сайта

Скачать Серия КЭ-01-06 Выпуск II. Сборные железобетонные колонны одноэтажных производственных зданий. Рабочие чертежи

Дата актуализации: 10.08.2017

Серия КЭ-01-06

Выпуск II. Сборные железобетонные колонны одноэтажных производственных зданий. Рабочие чертежи

Обозначение: Серия КЭ-01-06
Обозначение англ: Series КЭ-01-06
Статус:не действует
Название рус.:Выпуск II. Сборные железобетонные колонны одноэтажных производственных зданий. Рабочие чертежи
Дата добавления в базу:01.09.2013
Дата актуализации:05.05.2017
Оглавление:КЭ-01-06 Пояснительная записка
КЭ-01-06 Лист 1. Колонна КII-1
КЭ-01-06 Лист 2. Колонна КII-2
КЭ-01-06 Лист 3. Колонна КII-3
КЭ-01-06 Лист 4. Колонна КII-4
КЭ-01-06 Лист 5. Колонна КII-5
КЭ-01-06 Лист 6. Колонна КII-6
КЭ-01-06 Лист 7. Колонна КII-7
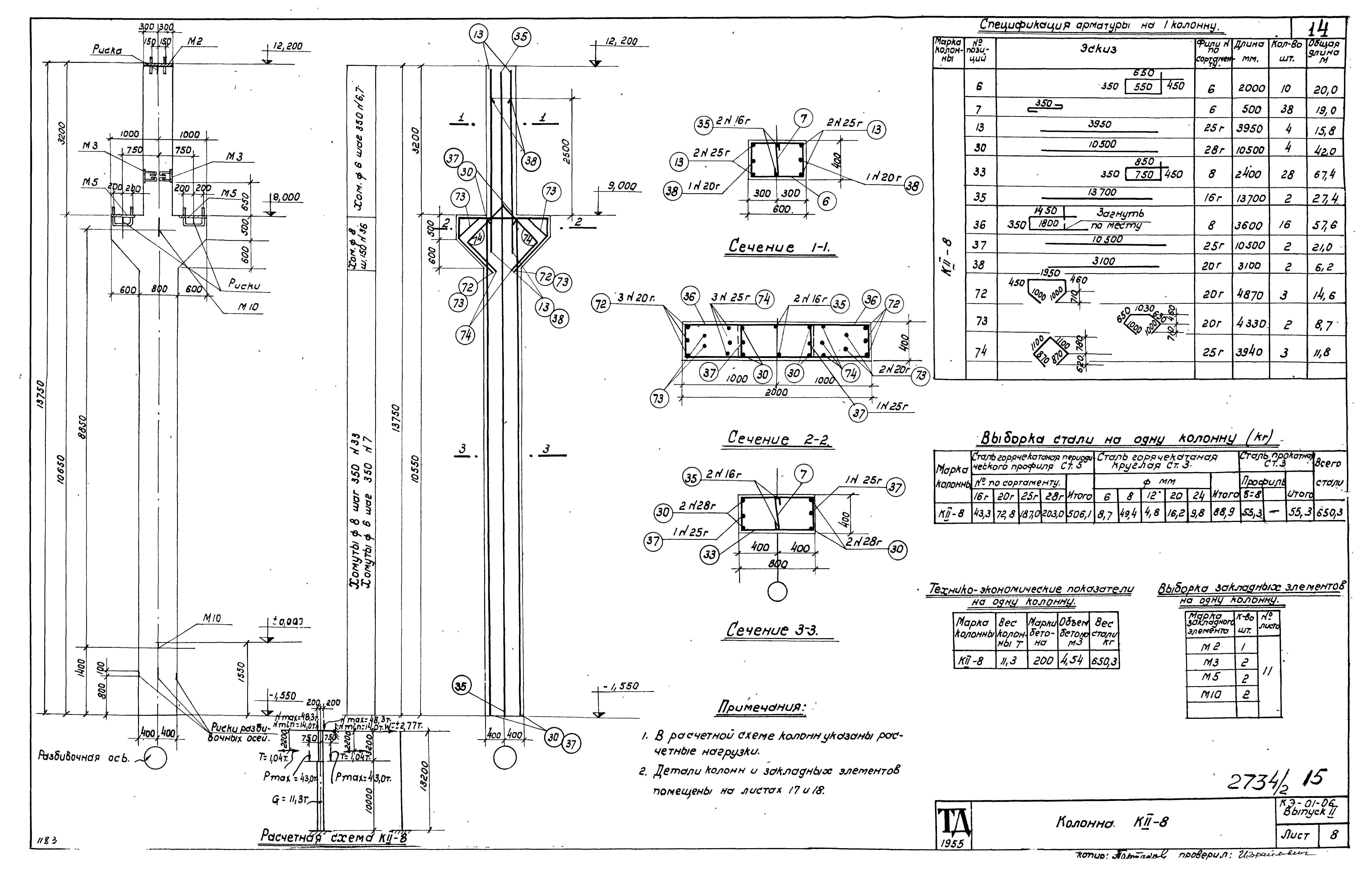
КЭ-01-06 Лист 8. Колонна КII-8
КЭ-01-06 Лист 9. Колонна КII-9
КЭ-01-06 Лист 10. Колонна КII-10
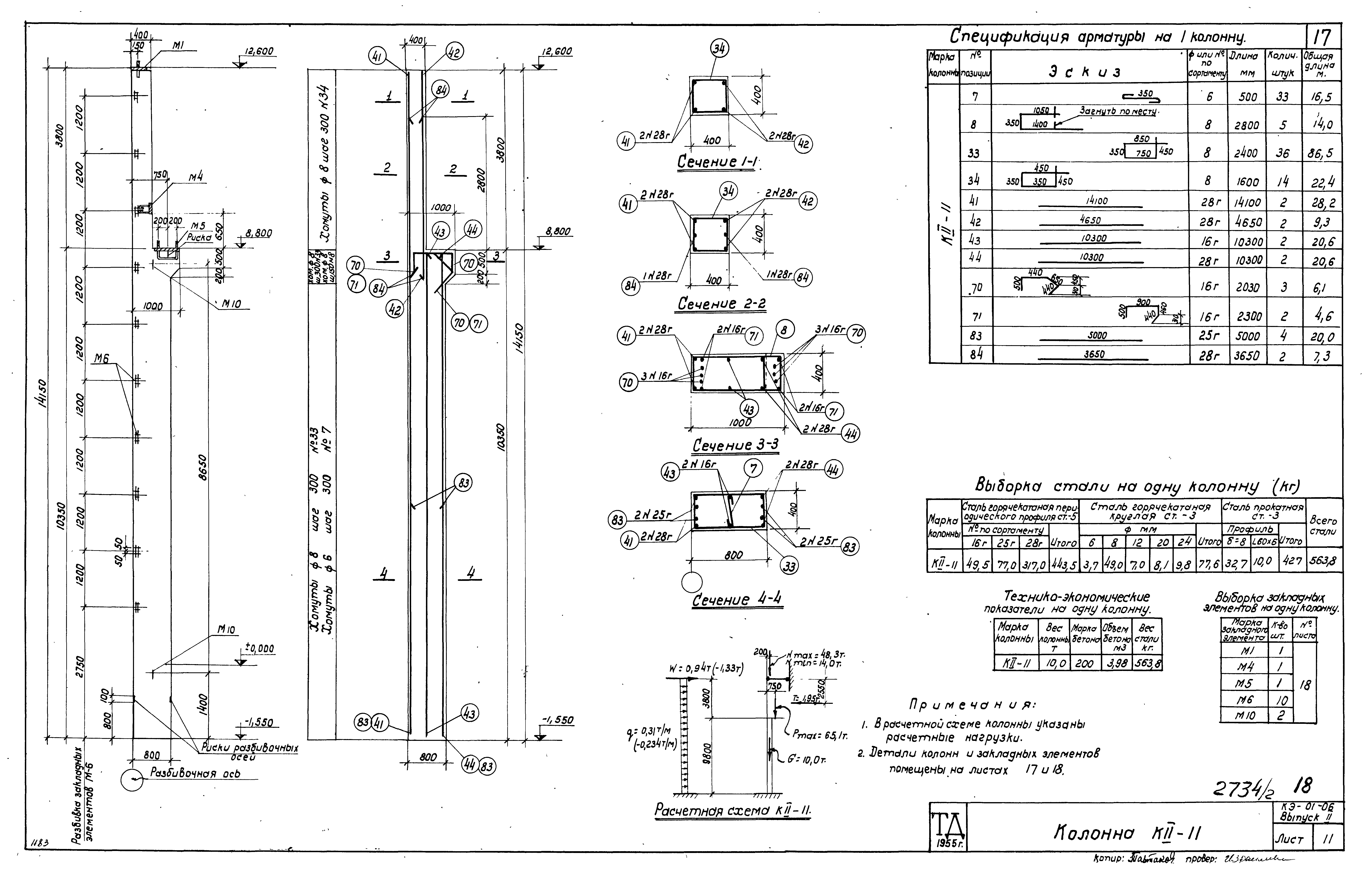
КЭ-01-06 Лист 11. Колонна КII-11
КЭ-01-06 Лист 12. Колонна КII-12
КЭ-01-06 Лист 13. Колонна КII-13
КЭ-01-06 Лист 14. Колонна КII-14
КЭ-01-06 Лист 15. Колонна КII-15
КЭ-01-06 Лист 16. Колонна КII-16
КЭ-01-06 Лист 17. Детали колонн и закладных элементов
КЭ-01-06 Лист 18. Закладные элементы M1-М6, М9, М10
КЭ-01-06 Лист 19. Закладные элементы М11, М12, М13 в колоннах: КII-2а, 4a, 6a, 8а, 10а, 12а, 14а, 16а
КЭ-01-06 Лист 20. Закладные элементы М14 в колоннах КII-1б по КII-16б
КЭ-01-06 Лист 21. Ключ к вертикальным связям по колоннам. Примерный схематический план цеха с размещением вертикальных связей
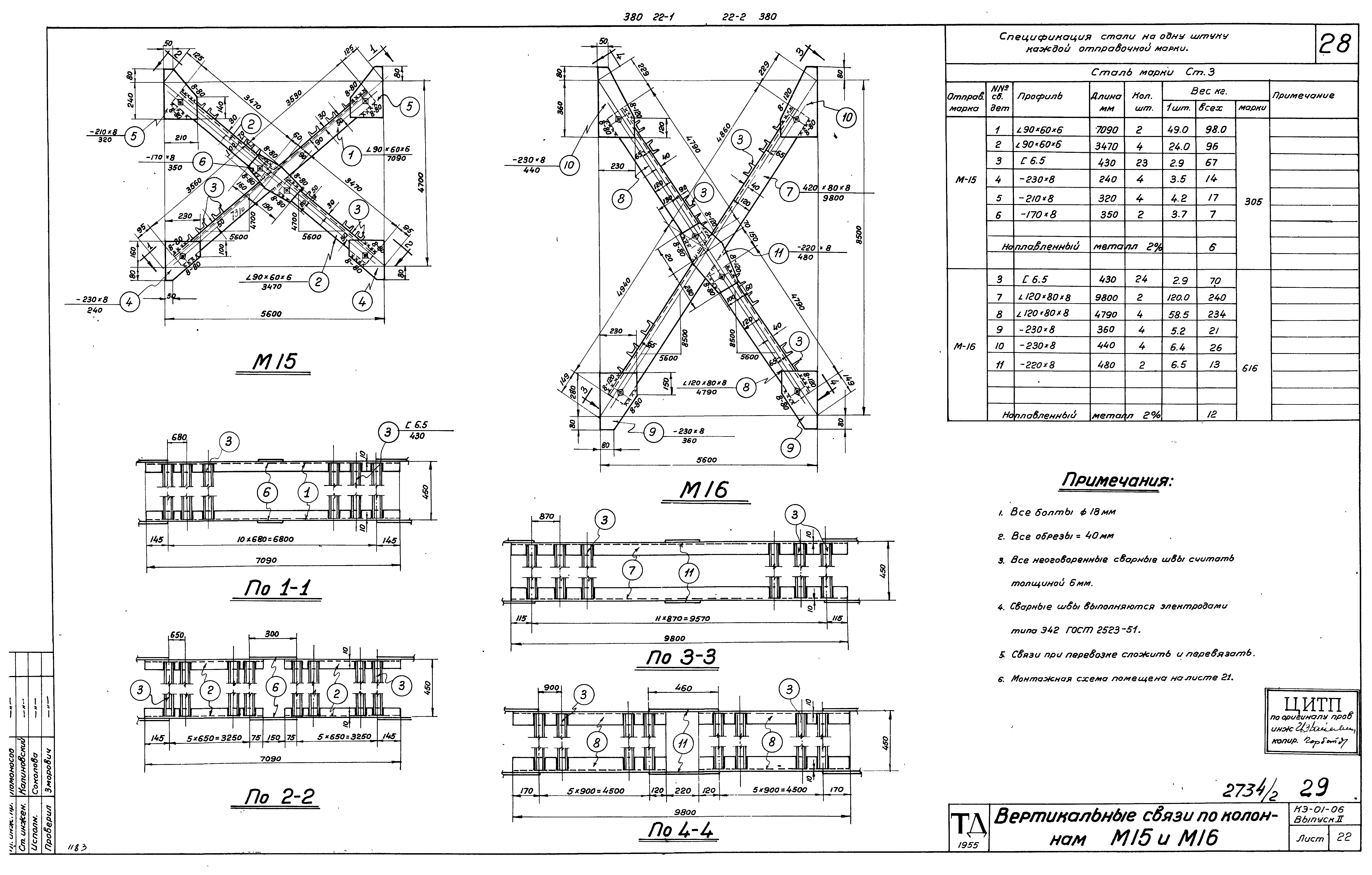
КЭ-01-06 Лист 22. Вертикальные связи по колоннам М15 и М16
КЭ-01-06 Лист 23. Вертикальная связь по колоннам М17
КЭ-01-06 Лист 24. Вертикальные связи по колоннам М18 и М19
КЭ-01-06 Лист 25. Колонны КII-17 и КII-18
КЭ-01-06 Лист 26. Колонны КII-19, КII-20, КII-21 и КII-22
КЭ-01-06 Лист 27. Колонны КII-23, КII-23б, КII-24 и КII-25
КЭ-01-06 Лист 28. Колонны КII-26, КII-26б и КII-27
КЭ-01-06 Лист 29. Нагрузки на фундаменты
Разработан: Промстройпроект Госстроя СССР
Утверждён:19.09.1955 Госстрой СССР (Государственный комитет Совета Министров СССР по делам строительства) (USSR Gosstroy )
Расположен в:Техническая документация Строительство Справочные документы Типовые строительные конструкции, изделия и узлы Общероссийский строительный каталог Строительные конструкции, изделия и узлы зданий и сооружений для всех видов строительства Конструкции, изделия и узлы зданий Несущие конструкции одноэтажных зданий Колонны Железобетонные
Серия КЭ-01-06Серия КЭ-01-06Серия КЭ-01-06Серия КЭ-01-06Серия КЭ-01-06Серия КЭ-01-06Серия КЭ-01-06Серия КЭ-01-06Серия КЭ-01-06Серия КЭ-01-06Серия КЭ-01-06Серия КЭ-01-06Серия КЭ-01-06Серия КЭ-01-06Серия КЭ-01-06Серия КЭ-01-06Серия КЭ-01-06Серия КЭ-01-06Серия КЭ-01-06Серия КЭ-01-06Серия КЭ-01-06Серия КЭ-01-06Серия КЭ-01-06Серия КЭ-01-06Серия КЭ-01-06Серия КЭ-01-06Серия КЭ-01-06Серия КЭ-01-06Серия КЭ-01-06Серия КЭ-01-06Серия КЭ-01-06Серия КЭ-01-06Серия КЭ-01-06Серия КЭ-01-06Серия КЭ-01-06Серия КЭ-01-06

© 2013 Ёшкин Кот :-) Карта сайта