Информационная система
«Ёшкин Кот»

Скачать базу одним архивом
Скачать обновления
История создания базы
Карта сайта

Скачать Серия ИИ-04-15 Выпуск 1. Панели лифтовых шахт и плиты покрытия. Опалубка и армирование

Дата актуализации: 10.08.2017

Серия ИИ-04-15

Выпуск 1. Панели лифтовых шахт и плиты покрытия. Опалубка и армирование

Обозначение: Серия ИИ-04-15
Обозначение англ: Series ИИ-04-15
Статус:не действует
Название рус.:Выпуск 1. Панели лифтовых шахт и плиты покрытия. Опалубка и армирование
Дата добавления в базу:01.09.2013
Дата актуализации:05.05.2017
Дата введения:01.03.1974
Дата окончания срока действия:01.04.1982
Оглавление:ИИ-04-15 Содержание
ИИ-04-15 Пояснительная записка
ИИ-04-15 Лист 1. Номенклатура
ИИ-04-15 Лист 2. Номенклатура
ИИ-04-15 Лист 3. Номенклатура
ИИ-04-15 Лист 4. Номенклатура
ИИ-04-15 Лист 5. Опалубка и армирование панели ШЛ-17-33
ИИ-04-15 Лист 6. Опалубка и армирование панели ШЛ-17-33-1
ИИ-04-15 Лист 7. Опалубка и армирование панели ШЛ-17-33-1-1
ИИ-04-15 Лист 8. Опалубка и армирование панели ШЛ-17-33-2
ИИ-04-15 Лист 9. Опалубка и армирование панели ШЛ-17-33-3
ИИ-04-15 Лист 10. Опалубка и армирование панели ШЛ-17-36
ИИ-04-15 Лист 11. Опалубка и армирование панели ШЛ-17-36-1
ИИ-04-15 Лист 12. Опалубка и армирование панели ШЛ-17-36-1-1
ИИ-04-15 Лист 13. Опалубка и армирование панели ШЛ-17-36-2
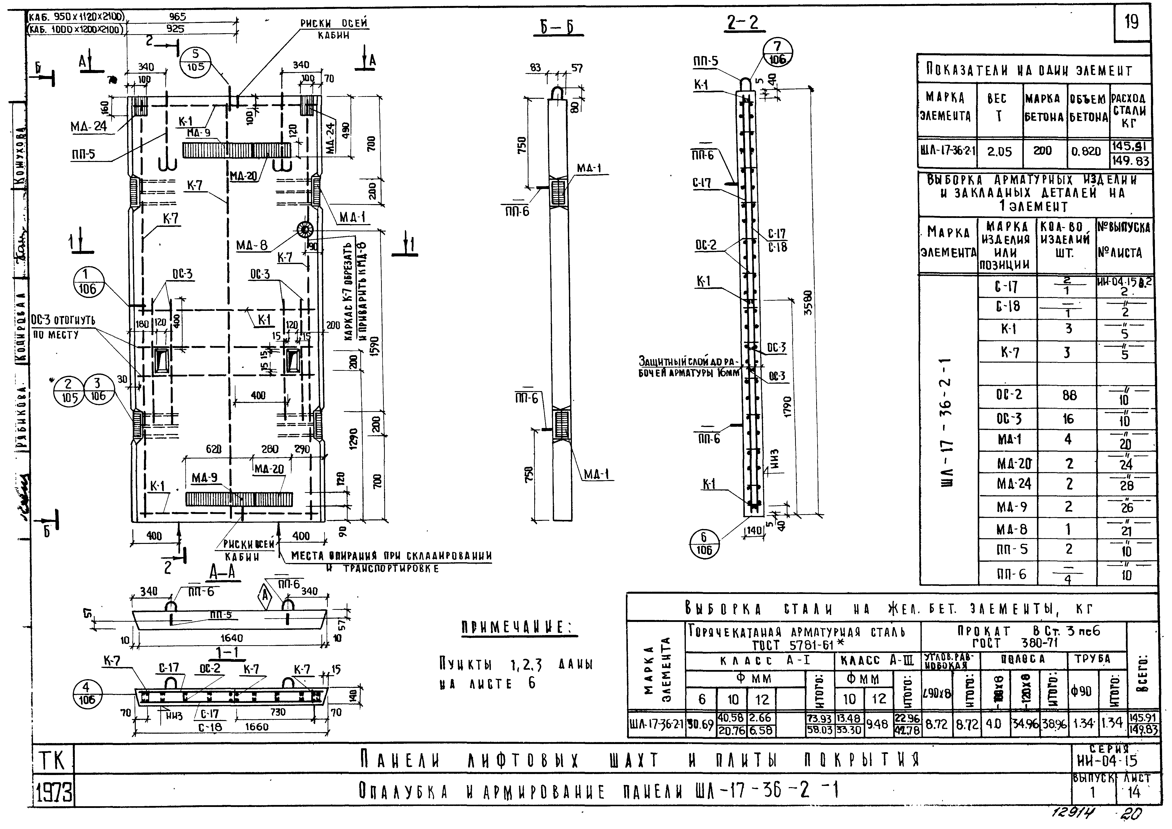
ИИ-04-15 Лист 14. Опалубка и армирование панели ШЛ-17-36-2-1
ИИ-04-15 Лист 15. Опалубка и армирование панели ШЛ-17-36-3
ИИ-04-15 Лист 16. Опалубка и армирование панели ШЛ-17-36-3-1
ИИ-04-15 Лист 17. Опалубка и армирование панели ШЛ-17-42
ИИ-04-15 Лист 18. Опалубка и армирование панели ШЛ-17-42-1
ИИ-04-15 Лист 19. Опалубка и армирование панели ШЛ-17-42-1-1
ИИ-04-15 Лист 20. Опалубка и армирование панели ШЛ-17-42-2
ИИ-04-15 Лист 21. Опалубка и армирование панели ШЛ-17-42-2-1
ИИ-04-15 Лист 22. Опалубка и армирование панели ШЛ-17-42-3
ИИ-04-15 Лист 23. Опалубка и армирование панели ШЛ-17-42-3-1
ИИ-04-15 Лист 24. Опалубка и армирование панели ШЛ-20-33-1
ИИ-04-15 Лист 25. Опалубка и армирование панели ШЛ-20-33-2
ИИ-04-15 Лист 26. Опалубка и армирование панели ШЛ-20-36-1
ИИ-04-15 Лист 27. Опалубка и армирование панели ШЛ-20-36-1-1
ИИ-04-15 Лист 28. Опалубка и армирование панели ШЛ-20-36-2
ИИ-04-15 Лист 29. Опалубка и армирование панели ШЛ-20-36-2-1
ИИ-04-15 Лист 30. Опалубка и армирование панели ШЛ-20-42-1
ИИ-04-15 Лист 31. Опалубка и армирование панели ШЛ-20-42-1-1
ИИ-04-15 Лист 32. Опалубка и армирование панели ШЛ-20-42-2
ИИ-04-15 Лист 33. Опалубка и армирование панели ШЛ-20-42-2-1
ИИ-04-15 Лист 34. Опалубка и армирование панели ШЛ-22-33
ИИ-04-15 Лист 35. Опалубка и армирование панели ШЛ-22-33-1
ИИ-04-15 Лист 36. Опалубка и армирование панели ШЛ-22-33-1-1
ИИ-04-15 Лист 37. Опалубка и армирование панели ШЛ-22-33-2
ИИ-04-15 Лист 38. Опалубка и армирование панели ШЛ-22-36
ИИ-04-15 Лист 39. Опалубка и армирование панели ШЛ-22-36-1
ИИ-04-15 Лист 40. Опалубка и армирование панели ШЛ-22-36-1-1
ИИ-04-15 Лист 41. Опалубка и армирование панели ШЛ-22-36-2
ИИ-04-15 Лист 42. Опалубка и армирование панели ШЛ-22-36-2-1
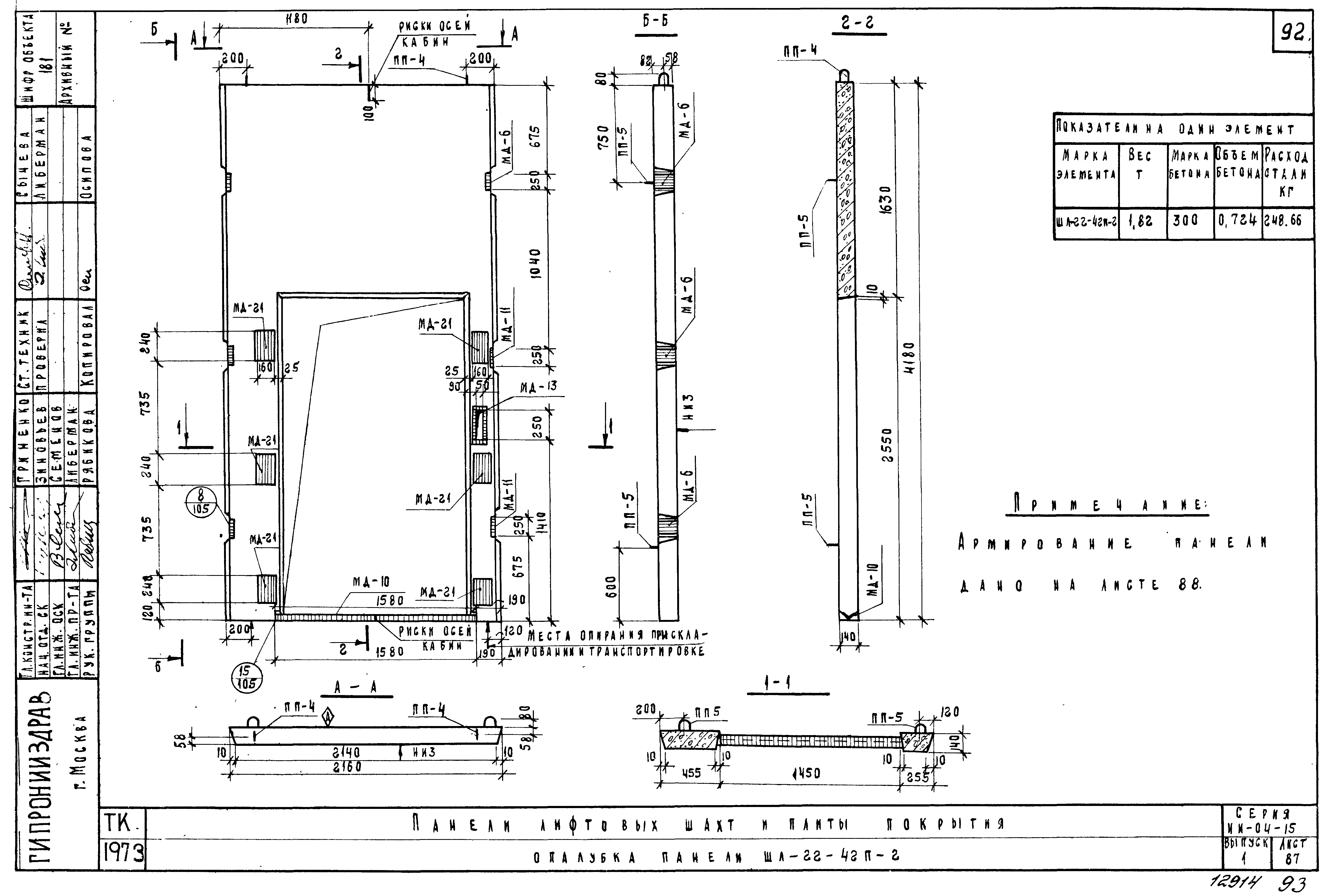
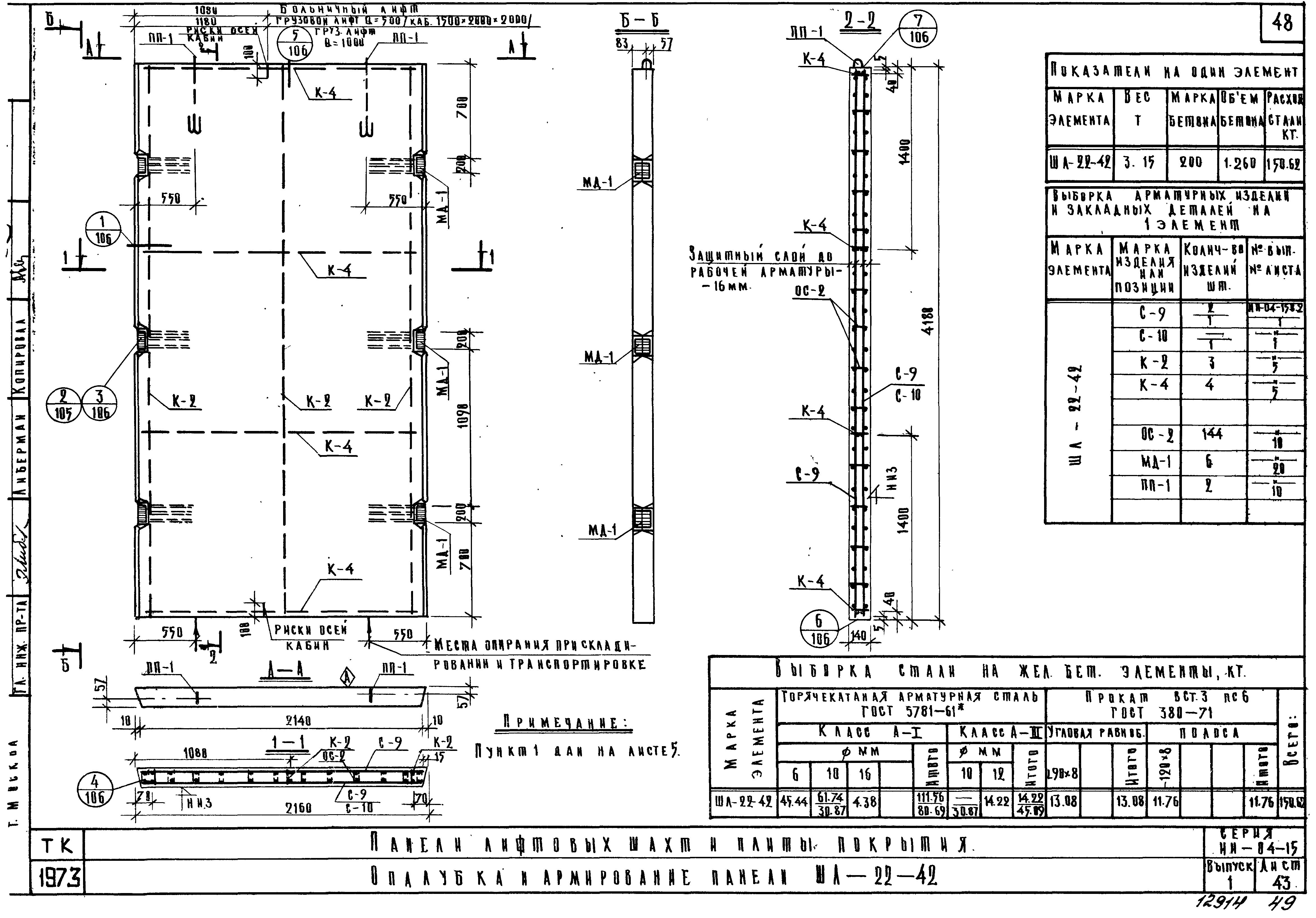
ИИ-04-15 Лист 43. Опалубка и армирование панели ШЛ-22-42
ИИ-04-15 Лист 44. Опалубка и армирование панели ШЛ-22-42-1
ИИ-04-15 Лист 45. Опалубка и армирование панели ШЛ-22-42-1-1
ИИ-04-15 Лист 46. Опалубка и армирование панели ШЛ-22-42-2
ИИ-04-15 Лист 47. Опалубка и армирование панели ШЛ-22-42-2-1
ИИ-04-15 Лист 48. Опалубка и армирование панели ШЛ-27-33-1
ИИ-04-15 Лист 49. Опалубка и армирование панели ШЛ-27-36-1
ИИ-04-15 Лист 50. Опалубка и армирование панели ШЛ-27-36-1-1
ИИ-04-15 Лист 51. Опалубка и армирование панели ШЛ-27-42-1
ИИ-04-15 Лист 52. Опалубка и армирование панели ШЛ-27-42-1-1
ИИ-04-15 Лист 53. Опалубка панели ШЛ-17-33П
ИИ-04-15 Лист 54. Армирование панели ШЛ-17-33П
ИИ-04-15 Лист 55. Опалубка панели ШЛ-17-36П
ИИ-04-15 Лист 56. Армирование панели ШЛ-17-36П
ИИ-04-15 Лист 57. Опалубка панели ШЛ-17-42П
ИИ-04-15 Лист 58. Армирование панели ШЛ-17-42П
ИИ-04-15 Лист 59. Опалубка панели ШЛ-17-33П-1
ИИ-04-15 Лист 60. Армирование панели ШЛ-17-33П-1
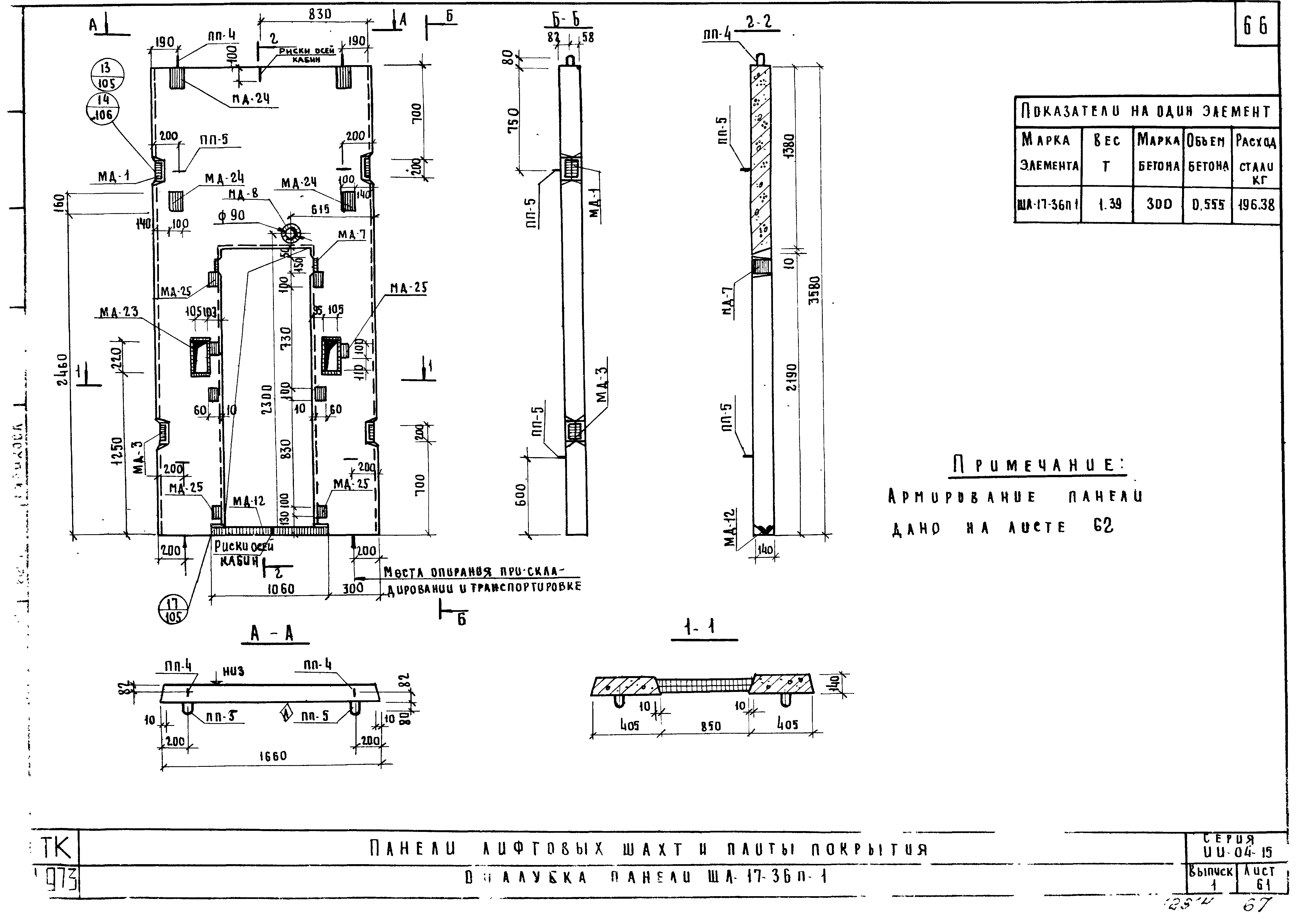
ИИ-04-15 Лист 61. Опалубка панели ШЛ-17-36П-1
ИИ-04-15 Лист 62. Армирование панели ШЛ-17-36П-1
ИИ-04-15 Лист 63. Опалубка панели ШЛ-17-42П-1
ИИ-04-15 Лист 64. Армирование панели ШЛ-17-42П-1
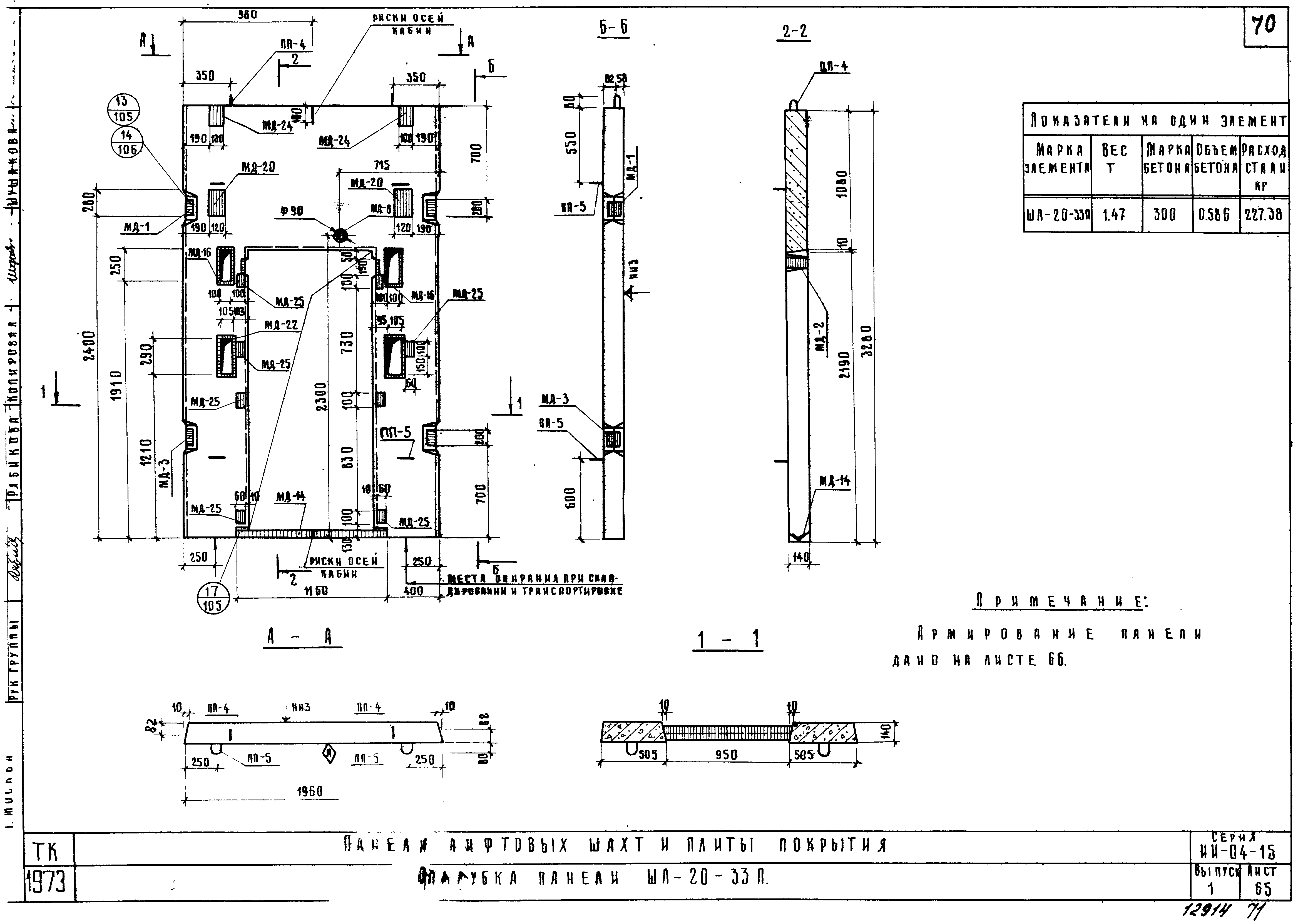
ИИ-04-15 Лист 65. Опалубка панели ШЛ-20-33П
ИИ-04-15 Лист 66. Армирование панели ШЛ-20-33П
ИИ-04-15 Лист 67. Опалубка панели ШЛ-20-36П
ИИ-04-15 Лист 68. Армирование панели ШЛ-20-36П
ИИ-04-15 Лист 69. Опалубка панели ШЛ-20-42П
ИИ-04-15 Лист 70. Армирование панели ШЛ-20-42П
ИИ-04-15 Лист 71. Опалубка панели ШЛ-22-33П
ИИ-04-15 Лист 72. Армирование панели ШЛ-22-33П
ИИ-04-15 Лист 73. Опалубка панели ШЛ-22-36П
ИИ-04-15 Лист 74. Армирование панели ШЛ-22-36П
ИИ-04-15 Лист 75. Опалубка панели ШЛ-22-42П
ИИ-04-15 Лист 76. Армирование панели ШЛ-22-42П
ИИ-04-15 Лист 77. Опалубка панели ШЛ-22-33П-1
ИИ-04-15 Лист 78. Армирование панели ШЛ-22-33П-1
ИИ-04-15 Лист 79. Опалубка панели ШЛ-22-36П-1
ИИ-04-15 Лист 80. Армирование панели ШЛ-22-36П-1
ИИ-04-15 Лист 81. Опалубка панели ШЛ-22-42П-1
ИИ-04-15 Лист 82. Армирование панели ШЛ-22-42П-1
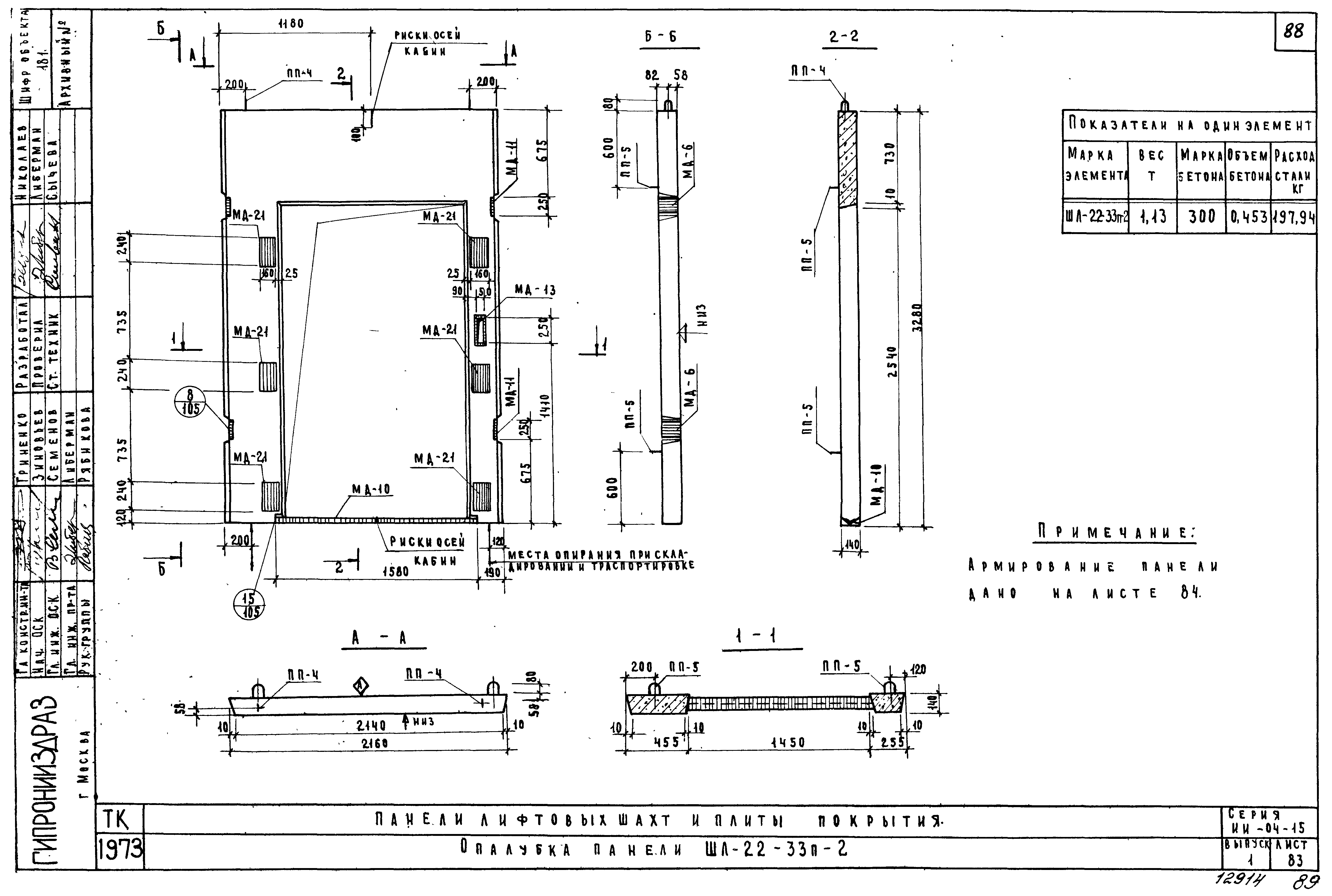
ИИ-04-15 Лист 83. Опалубка панели ШЛ-22-33П-2
ИИ-04-15 Лист 84. Армирование панели ШЛ-22-33П-2
ИИ-04-15 Лист 85. Опалубка панели ШЛ-22-36П-2
ИИ-04-15 Лист 86. Армирование панели ШЛ-22-36П-2
ИИ-04-15 Лист 87. Опалубка панели ШЛ-22-42П-2
ИИ-04-15 Лист 88. Армирование панели ШЛ-22-42П-2
ИИ-04-15 Лист 89. Опалубка плиты ПЛ-20-18
ИИ-04-15 Лист 90. Армирование плиты ПЛ-20-18
ИИ-04-15 Лист 91. Опалубка плиты ПЛ-20-18-1
ИИ-04-15 Лист 92. Армирование плиты ПЛ-20-18-1
ИИ-04-15 Лист 93. Опалубка плиты ПЛ-20-19
ИИ-04-15 Лист 94. Армирование плиты ПЛ-20-19
ИИ-04-15 Лист 95. Опалубка плиты ПЛ-23-20
ИИ-04-15 Лист 96. Армирование плиты ПЛ-23-20
ИИ-04-15 Лист 97. Опалубка плиты ПЛ-23-20-1
ИИ-04-15 Лист 98. Армирование плиты ПЛ-23-20-1
ИИ-04-15 Лист 99. Опалубка плиты ПЛ-25-24
ИИ-04-15 Лист 100. Армирование плиты ПЛ-25-24
ИИ-04-15 Лист 101. Опалубка плиты ПЛ-25-24-1
ИИ-04-15 Лист 102. Армирование плиты ПЛ-25-24-1
ИИ-04-15 Лист 103. Опалубка плиты ПЛ-30-22
ИИ-04-15 Лист 104. Армирование плиты ПЛ-30-22
ИИ-04-15 Лист 105. Узлы 2,8,13,15,16,17
ИИ-04-15 Лист 106. Узлы 1,3,4,5,6,7,14. Разрезы 5-5,6-6
ИИ-04-15 Лист 107. Узлы 9,10,11
ИИ-04-15 Лист 108. Разрезы 26-26,27-27. Узлы 18,19,20. Детали установки ПП-2,ПП-5,ПП-7
ИИ-04-15 Лист 109. Разрезы 8-8,9-9,10-10,11-11,12-12. Разрезы 16-16,17-17,21-21
ИИ-04-15 Лист 110. Разрезы 7-7,13-13,14-14,15-15,28-28,29-29
ИИ-04-15 Лист 111. Разрезы 24-24,25-25,30-30÷33-33. Деталь установки отдельных стержней
Разработан: ГипроНИИздрав Минздрава СССР
Утверждён:11.02.1974 Государственный комитет по гражданскому строительству (20)
Расположен в:Техническая документация Строительство Справочные документы Типовые строительные конструкции, изделия и узлы Общероссийский строительный каталог Строительные конструкции, изделия и узлы зданий и сооружений для всех видов строительства Конструкции, изделия и узлы зданий Несущие конструкции двухэтажных и многоэтажных зданий Каркасные здания
Чем заменён:
Серия ИИ-04-15Серия ИИ-04-15Серия ИИ-04-15Серия ИИ-04-15Серия ИИ-04-15Серия ИИ-04-15Серия ИИ-04-15Серия ИИ-04-15Серия ИИ-04-15Серия ИИ-04-15Серия ИИ-04-15Серия ИИ-04-15Серия ИИ-04-15Серия ИИ-04-15Серия ИИ-04-15Серия ИИ-04-15Серия ИИ-04-15Серия ИИ-04-15Серия ИИ-04-15Серия ИИ-04-15Серия ИИ-04-15Серия ИИ-04-15Серия ИИ-04-15Серия ИИ-04-15Серия ИИ-04-15Серия ИИ-04-15Серия ИИ-04-15Серия ИИ-04-15Серия ИИ-04-15Серия ИИ-04-15Серия ИИ-04-15Серия ИИ-04-15Серия ИИ-04-15Серия ИИ-04-15Серия ИИ-04-15Серия ИИ-04-15Серия ИИ-04-15Серия ИИ-04-15Серия ИИ-04-15Серия ИИ-04-15Серия ИИ-04-15Серия ИИ-04-15Серия ИИ-04-15Серия ИИ-04-15Серия ИИ-04-15Серия ИИ-04-15Серия ИИ-04-15Серия ИИ-04-15Серия ИИ-04-15Серия ИИ-04-15Серия ИИ-04-15Серия ИИ-04-15Серия ИИ-04-15Серия ИИ-04-15Серия ИИ-04-15Серия ИИ-04-15Серия ИИ-04-15Серия ИИ-04-15Серия ИИ-04-15Серия ИИ-04-15Серия ИИ-04-15Серия ИИ-04-15Серия ИИ-04-15Серия ИИ-04-15Серия ИИ-04-15Серия ИИ-04-15Серия ИИ-04-15Серия ИИ-04-15Серия ИИ-04-15Серия ИИ-04-15Серия ИИ-04-15Серия ИИ-04-15Серия ИИ-04-15Серия ИИ-04-15Серия ИИ-04-15Серия ИИ-04-15Серия ИИ-04-15Серия ИИ-04-15Серия ИИ-04-15Серия ИИ-04-15Серия ИИ-04-15Серия ИИ-04-15Серия ИИ-04-15Серия ИИ-04-15Серия ИИ-04-15Серия ИИ-04-15Серия ИИ-04-15Серия ИИ-04-15Серия ИИ-04-15Серия ИИ-04-15Серия ИИ-04-15Серия ИИ-04-15Серия ИИ-04-15Серия ИИ-04-15Серия ИИ-04-15Серия ИИ-04-15Серия ИИ-04-15Серия ИИ-04-15Серия ИИ-04-15Серия ИИ-04-15Серия ИИ-04-15Серия ИИ-04-15Серия ИИ-04-15Серия ИИ-04-15Серия ИИ-04-15Серия ИИ-04-15Серия ИИ-04-15Серия ИИ-04-15Серия ИИ-04-15Серия ИИ-04-15Серия ИИ-04-15Серия ИИ-04-15Серия ИИ-04-15Серия ИИ-04-15Серия ИИ-04-15Серия ИИ-04-15Серия ИИ-04-15Серия ИИ-04-15

© 2013 Ёшкин Кот :-) Карта сайта