| ||||||||||||||||||||||||||||
Скачать Серия ИИ-04-15 Выпуск 0. Указания по применению изделий. Монтажные узлыДата актуализации: 10.08.2017
|
| Обозначение: | Серия ИИ-04-15 |
| Обозначение англ: | Series ИИ-04-15 |
| Статус: | не действует |
| Название рус.: | Выпуск 0. Указания по применению изделий. Монтажные узлы |
| Дата добавления в базу: | 01.09.2013 |
| Дата актуализации: | 05.05.2017 |
| Дата окончания срока действия: | 01.04.1982 |
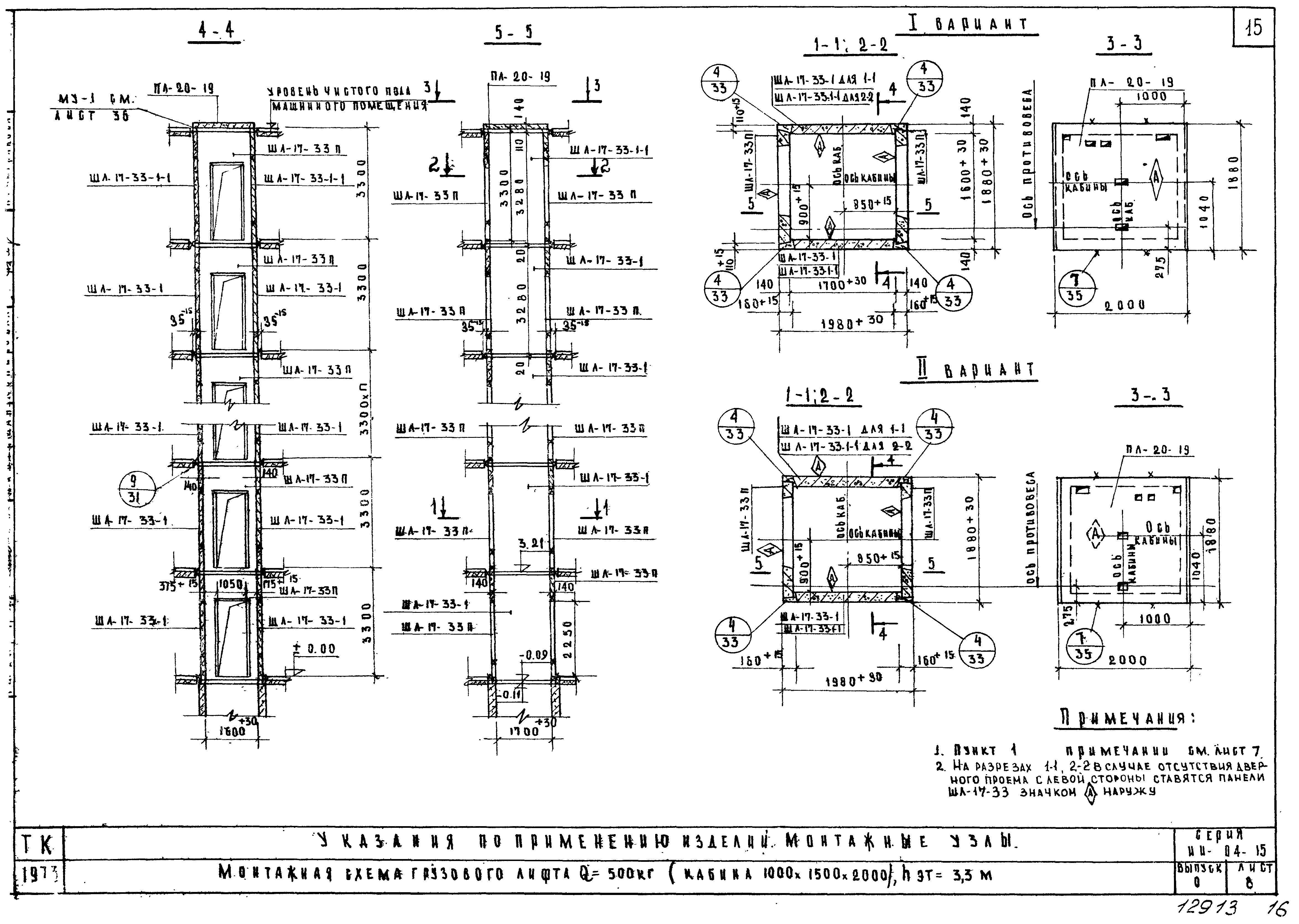
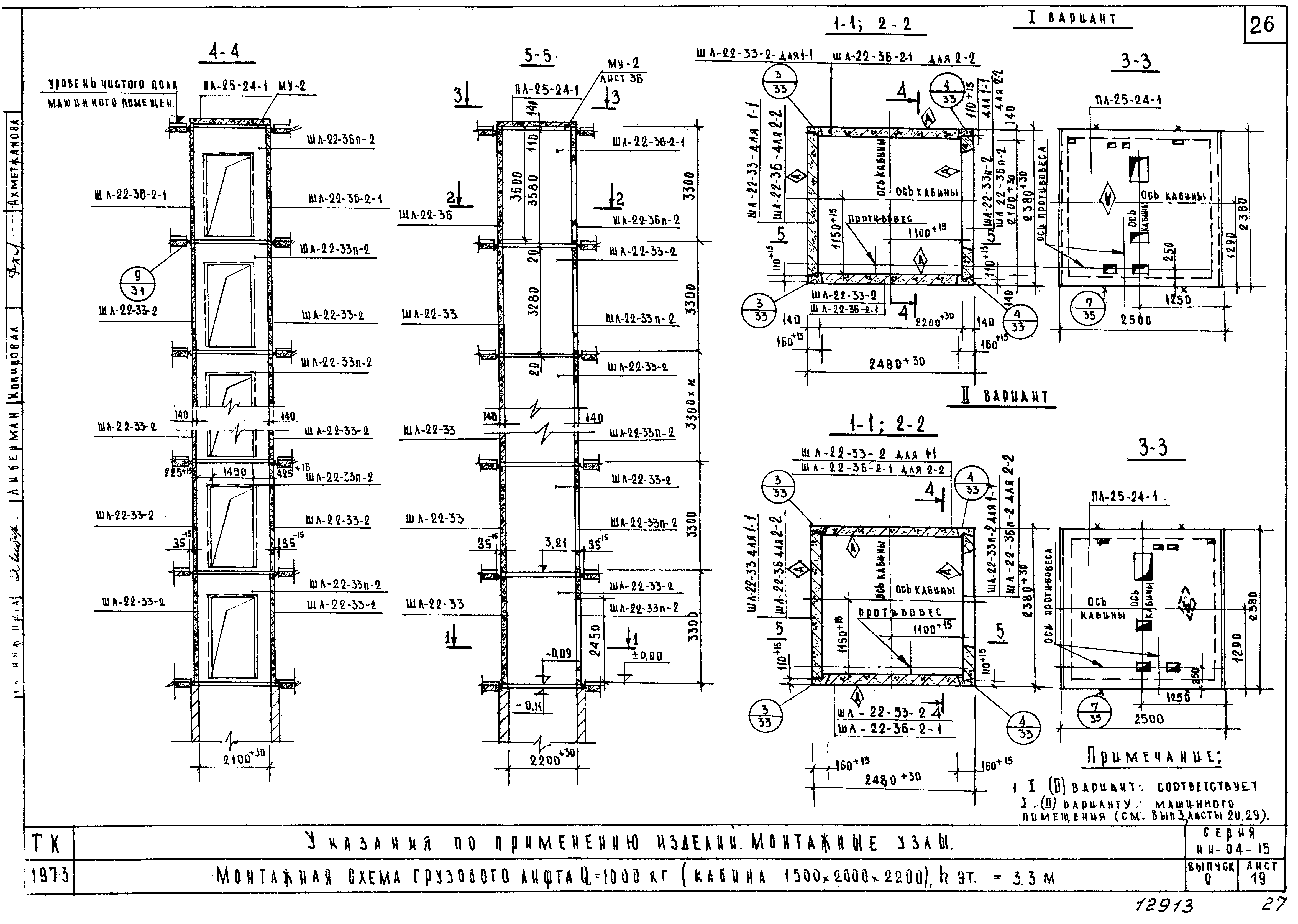
| Оглавление: | ИИ-04-15 Содержание ИИ-04-15 Пояснительная записка ИИ-04-15 Лист 1. Монтажная схема больничного лифта Q=500 кг (кабина 1500х2500х2100), hэт=3.3 м ИИ-04-15 Лист 2. Монтажная схема больничного лифта Q=500 кг (кабина 1500х2500х2100), hэт=3.3 м ИИ-04-15 Лист 3. Монтажная схема больничного лифта Q=500 кг (кабина 1500х2500х2100), hэт=3.6 м ИИ-04-15 Лист 4. Монтажная схема больничного лифта Q=500 кг (кабина 1500х2500х2100), hэт=3.6 м ИИ-04-15 Лист 5. Монтажная схема больничного лифта Q=500 кг (кабина 1500х2500х2100), hэт=4.2 м ИИ-04-15 Лист 6. Монтажная схема больничного лифта Q=500 кг (кабина 1500х2500х2100), hэт=4.2 м ИИ-04-15 Лист 7. Монтажная схема грузового лифта Q=500 кг (кабина 1000х1500х2000), hэт=3.3 м ИИ-04-15 Лист 8. Монтажная схема грузового лифта Q=500 кг (кабина 1000х1500х2000), hэт=3.3 м ИИ-04-15 Лист 9. Монтажная схема грузового лифта Q=500 кг (кабина 1000х1500х2000), hэт=3.6 м ИИ-04-15 Лист 10. Монтажная схема грузового лифта Q=500 кг (кабина 1000х1500х2000), hэт=3.6 м ИИ-04-15 Лист 11. Монтажная схема грузового лифта Q=500 кг (кабина 1000х1500х2000), hэт=4.2 м ИИ-04-15 Лист 12. Монтажная схема грузового лифта Q=500 кг (кабина 1000х1500х2000), hэт=4.2 м ИИ-04-15 Лист 13. Монтажная схема грузового лифта Q=500 кг (кабина 1500х2000х2000), hэт=3.3 м ИИ-04-15 Лист 14. Монтажная схема грузового лифта Q=500 кг (кабина 1500х2000х2000), hэт=3.3 м ИИ-04-15 Лист 15. Монтажная схема грузового лифта Q=500 кг (кабина 1500х2000х2000), hэт=3.6 м ИИ-04-15 Лист 16. Монтажная схема грузового лифта Q=500 кг (кабина 1500х2000х2000), hэт=3.6 м ИИ-04-15 Лист 17. Монтажная схема грузового лифта Q=500 кг (кабина 1500х2000х2000), hэт=4.2 м ИИ-04-15 Лист 18. Монтажная схема грузового лифта Q=500 кг (кабина 1500х2000х2000), hэт=4.2 м ИИ-04-15 Лист 19. Монтажная схема грузового лифта Q=1000 кг (кабина 1500х2000х2200), hэт=3.3 м ИИ-04-15 Лист 20. Монтажная схема грузового лифта Q=1000 кг (кабина 1500х2000х2200), hэт=3.3 м ИИ-04-15 Лист 21. Монтажная схема грузового лифта Q=1000 кг (кабина 1500х2000х2200), hэт=3.6 м ИИ-04-15 Лист 22. Монтажная схема грузового лифта Q=1000 кг (кабина 1500х2000х2200), hэт=3.6 м ИИ-04-15 Лист 23. Монтажная схема грузового лифта Q=1000 кг (кабина 1500х2000х2200), hэт=4.2 м ИИ-04-15 Лист 24. Монтажная схема грузового лифта Q=1000 кг (кабина 1500х2000х2200), hэт=4.2 м ИИ-04-15 Лист 25. Монтажная схема пассажирских лифтов Q=320 кг (кабина 1000х1200х2100 и 980х1120х2100), hэт=3.3 м ИИ-04-15 Лист 26. Монтажная схема пассажирских лифтов Q=320 кг (кабина 1000х1200х2100 и 980х1120х2100), hэт=3.6 м ИИ-04-15 Лист 27. Монтажная схема пассажирских лифтов Q=320 кг (кабина 1000х1200х2100 и 980х1120х2100), hэт=4.2 м ИИ-04-15 Лист 28. Монтажная схема пассажирских лифтов Q=500 кг (кабина 1200х1400х2100 и 1060х1420х2100), hэт=3.3 м ИИ-04-15 Лист 29. Монтажная схема пассажирских лифтов Q=500 кг (кабина 1200х1400х2100 и 1060х1420х2100), hэт=3.6 м ИИ-04-15 Лист 30. Монтажная схема пассажирских лифтов Q=500 кг (кабина 1200х1400х2100 и 1060х1420х2100), hэт=4.2 м ИИ-04-15 Лист 31. Крепление лифтовых шахт к перекрытиям ИИ-04-15 Лист 32. Узлы 1 и 2 ИИ-04-15 Лист 33. Узлы 3 и 4 ИИ-04-15 Лист 34. Узлы 5 и 8 ИИ-04-15 Лист 35. Узлы 6 и 7 ИИ-04-15 Лист 36. Монолитные железобетонные участки: МУ-1;МУ-2;МУ-3 ИИ-04-15 Лист 37. Примеры компоновки лифтовых шахт при различных сетках колонн - схемы 1-9 ИИ-04-15 Лист 38. Примеры компоновки лифтовых шахт при различных сетках колонн - схемы 10-15 ИИ-04-15 Лист 39. Примеры компоновки лифтовых шахт при различных сетках колонн - схемы 16-20 ИИ-04-15 Лист 40. Пример решения помещения 2х больничных лифтов. План машинного помещения ИИ-04-15 Лист 41. Пример решения машинного помещения 2 больничных лифтов. Разрез 1-1 ИИ-04-15 Лист 42. Пример решения машинного помещения 2 больничных лифтов. Разрез 2-2 ИИ-04-15 Лист 43. Пример решения машинного помещения 2 больничных лифтов. Разрез 3-3 ИИ-04-15 Лист 44. Пример решения машинного помещения больничного лифта и грузового лифта Q=500 кг с кабиной 1000х1500. План машинного помещения ИИ-04-15 Лист 45. Пример решения машинного помещения больничного лифта и грузового лифта Q=500 кг с кабиной 1000х1500. Разрез 4-4 ИИ-04-15 Лист 46. Пример решения машинного помещения больничного лифта и грузового лифта Q=500 кг с кабиной 1000х1500. Разрез 5-5 |
| Разработан: | ГипроНИИздрав Минздрава СССР |
| Утверждён: | 11.02.1974 Государственный комитет по гражданскому строительству (20) |
| Расположен в: | |
| Чем заменён: |






















































