| ||||||||||||||||||||||||||||||
Скачать Серия ИИ-04-5 Выпуск 9. Стеновые панели из ячеистых бетонов толщиной 300 мм. Опалубочные и арматурные чертежи. Рабочие чертежиДата актуализации: 10.08.2017
|
| Обозначение: | Серия ИИ-04-5 |
| Обозначение англ: | Series ИИ-04-5 |
| Статус: | не действует |
| Название рус.: | Выпуск 9. Стеновые панели из ячеистых бетонов толщиной 300 мм. Опалубочные и арматурные чертежи. Рабочие чертежи |
| Дата добавления в базу: | 01.09.2013 |
| Дата актуализации: | 05.05.2017 |
| Дата введения: | 01.10.1973 |
| Дата окончания срока действия: | 01.04.1982 |
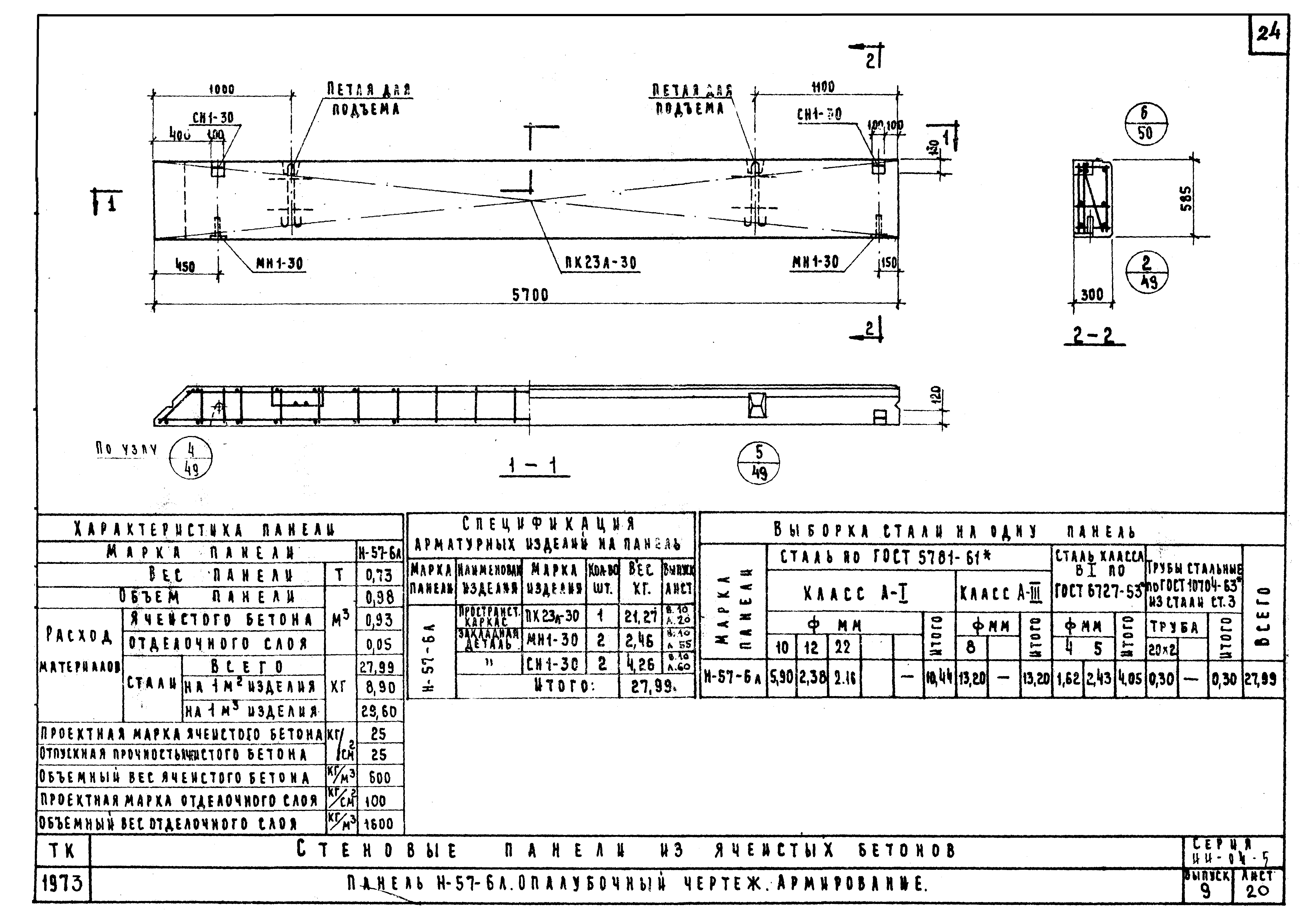
| Оглавление: | ИИ-04-5 Содержание выпуска ИИ-04-5 Пояснительная записка ИИ-04-5 Лист 1. Панели Н-60-6;Н-60-9. Опалубочный чертеж. Армирование ИИ-04-5 Лист 2. Панель Н-60-12. Опалубочный чертеж. Армирование ИИ-04-5 Лист 3. Панели Н-60-15;Н-60-18. Опалубочный чертеж. Армирование ИИ-04-5 Лист 4. Панели Н-45-6;Н-45-9. Опалубочный чертеж. Армирование ИИ-04-5 Лист 5. Панель Н-45-12. Опалубочный чертеж. Армирование ИИ-04-5 Лист 6. Панели Н-45-15;Н-45-18. Опалубочный чертеж. Армирование ИИ-04-5 Лист 7. Панели Н-30-6;Н-30-9. Опалубочный чертеж. Армирование ИИ-04-5 Лист 8. Панели Н-30-12;Н-30-15;Н-30-18. Опалубочный чертеж. Армирование ИИ-04-5 Лист 9. Панели НШ-60-6пр;НШ-60-9пр. Опалубочный чертеж. Армирование ИИ-04-5 Лист 10. Панели НШ-60-6л;НШ-60-9л. Опалубочный чертеж. Армирование ИИ-04-5 Лист 11. Панели НШ-60-12пр;НШ-60-15пр. Опалубочный чертеж. Армирование ИИ-04-5 Лист 12. Панели НШ-60-12л;НШ-60-15л. Опалубочный чертеж. Армирование ИИ-04-5 Лист 13. Панель Н-58-6пр. Опалубочный чертеж. Армирование ИИ-04-5 Лист 14. Панель Н-58-6л. Опалубочный чертеж. Армирование ИИ-04-5 Лист 15. Панель Н-58-9пр. Опалубочный чертеж. Армирование ИИ-04-5 Лист 16. Панель Н-58-9л. Опалубочный чертеж. Армирование ИИ-04-5 Лист 17. Панели Н-58-12пр;Н-58-15пр. Опалубочный чертеж. Армирование ИИ-04-5 Лист 18. Панели Н-58-12л;Н-58-15л. Опалубочный чертеж. Армирование ИИ-04-5 Лист 19. Панель Н-57-6пр. Опалубочный чертеж. Армирование ИИ-04-5 Лист 20. Панель Н-57-6л. Опалубочный чертеж. Армирование ИИ-04-5 Лист 21. Панель Н-57-9пр. Опалубочный чертеж. Армирование ИИ-04-5 Лист 22. Панель Н-57-9л. Опалубочный чертеж. Армирование ИИ-04-5 Лист 23. Панели Н-57-12пр;Н-57-15пр. Опалубочный чертеж. Армирование ИИ-04-5 Лист 24. Панели Н-57-12л;Н-57-15л. Опалубочный чертеж. Армирование ИИ-04-5 Лист 25. Панели Н-28-6пр,Н-28-9пр. Опалубочный чертеж. Армирование ИИ-04-5 Лист 26. Панели Н-28-6л,Н-28-9л. Опалубочный чертеж. Армирование ИИ-04-5 Лист 27. Панели Н-28-12пр,Н-28-15пр. Опалубочный чертеж. Армирование ИИ-04-5 Лист 28. Панели Н-28-12л,Н-28-15л. Опалубочный чертеж. Армирование ИИ-04-5 Лист 29. Панели Н-27-6пр,Н-27-9пр. Опалубочный чертеж. Армирование ИИ-04-5 Лист 30. Панели Н-27-6л,Н-27-9л. Опалубочный чертеж. Армирование ИИ-04-5 Лист 31. Панели Н-27-12пр,Н-27-15пр. Опалубочный чертеж. Армирование ИИ-04-5 Лист 32. Панели Н-27-12л,Н-27-15л. Опалубочный чертеж. Армирование ИИ-04-5 Лист 33. Панели НП-60-12,НП-45-12. Опалубочный чертеж. Армирование ИИ-04-5 Лист 34. Панель НП-30-12. Опалубочный чертеж. Армирование ИИ-04-5 Лист 35. Панель НШЛ-60-12пр. Опалубочный чертеж. Армирование ИИ-04-5 Лист 36. Панель НШЛ-60-12л. Опалубочный чертеж. Армирование ИИ-04-5 Лист 37. Панели НП-58-12пр;НП-28-12пр. Опалубочный чертеж. Армирование ИИ-04-5 Лист 38. Панели НП-58-12л;НП-28-12л. Опалубочный чертеж. Армирование ИИ-04-5 Лист 39. Панели НП-57-12пр;НП-27-12пр. Опалубочный чертеж. Армирование ИИ-04-5 Лист 40. Панели НП-57-12л;НП-27-12л. Опалубочный чертеж. Армирование ИИ-04-5 Лист 41. Простеночные панели Н-3-12;Н-3-18;Н-3-21;Н-3-27;Н-4-12;Н-4-18;Н-4-21;Н-4-27;Н-6-12;Н-6-18;Н-6-20;Н-6-27;Н-12-12;Н-12-18;Н-12-21;Н-12-27;Н-18-12;Н-18-18;Н-18-21;Н-18-27. Опалубочный чертеж. Армирование ИИ-04-5 Лист 42. Характеристика простеночных панелей. Спецификация арматурных изделий на простеночные панели ИИ-04-5 Лист 43. Угловые блоки НУ1-6;НУ1-9;НУ1-12;НУ1-15;НУ1-18;НУ1-21. Опалубочный чертеж. Армирование ИИ-04-5 Лист 44. Угловые блоки НУ2-6;НУ2-9;НУ2-12;НУ2-15;НУ2-18;НУ2-21. Опалубочный чертеж. Армирование ИИ-04-5 Лист 45. Угловые блоки НУ3-6;НУ2-9;НУ3-12;НУ3-15. Опалубочный чертеж. Армирование ИИ-04-5 Лист 46. Угловые блоки НУ4-6;НУ4-9;НУ4-12;НУ4-15. Опалубочный чертеж. Армирование ИИ-04-5 Лист 47. Характеристика угловых блоков. Спецификация арматурных изделий на угловые блоки ИИ-04-5 Лист 48. Выборка стали на простеночные панели и угловые блоки ИИ-04-5 Лист 49. Узлы 1-5 ИИ-04-5 Лист 50. Узлы 6-9 ИИ-04-5 Лист 51. Контрольные нагрузки по проверке прочности и панелей ИИ-04-5 Лист 52. Контрольные нагрузки по проверке трещиностойкости и жесткости панелей |
| Разработан: | ЦНИИЭП торгово-бытовых зданий и туристских комплексов НИИЖБ |
| Утверждён: | 13.08.1973 Государственный комитет по гражданскому строительству (173) |
| Расположен в: | |
| Чем заменён: |

























































