| ||||||||||||||||||||||||||||
Скачать Серия ИИ-04-2 Выпуск 10. Часть I. Колонны связевого каркаса сечением 30х30 см для зданий с высотой этажа 3,3; 3,6; и 4,2 м. Арматурные изделия. Объемные каркасы. Рабочие чертежиДата актуализации: 10.08.2017
|
| Обозначение: | Серия ИИ-04-2 |
| Обозначение англ: | Series ИИ-04-2 |
| Статус: | заменен |
| Название рус.: | Выпуск 10. Часть I. Колонны связевого каркаса сечением 30х30 см для зданий с высотой этажа 3,3; 3,6; и 4,2 м. Арматурные изделия. Объемные каркасы. Рабочие чертежи |
| Дата добавления в базу: | 01.09.2013 |
| Дата актуализации: | 05.05.2017 |
| Дата введения: | 01.04.1982 |
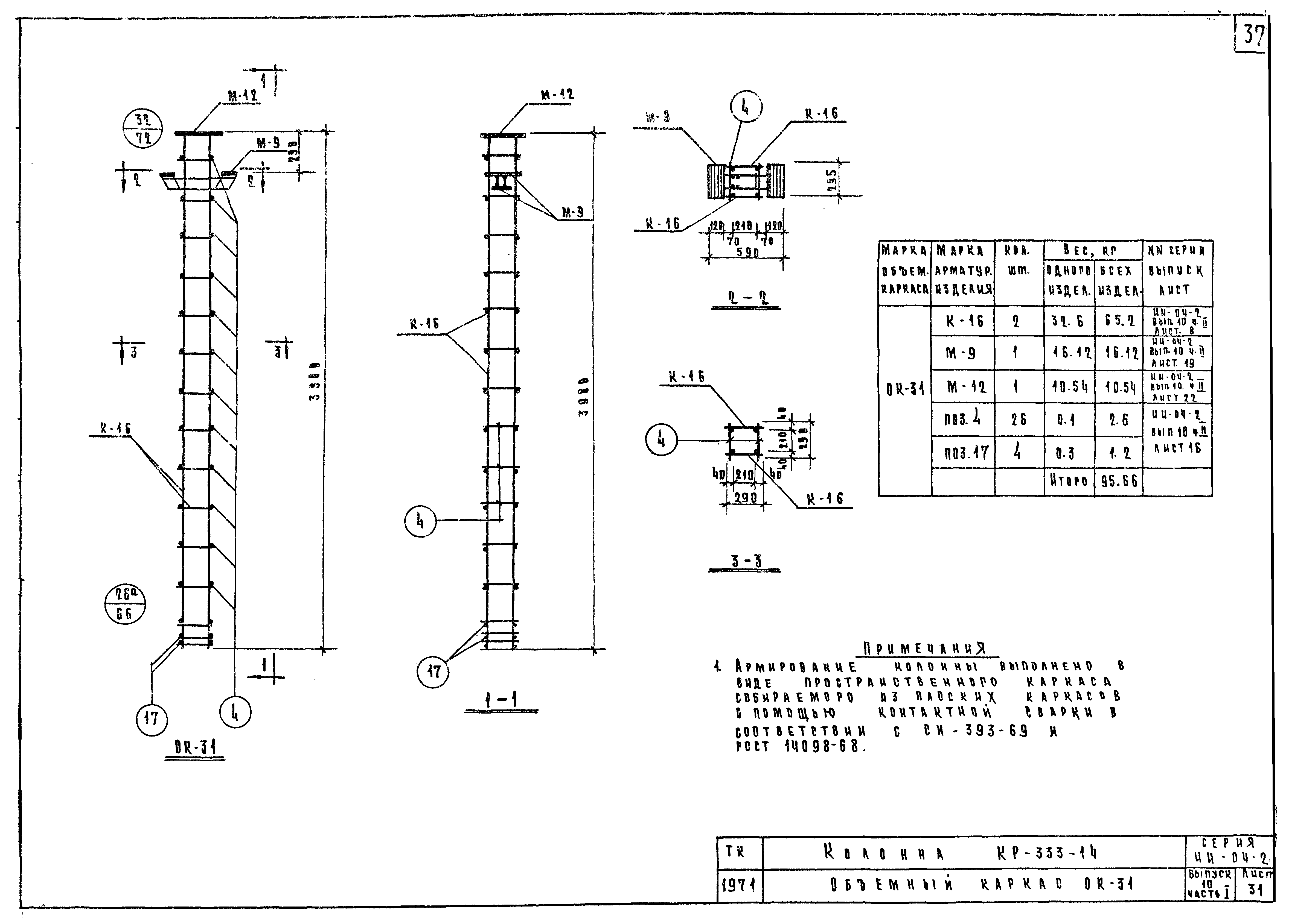
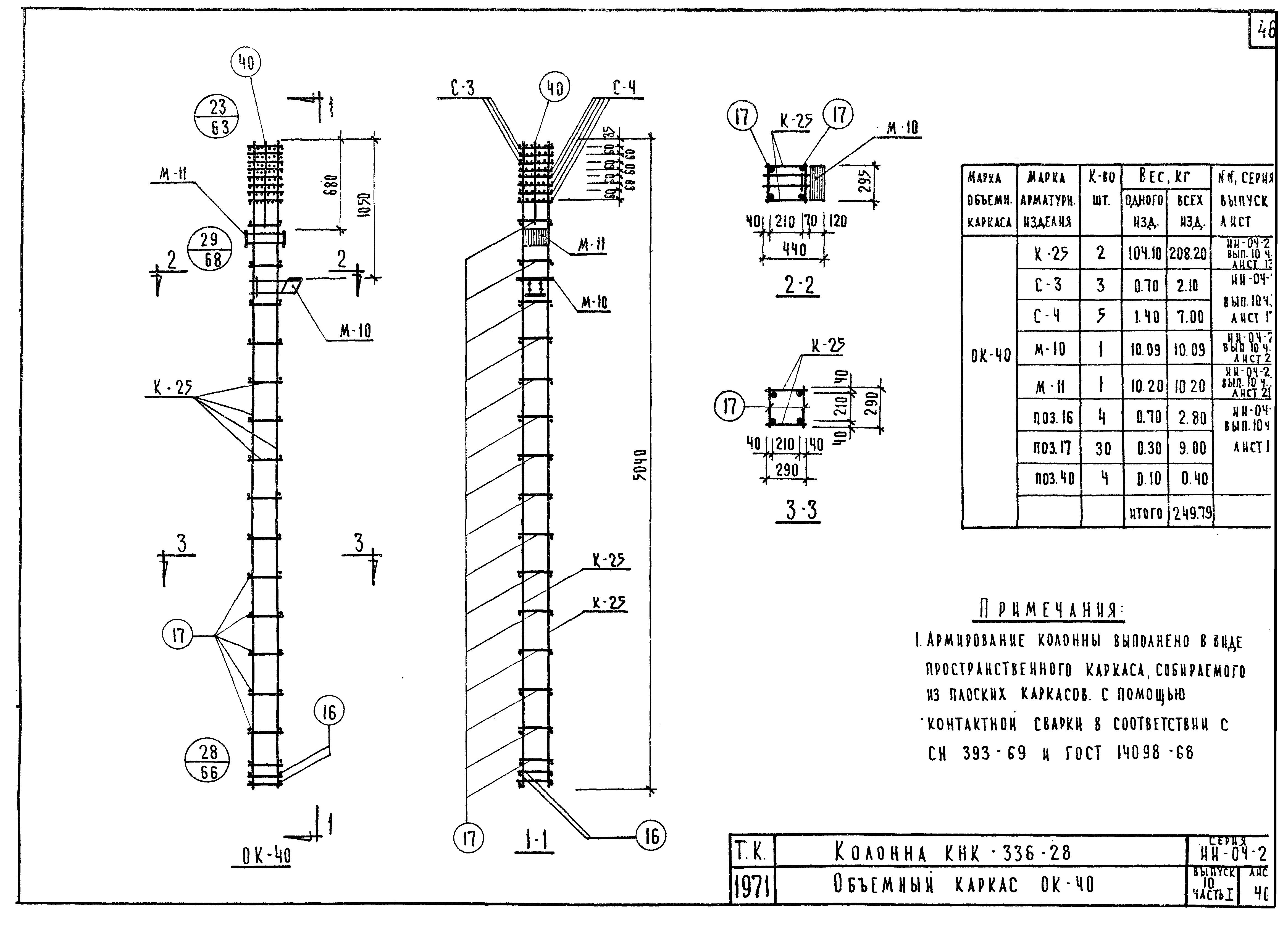
| Оглавление: | ИИ-04-2 Перечень серий и выпусков ИИ-04-2 Содержание выпуска ИИ-04-2 Пояснительная записка ИИ-04-2 Лист 1. Колонна КВК-342-14. Объемный каркас ОК-1 ИИ-04-2 Лист 2. Колонна КВР-342-14. Объемный каркас ОК-2 ИИ-04-2 Лист 3. Колонна КСК-342-14. Объемный каркас ОК-3 ИИ-04-2 Лист 4. Колонна КСК-342-25. Объемный каркас ОК-4 ИИ-04-2 Лист 5. Колонны КСР-342-14,КСР-342-17. Объемный каркас ОК-5 ИИ-04-2 Лист 6. Колонна КСР-342-25. Объемный каркас ОК-6 ИИ-04-2 Лист 7. Колонны КНК-342-14,КСР-342-17. Объемный каркас ОК-7 ИИ-04-2 Лист 8. Колонна КНК-342-23. Объемный каркас ОК-8 ИИ-04-2 Лист 9. Колонна КНК-342-28. Объемный каркас ОК-9 ИИ-04-2 Лист 10. Колонны КНР-342-14,КНР-342-17. Объемный каркас ОК-10 ИИ-04-2 Лист 11. Колонна КНР-342-23. Объемный каркас ОК-11 ИИ-04-2 Лист 12. Колонна КНР-342-28. Объемный каркас ОК-12 ИИ-04-2 Лист 13. Колонна КК-342-14. Объемный каркас ОК-13 ИИ-04-2 Лист 14. Колонна КР-342-14. Объемный каркас ОК-14 ИИ-04-2 Лист 15. Колонна КВК-333-14. Объемный каркас ОК-15 ИИ-04-2 Лист 16. Колонна КВР-333-14. Объемный каркас ОК-16 ИИ-04-2 Лист 17. Колонна КСК-333-14. Объемный каркас ОК-17 ИИ-04-2 Лист 18. Колонна КСК-333-23. Объемный каркас ОК-18 ИИ-04-2 Лист 19. Колонны КСР-333-14,КСР-333-17. Объемный каркас ОК-19 ИИ-04-2 Лист 20. Колонна КСР-333-23. Объемный каркас ОК-20 ИИ-04-2 Лист 21. Колонны КНК-333-14,КНК-333-17. Объемный каркас ОК-21 ИИ-04-2 Лист 22. Колонна КНК-333-23. Объемный каркас ОК-22 ИИ-04-2 Лист 23. Колонна КНК-333-28. Объемный каркас ОК-23 ИИ-04-2 Лист 24. Колонны КНР-333-14,КНР-333-17. Объемный каркас ОК-24 ИИ-04-2 Лист 25. Колонна КНР-333-23. Объемный каркас ОК-25 ИИ-04-2 Лист 26. Колонна КНР-333-28. Объемный каркас ОК-26 ИИ-04-2 Лист 27. Колонны КСК-366-14;КСК-366-17. Объемный каркас ОК-27 ИИ-04-2 Лист 28. Колонны КСР-366-14;КСР-366-17. Объемный каркас ОК-28 ИИ-04-2 Лист 29. Колонна КСР-366-23. Объемный каркас ОК-29 ИИ-04-2 Лист 30. Колонна КК-333-14. Объемный каркас ОК-30 ИИ-04-2 Лист 31. Колонна КР-333-14. Объемный каркас ОК-31 ИИ-04-2 Лист 32. Колонна КВК-336-14. Объемный каркас ОК-32 ИИ-04-2 Лист 33. Колонна КВР-336-14. Объемный каркас ОК-33 ИИ-04-2 Лист 34. Колонна КСК-336-14. Объемный каркас ОК-34 ИИ-04-2 Лист 35. Колонна КСК-336-23. Объемный каркас ОК-35 ИИ-04-2 Лист 36. Колонны КСР-336-14,КСР-336-17. Объемный каркас ОК-36 ИИ-04-2 Лист 37. Колонна КСР-336-23. Объемный каркас ОК-37 ИИ-04-2 Лист 38. Колонны КНК-336-14,КНК-336-17. Объемный каркас ОК-38 ИИ-04-2 Лист 39. Колонна КНК-336-23. Объемный каркас ОК-39 ИИ-04-2 Лист 40. Колонна КНК-336-28. Объемный каркас ОК-40 ИИ-04-2 Лист 41. Колонны КНР-336-14,КНР-336-17. Объемный каркас ОК-41 ИИ-04-2 Лист 42. Колонна КНР-336-23. Объемный каркас ОК-42 ИИ-04-2 Лист 43. Колонна КНР-336-28. Объемный каркас ОК-43 ИИ-04-2 Лист 44. Колонны КСК-372-14,КСК-372-17. Объемный каркас ОК-44 ИИ-04-2 Лист 45. Колонны КСР-372-14,КСР-372-17. Объемный каркас ОК-45 ИИ-04-2 Лист 46. Колонна КСР-372-23. Объемный каркас ОК-46 ИИ-04-2 Лист 47. Колонна КК-336-14. Объемный каркас ОК-47 ИИ-04-2 Лист 48. Колонна КР-336-14. Объемный каркас ОК-48 ИИ-04-2 Лист 49. Колонна КВК-366-14. Объемный каркас ОК-49 ИИ-04-2 Лист 50. Колонна КВР-366-14. Объемный каркас ОК-50 ИИ-04-2 Лист 51. Колонна КНК-366-14. Объемный каркас ОК-51 ИИ-04-2 Лист 52. Колонна КНР-366-17. Объемный каркас ОК-52 ИИ-04-2 Лист 53. Колонна КК-366-11. Объемный каркас ОК-53 ИИ-04-2 Лист 54. Колонна КР-366-11. Объемный каркас ОК-54 ИИ-04-2 Лист 55. Колонна КВК-372-14. Объемный каркас ОК-55 ИИ-04-2 Лист 56. Колонна КВР-372-14. Объемный каркас ОК-56 ИИ-04-2 Лист 57. Колонна КНК-372-14. Объемный каркас ОК-57 ИИ-04-2 Лист 58. Колонна КНК-372-17. Объемный каркас ОК-58 ИИ-04-2 Лист 59. Колонна КК-372-11. Объемный каркас ОК-59 ИИ-04-2 Лист 60. Колонна КР-372-11. Объемный каркас ОК-60 ИИ-04-2 Лист 61. Колонны. Объемный каркас. Узел 21 ИИ-04-2 Лист 62. Колонны. Объемный каркас. Узел 22 ИИ-04-2 Лист 63. Колонны. Объемный каркас. Узел 23 ИИ-04-2 Лист 64. Колонны. Объемный каркас. Узел 24 ИИ-04-2 Лист 65. Колонны. Объемный каркас. Узел 25 ИИ-04-2 Лист 66. Колонны. Объемный каркас. Узел 26,26а,27,28 ИИ-04-2 Лист 67. Колонны. Объемный каркас. Узел 26б ИИ-04-2 Лист 68. Колонны. Объемный каркас. Узел 29 ИИ-04-2 Лист 69. Колонны. Объемный каркас. Узел 30 ИИ-04-2 Лист 70. Колонны. Объемный каркас. Узел 31 ИИ-04-2 Лист 71. Колонны. Объемный каркас. Узел 31а ИИ-04-2 Лист 72. Колонны. Объемный каркас. Узел 32 |
| Разработан: | ЦНИИЭП торгово-бытовых зданий и туристских комплексов НИИЖБ |
| Утверждён: | 28.01.1972 Государственный комитет по гражданскому строительству (9) |
| Расположен в: | |
| Чем заменён: |















































































