Информационная система
«Ёшкин Кот»

Скачать базу одним архивом
Скачать обновления
История создания базы
Карта сайта

Скачать Серия ИИ23-2 Типовые конструкции многоэтажных промышленных зданий. Железобетонные ригели пролетом 9 м с полками для опирания плит

Дата актуализации: 10.08.2017

Серия ИИ23-2

Типовые конструкции многоэтажных промышленных зданий. Железобетонные ригели пролетом 9 м с полками для опирания плит

Обозначение: Серия ИИ23-2
Обозначение англ: Series ИИ23-2
Статус:действует
Название рус.:Типовые конструкции многоэтажных промышленных зданий. Железобетонные ригели пролетом 9 м с полками для опирания плит
Дата добавления в базу:01.09.2013
Дата актуализации:05.05.2017
Дата введения:01.10.1964
Оглавление:ИИ23-2 Пояснительная записка
ИИ23-2 Лист 1. Ригели Б4-1÷Б4-4. Опалубочный чертеж. Показатели на один ригель. Выборка стали
ИИ23-2 Лист 2. Ригели Б5-1÷Б5-8. Опалубочный чертеж. Показатели на один ригель. Выборка стали
ИИ23-2 Лист 3. Ригели Б6-1÷Б6-4. Опалубочный чертеж. Показатели на один ригель. Выборка стали
ИИ23-2 Лист 4. Ригели Б4-1÷Б4-3. Армирование
ИИ23-2 Лист 5. Ригели Б5-1÷Б5-6. Армирование
ИИ23-2 Лист 6. Ригели Б6-1÷Б6-3. Армирование
ИИ23-2 Лист 7. Ригели Б4-4,Б5-7,Б5-8,Б6-4. Армирование
ИИ23-2 Лист 8. Ригели Б4-1,Б5-1,Б5-4. Узел 1
ИИ23-2 Лист 9. Ригели Б4-1,Б5-1,Б5-4. Узел 2
ИИ23-2 Лист 10. Ригели Б4-2,Б4-3,Б5-2,Б5-3,Б5-5. Узел 3
ИИ23-2 Лист 11. Ригели Б4-2,Б5-2,Б5-5. Узел 4
ИИ23-2 Лист 12. Ригели Б4-3,Б5-3,Б5-6. Узел 5
ИИ23-2 Лист 13. Ригели Б4-4,Б5-7. Узел 6
ИИ23-2 Лист 14. Ригели Б4-4,Б5-7. Узел 7
ИИ23-2 Лист 15. Ригели Б5-6. Узел 8
ИИ23-2 Лист 16. Ригели Б6-1. Узел 9
ИИ23-2 Лист 17. Ригели Б6-1. Узел 10
ИИ23-2 Лист 18. Ригели Б6-2. Узел 11
ИИ23-2 Лист 19. Ригели Б6-2. Узел 12
ИИ23-2 Лист 20. Ригели Б6-3. Узел 13
ИИ23-2 Лист 21. Ригели Б6-3. Узел 14
ИИ23-2 Лист 22. Ригели Б5-8,Б6-4. Узел 15
ИИ23-2 Лист 23. Ригели Б5-8,Б6-4. Узел 16
ИИ23-2 Лист 24. Пространственные каркасы КП1-КП3
ИИ23-2 Лист 25. Пространственные каркасы КП4,КП5,КП7,КП8
ИИ23-2 Лист 26. Пространственные каркасы КП6,КП9
ИИ23-2 Лист 27. Пространственные каркасы КП10-КП12
ИИ23-2 Лист 28. Пространственные каркасы КП13,КП14
ИИ23-2 Лист 29. Пространственные каркасы КП15,КП16
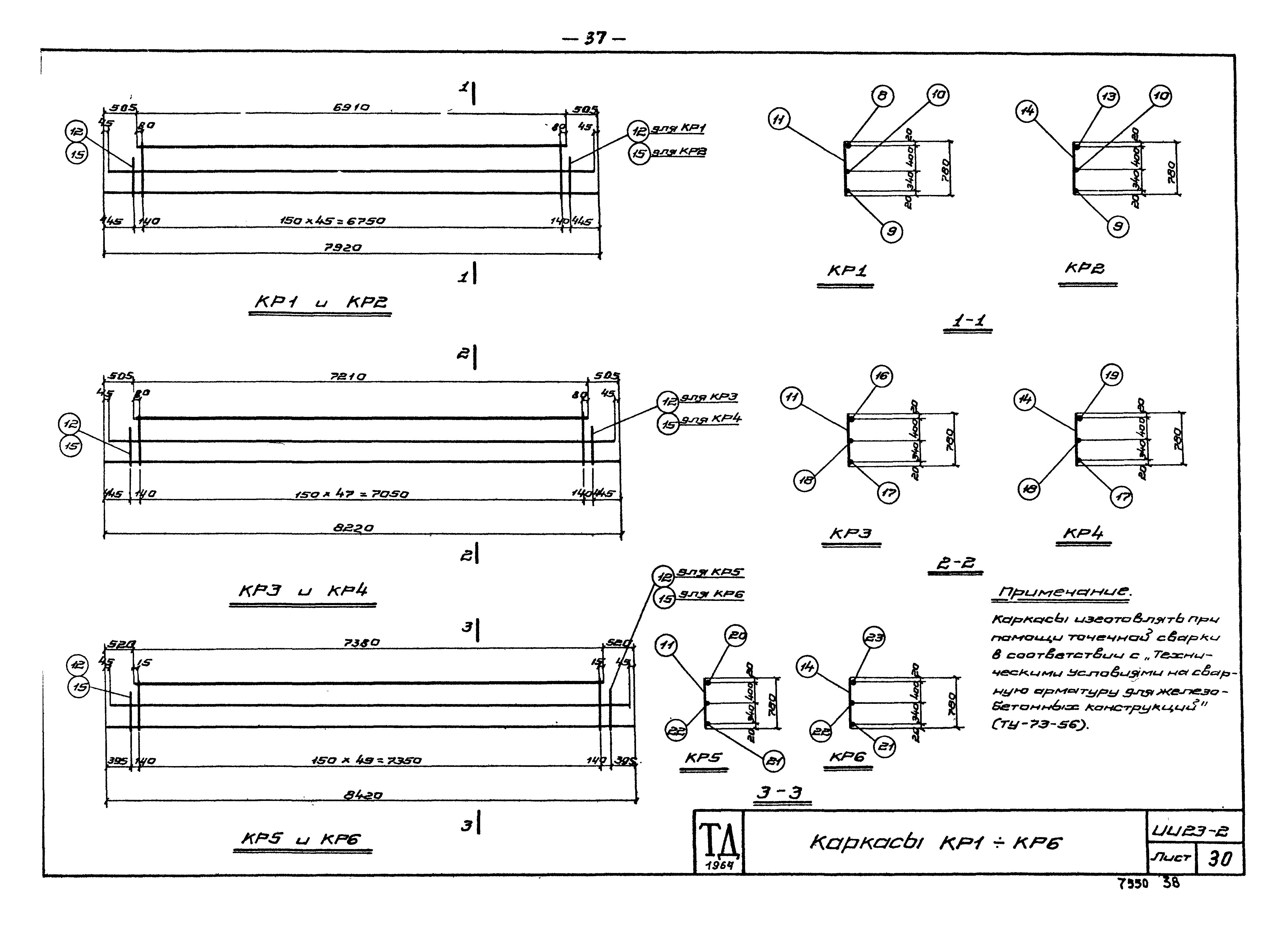
ИИ23-2 Лист 30. Каркасы КР1-КР6
ИИ23-2 Лист 31. Каркасы КР7,КР7´. Сетки С1-С4
ИИ23-2 Лист 32. Узлы А,Б,В. Спецификация арматурных изделий
ИИ23-2 Лист 33. Спецификация арматурных изделий
ИИ23-2 Лист 34. Спецификация и выборка стали
ИИ23-2 Лист 35. Спецификация и выборка стали
ИИ23-2 Лист 36. Закладные элементы М1-М9
Разработан: ЦНИИпромзданий
Моспромпроект
НИИЖБ
Утверждён:29.08.1964 Госстрой СССР (Государственный комитет Совета Министров СССР по делам строительства) (USSR Gosstroy 151)
Расположен в:Техническая документация Строительство Справочные документы Типовые строительные конструкции, изделия и узлы Общероссийский строительный каталог Строительные конструкции, изделия и узлы зданий и сооружений для всех видов строительства Конструкции, изделия и узлы зданий Несущие конструкции двухэтажных и многоэтажных зданий Каркасные здания
Серия ИИ23-2Серия ИИ23-2Серия ИИ23-2Серия ИИ23-2Серия ИИ23-2Серия ИИ23-2Серия ИИ23-2Серия ИИ23-2Серия ИИ23-2Серия ИИ23-2Серия ИИ23-2Серия ИИ23-2Серия ИИ23-2Серия ИИ23-2Серия ИИ23-2Серия ИИ23-2Серия ИИ23-2Серия ИИ23-2Серия ИИ23-2Серия ИИ23-2Серия ИИ23-2Серия ИИ23-2Серия ИИ23-2Серия ИИ23-2Серия ИИ23-2Серия ИИ23-2Серия ИИ23-2Серия ИИ23-2Серия ИИ23-2Серия ИИ23-2Серия ИИ23-2Серия ИИ23-2Серия ИИ23-2Серия ИИ23-2Серия ИИ23-2Серия ИИ23-2Серия ИИ23-2Серия ИИ23-2Серия ИИ23-2Серия ИИ23-2Серия ИИ23-2Серия ИИ23-2Серия ИИ23-2Серия ИИ23-2Серия ИИ23-2

© 2013 Ёшкин Кот :-) Карта сайта