Скачать Серия ИИ22-1 Типовые конструкции многоэтажных промышленных зданий. Железобетонные колонны высоты этажей 3,6 мДата актуализации: 10.08.2017 Серия ИИ22-1
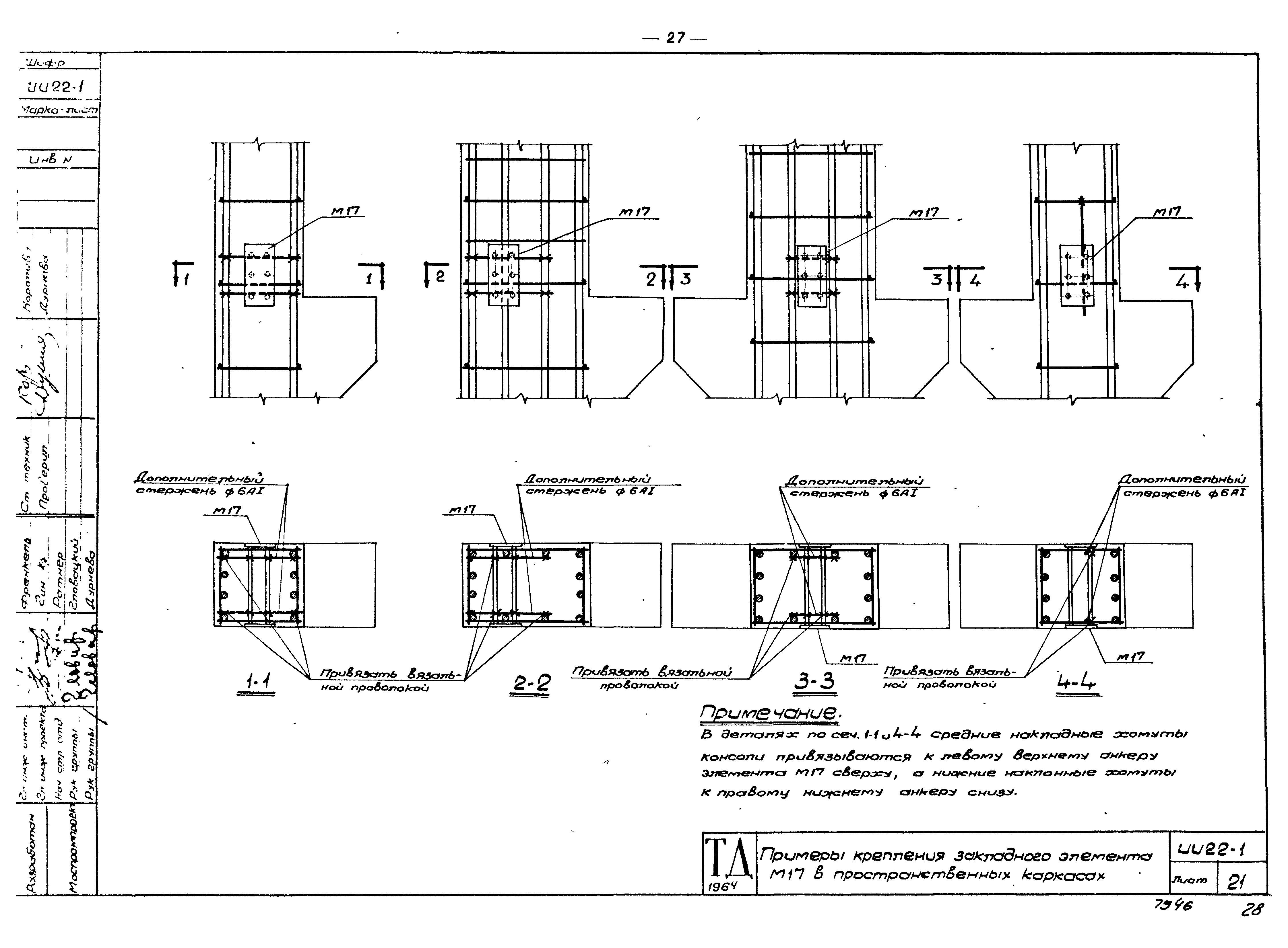
Типовые конструкции многоэтажных промышленных зданий. Железобетонные колонны высоты этажей 3,6 мОбозначение: | Серия ИИ22-1 | Обозначение англ: | Series ИИ22-1 | Статус: | действует | Название рус.: | Типовые конструкции многоэтажных промышленных зданий. Железобетонные колонны высоты этажей 3,6 м | Дата добавления в базу: | 01.09.2013 | Дата актуализации: | 05.05.2017 | Оглавление: | ИИ22-1 Оглавление ИИ22-1 Пояснительная записка ИИ22-1 Лист 1. Колонны К1-1,К1-2. Опалубочный и арматурный чертеж. Показатели расхода материалов ИИ22-1 Лист 2. Колонны К2-1,К2-2. Опалубочный и арматурный чертеж. Показатели расхода материалов ИИ22-1 Лист 3. Колонны К3-1,К3-2,К3-3. Опалубочный и арматурный чертеж. Показатели расхода материалов ИИ22-1 Лист 4. Колонны К4-1,К4-2,К4-3. Опалубочный и арматурный чертеж. Показатели расхода материалов ИИ22-1 Лист 5. Колонны К5-1,К5-2,К5-3,К5-4. Опалубочный и арматурный чертеж. Показатели расхода материалов ИИ22-1 Лист 6. Колонны К6-1,К6-2,К6-3. Опалубочный и арматурный чертеж. Показатели расхода материалов ИИ22-1 Лист 7. Колонны К7-1,К7-2,К7-3,К7-4. Опалубочный и арматурный чертеж. Показатели расхода материалов ИИ22-1 Лист 8. Колонны К8-1,К8-2,К8-3,К8-4. Опалубочный и арматурный чертеж. Показатели расхода материалов ИИ22-1 Лист 9. Колонны К9-1,К9-2. Опалубочный и арматурный чертеж. Показатели расхода материалов ИИ22-1 Лист 10. Колонны К10-1,К10-2,К10-3. Опалубочный и арматурный чертеж. Показатели расхода материалов ИИ22-1 Лист 11. Колонны К1-1-1,К1-2-1,К3-1-1÷К3-3-1,К5-1-1÷К5-4-1 ИИ22-1 Лист 12. Колонны К2-1-1,К2-2-1,К4-1-1÷К4-3-1,К6-1-1÷К6-3-1 ИИ22-1 Лист 13. Колонны К7-1-1÷К7-4-1,К9-1-1,К9-2-1 ИИ22-1 Лист 14. Колонны К8-1-1÷К8-4-1,К10-1-1÷К10-3-1 ИИ22-1 Лист 15. Колонны К1-1-2,К1-2-2,К3-1-2÷К3-3-2,К5-1-2÷К5-4-2 ИИ22-1 Лист 16. Колонны К7-1-2÷К7-4-2,К9-1-2,К9-2-2 ИИ22-1 Лист 17. Армирование. Детали 1-6 ИИ22-1 Лист 18. Армирование. Детали 7-10 ИИ22-1 Лист 19. Армирование. Детали 11-14 ИИ22-1 Лист 20. Армирование. Детали 15-22 ИИ22-1 Лист 21. Примеры крепления закладного элемента М17 в пространственных каркасах ИИ22-1 Лист 22. Пространственные каркасы ПК1-ПК4 ИИ22-1 Лист 23. Пространственные каркасы ПК5-ПК7 ИИ22-1 Лист 24. Пространственные каркасы ПК8,ПК9 ИИ22-1 Лист 25. Пространственный каркас ПК10 ИИ22-1 Лист 26. Пространственный каркас ПК11 ИИ22-1 Лист 27. Пространственные каркасы ПК12,ПК13 ИИ22-1 Лист 28. Пространственный каркас ПК14 ИИ22-1 Лист 29. Пространственные каркасы ПК15,ПК16 ИИ22-1 Лист 30. Пространственный каркас ПК17 ИИ22-1 Лист 31. Пространственные каркасы ПК18-ПК21 ИИ22-1 Лист 32. Пространственные каркасы ПК22-ПК26 ИИ22-1 Лист 33. Пространственный каркас ПК27 ИИ22-1 Лист 34. Пространственные каркасы ПК28,ПК29 ИИ22-1 Лист 35. Пространственные каркасы ПК30-ПК32 ИИ22-1 Лист 36. Пространственные каркасы. Узлы 1-3 ИИ22-1 Лист 37. Пространственные каркасы. Узлы 4-6 ИИ22-1 Лист 38. Пространственные каркасы. Узлы 7-9 ИИ22-1 Лист 39. Пространственные каркасы. Узлы 10-12 ИИ22-1 Лист 40. Пространственные каркасы. Узлы 13,19-22 ИИ22-1 Лист 41. Пространственные каркасы. Узлы 14-15 ИИ22-1 Лист 42. Пространственные каркасы. Узлы 16,23-25 ИИ22-1 Лист 43. Пространственные каркасы. Узлы 17,18 ИИ22-1 Лист 44. Спецификация марок арматурных изделий и закладных элементов на один пространственный каркас ПК1-ПК8 ИИ22-1 Лист 45. Спецификация марок арматурных изделий и закладных элементов на один пространственный каркас ПК9-ПК16 ИИ22-1 Лист 46. Спецификация марок арматурных изделий и закладных элементов на один пространственный каркас ПК17-ПК21 ИИ22-1 Лист 47. Спецификация марок арматурных изделий и закладных элементов на один пространственный каркас ПК22-ПК30 ИИ22-1 Лист 48. Спецификация марок арматурных изделий и закладных элементов на один пространственный каркас ПК31,ПК32 ИИ22-1 Лист 49. Каркасы КР1-КР7,КР14,КР30. Сетки С1,С2 ИИ22-1 Лист 50. Каркасы КР8-КР13,КР15-КР17,КР19-КР22,КР31 ИИ22-1 Лист 51. Каркасы КР18,КР23-КР29 ИИ22-1 Лист 52. Спецификация и выборка стали на одно арматурное изделие. Каркасы КР1-КР16 ИИ22-1 Лист 53. Спецификация и выборка стали на одно арматурное изделие. Каркасы КР17-КР31, сетки С1,С2 ИИ22-1 Лист 54. Спецификация отдельных стержней ИИ22-1 Лист 55. Закладные элементы М1-М4 ИИ22-1 Лист 56. Закладные элементы М5-М9 ИИ22-1 Лист 57. Закладные элементы М10-М14 ИИ22-1 Лист 58. Закладные элементы М15-М19 ИИ22-1 Лист 59. Закладные элементы. Заготовочные чертежи отдельных позиций ИИ22-1 Лист 60. Спецификация и выборка стали на один закладной элемент М1-М11 ИИ22-1 Лист 61. Спецификация и выборка стали на один закладной элемент М12-М19 ИИ22-1 Лист 62. Колонны К1,К3,К5,К7,К9. Примеры размещения отверстий для пропуска труб отопления | Разработан: | ЦНИИпромзданий НИИЖБ
| Утверждён: | 29.08.1964 Госстрой СССР (Государственный комитет Совета Министров СССР по делам строительства) (USSR Gosstroy 151)
| Расположен в: |
|
                                                                 
|