Скачать Серия ИИ-61 Выпуск 1. Монтажные схемы и узлы сопряжений конструкций под полезные нормативные нагрузки 500, 750 и 1000 кг/куб. мДата актуализации: 10.08.2017 Серия ИИ-61
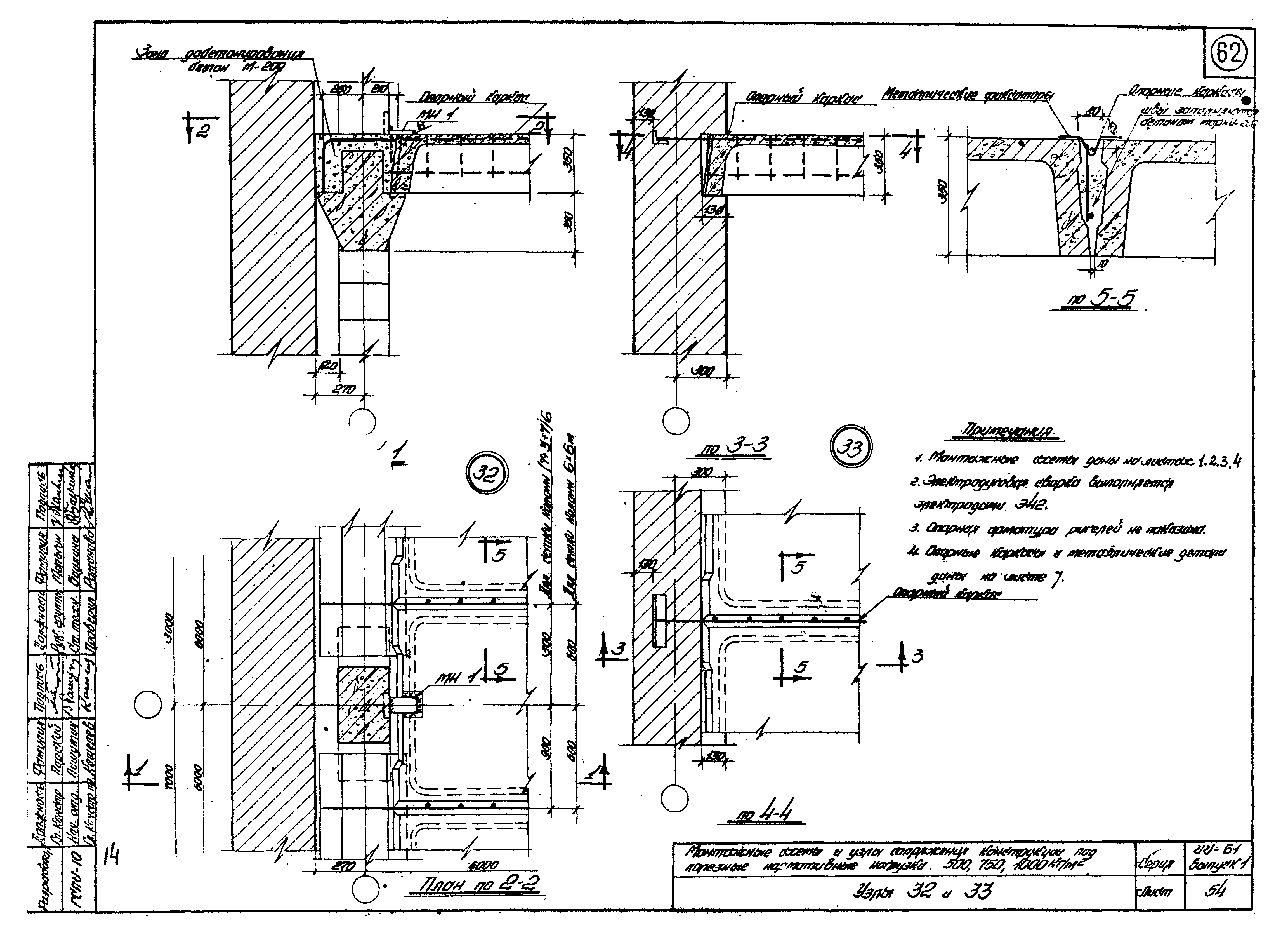
Выпуск 1. Монтажные схемы и узлы сопряжений конструкций под полезные нормативные нагрузки 500, 750 и 1000 кг/куб. мОбозначение: | Серия ИИ-61 | Обозначение англ: | Series ИИ-61 | Статус: | не действует | Название рус.: | Выпуск 1. Монтажные схемы и узлы сопряжений конструкций под полезные нормативные нагрузки 500, 750 и 1000 кг/куб. м | Дата добавления в базу: | 01.09.2013 | Дата актуализации: | 05.05.2017 | Оглавление: | ИИ-61 Пояснительная записка ИИ-61 Рабочие чертежи ИИ-61 Лист № 1. Монтажные схемы плит и опорных каркасов перекрытий зданий с самонесущими стенами. Сетка колонн 6x6м ИИ-61 Лист № 2. Монтажные схемы плит и опорных каркасов перекрытий зданий с несущими стенами. Сетка колонн 6х6 м ИИ-61 Лист № 3. Монтажные схемы плит и опорных каркасов перекрытий зданий с самонесущими стенами. Сетка колонн /7+3+7/6 м ИИ-61 Лист № 4. Монтажные схемы плит и опорных каркасов перекрытий зданий с несущими стенами. Сетка колонн /7+3+7/6 м ИИ-61 Лист № 5. Разрезы 1-1, 2-2 для зданий с сеткой колонн 6x6 м ИИ-61 Лист № 6. Разрезы 1-1и 2-2 для зданий с сеткой колонн /7+3+7/6 м ИИ-61 Лист № 7. Опорные каркасы и металлические детали узлов перекрытий ИИ-61 Лист № 8. Опорные каркасы и металлические детали. Спецификация стали ИИ-61 Лист № 9. Сварные сетки C-1,С-2,С-3Р,С-4 для плит П-1, П-2, П-3, П-4 у деформационных швов ИИ-61 Лист № 10. Монтажные схемы поперечного каркаса 3-этажных зданий с сеткой колонн /6+6+6/6 м с высотами этажей 3;6 и 4,2 м. Стены самонесущие. Схемы 1-6 ИИ-61 Лист № 11. Монтажные схемы поперечного каркаса 3-этажных зданий с сеткой колонн /6+6+6/6 м с высотами этажей 4,8 и 5,4 м. Стены самонесущие. Схемы 7-12 ИИ-61 Лист № 12. Монтажные схемы поперечного каркаса 4-атажных зданий с сеткой колонн /6+6+6/6м с высотами этажей 3;6 и 4,2 м. Стены самонесущие. Схема 13-18 ИИ-61 Лист № 13. Монтажные схемы поперечного каркаса 4-этажных зданий с сеткой колонн /6+6+6/6 м с высотами этажей 4;8 и 5,4 м. Стены самонесущие. Схемы 19-24 ИИ-61 Лист № 14. Монтажные схемы поперечного каркаса 3-этажных зданий с сеткой колонн /6+6+6/6м с высотами этажей 3,6 и 4,2 м. Стены самонесущие. Схемы 25-30 ИИ-61 Лист № 15. Монтажные схемы поперечного каркаса 3-этажных зданий с сеткой колонн/6+6+6+6/6 м с высотами этажей 4,8 и 5,4 м. Стены самонесущие. Схемы 31-36 ИИ-61 Лист № 16. Монтажные схемы поперечного каркаса 4-этажных зданий с сеткой колон /6+6+6+6/6 м с высотами этажей 3,6 и 4,2 м. Стены самонесущие. Схемы 37-42 ИИ-61 Лист № 17. Монтажные схемы поперечного каркаса 4-этажных зданий с сеткой колонн/6+6+6+6/6 м с высотами этажей 4,8 и 5,4 м. Стены самонесущие. Схемы 43-48 ИИ-61 Лист № 18. Перечень элементов каркаса зданий для схемы 1-12 ИИ-61 Лист № 19. Перечень элементов каркаса зданий для схем 13-24 ИИ-61 Лист № 20. Перечень элементов каркаса зданий для схем 25-36 ИИ-61 Лист № 21. Перечень элементов каркаса зданий для схем 37-48 ИИ-61 Лист № 22. Монтажные схемы поперечного каркаса 3-этажных зданий с сеткой колонн /6+6+6/6 м с высотами этажей 3,6 и 4,2 м. Стены несущие. Схемы 49-54 ИИ-61 Лист № 23. Монтажные схемы поперечного каркаса 3-этажных зданий с сеткой колонн /6+6+6/6 м с высотами этажей 4,8 и 5,4 м. Стены несущие. Схемы 55-60 ИИ-61 Лист № 24. Монтажные схемы поперечного каркаса 4-этажных зданий с сеткой колон /6+6+6/6 м с высотами этажей 3,6 и 4,2 м. Стены несущие. Схемы 61-66 ИИ-61 Лист № 25. Монтажные схемы поперечного каркаса 4-этажных здании с сеткой колонн /6+6+6/6 м с высотами этажей 4,8 и 5,4 м. Стены несущие. Схемы 67-72 ИИ-61 Лист № 26. Монтажные схемы поперечного каркаса 3-этажных зданий с сеткой колонн /6+6+6+6/6 м с высотами этажей 3,6 и 4,2 м. Стены несущие. Схемы 73-78 ИИ-61 Лист № 27. Монтажные схемы поперечного каркаса 3-этажных зданий с сеткой колонн /6+6+6+6/6 м с высотами этажей 4,8 и 5,4 м. Стены несущие. Схемы 79-84 ИИ-61 Лист № 28. Монтажные схемы поперечного каркаса 4-этакных зданий с сеткой колонн /6+6+6+6/ 6 м с высотами этажей 3;6 и 4,2 м. Стены несущие. Схемы 85-90 ИИ-61 Лист № 29. Монтажные схемы поперечного каркаса 4-этажных зданий с сеткой колонн /6+6+6+6/6 м с высотами этажей 4,8 и 5,4 м. Стены несущие.. Схемы 91-96. ИИ-61 Лист № 30. Перечень элементов каркаса зданий для схем 49-60 ИИ-61 Лист № 31. Перечень элементов каркаса зданий для схем 61-72 ИИ-61 Лист № 32. Перечень элементов каркаса зданий для схем 73-84 ИИ-61 Лист № 33. Перечень элементов каркаса зданий для схем 85-96 ИИ-61 Лист № 34. Монтажные схемы поперечного каркаса зданий с сеткой колонн /7+3+7/6 м с самонесущими членами ИИ-61 Лист № 35. Монтажные схемы поперечного каркаса зданий с сеткой колонн /7+3+7/6 м с несущими стенами ИИ-61 Лист № 36. Перечень элементов каркасов зданий с сеткой колонн /7+3+7/6 м ИИ-61 Лист № 37. Углы 1,2,3,4,5,6,7 ИИ-61 Лист № 38. Узел 8 ИИ-61 Лист № 39. Узел 9. Спецификация стали для узлов 1-C ИИ-61 Лист № 40. Узлы 10, 12, 17, 18 ИИ-61 Лист № 41. Узлы 13, 15 ИИ-61 Лист № 42. Узлы 11,14,16,19,20,21 ИИ-61 Лист № 43. Узлы 1А,2А,3А,4А,5А,6А и 7А ИИ-61 Лист № 44. Узлы 8А,9А ИИ-61 Лист № 45. Сетки C1, C2. Спецификация стали для узлов 1A-8A ИИ-61 Лист № 46. Узлы 10А, 12А, 17A, 18A ИИ-61 Лист № 47. Узлы 13А, 15A ИИ-61 Лист № 48. Узел 21A ИИ-61 Лист № 49. Узлы 22, 23 ИИ-61 Лист № 50. Узлы 24, 25 ИИ-61 Лист № 51. Монолитные плиты П1 и П2 у деформ. швов для зданий с сеткой колонн 6х6 м. Узлы 26,27 ИИ-61 Лист № 52. Узлы 28 и 29 ИИ-61 Лист № 53. Монолитные плиты П3, П4 у деформац. швов для зданий с сеткой колонн /7+3+ 7/6 м. Узлы 30, 31 ИИ-61 Лист № 54. Узлы 32 и 33 | Разработан: | НИИЖБ ГСПИ-10 Гипротис ГСПИ-6 ГСПИ-5
| Утверждён: | 27.01.1960 Госстрой СССР (Государственный комитет Совета Министров СССР по делам строительства) (USSR Gosstroy 40)
| Расположен в: |
|
                                                             
|