Информационная система
«Ёшкин Кот»

Скачать базу одним архивом
Скачать обновления
История создания базы
Карта сайта

Скачать Серия ПК-01-99/62 Выпуск I. Плиты размером 3х12 м со стержневой арматурой. Рабочие чертежи

Дата актуализации: 10.08.2017

Серия ПК-01-99/62

Выпуск I. Плиты размером 3х12 м со стержневой арматурой. Рабочие чертежи

Обозначение: Серия ПК-01-99/62
Обозначение англ: Series ПК-01-99/62
Статус:не действует
Название рус.:Выпуск I. Плиты размером 3х12 м со стержневой арматурой. Рабочие чертежи
Дата добавления в базу:01.09.2013
Дата актуализации:05.05.2017
Оглавление:ПК-01 99/62 Пояснительная записка
ПК-01 99/62 Лист 1. Опалубочный чертеж плит ПНКЛ1/3х12 ПНКД4/3х12
ПК-01 99/62 Лист 2. Армирование плит. Продольные и поперечные разрезы. Детали расположения предварительно напряженной арматуры
ПК-01 99/62 Лист 3. Армирование плит. Детали 1-4. Спецификация марок арматурных изделий на одну плиту
ПК-01 99/62 Лист 4. Арматурные каркасы КР1-КР5, сварные сетки С1-С4
ПК-01 99/62 Лист 5. Сварные сетки С4 и С5. Спецификация и выборка стали
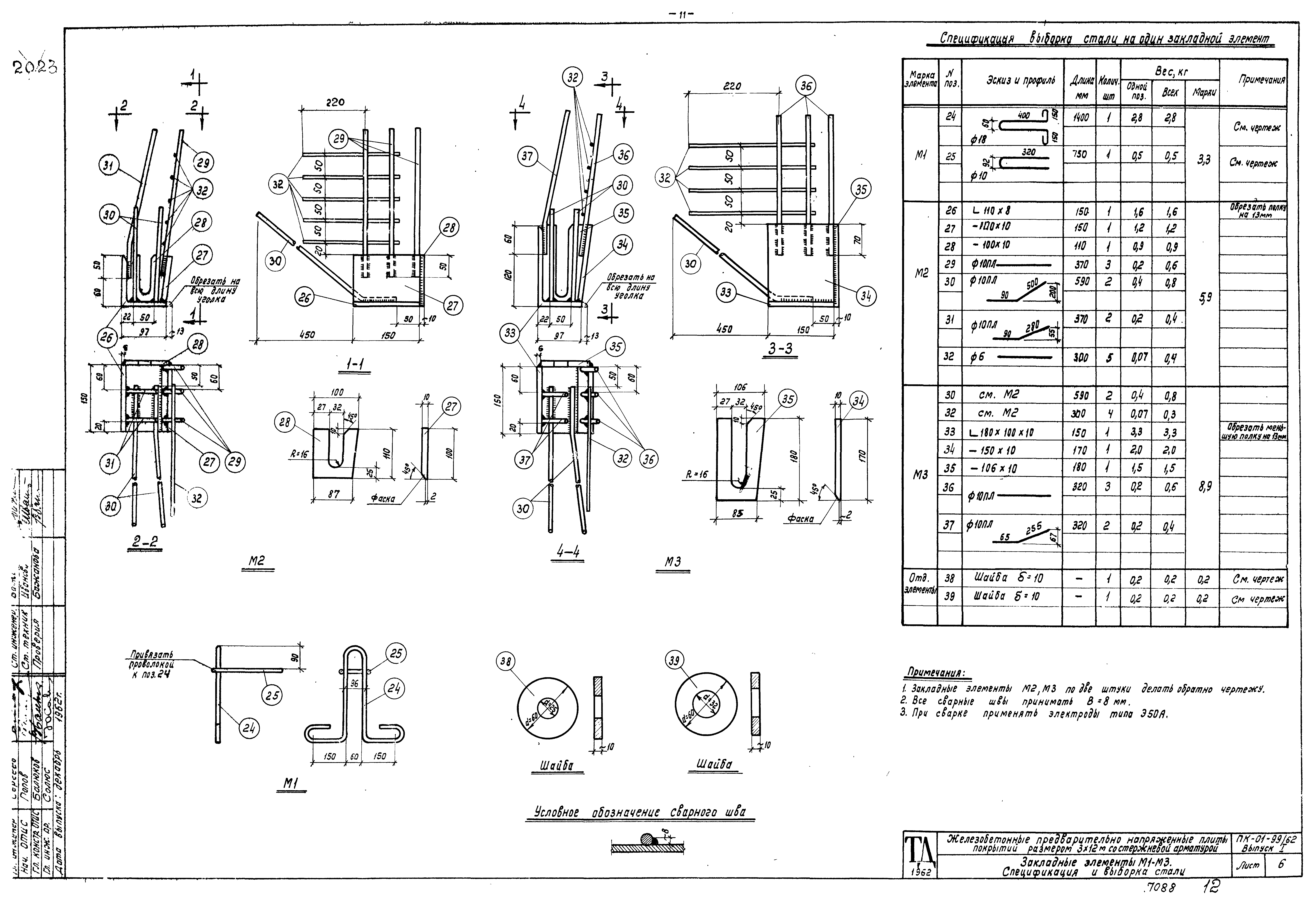
ПК-01 99/62 Лист 6. Закладные элементы М1-М3. Спецификация и выборка стали
ПК-01 99/62 Лист 7. Плиты для установки у температурного шва. Опалубка, деталь армирования, закладные элементы М4,М5, сетка С6. Спецификация и выборка стали
Разработан: НИИЖБ
Гипротис
Утверждён:14.12.1962 Госстрой СССР (Государственный комитет Совета Министров СССР по делам строительства) (USSR Gosstroy 466)
Расположен в:Техническая документация Строительство Справочные документы Типовые строительные конструкции, изделия и узлы Общероссийский строительный каталог Строительные конструкции, изделия и узлы зданий и сооружений для всех видов строительства Конструкции, изделия и узлы зданий Ограждающие конструкции Покрытия Сборные железобетонные плиты и панели
Заменяет собой:
Серия ПК-01-99/62Серия ПК-01-99/62Серия ПК-01-99/62Серия ПК-01-99/62Серия ПК-01-99/62Серия ПК-01-99/62Серия ПК-01-99/62Серия ПК-01-99/62Серия ПК-01-99/62Серия ПК-01-99/62Серия ПК-01-99/62Серия ПК-01-99/62Серия ПК-01-99/62Серия ПК-01-99/62

© 2013 Ёшкин Кот :-) Карта сайта