Скачать Серия ПК-01-118 Выпуск II. Рабочие чертежи плит размером 1,5х6 мДата актуализации: 10.08.2017 Серия ПК-01-118
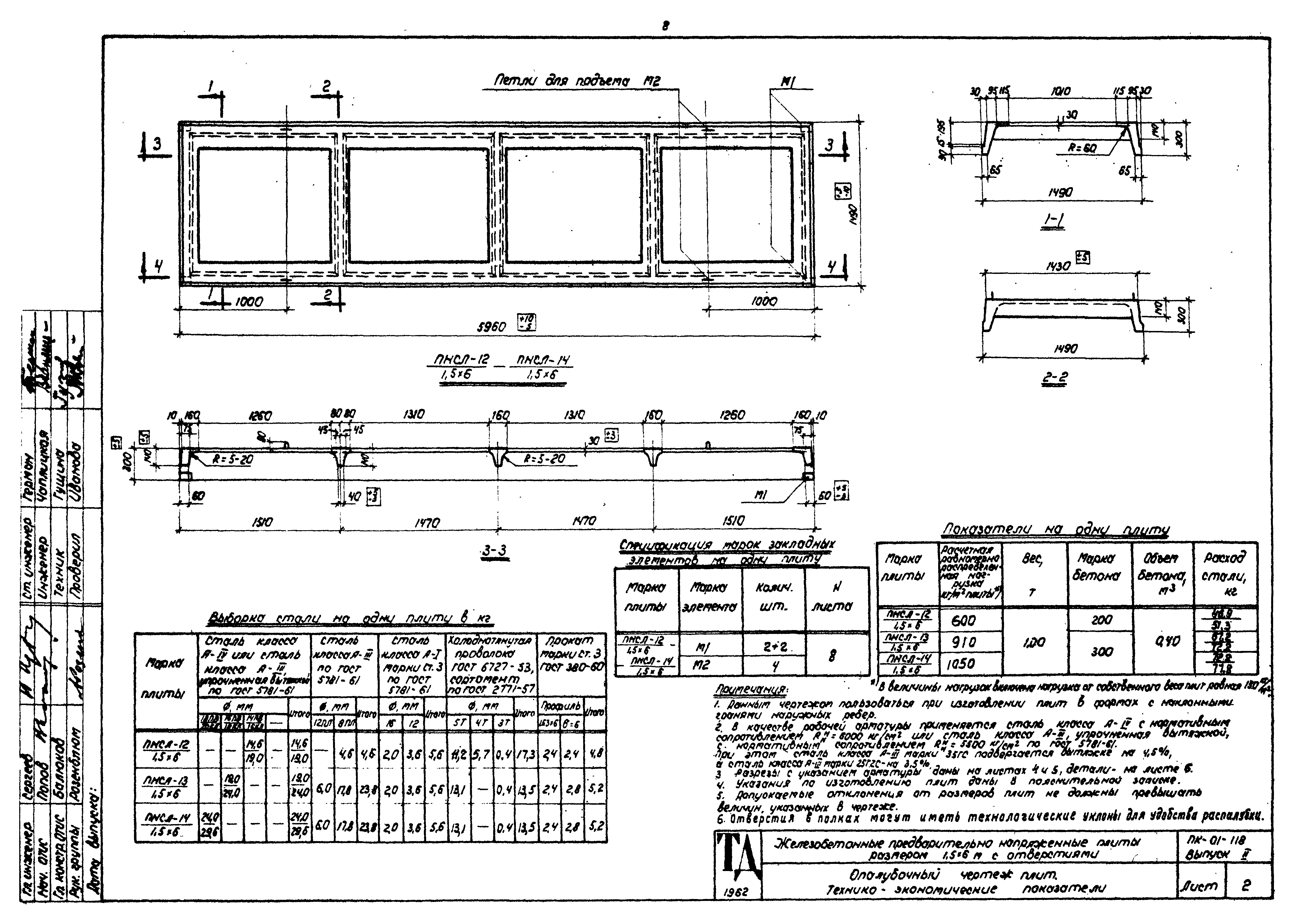
Выпуск II. Рабочие чертежи плит размером 1,5х6 мОбозначение: | Серия ПК-01-118 | Обозначение англ: | Series ПК-01-118 | Статус: | не действует | Название рус.: | Выпуск II. Рабочие чертежи плит размером 1,5х6 м | Дата добавления в базу: | 01.09.2013 | Дата актуализации: | 05.05.2017 | Оглавление: | ПК-01-118 Пояснительная записка ПК-01-118 Пример раскладки плит в покрытии с легкосбрасываемой кровлей ПК-01-118 Опалубочный чертеж плит. Технико-экономические показатели ПК-01-118 Армирование полки плит. Поперечный разрез плит ПК-01-118 Продольные разрезы плит. Расположение предварительно напряженной арматуры в продольном ребре ПК-01-118 Армирование плит. Детали ПК-01-118 Арматурные каркасы и сетка плит. Спецификация арматуры ПК-01-118 Закладные элементы | Разработан: | НИИЖБ Гипротис
| Утверждён: | 07.12.1962 Госстрой СССР (Государственный комитет Совета Министров СССР по делам строительства) (USSR Gosstroy 410)
| Расположен в: |
|
             
|