Информационная система
«Ёшкин Кот»

Скачать базу одним архивом
Скачать обновления
История создания базы
Карта сайта

Скачать Типовой проект 902-2-291 Альбом II. Нестандартизированное оборудование

Дата актуализации: 10.08.2017

Типовой проект 902-2-291

Альбом II. Нестандартизированное оборудование

Обозначение: Типовой проект 902-2-291
Обозначение англ: 902-2-291
Статус:действует
Название рус.:Альбом II. Нестандартизированное оборудование
Дата добавления в базу:01.09.2013
Дата актуализации:05.05.2017
Дата введения:15.11.1976
Оглавление:ТП 902-2-291 Содержание альбома
ТП 902-2-291 ТМ33ПЗ Пояснительная записка
ТП 902-2-291 Спецификации
ТП 902-2-291 ТМ33.01.03.04.00 СБ Муфта. Сборочный чертеж
ТП 902-2-291 ТМ33.01.00.00.00 СБ Механизм сгребания пены. Сборочный чертеж
ТП 902-2-291 ТМ33.01.03.03.00 Вилка
ТП 902-2-291 ТМ33.01.00.00.04 Планка
ТП 902-2-291 ТМ33.01.00.00.02 Полумуфта
ТП 902-2-291 ТМ33.01.00.00.01 Полумуфта
ТП 902-2-291 ТМ33.01.00.00.05 Полумуфта
ТП 902-2-291 ТМ33.01.02.00.02 Полумуфта
ТП 902-2-291 ТМ33.01.02.00.03 Крышка подшипника
ТП 902-2-291 ТМ33.01.01.00.00 СБ Каркас. Сборочный чертеж
ТП 902-2-291 ТМ33.01.01.00.01 Плита
ТП 902-2-291 ТМ33.01.01.00.02 Плита
ТП 902-2-291 ТМ33.01.01.00.03 Уголок
ТП 902-2-291 ТМ33.01.01.00.04 Стойка
ТП 902-2-291 ТМ33.01.02.00.00 СБ Опора. Сборочный чертеж
ТП 902-2-291 ТМ33.01.02.01.00 СБ Вал с фланцем. Сборочный чертеж
ТП 902-2-291 ТМ33.01.02.02.00 СБ Корпус. Сборочный чертеж
ТП 902-2-291 ТМ33.01.02.02.02 Фланец нижний
ТП 902-2-291 ТМ33.01.02.00.01 Фланец
ТП 902-2-291 ТМ33.01.00.00.03 Перекладина
ТП 902-2-291 ТМ33.01.02.02.01 Фланец верхний
ТП 902-2-291 ТМ33.01.03.00.00 СБ Скребок. Сборочный чертеж
ТП 902-2-291 ТМ33.01.03.01.00 СБ Опора. Сборочный чертеж
ТП 902-2-291 ТМ33.01.03.01.01 Фланец
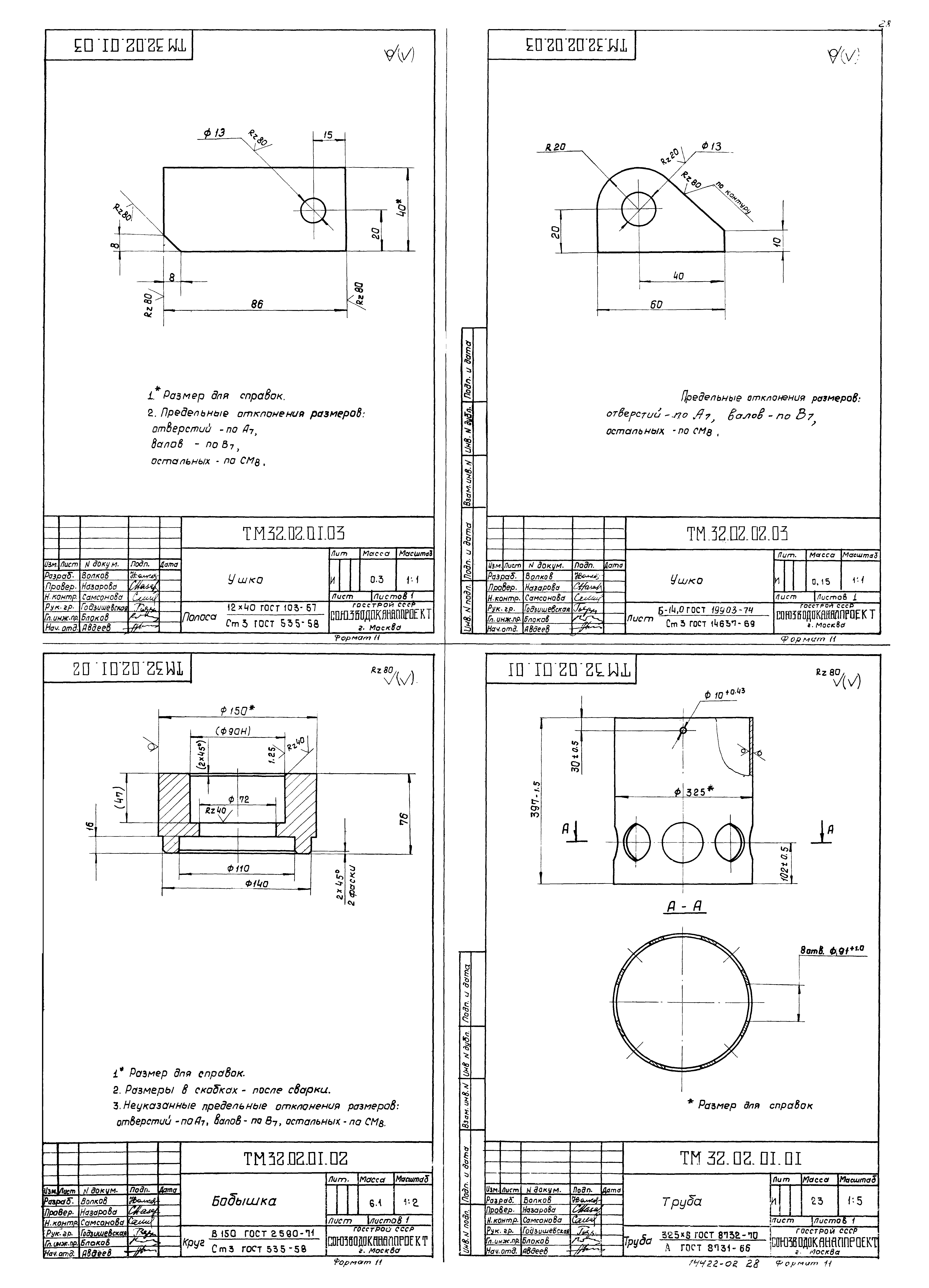
ТП 902-2-291 ТМ33.01.03.01.02 Ушко
ТП 902-2-291 ТМ33.01.03.02.00 СБ Лопасть. Сборочный чертеж
ТП 902-2-291 ТМ33.01.03.02.02 Планка
ТП 902-2-291 ТМ33.01.03.02.05 Планка
ТП 902-2-291 ТМ33.01.03.02.06 Пластина
ТП 902-2-291 ТМ33.01.03.03.00 СБ Тяга. Сборочный чертеж
ТП 902-2-291 Спецификации
ТП 902-2-291 ТМ33.02.00.04 Втулка
ТП 902-2-291 ТМ33.02.00.00 СБ Водораспределитель вращающийся. Сборочный чертеж
ТП 902-2-291 ТМ33.02.00.01 Ось
ТП 902-2-291 ТМ33.02.00.02 Крышка
ТП 902-2-291 ТМ33.02.00.03 Пробка
ТП 902-2-291 ТМ33.02.01.00 СБ Корпус. Сборочный чертеж
ТП 902-2-291 ТМ33.02.01.01 Труба
ТП 902-2-291 ТМ33.02.01.02 Бобышка
ТП 902-2-291 ТМ33.02.01.03 Ушко
ТП 902-2-291 ТМ33.02.02.03 Ушко
ТП 902-2-291 ТМ33.02.02.00 СБ Труба со штуцером. Сборочный чертеж
ТП 902-2-291 ТМ33.02.03.00 СБ Фланец опорный. Сборочный чертеж
ТП 902-2-291 ТМ33.02.03.01 Фланец
ТП 902-2-291 ТМ33.02.04.00 СБ Опора. Сборочный чертеж
ТП 902-2-291 Спецификации
ТП 902-2-291 ТМ33.03.01.02 Ребро
ТП 902-2-291 ТМ33.03.01.03 Заглушка
ТП 902-2-291 ТМ33.03.00.00 СБ Лоток пеносборный. Сборочный чертеж
ТП 902-2-291 ТМ33.03.03.00 СБ Опора. Сборочный чертеж
ТП 902-2-291 ТМ33.03.01.00 СБ Лоток. Сборочный чертеж
ТП 902-2-291 ТМ33.03.02.00 СБ Труба пеногашения. Сборочный чертеж
ТП 902-2-291 ТМ33.03.00.01 Хомут
ТП 902-2-291 ТМ33.03.01.01 Направляющая
ТП 902-2-291 Спецификации
ТП 902-2-291 ТМ33.04.01 Стрелка
ТП 902-2-291 ТМ33.04.02 Опора
ТП 902-2-291 ТМ33.04.00 СБ Указатель вращения водораспределителя. Сборочный чертеж
Разработан: Союзводоканалпроект
Утверждён:26.08.1976 Главпромстройпроект Госстроя СССР (62)
Расположен в:Техническая документация Строительство Справочные документы Типовые строительные конструкции, изделия и узлы Общероссийский строительный каталог Промышленные предприятия, здания и сооружения Здания и сооружения санитарно-технические Канализация Сооружения для очистки производственных сточных вод Флотаторы
Типовой проект 902-2-291Типовой проект 902-2-291Типовой проект 902-2-291Типовой проект 902-2-291Типовой проект 902-2-291Типовой проект 902-2-291Типовой проект 902-2-291Типовой проект 902-2-291Типовой проект 902-2-291Типовой проект 902-2-291Типовой проект 902-2-291Типовой проект 902-2-291Типовой проект 902-2-291Типовой проект 902-2-291Типовой проект 902-2-291Типовой проект 902-2-291Типовой проект 902-2-291Типовой проект 902-2-291Типовой проект 902-2-291Типовой проект 902-2-291Типовой проект 902-2-291Типовой проект 902-2-291Типовой проект 902-2-291Типовой проект 902-2-291Типовой проект 902-2-291Типовой проект 902-2-291Типовой проект 902-2-291Типовой проект 902-2-291Типовой проект 902-2-291Типовой проект 902-2-291Типовой проект 902-2-291Типовой проект 902-2-291Типовой проект 902-2-291Типовой проект 902-2-291Типовой проект 902-2-291Типовой проект 902-2-291Типовой проект 902-2-291Типовой проект 902-2-291Типовой проект 902-2-291

© 2013 Ёшкин Кот :-) Карта сайта