Информационная система
«Ёшкин Кот»

Скачать базу одним архивом
Скачать обновления
История создания базы
Карта сайта

Скачать Типовой проект 901-6-93с.86 Альбом VIII. Электрооборудование. Автоматизация. Электрическое освещение

Дата актуализации: 10.08.2017

Типовой проект 901-6-93с.86

Альбом VIII. Электрооборудование. Автоматизация. Электрическое освещение

Обозначение: Типовой проект 901-6-93с.86
Обозначение англ: 901-6-93с.86
Статус:не действует
Название рус.:Альбом VIII. Электрооборудование. Автоматизация. Электрическое освещение
Дата добавления в базу:01.09.2013
Дата актуализации:05.05.2017
Оглавление:ТП 901-6-93с.86-АЭМ-1 Общие данные (начало)
ТП 901-6-93с.86-АЭМ-2 Общие данные (окончание)
ТП 901-6-93с.86-АЭМ-3 Сеть 380/220 В. Схема электрическая принципиальная
ТП 901-6-93с.86-АЭМ-4 Вентилятор. Схема электрическая принципиальная
ТП 901-6-93с.86-АЭМ-5 Общие цепи вентиляторов (до 6и). Схема электрическая принципиальная
ТП 901-6-93с.86-АЭМ-6 Общие цепи вентиляторов (до 12и). Схема электрическая принципиальная
ТП 901-6-93с.86-АЭМ-7 Кабельный журнал
ТП 901-6-93с.86-АЭМ-8 План расположения электрооборудования и прокладка кабелей
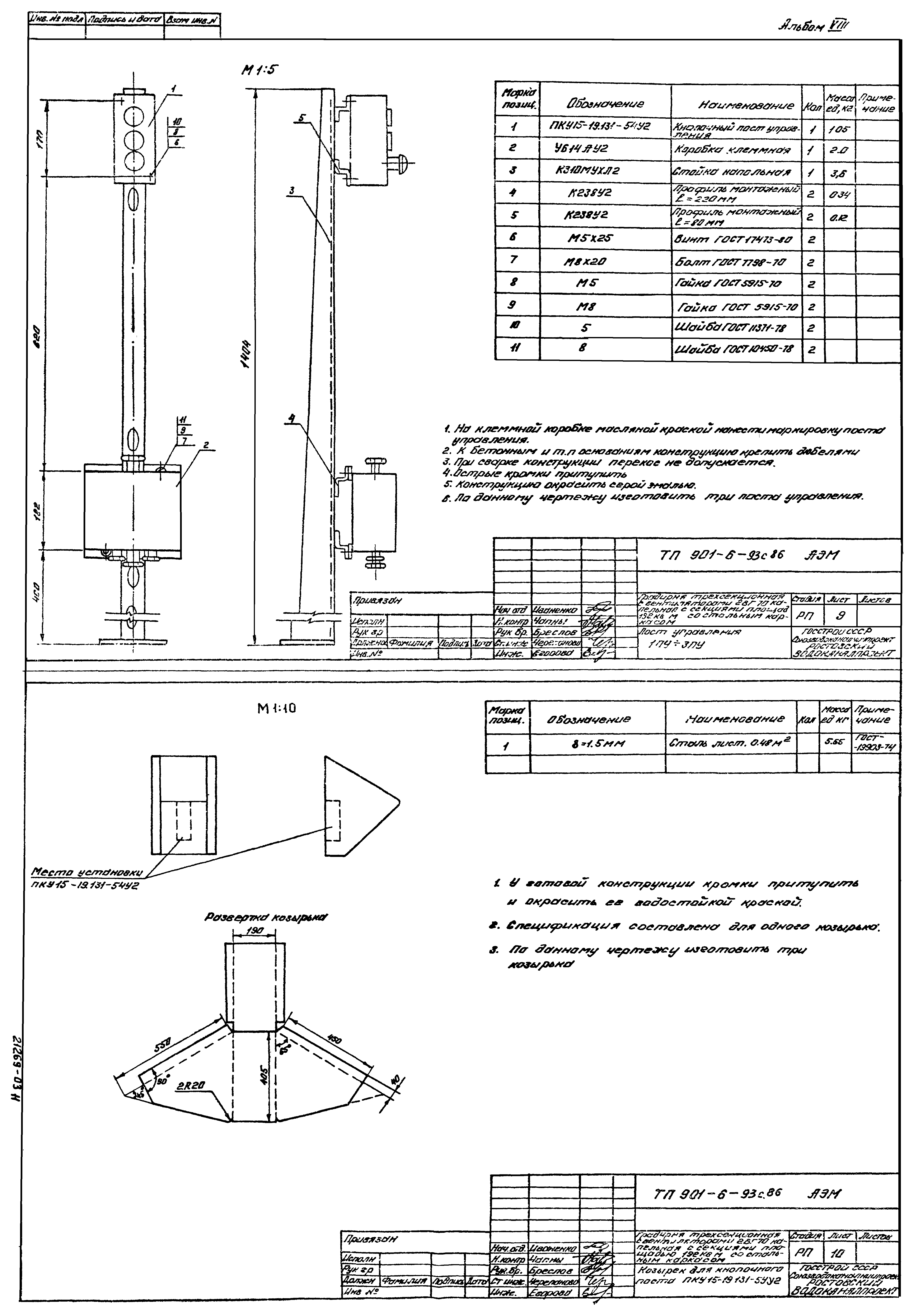
ТП 901-6-93с.86-АЭМ-9 Пост управления 1ПУ-3ПУ
ТП 901-6-93с.86-АЭМ-10 Козырек для кнопочного поста ПКУ15-19.131-54У2
ТП 901-6-93с.86-АЭМ-11 Электрическое освещение. План
Разработан: Союзводоканалпроект
ЦНИИпроектстальконструкция
Ростовский Водоканалпроект
Утверждён:20.11.1985 Госстрой СССР (Государственный комитет Совета Министров СССР по делам строительства) (USSR Gosstroy АЧ-49)
Расположен в:Техническая документация Строительство Справочные документы Типовые строительные конструкции, изделия и узлы Общероссийский строительный каталог Промышленные предприятия, здания и сооружения Здания и сооружения санитарно-технические Водоснабжение Градирни
Типовой проект 901-6-93с.86Типовой проект 901-6-93с.86Типовой проект 901-6-93с.86Типовой проект 901-6-93с.86Типовой проект 901-6-93с.86Типовой проект 901-6-93с.86Типовой проект 901-6-93с.86Типовой проект 901-6-93с.86Типовой проект 901-6-93с.86Типовой проект 901-6-93с.86Типовой проект 901-6-93с.86Типовой проект 901-6-93с.86Типовой проект 901-6-93с.86

© 2013 Ёшкин Кот :-) Карта сайта