Информационная система
«Ёшкин Кот»

Скачать базу одним архивом
Скачать обновления
История создания базы
Карта сайта

Скачать Типовой проект 902-1-53 Альбом II. Нестандартизированное оборудование

Дата актуализации: 10.08.2017

Типовой проект 902-1-53

Альбом II. Нестандартизированное оборудование

Обозначение: Типовой проект 902-1-53
Обозначение англ: 902-1-53
Статус:не действует
Название рус.:Альбом II. Нестандартизированное оборудование
Дата добавления в базу:01.09.2013
Дата актуализации:05.05.2017
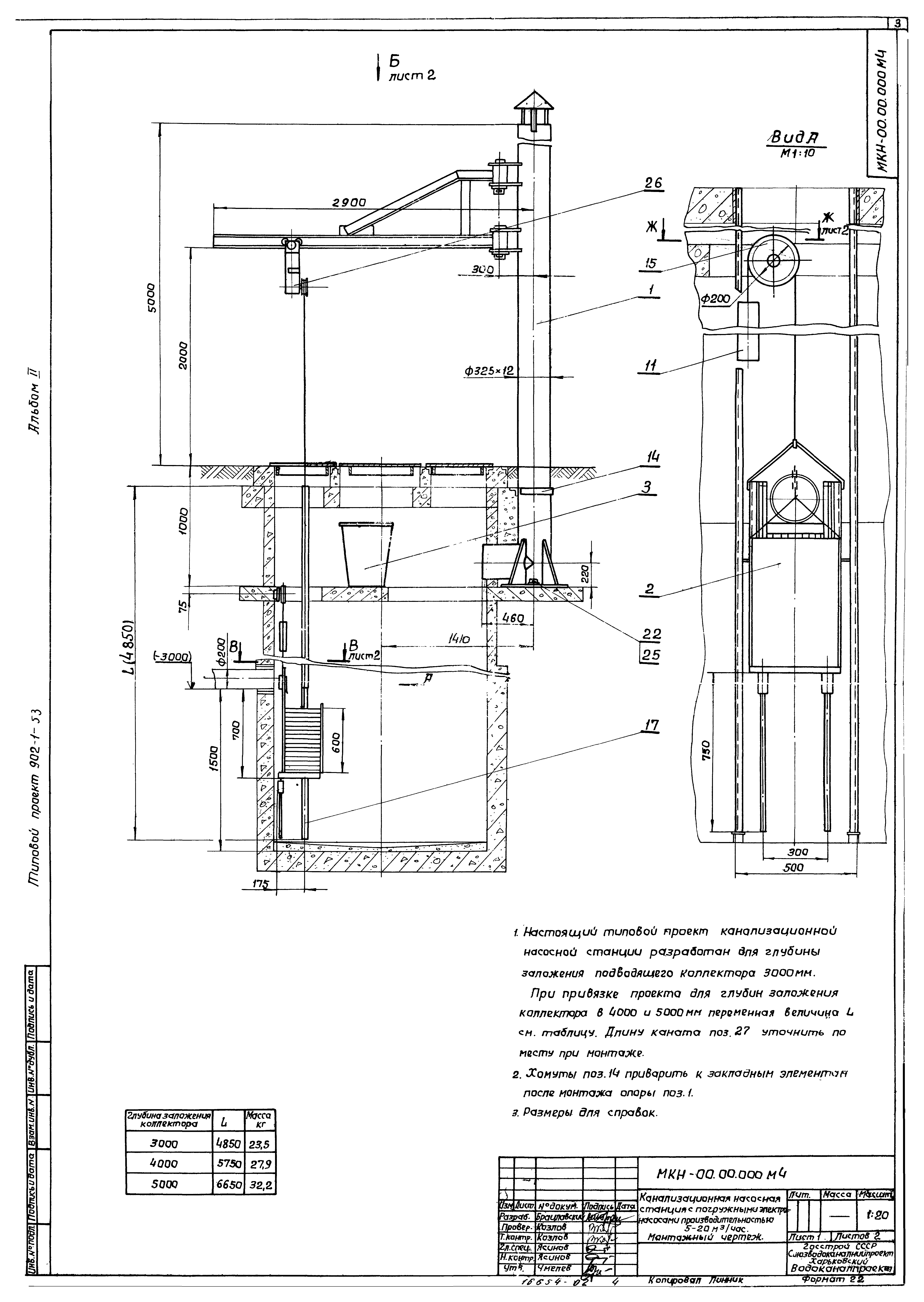
Оглавление:ТП 902-1-53 МКН-00.00.000 МЧ Канализационная насосная станция с погружными электронасосами производительностью 5-20 м³/ч. Монтажный чертеж. Лист1
ТП 902-1-53 МКН-00.00.000 МЧ Канализационная насосная станция с погружными электронасосами производительностью 5-20 м³/ч. Монтажный чертеж. Лист2
ТП 902-1-53 МКН-01.00.000 СБ Опора. Сборочный чертеж
ТП 902-1-53 МКН-01.01.000 СБ Труба вентиляционная. Сборочный чертеж
ТП 902-1-53 МКН-01.02.000 СБ Стрела. Сборочный чертеж
ТП 902-1-53 МКН-04.00.000 СБ Решетка-заслонка. Сборочный чертеж
ТП 902-1-53 МКН-01.01.001 Конус
ТП 902-1-53 МКН-01.01.002 Плита
ТП 902-1-53 МКН-01.01.003 Плита опорная
ТП 902-1-53 МКН-01.01.004 Ребро
ТП 902-1-53 МКН-01.01.005 Ребро
ТП 902-1-53 МКН-01.00.001 Палец
ТП 902-1-53 МКН-05.00.001 Ось
ТП 902-1-53 МКН-00.00.002 Блок
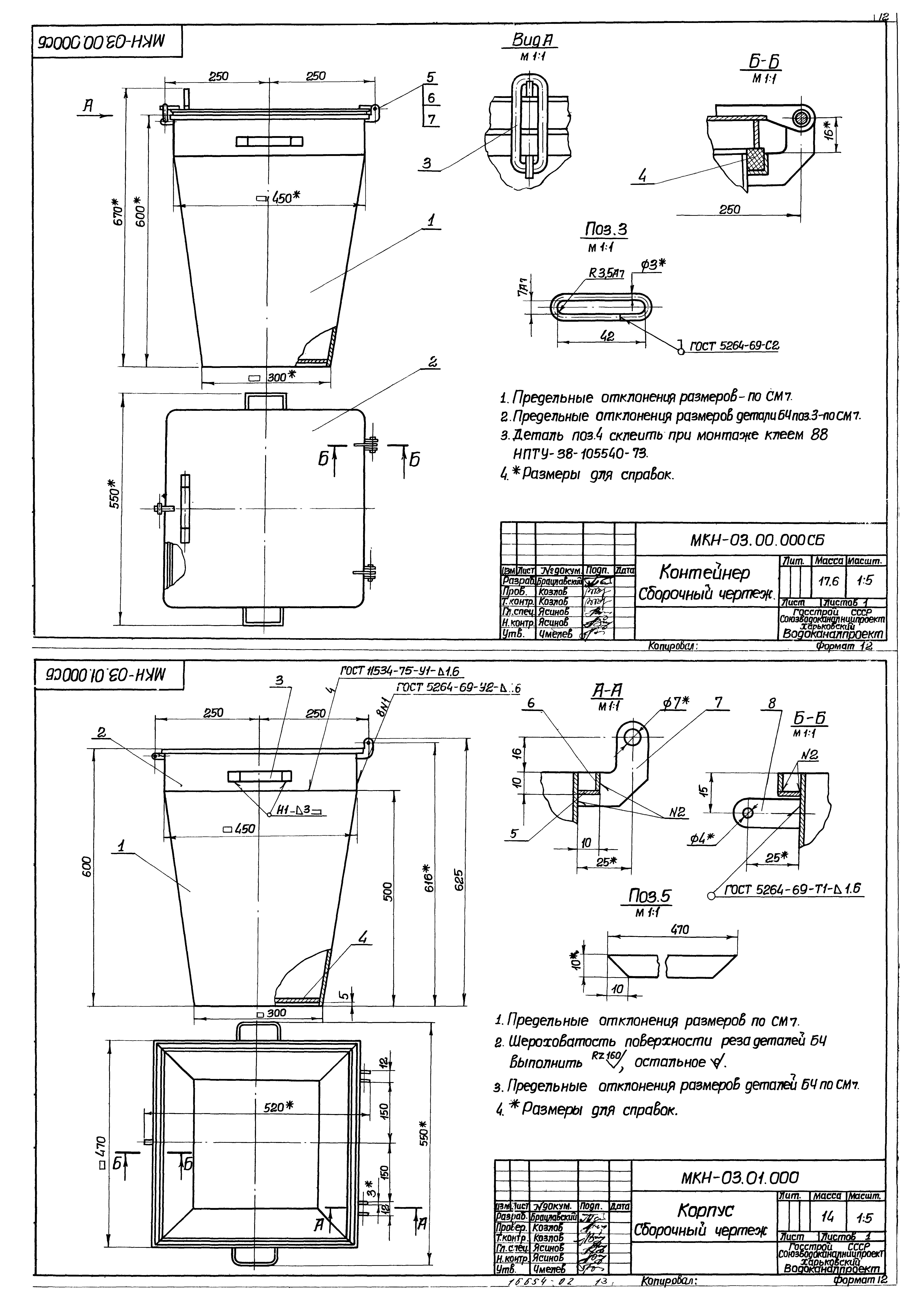
ТП 902-1-53 МКН-02.00.000 СБ Контейнер решетчатый. Сборочный чертеж
ТП 902-1-53 МКН-02.01.000 СБ Корпус. Сборочный чертеж
ТП 902-1-53 МКН-02.01.001 Ручка
ТП 902-1-53 МКН-02.02.000 СБ Петля. Сборочный чертеж
ТП 902-1-53 МКН-02.03.000 СБ Запор. Сборочный чертеж
ТП 902-1-53 МКН-02.04.000 СБ Дно. Сборочный чертеж
ТП 902-1-53 МКН-02.01.002 Ушко
ТП 902-1-53 МКН-03.01.001 Стенка
ТП 902-1-53 МКН-03.01.003 Ручка
ТП 902-1-53 МКН-03.01.008 Кронштейн
ТП 902-1-53 МКН-03.00.000 СБ Кронштейн. Сборочный чертеж
ТП 902-1-53 МКН-03.01.000 СБ Корпус. Сборочный чертеж
ТП 902-1-53 МКН-03.01.007 Кронштейн
ТП 902-1-53 МКН-03.02.005 Ушко
ТП 902-1-53 МКН-03.02.000 СБ Крышка. Сборочный чертеж
ТП 902-1-53 МКН-04.00.001 Скоба
ТП 902-1-53 МКН-04.00.002 Стойка
ТП 902-1-53 МКН-04.00.003 Косынка
ТП 902-1-53 МКН-04.00.003 Решетка-заслонка
ТП 902-1-53 МКН-05.00.000 СБ Кронштейн. Сборочный чертеж
ТП 902-1-53 МКН-06.00.000 СБ Скребок. Сборочный чертеж
ТП 902-1-53 МКН-11.00.000 СБ Контргруз. Сборочный чертеж
ТП 902-1-53 МКН-00.00.005 Кольцо
ТП 902-1-53 МКН-07.00.000 СБ Крышка с пазом. Сборочный чертеж
ТП 902-1-53 МКН-08.00.000 СБ Крышка крайняя. Сборочный чертеж
ТП 902-1-53 МКН-09.00.000 СБ Крышка средняя. Сборочный чертеж
ТП 902-1-53 МКН-10.00.000 СБ Крышка. Сборочный чертеж
ТП 902-1-53 МКН-12.00.000 СБ Шкаф. Сборочный чертеж
ТП 902-1-53 МКН-12.00.000 Шкаф
ТП 902-1-53 МКН-00.00.000 Канализационная насосная станция с погружными электронасосами производительностью 5-20 м³/час
ТП 902-1-53 МКН-01.00.000 Опора
ТП 902-1-53 МКН-01.01.000 Труба вентиляционная
ТП 902-1-53 МКН-01.02.000 Стрела
ТП 902-1-53 МКН-02.00.000 Кронштейн решетчатый
ТП 902-1-53 МКН-02.01.000 Корпус
ТП 902-1-53 МКН-02.02.000 Петля
ТП 902-1-53 МКН-02.04.000 Дно
ТП 902-1-53 МКН-02.03.000 Запор
ТП 902-1-53 МКН-03.00.000 Контейнер
ТП 902-1-53 МКН-03.01.000 Корпус
ТП 902-1-53 МКН-03.02.000 Крышка
ТП 902-1-53 МКН-04.00.000 Решетка-заслонка
ТП 902-1-53 МКН-05.00.000 Кронштейн
ТП 902-1-53 МКН-06.00.000 Скребок
ТП 902-1-53 МКН-11.00.000 Контргруз
ТП 902-1-53 МКН-07.00.000 Крышка с пазом
ТП 902-1-53 МКН-08.00.000 Крышка крайняя
ТП 902-1-53 МКН-09.00.000 Крышка средняя
ТП 902-1-53 МКН-10.00.000 Крышка
ТП 902-1-53 МКН-12.00.009 Уголок
ТП 902-1-53 МКН-12.00.011 Уголок
ТП 902-1-53 МКН-12.00.013 Уголок
ТП 902-1-53 МКН-12.00.015 Уголок
Разработан: Харьковский Водоканалпроект
Утверждён:21.03.1980 СоюзводоканалНИИпроект (SoyuzvodokanalNIIproject 83)
Расположен в:Техническая документация Строительство Справочные документы Типовые строительные конструкции, изделия и узлы Общероссийский строительный каталог Промышленные предприятия, здания и сооружения Здания и сооружения санитарно-технические Канализация Станции насосные Станции насосные для перекачки бытовых сточных вод
Заменяет собой:
Типовой проект 902-1-53Типовой проект 902-1-53Типовой проект 902-1-53Типовой проект 902-1-53Типовой проект 902-1-53Типовой проект 902-1-53Типовой проект 902-1-53Типовой проект 902-1-53Типовой проект 902-1-53Типовой проект 902-1-53Типовой проект 902-1-53Типовой проект 902-1-53Типовой проект 902-1-53Типовой проект 902-1-53Типовой проект 902-1-53Типовой проект 902-1-53Типовой проект 902-1-53Типовой проект 902-1-53Типовой проект 902-1-53Типовой проект 902-1-53Типовой проект 902-1-53Типовой проект 902-1-53Типовой проект 902-1-53Типовой проект 902-1-53Типовой проект 902-1-53Типовой проект 902-1-53Типовой проект 902-1-53Типовой проект 902-1-53Типовой проект 902-1-53

© 2013 Ёшкин Кот :-) Карта сайта