Информационная система
«Ёшкин Кот»

Скачать базу одним архивом
Скачать обновления
История создания базы
Карта сайта

Скачать Типовой проект 904-1-33 Альбом X. Нестандартизированное оборудование

Дата актуализации: 10.08.2017

Типовой проект 904-1-33

Альбом X. Нестандартизированное оборудование

Обозначение: Типовой проект 904-1-33
Обозначение англ: 904-1-33
Статус:не действует
Название рус.:Альбом X. Нестандартизированное оборудование
Дата добавления в базу:01.09.2013
Дата актуализации:05.05.2017
Оглавление:ТП 904-1-33 Титульный лист
ТП 904-1-33 Содержание альбома
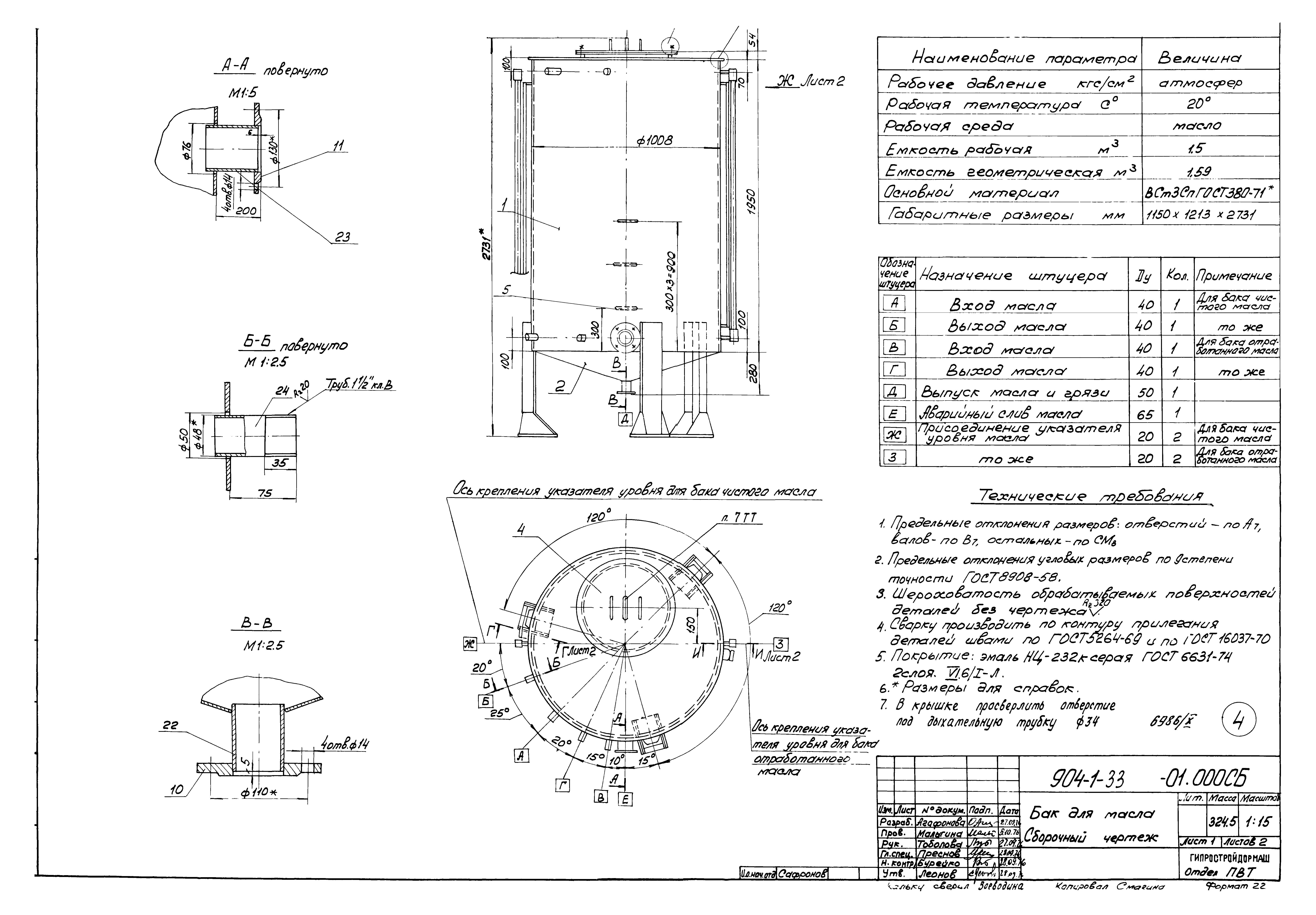
ТП 904-1-33-01.000 Бак для масла
ТП 904-1-33-01.000 СБ Бак для масла. Сборочный чертеж
ТП 904-1-33-02.000 Глушитель шума на всасывании
ТП 904-1-33-02.000 СБ Глушитель шума на всасывании. Сборочный чертеж
ТП 904-1-33-03.000 Патрубок для присоединения воздушного фильтра
ТП 904-1-33-03.000 СБ Патрубок для присоединения воздушного фильтра. Сборочный чертеж
ТП 904-1-33-02.100 Секция шумоглушения №1
ТП 904-1-33-02.100 СБ Секция шумоглушения №1. Сборочный чертеж
ТП 904-1-33-02.200 Секция шумоглушения №2
ТП 904-1-33-02.200 СБ Секция шумоглушения №2. Сборочный чертеж
ТП 904-1-33-02.110 Рама
ТП 904-1-33-02.110 СБ Рама. Сборочный чертеж
ТП 904-1-33-04.000 Глушитель выхлопа
ТП 904-1-33-04.000 СБ Глушитель выхлопа. Сборочный чертеж
ТП 904-1-33-05.000 Опора под маслобак (для 4К-250А,6К-250А,4К-500А)
ТП 904-1-33-05.000 СБ Опора под маслобак (для 4К-250А,6К-250А,4К-500А). Сборочный чертеж
ТП 904-1-33-06.000 Опора под маслобак (для 4К-350А)
ТП 904-1-33-06.000 СБ Опора под маслобак (для 4К-350А). Сборочный чертеж
ТП 904-1-33-07.000 Приспособление для выкатки воздухоохладителя (для 4К-250А,6К-250А)
ТП 904-1-33-07.000 СБ Приспособление для выкатки воздухоохладителя (для 4К-250А,6К-250А). Сборочный чертеж
ТП 904-1-33-08.000 Опора под электропривод задвижки (для 4К-500А)
ТП 904-1-33-08.000 СБ Опора под электропривод задвижки (для 4К-500А). Сборочный чертеж
ТП 904-1-33-09.000 Приспособление для выкатки трубных пучков воздухоохладителя (для 4К-350А)
ТП 904-1-33-09.000 СБ Приспособление для выкатки трубных пучков воздухоохладителя (для 4К-350А). Сборочный чертеж
ТП 904-1-33-10.000 Приспособление для выкатки воздухоохладителя (для 4К-500А)
ТП 904-1-33-10.000 СБ Приспособление для выкатки воздухоохладителя (для 4К-500А). Сборочный чертеж
ТП 904-1-33-30.000 Площадка подвесная для обслуживания светильников
ТП 904-1-33-30.100 Площадка в сборе
ТП 904-1-33-30.110 Металлоконструкция
ТП 904-1-33-30.000 СБ Площадка подвесная для обслуживания светильников. Сборочный чертеж
ТП 904-1-33-03.100 СБ Площадка в сборе. Сборочный чертеж
ТП 904-1-33-30.110 СБ Металлоконструкция. Сборочный чертеж
ТП 904-1-33-30.130 Дверца
ТП 904-1-33-30.130 СБ Дверца. Сборочный чертеж
ТП 904-1-33-31.000 Опора под 1БП(2БП)
ТП 904-1-33-31.000 СБ Опора под 1БП(2БП). Сборочный чертеж
ТП 904-1-33-31.010 СБ Рама. Сборочный чертеж
ТП 904-1-33-31.001 Плита
ТП 904-1-33-32.000 Фиксатор
ТП 904-1 Перечень стандартов
Разработан: Гипростройдормаш
Утверждён:29.11.1976 Минстройдормаш (Minstroydormash 39/76)
Расположен в:Техническая документация Строительство Справочные документы Типовые строительные конструкции, изделия и узлы Общероссийский строительный каталог Промышленные предприятия, здания и сооружения Здания и сооружения санитарно-технические Воздухоснабжение, вентиляция и кондиционирование воздуха Воздухоснабжение
Типовой проект 904-1-33Типовой проект 904-1-33Типовой проект 904-1-33Типовой проект 904-1-33Типовой проект 904-1-33Типовой проект 904-1-33Типовой проект 904-1-33Типовой проект 904-1-33Типовой проект 904-1-33Типовой проект 904-1-33Типовой проект 904-1-33Типовой проект 904-1-33Типовой проект 904-1-33Типовой проект 904-1-33Типовой проект 904-1-33Типовой проект 904-1-33Типовой проект 904-1-33Типовой проект 904-1-33Типовой проект 904-1-33Типовой проект 904-1-33Типовой проект 904-1-33Типовой проект 904-1-33Типовой проект 904-1-33

© 2013 Ёшкин Кот :-) Карта сайта