Информационная система
«Ёшкин Кот»

Скачать базу одним архивом
Скачать обновления
История создания базы
Карта сайта

Скачать Типовой проект 904-1-33 Альбом III. Электротехническая часть. Вариант с тиристорным возбудительным устройством. Постоянный ток

Дата актуализации: 10.08.2017

Типовой проект 904-1-33

Альбом III. Электротехническая часть. Вариант с тиристорным возбудительным устройством. Постоянный ток

Обозначение: Типовой проект 904-1-33
Обозначение англ: 904-1-33
Статус:не действует
Название рус.:Альбом III. Электротехническая часть. Вариант с тиристорным возбудительным устройством. Постоянный ток
Дата добавления в базу:01.09.2013
Дата актуализации:05.05.2017
Оглавление:ТП 904-1-33-ЭЛ-1 Содержание альбома
ТП 904-1-33-ЭЛ-2 Пояснительная записка
ТП 904-1-33-ЭЛ-3 Распредустройство 6(10) кВ. Принципиальная однолинейная схема
ТП 904-1-33-ЭЛ-4 Размещение электрооборудования. План на отм. 0.
ТП 904-1-33-ЭЛ-5 Размещение электрооборудования. Элементы плана на отм. +3.800
ТП 904-1-33-ЭЛ-6 Прокладка кабелей на отм. 0. План
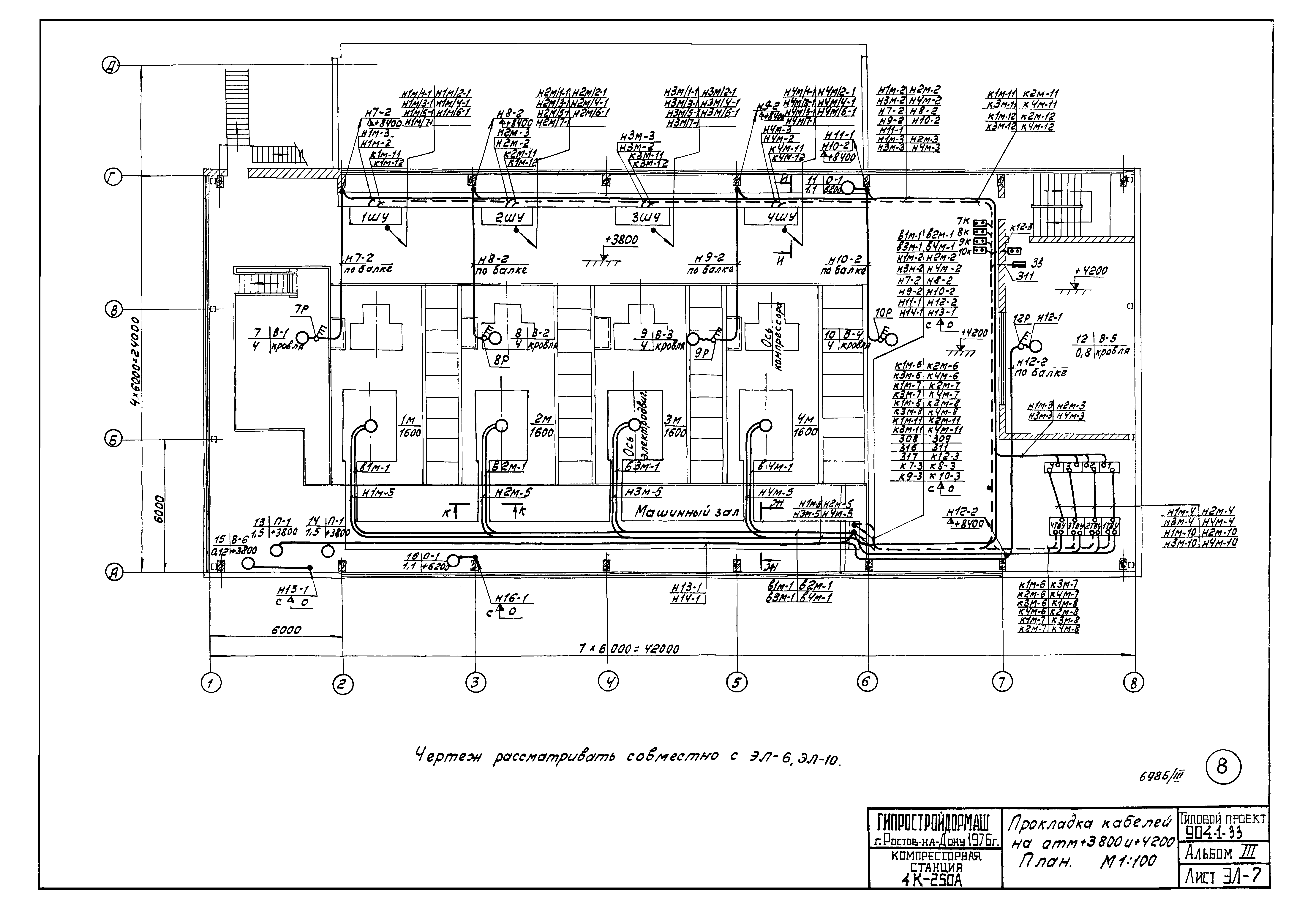
ТП 904-1-33-ЭЛ-7 Прокладка кабелей на отм. +3.800 и +4.200. План М1:100
ТП 904-1-33-ЭЛ-8 Прокладка кабелей одного компрессорного агрегата
ТП 904-1-33-ЭЛ-9 Маслохозяйство. Прокладка кабелей. План
ТП 904-1-33-ЭЛ-10 Прокладка кабелей. Разрезы
ТП 904-1-33-ЭЛ-11 Кабельный журнал
ТП 904-1-33-ЭЛ-12 Кабельный журнал
ТП 904-1-33-ЭЛ-13 Кабельный журнал
ТП 904-1-33-ЭЛ-14 Кабельный журнал
ТП 904-1-33-ЭЛ-15 Кабельный журнал
ТП 904-1-33-ЭЛ-16 Таблица технических данных электроприемников
ТП 904-1-33-ЭЛ-17 Таблица технических данных электроприемников
ТП 904-1-33-ЭЛ-18 Схема принципиальная камеры КРУ2-6(10)Э синхронного электродвигателя
ТП 904-1-33-ЭЛ-19 Схема принципиальная камеры КРУ2-6(10)Э ввода 1(2)
ТП 904-1-33-ЭЛ-20 Схема принципиальная камеры КРУ2-6(10)Э секционного выключателя
ТП 904-1-33-ЭЛ-21 Схема принципиальная камеры КРУ2-6(10)Э трансформатора напряжения
ТП 904-1-33-ЭЛ-22 Схема принципиальная камеры КРУ2-6(10)Э трансформатора насосной
ТП 904-1-33-ЭЛ-23 Схема принципиальная управления тиристорным возбудительным агрегатом двигателя компрессора
ТП 904-1-33-ЭЛ-24 Принципиальная схема питания шинок выпрямленного тока
ТП 904-1-33-ЭЛ-25 Принципиальная схема питания шинок выпрямленного тока
ТП 904-1-33-ЭЛ-26 Защита минимального напряжения электродвигателей. Схема принципиальная
ТП 904-1-33-ЭЛ-27 Защита минимального напряжения электродвигателей. Схема принципиальная
ТП 904-1-33-ЭЛ-28 Контроль изоляции шинок выпрямленного тока. Схема принципиальная
ТП 904-1-33-ЭЛ-29 Переоборудование камеры КРУ2-6(10)Э синхронного электродвигателя
ТП 904-1-33-ЭЛ-30 Переоборудование камеры КРУ2-6(10)Э ввода
ТП 904-1-33-ЭЛ-31 Переоборудование камеры КРУ2-6(10)Э трансформатора напряжения
ТП 904-1-33-ЭЛ-32 Переоборудование камеры КРУ2-6(10)Э секционного выключателя
ТП 904-1-33-ЭЛ-33 Схема подключения камер КРУ2-6(10)Э №1,2,3,4
ТП 904-1-33-ЭЛ-34 Схема подключения камер КРУ2-6(10)Э №5,6,7,8
ТП 904-1-33-ЭЛ-35 Схема подключения камер КРУ2-6(10)Э №9,10,11
ТП 904-1-33-ЭЛ-36 Схема подключения камер КРУ2-6(10)Э №12,13
ТП 904-1-33-ЭЛ-37 Схема подключения шкафа ТВУ
ТП 904-1-33-ЭЛ-38 Схема подключения силовых цепей привода компрессора
ТП 904-1-33-ЭЛ-39 Щит управления оперативным током ЩУ. Общий вид
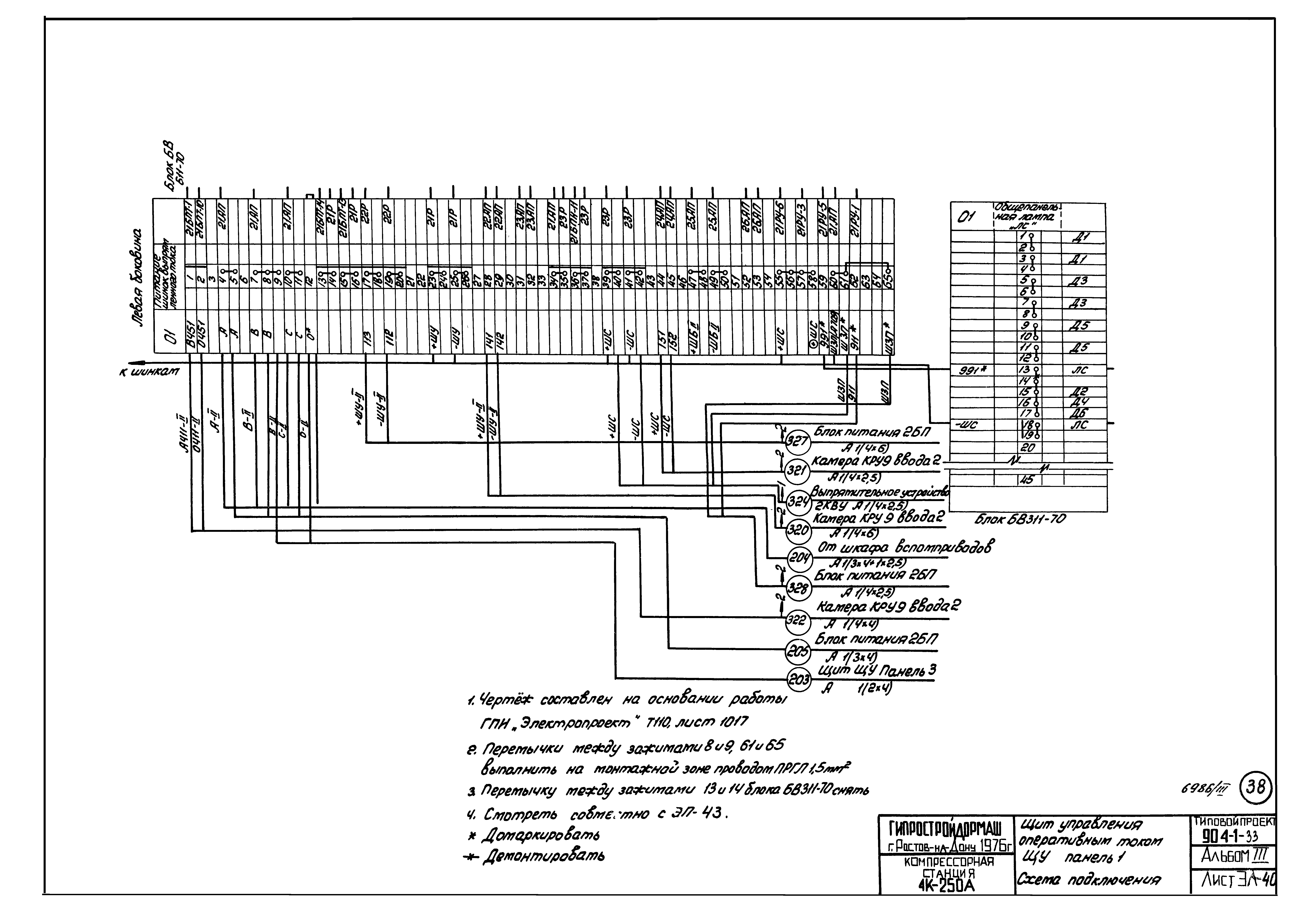
ТП 904-1-33-ЭЛ-40 Щит управления оперативным током ЩУ. Панель 1. Схема подключения
ТП 904-1-33-ЭЛ-41 Щит управления оперативным током ЩУ. Панель 2. Схема подключения
ТП 904-1-33-ЭЛ-42 Щит управления оперативным током ЩУ. Панель 3. Секция 1. Схема подключения
ТП 904-1-33-ЭЛ-43 Щит управления оперативным током ЩУ. Панель 3. Секция 2. Схема подключения
ТП 904-1-33-ЭЛ-44 Шкаф управления вспомприводами. Расчетная схема
ТП 904-1-33-ЭЛ-45 Шкаф управления вспомприводами. Расчетная схема
ТП 904-1-33-ЭЛ-46 Шкаф управления вспомприводами. Расчетная схема
ТП 904-1-33-ЭЛ-47 Шкаф управления 1ШУ турбокомпрессорным агрегатом. Расчетная схема
ТП 904-1-33-ЭЛ-48 Шкаф управления 2ШУ турбокомпрессорным агрегатом. Расчетная схема
ТП 904-1-33-ЭЛ-49 Шкаф управления 3ШУ турбокомпрессорным агрегатом. Расчетная схема
ТП 904-1-33-ЭЛ-50 Шкаф управления 4ШУ турбокомпрессорным агрегатом. Расчетная схема
ТП 904-1-33-ЭЛ-51 Шкаф управления турбокомпрессорным агрегатом 1ШУ(2ШУ,3ШУ,4ШУ). Схема подключения
ТП 904-1-33-ЭЛ-52 Подвод питания к крышным вентиляторам
ТП 904-1-33-ЭЛ-53 Рабочее электрическое освещение. План на отм. 0
ТП 904-1-33-ЭЛ-54 Рабочее электрическое освещение. План на отм. +3.800
ТП 904-1-33-ЭЛ-55 Ремонтное и аварийное электрическое освещение. План на отм. 0
ТП 904-1-33-ЭЛ-56 Ремонтное и аварийное электрическое освещение. План на отм. +3.800
ТП 904-1-33-ЭЛ-57 Электрическое освещение. Разрезы А-А,Б-Б,В-В,Г-Г
ТП 904-1-33-ЭЛ-58 Электрическое освещение. Питающая сеть. Принципиальная однолинейная схема
ТП 904-1-33-ЭЛ-59 Заземление
ТП 904-1-33-ЭЛ-60 Связь и сигнализация. Выкопировки из планов на отм. 0 и +3.800
ТП 904-1-33-ЭЛ-61 Вызывная сигнализация. Планы на отм. 0 и +3.800
ТП 904-1-33-ЭЛ-62 Связь и сигнализация. Пояснения. Скелетные схемы. Условные обозначения
ТП 904-1-33-ЭЛ-63 Ведомость объемов монтажных работ
ТП 904-1-33-ЭЛ-64 Ведомость объемов монтажных работ
ТП 904-1-33-ЭЛ-65 Ведомость объемов монтажных работ
ТП 904-1-33-ЭЛ-66 Перечень стандартов, нормалей и типовых альбомов
ТП 904-1-33-ЭЛ-67 Опросный лист для заказа КРУ2-6Э
ТП 904-1-33-ЭЛ-68 Опросный лист для заказа КРУ2-10Э
Разработан: Гипростройдормаш
Утверждён:29.11.1976 Минстройдормаш (Minstroydormash 39/76)
Расположен в:Техническая документация Строительство Справочные документы Типовые строительные конструкции, изделия и узлы Общероссийский строительный каталог Промышленные предприятия, здания и сооружения Здания и сооружения санитарно-технические Воздухоснабжение, вентиляция и кондиционирование воздуха Воздухоснабжение
Типовой проект 904-1-33Типовой проект 904-1-33Типовой проект 904-1-33Типовой проект 904-1-33Типовой проект 904-1-33Типовой проект 904-1-33Типовой проект 904-1-33Типовой проект 904-1-33Типовой проект 904-1-33Типовой проект 904-1-33Типовой проект 904-1-33Типовой проект 904-1-33Типовой проект 904-1-33Типовой проект 904-1-33Типовой проект 904-1-33Типовой проект 904-1-33Типовой проект 904-1-33Типовой проект 904-1-33Типовой проект 904-1-33Типовой проект 904-1-33Типовой проект 904-1-33Типовой проект 904-1-33Типовой проект 904-1-33Типовой проект 904-1-33Типовой проект 904-1-33Типовой проект 904-1-33Типовой проект 904-1-33Типовой проект 904-1-33Типовой проект 904-1-33Типовой проект 904-1-33Типовой проект 904-1-33Типовой проект 904-1-33Типовой проект 904-1-33Типовой проект 904-1-33Типовой проект 904-1-33Типовой проект 904-1-33Типовой проект 904-1-33Типовой проект 904-1-33Типовой проект 904-1-33Типовой проект 904-1-33Типовой проект 904-1-33Типовой проект 904-1-33Типовой проект 904-1-33Типовой проект 904-1-33Типовой проект 904-1-33Типовой проект 904-1-33Типовой проект 904-1-33Типовой проект 904-1-33Типовой проект 904-1-33Типовой проект 904-1-33Типовой проект 904-1-33Типовой проект 904-1-33Типовой проект 904-1-33Типовой проект 904-1-33Типовой проект 904-1-33Типовой проект 904-1-33Типовой проект 904-1-33Типовой проект 904-1-33Типовой проект 904-1-33Типовой проект 904-1-33Типовой проект 904-1-33Типовой проект 904-1-33Типовой проект 904-1-33Типовой проект 904-1-33Типовой проект 904-1-33Типовой проект 904-1-33Типовой проект 904-1-33

© 2013 Ёшкин Кот :-) Карта сайта