Информационная система
«Ёшкин Кот»

Скачать базу одним архивом
Скачать обновления
История создания базы
Карта сайта

Скачать Типовой проект 903-1-152 Альбом IX. Водоподготовка

Дата актуализации: 10.08.2017

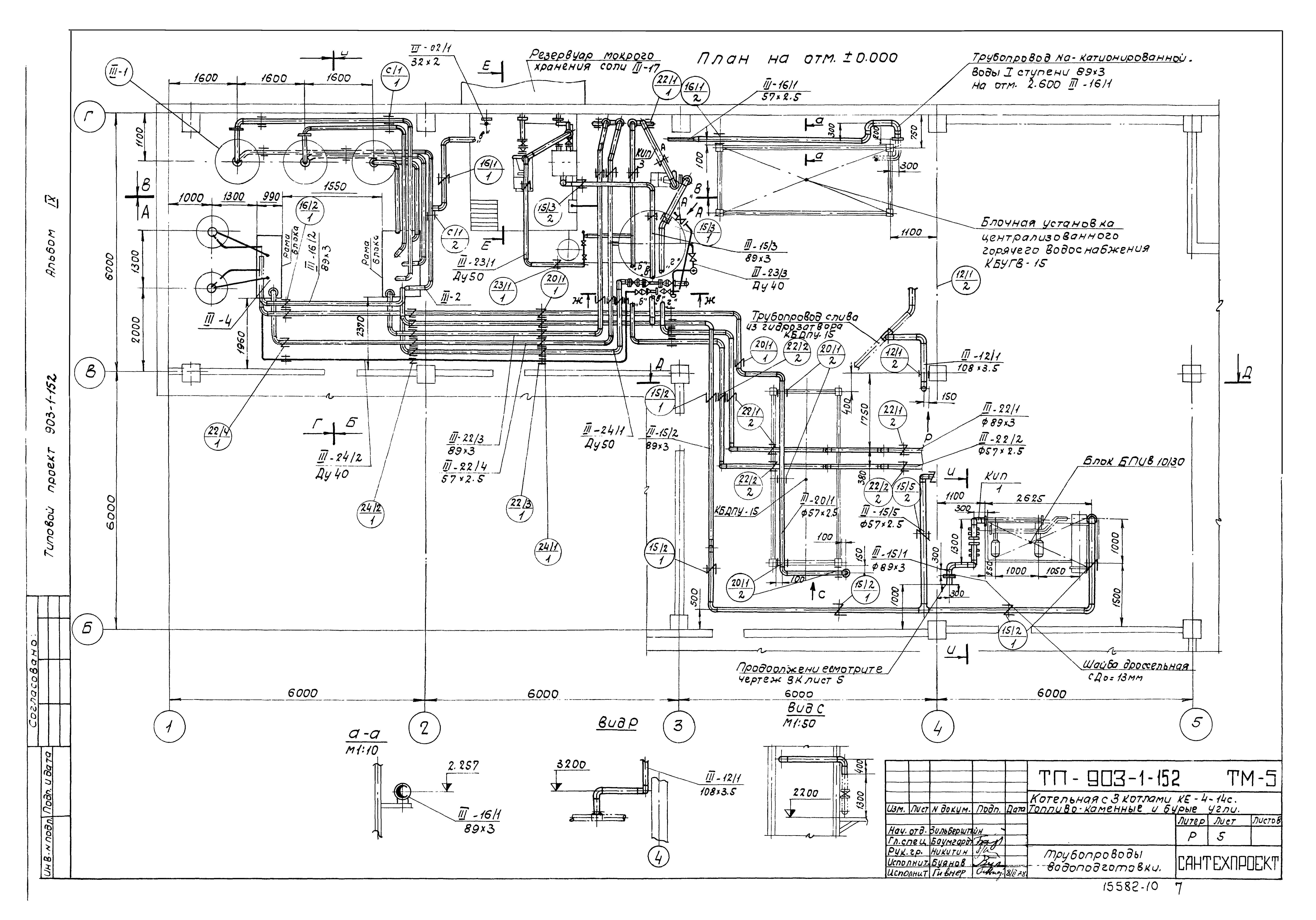
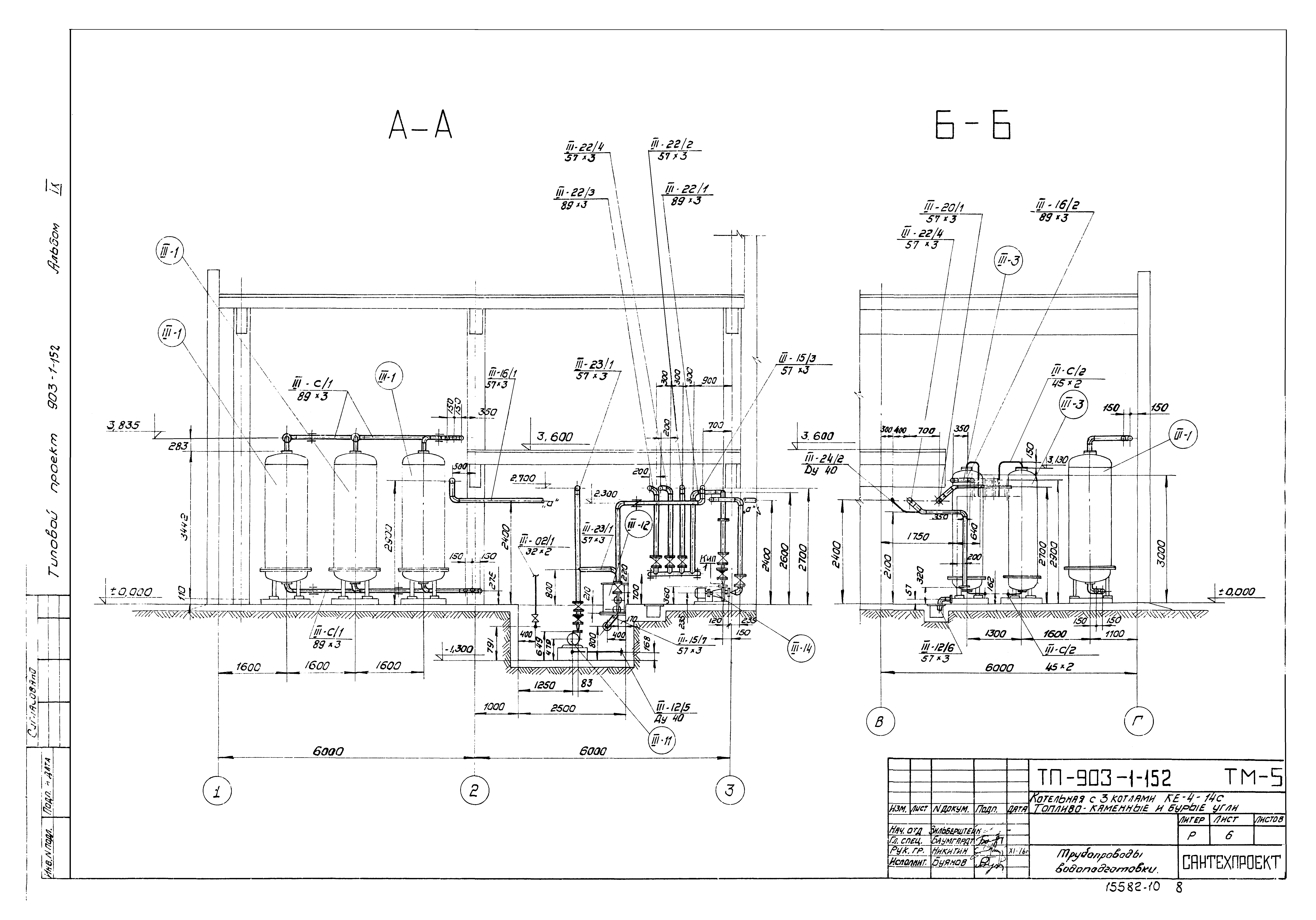
Типовой проект 903-1-152

Альбом IX. Водоподготовка

Обозначение: Типовой проект 903-1-152
Обозначение англ: 903-1-152
Статус:заменен
Название рус.:Альбом IX. Водоподготовка
Дата добавления в базу:01.09.2013
Дата актуализации:05.05.2017
Дата введения:01.03.1987
Оглавление:ТП 902-2-171-ТХ-1 Заглавный лист
ТП 902-2-171-ТХ-1 Помещение для бункера и бака для масла. План и разрезы. Дыхательное устройство. План освещение
ТП 902-2-171-ТХ-1 Бак для масла. План и разрезы
ТП 902-2-171-ТХ-1 Спецификация материалов. Детали
ТП 902-2-171-ТХ-1 Бункер с двумя гидроциклонами. Общий вид
ТП 902-2-171-ОВ-1 Отопление и вентиляция. План. Разрез 1-1. Схема отопления. Условные обозначения. Спецификация материалов
ТП 902-2-171-АС-1 Фасады и планы
ТП 902-2-171-АС-1 Стальные конструкции
ТП 902-2-171-АС-1 Панели П-1;П-1а;П-2;П-3
ТП 902-2-171-АС-1 Панель П-4;П-4а. План балок перекрытия
ТП 902-2-171-АС-1 Детали. Узлы. Разрезы. Спецификация
ТП 902-2-171 Заказные спецификации
Разработан: ГПИ Сантехпроект Госстроя СССР
Минтяжмаш СССР
Союзпроммеханизация
Утверждён:16.10.1978 ГПИ Сантехпроект (143)
Расположен в:Техническая документация Строительство Справочные документы Типовые строительные конструкции, изделия и узлы Общероссийский строительный каталог Промышленные предприятия, здания и сооружения Здания и сооружения санитарно-технические Теплоснабжение Котельные установки Закрытые системы теплоснабжения Топливо - каменные и бурые угли
Чем заменён:
  • Типовой проект 903-1-152.86
Типовой проект 903-1-152Типовой проект 903-1-152Типовой проект 903-1-152Типовой проект 903-1-152Типовой проект 903-1-152Типовой проект 903-1-152Типовой проект 903-1-152Типовой проект 903-1-152Типовой проект 903-1-152Типовой проект 903-1-152Типовой проект 903-1-152Типовой проект 903-1-152Типовой проект 903-1-152Типовой проект 903-1-152Типовой проект 903-1-152Типовой проект 903-1-152Типовой проект 903-1-152Типовой проект 903-1-152Типовой проект 903-1-152Типовой проект 903-1-152

© 2013 Ёшкин Кот :-) Карта сайта